
| 賃料 | 予想金額:113,000〜133,000円程度 | 管理費 | 予想金額:6,000〜10,000円程度 |
| 礼金/敷金 | 非公開(アーカイブ) | 平米数 | 25.05㎡ |
| 初期費用概算(参考) | 目安:155,940〜255,940 円 | みなし賃料(月額・参考) | 122,728〜142,728 円 |
| 備考 | 本ページは過去募集のアーカイブです。表示の金額は周辺相場・過去募集を踏まえた参考レンジであり、実際の契約金額・条件ではありません。 | ||
※上記みなし賃料(月額)は仲介手数料割引・無料&キャッシュバックを加味した高級賃貸バイブル限定の金額です。一般的なみなし賃料とは異なります。
【建物ページ】コンフォリア渋谷WESTの詳細・最新空室はこちら▶▶選ばれる理由
仲介手数料無料・キャンペーン情報(毎月15名様限定)
〇引っ越しお祝い金150060円プレゼント(キャッシュバック)
〇仲介手数料無料キャンペーン
コンフォリア渋谷WEST 405の口コミ・レビュー
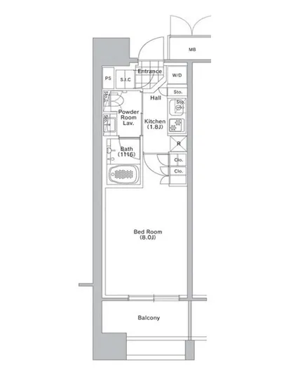
コンフォリア渋谷WEST 405。あなたの新たな生活舞台は、まるで現代のアート作品のように洗練された、北東向きの静寂を纏った一室です。この405号室は、25.05㎡の限られた空間に、贅沢な心地よさが凝縮されています。まるで小さな宇宙が広がるかのように、洋室8帖とキッチン1.8帖が絶妙に融合し、住まう人に豊かなインスピレーションを与えてくれます。
このコンフォリア渋谷WESTは、単なる賃貸物件では…コンフォリア渋谷WEST 405。あなたの新たな生活舞台は、まるで現代のアート作品のように洗練された、北東向きの静寂を纏った一室です。この405号室は、25.05㎡の限られた空間に、贅沢な心地よさが凝縮されています。まるで小さな宇宙が広がるかのように、洋室8帖とキッチン1.8帖が絶妙に融合し、住まう人に豊かなインスピレーションを与えてくれます。
このコンフォリア渋谷WESTは、単なる賃貸物件ではありません。建物自体が、あなたを心待ちにし、優雅な日常をお届けするコンシェルジュのように語りかけてきます。平穏な朝の光が窓を通り抜け、心地よい風がカーテンを揺らす瞬間、あなたはまるで映画の主人公になったかのような、特別な気分に浸ることでしょう。香ばしいコーヒーの香りが漂う中、料理を楽しむ毎日は、まるで物語の一幕のように美しく、ゆったりとした時間が流れます。
コンフォリア渋谷WESTの魅力は、ただ優れたデザインや設備に留まりません。周辺には、名作映画やアート作品が生み出された歴史的な文化が息づいており、散歩をしながら感じられる感覚は心を躍らせます。例えば、近くのハチ公前では思い出深い再会があり、そのさまざまな人生のドラマがあなたの毎日を彩ります。渋谷駅まで徒歩9分という立地は、急速な都市生活の中心に身を置きながらも、安らぎの空間を提供するという絶妙なバランスを保っています。
この住まいには、TVモニターホンやオートロックなどの最新設備が整っているため、安全で快適な生活が約束されています。エレベーターの動きは、まるで時間を操るかのように、あなたを別の次元へといざないます。バイク置場や駐輪場も完備されており、アクティブなライフスタイルを支えてくれます。そして、宅配ボックスの存在は、現代の便利さを実感させてくれる小さな贅沢です。
コンフォリア渋谷WEST 405は、ただの住まいでなく、生活を彩る舞台です。この特別な一室で、あなた自身の物語を紡ぎ出していくことができます。さあ、扉を開け、新たな生活のスタートを切りましょう。あなたの毎日が、まるで映画のワンシーンのように、美しく、高揚感に満ちたものとなることでしょう。
このコンフォリア渋谷WESTは、単なる賃貸物件では…コンフォリア渋谷WEST 405。あなたの新たな生活舞台は、まるで現代のアート作品のように洗練された、北東向きの静寂を纏った一室です。この405号室は、25.05㎡の限られた空間に、贅沢な心地よさが凝縮されています。まるで小さな宇宙が広がるかのように、洋室8帖とキッチン1.8帖が絶妙に融合し、住まう人に豊かなインスピレーションを与えてくれます。
このコンフォリア渋谷WESTは、単なる賃貸物件ではありません。建物自体が、あなたを心待ちにし、優雅な日常をお届けするコンシェルジュのように語りかけてきます。平穏な朝の光が窓を通り抜け、心地よい風がカーテンを揺らす瞬間、あなたはまるで映画の主人公になったかのような、特別な気分に浸ることでしょう。香ばしいコーヒーの香りが漂う中、料理を楽しむ毎日は、まるで物語の一幕のように美しく、ゆったりとした時間が流れます。
コンフォリア渋谷WESTの魅力は、ただ優れたデザインや設備に留まりません。周辺には、名作映画やアート作品が生み出された歴史的な文化が息づいており、散歩をしながら感じられる感覚は心を躍らせます。例えば、近くのハチ公前では思い出深い再会があり、そのさまざまな人生のドラマがあなたの毎日を彩ります。渋谷駅まで徒歩9分という立地は、急速な都市生活の中心に身を置きながらも、安らぎの空間を提供するという絶妙なバランスを保っています。
この住まいには、TVモニターホンやオートロックなどの最新設備が整っているため、安全で快適な生活が約束されています。エレベーターの動きは、まるで時間を操るかのように、あなたを別の次元へといざないます。バイク置場や駐輪場も完備されており、アクティブなライフスタイルを支えてくれます。そして、宅配ボックスの存在は、現代の便利さを実感させてくれる小さな贅沢です。
コンフォリア渋谷WEST 405は、ただの住まいでなく、生活を彩る舞台です。この特別な一室で、あなた自身の物語を紡ぎ出していくことができます。さあ、扉を開け、新たな生活のスタートを切りましょう。あなたの毎日が、まるで映画のワンシーンのように、美しく、高揚感に満ちたものとなることでしょう。
バイブルスコア
バイブルスコア: 35.9
平均的なスコアです。
※バイブルスコア詳細はこちら
バイブルスコアとは独自のAI機械学習技術を利用した物件評価システムで、物件のおすすめ度を示します。最高得点は100点で、スコアが高いほど、よりおすすめの物件と評価されています。
写真
契約条件
| 賃料 | 予想金額:113,000〜133,000円程度 | 管理費 | 予想金額:6,000〜10,000円程度 |
| 礼金 | 非公開(アーカイブ) | 敷金 | 非公開(アーカイブ) |
| フリーレント | なし | 平米数 | 25.05㎡ |
| 間取り | 1K | 大型収納 | SIC |
| 契約期間 |
| 方角 | 北東 |
| 更新料 | 契約形態 | 普通賃貸借契約 | |
| 取引態様 | 媒介 | 内見状況 | 入居中 |
| 入居時期 | 入居中 | SOHO・事務所 | |
| ペット | ペット可 | 間取り内訳 | 洋:8 K:1.8 |
| キャンペーン情報・備考 | 本情報は賃料改定交渉の資料作成、収益物件の利回り試算、周辺エリアや最寄り駅の坪単価分析、次回募集開始時期の予測などにご活用いただけます。 | ||
※「どの不動産に頼めばいいのか分からない」「信頼できる営業マンの話を聞きたい」「一番親切な会社と契約したい」とお悩みの方におすすめなのが「高級賃貸バイブル」です。
高級賃貸バイブルは業界10年以上の熟練スタッフ群がお客様ファーストで対応します。
下記ボタンから、まずは無料でご相談下さい。
※内覧をご希望の際には、どうぞ物件のエントランス前にてお待ち合わせくださいませ。ご内覧後は、同じ場所でお別れとさせていただきます。お客様のご都合に合わせたスムーズなご案内を心がけておりますので、ご質問等がございましたら何なりとお申し付けください。 物件概要
| 物件名 |
| 築年月 |
|
|---|---|---|---|
| 所在地 | |||
| 交通 | |||
| 総戸数 |
| 総階数 |
|
| 構造 |
| ||
地図
物件までの道のりは、「拡大地図を表示」をクリックしてナビ機能をご利用ください。
部屋設備















建物設備

TVモニターホン

エレベーター

オートロック

バイク置場

宅配ボックス

敷地内ゴミ置場

管理人

駐車場機械式

駐輪場
コンフォリア渋谷WESTの現在募集中のお部屋
- コンフォリア渋谷WEST 908 - 間取り: 1K - 賃料: 15.3万円
- コンフォリア渋谷WEST 702 - 間取り: 1K - 賃料: 15万円
- コンフォリア渋谷WEST 1003 - 間取り: 2LDK+SIC - 賃料: 33.1万円






















