
| 賃料 | 予想金額:84,000〜104,000円程度 | 管理費 | 予想金額:10,000〜14,000円程度 |
| 礼金/敷金 | 非公開(アーカイブ) | 平米数 | 25.3㎡ |
| 初期費用概算(参考) | 目安:166,600〜266,600 円 | みなし賃料(月額・参考) | 98,554〜118,554 円 |
| 備考 | 本ページは過去募集のアーカイブです。表示の金額は周辺相場・過去募集を踏まえた参考レンジであり、実際の契約金額・条件ではありません。 | ||
※上記みなし賃料(月額)は仲介手数料割引・無料&キャッシュバックを加味した高級賃貸バイブル限定の金額です。一般的なみなし賃料とは異なります。
【建物ページ】エスレジデンス板橋大山の詳細・最新空室はこちら▶▶選ばれる理由
仲介手数料無料・キャンペーン情報(毎月15名様限定)
〇引っ越しお祝い金56400円プレゼント(キャッシュバック)
〇仲介手数料無料キャンペーン
エスレジデンス板橋大山 203の口コミ・レビュー
エスレジデンス板橋大山 203。まさにこの名前が、あなたの新しい生活の幕開けを告げる響きのようです。東京都板橋区熊野町1-8に佇むエスレジデンス板橋大山は、暖かな西陽を受けて、静かにあなたを待っています。この特別な場所に足を踏み入れた瞬間、まるで時間が止まったかのように感じるでしょう。柔らかな光が懐かしい思い出や新たな夢を薫らせる、理想的な空間が広がります。
エスレジデンス板橋大山 203の内部…エスレジデンス板橋大山 203。まさにこの名前が、あなたの新しい生活の幕開けを告げる響きのようです。東京都板橋区熊野町1-8に佇むエスレジデンス板橋大山は、暖かな西陽を受けて、静かにあなたを待っています。この特別な場所に足を踏み入れた瞬間、まるで時間が止まったかのように感じるでしょう。柔らかな光が懐かしい思い出や新たな夢を薫らせる、理想的な空間が広がります。
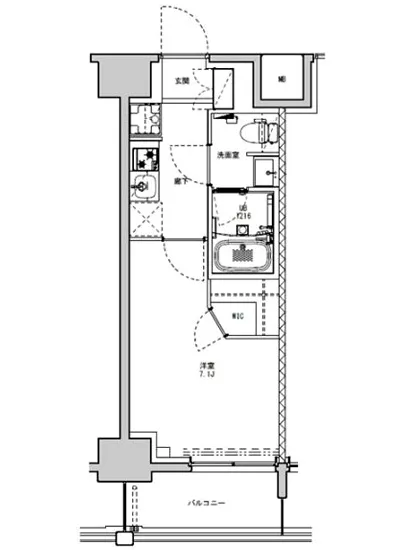
エスレジデンス板橋大山 203の内部は、心が落ち着くための細部へのこだわりが詰まっています。7.1帖の洋室は、あなただけのプライベートな聖域。ここでは、日々の喧騒を忘れ、好きな音楽を聞きながらまったりとした時間を過ごすことができるでしょう。温もりのある木の床は、素足でふんわりと心地よく触れ、あなたの一日の疲れを癒してくれます。
この場所は、単なる住まいではなく、あなたの人生の物語を紡ぐための舞台なのです。壁に心地よいアートを飾り、窓辺にはお気に入りの植物を置いてみてください。エスレジデンス板橋大山 203は、あなたの個性と夢が共鳴し合う空間です。その中で、ふと香るコーヒーの湯気が、優雅な午後の一時を演出してくれることでしょう。
エスレジデンス板橋大山 203の特徴は、まるで優雅なオーケストラのように整然としています。エレベーターとオートロックの心地よいセキュリティ、バイク置場や駐輪場の便利さ、宅配ボックスがあなたの生活を一層豊かに彩ります。そして、敷地内ゴミ置場や管理人の存在は、まるで安心感のある友人のように、日常生活を支えてくれるのです。
周囲には、歴史と文化が息づく東京の風景が広がっています。東武東上線下板橋駅までの10分の道のりは、街の温もりを感じる散策のひととき。情景を彩る街並みや、移り変わる季節の花々が、あなたの心を豊かにしてくれることでしょう。エスレジデンス板橋大山 203から出かければ、まるで映画の一シーンに溶け込むような感覚を味わえるのです。
25.3㎡の空間は、あなたに可能性の広がりを約束します。ここでの生活は、あなた自身の美しい物語。エスレジデンス板橋大山 203で、静けさと活気が共存する特別な時間を味わいながら、新たな創造の息吹を感じてください。あなたの新しい生活が、映画のワンシーンのように鮮やかに展開することを、心から願ってやみません。
エスレジデンス板橋大山 203の内部…エスレジデンス板橋大山 203。まさにこの名前が、あなたの新しい生活の幕開けを告げる響きのようです。東京都板橋区熊野町1-8に佇むエスレジデンス板橋大山は、暖かな西陽を受けて、静かにあなたを待っています。この特別な場所に足を踏み入れた瞬間、まるで時間が止まったかのように感じるでしょう。柔らかな光が懐かしい思い出や新たな夢を薫らせる、理想的な空間が広がります。
エスレジデンス板橋大山 203の内部は、心が落ち着くための細部へのこだわりが詰まっています。7.1帖の洋室は、あなただけのプライベートな聖域。ここでは、日々の喧騒を忘れ、好きな音楽を聞きながらまったりとした時間を過ごすことができるでしょう。温もりのある木の床は、素足でふんわりと心地よく触れ、あなたの一日の疲れを癒してくれます。
この場所は、単なる住まいではなく、あなたの人生の物語を紡ぐための舞台なのです。壁に心地よいアートを飾り、窓辺にはお気に入りの植物を置いてみてください。エスレジデンス板橋大山 203は、あなたの個性と夢が共鳴し合う空間です。その中で、ふと香るコーヒーの湯気が、優雅な午後の一時を演出してくれることでしょう。
エスレジデンス板橋大山 203の特徴は、まるで優雅なオーケストラのように整然としています。エレベーターとオートロックの心地よいセキュリティ、バイク置場や駐輪場の便利さ、宅配ボックスがあなたの生活を一層豊かに彩ります。そして、敷地内ゴミ置場や管理人の存在は、まるで安心感のある友人のように、日常生活を支えてくれるのです。
周囲には、歴史と文化が息づく東京の風景が広がっています。東武東上線下板橋駅までの10分の道のりは、街の温もりを感じる散策のひととき。情景を彩る街並みや、移り変わる季節の花々が、あなたの心を豊かにしてくれることでしょう。エスレジデンス板橋大山 203から出かければ、まるで映画の一シーンに溶け込むような感覚を味わえるのです。
25.3㎡の空間は、あなたに可能性の広がりを約束します。ここでの生活は、あなた自身の美しい物語。エスレジデンス板橋大山 203で、静けさと活気が共存する特別な時間を味わいながら、新たな創造の息吹を感じてください。あなたの新しい生活が、映画のワンシーンのように鮮やかに展開することを、心から願ってやみません。
バイブルスコア
バイブルスコア: 71.5
かなり条件の良い物件です、即仮押さえをおすすめする物件です!
このお部屋は、現在ご入居中のため空室情報はございません。ただし、将来的に募集が開始される際、バイブルスコアにおいて非常に高い評価が期待されます。特にご興味をお持ちの方は、今のうちにブックマークやお気に入りに登録していただくと、募集開始のお知らせをすぐに受け取ることができます。是非ともご検討くださいませ。
※バイブルスコア詳細はこちら
バイブルスコアとは独自のAI機械学習技術を利用した物件評価システムで、物件のおすすめ度を示します。最高得点は100点で、スコアが高いほど、よりおすすめの物件と評価されています。
写真
現在写真が登録されていません契約条件
| 賃料 | 予想金額:84,000〜104,000円程度 | 管理費 | 予想金額:10,000〜14,000円程度 |
| 礼金 | 非公開(アーカイブ) | 敷金 | 非公開(アーカイブ) |
| フリーレント | なし | 平米数 | 25.3㎡ |
| 間取り | 1K | 大型収納 | WIC |
| 契約期間 |
| 方角 | 西 |
| 更新料 | 契約形態 | 普通賃貸借契約 | |
| 取引態様 | 媒介 | 内見状況 | 入居中 |
| 入居時期 | 入居中 | SOHO・事務所 | |
| ペット | ペット可 | 間取り内訳 | 洋:7.1 |
| キャンペーン情報・備考 | 本情報は賃料改定交渉の資料作成、収益物件の利回り試算、周辺エリアや最寄り駅の坪単価分析、次回募集開始時期の予測などにご活用いただけます。 | ||
※「どの不動産に頼めばいいのか分からない」「信頼できる営業マンの話を聞きたい」「一番親切な会社と契約したい」とお悩みの方におすすめなのが「高級賃貸バイブル」です。
高級賃貸バイブルは業界10年以上の熟練スタッフ群がお客様ファーストで対応します。
下記ボタンから、まずは無料でご相談下さい。
※内覧をご希望の際には、どうぞ物件のエントランス前にてお待ち合わせくださいませ。ご内覧後は、同じ場所でお別れとさせていただきます。お客様のご都合に合わせたスムーズなご案内を心がけておりますので、ご質問等がございましたら何なりとお申し付けください。 物件概要
地図
物件までの道のりは、「拡大地図を表示」をクリックしてナビ機能をご利用ください。
部屋設備












建物設備

TVモニターホン

エレベーター

オートロック

バイク置場

宅配ボックス

敷地内ゴミ置場

管理人

駐車場平置き

駐輪場
エスレジデンス板橋大山の現在募集中のお部屋
- No rooms found for this property.
