
| 賃料 | 予想金額:215,000〜235,000円程度 | 管理費 | 予想金額:8,000〜12,000円程度 |
| 礼金/敷金 | 非公開(アーカイブ) | 平米数 | 53.65㎡ |
| 初期費用概算(参考) | 目安:844,000〜944,000 円 | みなし賃料(月額・参考) | 238,938〜258,938 円 |
| 備考 | 本ページは過去募集のアーカイブです。表示の金額は周辺相場・過去募集を踏まえた参考レンジであり、実際の契約金額・条件ではありません。 | ||
※上記みなし賃料(月額)は仲介手数料割引・無料&キャッシュバックを加味した高級賃貸バイブル限定の金額です。一般的なみなし賃料とは異なります。
【建物ページ】サンクレイドル目黒林試の森の詳細・最新空室はこちら▶▶選ばれる理由
仲介手数料無料・キャンペーン情報(毎月15名様限定)
〇仲介手数料割引キャンペーン
サンクレイドル目黒林試の森 304の口コミ・レビュー
サンクレイドル目黒林試の森 304。この特別な空間は、ただの住まいではなく、あなたの人生の舞台となるべく、静かにその扉を開けて待っています。都心の喧騒からほんの少し歩を進めるだけで、目の前に広がるのは、南方向からの優しい陽光が差し込む、穏やかで心地よい環境です。
このサンクレイドル目黒林試の森 304の中に足を踏み入れると、まずその空間の奥行きと、流れるような間取りに心を奪われます。56.65㎡…サンクレイドル目黒林試の森 304。この特別な空間は、ただの住まいではなく、あなたの人生の舞台となるべく、静かにその扉を開けて待っています。都心の喧騒からほんの少し歩を進めるだけで、目の前に広がるのは、南方向からの優しい陽光が差し込む、穏やかで心地よい環境です。
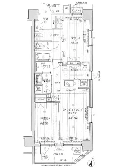
このサンクレイドル目黒林試の森 304の中に足を踏み入れると、まずその空間の奥行きと、流れるような間取りに心を奪われます。56.65㎡の広さに広がるLDKは、なんと12.5帖。ここでは、あなたの思い描く家族のシーンが自然と広がることでしょう。そして、洋室6帖と洋室5帖は、静寂と安らぎをもたらし、ひとときの癒しを与えてくれます。大切な人との会話や、ひとりで過ごす穏やかな午後、すべてがこの場所で織りなされるのです。
心地よい空気が流れる中、最初に感じるのは、温かい木の香り。リビングの窓からは、微かな風が優しく吹き込み、さまざまな草木の香りを運んできます。それはまるで、自然との対話がここで行われているかのよう。あなたの目の前にも、緑豊かな林試の森の風景が広がり、四季折々の表情を楽しめることでしょう。朝の目覚めに、鳥たちのさえずりが心地よい音楽のように響き渡り、まるで自然のオーケストラがあなたを迎え入れるかのようです。
サンクレイドル目黒林試の森 304では、生活のちょっとした贅沢が身近に感じられます。これまでの生活では味わえなかった「オートロック」という安全のシンボルや、充実した設備が、安心感を与えてくれます。バイク置場や駐輪場、また、宅配ボックスが用意されており、忙しい日々にもかかわらず、ストレスフリーで快適な生活が実現します。
この物件の魅力は、単なる住まいにとどまらず、周辺の歴史や文化の深さにもあります。目黒区の深い歴史ある街並みには、情緒あふれるスポットが点在し、アートや文化の香りが漂う空間が広がっています。その街歩きは、まるで映画の一シーンのようにあなたを魅了し、毎日が新たな発見で満ちています。
サンクレイドル目黒林試の森 304での生活は、まるで夢のようなひととき。美味しいコーヒーの香りが漂う朝、愛する人と共に過ごす週末。時折心がざわつく日常を、ここでの暮らしで静めてみませんか。あなたの新しい物語が、ここから始まる予感に満ちています。この場所が、あなたを迎え入れる準備を整えております。
このサンクレイドル目黒林試の森 304の中に足を踏み入れると、まずその空間の奥行きと、流れるような間取りに心を奪われます。56.65㎡…サンクレイドル目黒林試の森 304。この特別な空間は、ただの住まいではなく、あなたの人生の舞台となるべく、静かにその扉を開けて待っています。都心の喧騒からほんの少し歩を進めるだけで、目の前に広がるのは、南方向からの優しい陽光が差し込む、穏やかで心地よい環境です。
このサンクレイドル目黒林試の森 304の中に足を踏み入れると、まずその空間の奥行きと、流れるような間取りに心を奪われます。56.65㎡の広さに広がるLDKは、なんと12.5帖。ここでは、あなたの思い描く家族のシーンが自然と広がることでしょう。そして、洋室6帖と洋室5帖は、静寂と安らぎをもたらし、ひとときの癒しを与えてくれます。大切な人との会話や、ひとりで過ごす穏やかな午後、すべてがこの場所で織りなされるのです。
心地よい空気が流れる中、最初に感じるのは、温かい木の香り。リビングの窓からは、微かな風が優しく吹き込み、さまざまな草木の香りを運んできます。それはまるで、自然との対話がここで行われているかのよう。あなたの目の前にも、緑豊かな林試の森の風景が広がり、四季折々の表情を楽しめることでしょう。朝の目覚めに、鳥たちのさえずりが心地よい音楽のように響き渡り、まるで自然のオーケストラがあなたを迎え入れるかのようです。
サンクレイドル目黒林試の森 304では、生活のちょっとした贅沢が身近に感じられます。これまでの生活では味わえなかった「オートロック」という安全のシンボルや、充実した設備が、安心感を与えてくれます。バイク置場や駐輪場、また、宅配ボックスが用意されており、忙しい日々にもかかわらず、ストレスフリーで快適な生活が実現します。
この物件の魅力は、単なる住まいにとどまらず、周辺の歴史や文化の深さにもあります。目黒区の深い歴史ある街並みには、情緒あふれるスポットが点在し、アートや文化の香りが漂う空間が広がっています。その街歩きは、まるで映画の一シーンのようにあなたを魅了し、毎日が新たな発見で満ちています。
サンクレイドル目黒林試の森 304での生活は、まるで夢のようなひととき。美味しいコーヒーの香りが漂う朝、愛する人と共に過ごす週末。時折心がざわつく日常を、ここでの暮らしで静めてみませんか。あなたの新しい物語が、ここから始まる予感に満ちています。この場所が、あなたを迎え入れる準備を整えております。
バイブルスコア
バイブルスコア: 25.0
平均的なスコアです。
※バイブルスコア詳細はこちら
バイブルスコアとは独自のAI機械学習技術を利用した物件評価システムで、物件のおすすめ度を示します。最高得点は100点で、スコアが高いほど、よりおすすめの物件と評価されています。
写真
契約条件
| 賃料 | 予想金額:215,000〜235,000円程度 | 管理費 | 予想金額:8,000〜12,000円程度 |
| 礼金 | 非公開(アーカイブ) | 敷金 | 非公開(アーカイブ) |
| フリーレント | なし | 平米数 | 53.65㎡ |
| 間取り | 2LDK | 大型収納 | WIC |
| 契約期間 |
| 方角 | 南 |
| 更新料 | 契約形態 | 普通賃貸借契約 | |
| 取引態様 | 媒介 | 内見状況 | 入居中 |
| 入居時期 | 入居中 | SOHO・事務所 | |
| ペット | 間取り内訳 | 洋:6 洋:5 LDK:12.5 | |
| キャンペーン情報・備考 | 本情報は賃料改定交渉の資料作成、収益物件の利回り試算、周辺エリアや最寄り駅の坪単価分析、次回募集開始時期の予測などにご活用いただけます。 | ||
※「どの不動産に頼めばいいのか分からない」「信頼できる営業マンの話を聞きたい」「一番親切な会社と契約したい」とお悩みの方におすすめなのが「高級賃貸バイブル」です。
高級賃貸バイブルは業界10年以上の熟練スタッフ群がお客様ファーストで対応します。
下記ボタンから、まずは無料でご相談下さい。
※内覧をご希望の際には、どうぞ物件のエントランス前にてお待ち合わせくださいませ。ご内覧後は、同じ場所でお別れとさせていただきます。お客様のご都合に合わせたスムーズなご案内を心がけておりますので、ご質問等がございましたら何なりとお申し付けください。 物件概要
| 物件名 |
| 築年月 |
|
|---|---|---|---|
| 所在地 | |||
| 交通 | |||
| 総戸数 |
| 総階数 |
|
| 構造 |
| ||
地図
物件までの道のりは、「拡大地図を表示」をクリックしてナビ機能をご利用ください。
部屋設備

















建物設備

TVモニターホン

エレベーター

オートロック

バイク置場

宅配ボックス

敷地内ゴミ置場

管理人

駐車場平置き

駐輪場
サンクレイドル目黒林試の森の現在募集中のお部屋
- No rooms found for this property.









