
| 賃料 | 予想金額:275,000〜295,000円程度 | 管理費 | 予想金額:18,000〜22,000円程度 |
| 礼金/敷金 | 非公開(アーカイブ) | 平米数 | 75.08㎡ |
| 初期費用概算(参考) | 目安:1,069,000〜1,169,000 円 | みなし賃料(月額・参考) | 312,375〜332,375 円 |
| 備考 | 本ページは過去募集のアーカイブです。表示の金額は周辺相場・過去募集を踏まえた参考レンジであり、実際の契約金額・条件ではありません。 | ||
※上記みなし賃料(月額)は仲介手数料割引・無料&キャッシュバックを加味した高級賃貸バイブル限定の金額です。一般的なみなし賃料とは異なります。
【建物ページ】ブランズ碑文谷の詳細・最新空室はこちら▶▶選ばれる理由
仲介手数料無料・キャンペーン情報(毎月15名様限定)
〇仲介手数料割引キャンペーン
ブランズ碑文谷 104の口コミ・レビュー
ブランズ碑文谷 104。この名前を耳にした瞬間、あなたの心に新たな物語が始まります。ここは、東京都目黒区の美しい街並みに包まれた、アートと歴史が交差する特別な場所。ブランズ碑文谷 104は、その名に恥じない魅力を秘めた一戸の住まいで、まるで優雅な舞台の幕開けのように、あなたを迎え入れます。
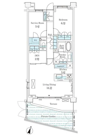
この物件の特徴は、75.08㎡の広々とした空間に、1LDKの間取りが施されていることです。14.2帖のリビ…ブランズ碑文谷 104。この名前を耳にした瞬間、あなたの心に新たな物語が始まります。ここは、東京都目黒区の美しい街並みに包まれた、アートと歴史が交差する特別な場所。ブランズ碑文谷 104は、その名に恥じない魅力を秘めた一戸の住まいで、まるで優雅な舞台の幕開けのように、あなたを迎え入れます。
この物件の特徴は、75.08㎡の広々とした空間に、1LDKの間取りが施されていることです。14.2帖のリビングダイニングは、心地よい陽光が南側から差し込み、日々の暮らしを華やかに彩ります。明るく暖かい光に包まれながら、あなたが手にするカップからは、淹れたてのコーヒーの香りが漂い、ゆったりとした朝のひとときを演出します。香ばしいローストの香りが、まるで幸福感を運んでくるかのように感じられることでしょう。
リビングの窓を開けると、爽やかな風が心地よく吹き抜け、周囲の緑とともに、自然との調和を感じることができます。目黒区の歴史的な深さが、あなたの毎日に静かに寄り添い、その景観の美しさが贅沢な時間を提供してくれるのです。ブランズ碑文谷 104は、ただの住処ではなく、あなたの人生に物語を織りなす舞台であることを忘れないでください。
お部屋は、6.3帖の洋室と5.4帖の洋室という、プライベートな空間がしっかりと確保されています。どちらの部屋でも、静寂に身を委ねて、読書や思索に耽る時間を楽しむことができるでしょう。また、2.9帖のサービスルームは、あなたの趣味やアイデアを形にするクリエイティブな空間として活用できるのではないでしょうか。壁を彩るアートや、お気に入りの書籍が並ぶその場所は、まるで自分だけの小さなギャラリーのように感じられることでしょう。
生活の利便性を追求した設備も充実しています。TVモニターホンやオートロック、宅配ボックスによって、安心して暮らせる環境が整えられており、管理人が常駐しているため、日々の生活も安心です。バイク置場や駐輪場も完備されているので、アクティブなライフスタイルを楽しむ方にもぴったりの環境です。
ブランズ碑文谷 104に住むことは、目黒の街が持つ文化や芸術に身を委ねることでもあります。近隣には、アートギャラリーや歴史的な建造物が点在しており、散策することで新たな発見があるはずです。また、東京急行電鉄東急東横線 学芸大学駅まで徒歩11分という立地は、都会の喧騒から少し離れた静謐な環境を保ちながら、便利さも兼ね備えております。
ブランズ碑文谷 104。この特別な住まいは、あなたの人生に新たな彩りを加え、毎日が映画のワンシーンのように魅力的な時間を提供してくれることでしょう。ここで、新しい物語を始めてみませんか。あなたを待つのは、ただの物件ではなく、まるで心を豊かにしてくれる友人のような存在です。
この物件の特徴は、75.08㎡の広々とした空間に、1LDKの間取りが施されていることです。14.2帖のリビ…ブランズ碑文谷 104。この名前を耳にした瞬間、あなたの心に新たな物語が始まります。ここは、東京都目黒区の美しい街並みに包まれた、アートと歴史が交差する特別な場所。ブランズ碑文谷 104は、その名に恥じない魅力を秘めた一戸の住まいで、まるで優雅な舞台の幕開けのように、あなたを迎え入れます。
この物件の特徴は、75.08㎡の広々とした空間に、1LDKの間取りが施されていることです。14.2帖のリビングダイニングは、心地よい陽光が南側から差し込み、日々の暮らしを華やかに彩ります。明るく暖かい光に包まれながら、あなたが手にするカップからは、淹れたてのコーヒーの香りが漂い、ゆったりとした朝のひとときを演出します。香ばしいローストの香りが、まるで幸福感を運んでくるかのように感じられることでしょう。
リビングの窓を開けると、爽やかな風が心地よく吹き抜け、周囲の緑とともに、自然との調和を感じることができます。目黒区の歴史的な深さが、あなたの毎日に静かに寄り添い、その景観の美しさが贅沢な時間を提供してくれるのです。ブランズ碑文谷 104は、ただの住処ではなく、あなたの人生に物語を織りなす舞台であることを忘れないでください。
お部屋は、6.3帖の洋室と5.4帖の洋室という、プライベートな空間がしっかりと確保されています。どちらの部屋でも、静寂に身を委ねて、読書や思索に耽る時間を楽しむことができるでしょう。また、2.9帖のサービスルームは、あなたの趣味やアイデアを形にするクリエイティブな空間として活用できるのではないでしょうか。壁を彩るアートや、お気に入りの書籍が並ぶその場所は、まるで自分だけの小さなギャラリーのように感じられることでしょう。
生活の利便性を追求した設備も充実しています。TVモニターホンやオートロック、宅配ボックスによって、安心して暮らせる環境が整えられており、管理人が常駐しているため、日々の生活も安心です。バイク置場や駐輪場も完備されているので、アクティブなライフスタイルを楽しむ方にもぴったりの環境です。
ブランズ碑文谷 104に住むことは、目黒の街が持つ文化や芸術に身を委ねることでもあります。近隣には、アートギャラリーや歴史的な建造物が点在しており、散策することで新たな発見があるはずです。また、東京急行電鉄東急東横線 学芸大学駅まで徒歩11分という立地は、都会の喧騒から少し離れた静謐な環境を保ちながら、便利さも兼ね備えております。
ブランズ碑文谷 104。この特別な住まいは、あなたの人生に新たな彩りを加え、毎日が映画のワンシーンのように魅力的な時間を提供してくれることでしょう。ここで、新しい物語を始めてみませんか。あなたを待つのは、ただの物件ではなく、まるで心を豊かにしてくれる友人のような存在です。
バイブルスコア
バイブルスコア: 24.2
平均的なスコアです。
※バイブルスコア詳細はこちら
バイブルスコアとは独自のAI機械学習技術を利用した物件評価システムで、物件のおすすめ度を示します。最高得点は100点で、スコアが高いほど、よりおすすめの物件と評価されています。
写真
契約条件
| 賃料 | 予想金額:275,000〜295,000円程度 | 管理費 | 予想金額:18,000〜22,000円程度 |
| 礼金 | 非公開(アーカイブ) | 敷金 | 非公開(アーカイブ) |
| フリーレント | なし | 平米数 | 75.08㎡ |
| 間取り | 1LDK | 大型収納 | WIC+S |
| 契約期間 |
| 方角 | 南 |
| 更新料 | 契約形態 | 普通賃貸借契約 | |
| 取引態様 | 媒介 | 内見状況 | 入居中 |
| 入居時期 | 入居中 | SOHO・事務所 | |
| ペット | 間取り内訳 | 洋:6.3 洋:5.4 S:2.9 LD:14.2 K:3.4 | |
| キャンペーン情報・備考 | 本情報は賃料改定交渉の資料作成、収益物件の利回り試算、周辺エリアや最寄り駅の坪単価分析、次回募集開始時期の予測などにご活用いただけます。 | ||
※「どの不動産に頼めばいいのか分からない」「信頼できる営業マンの話を聞きたい」「一番親切な会社と契約したい」とお悩みの方におすすめなのが「高級賃貸バイブル」です。
高級賃貸バイブルは業界10年以上の熟練スタッフ群がお客様ファーストで対応します。
下記ボタンから、まずは無料でご相談下さい。
※内覧をご希望の際には、どうぞ物件のエントランス前にてお待ち合わせくださいませ。ご内覧後は、同じ場所でお別れとさせていただきます。お客様のご都合に合わせたスムーズなご案内を心がけておりますので、ご質問等がございましたら何なりとお申し付けください。 物件概要
| 物件名 |
| 築年月 |
|
|---|---|---|---|
| 所在地 | |||
| 交通 | |||
| 総戸数 |
| 総階数 |
|
| 構造 |
| ||
地図
物件までの道のりは、「拡大地図を表示」をクリックしてナビ機能をご利用ください。
部屋設備

















建物設備

TVモニターホン

エレベーター

オートロック

バイク置場

宅配ボックス

敷地内ゴミ置場

管理人

駐車場平置き

駐車場機械式

駐輪場
ブランズ碑文谷の現在募集中のお部屋
- No rooms found for this property.
























