
| 賃料 | 予想金額:129,000〜149,000円程度 | 管理費 | 予想金額:6,000〜10,000円程度 |
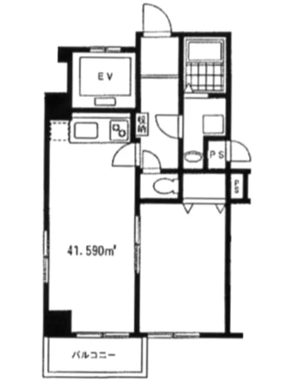
| 礼金/敷金 | 非公開(アーカイブ) | 平米数 | 41.59㎡ |
| 初期費用概算(参考) | 目安:401,000〜501,000 円 | みなし賃料(月額・参考) | 143,500〜163,500 円 |
| 備考 | 本ページは過去募集のアーカイブです。表示の金額は周辺相場・過去募集を踏まえた参考レンジであり、実際の契約金額・条件ではありません。 | ||
※上記みなし賃料(月額)は仲介手数料割引・無料&キャッシュバックを加味した高級賃貸バイブル限定の金額です。一般的なみなし賃料とは異なります。
【建物ページ】パシフィック碑文谷の詳細・最新空室はこちら▶▶選ばれる理由
仲介手数料無料・キャンペーン情報(毎月15名様限定)
〇仲介手数料割引キャンペーン
パシフィック碑文谷 502の口コミ・レビュー
パシフィック碑文谷 502。この名を耳にした時、あなたは一瞬、夢の世界への扉が開かれるのを感じることでしょう。東京都目黒区、洗練された街並みが広がる碑文谷に位置するこの物件は、まるで心を癒すためにデザインされた隠れ家のようです。特に502号室は、低層の優雅さが漂うこの建物の中でも、特別な魅力を持っています。
想像してみてください。ドアを開けると、ひんやりとして澄んだ空気が流れ込み、思わず深呼吸を…パシフィック碑文谷 502。この名を耳にした時、あなたは一瞬、夢の世界への扉が開かれるのを感じることでしょう。東京都目黒区、洗練された街並みが広がる碑文谷に位置するこの物件は、まるで心を癒すためにデザインされた隠れ家のようです。特に502号室は、低層の優雅さが漂うこの建物の中でも、特別な魅力を持っています。
想像してみてください。ドアを開けると、ひんやりとして澄んだ空気が流れ込み、思わず深呼吸をしてしまいます。西の光が柔らかく差し込み、洋室6.5帖の広さは、あなたの感性を刺激します。戻りたくないと思わせるほどの心地よさが、ここにはあります。リビングダイニングキッチン11.1帖は、まるで親友との笑い声が響く空間。朝の光を浴びながら、あなたが作る朝食の香りが漂い、家族や友人との思い出が紡がれていく様子が目に浮かびます。
パシフィック碑文谷 502は、ただの住まいではなく、あなたの人生の舞台となる特別な場所です。テレビモニターホンやオートロックといった安心の設備は、まるであなたを優しく包み込むように設計されています。エレベーターで降りれば、広がる街には洗練されたカフェやショップが並び、生活の舞台が広がります。学芸大学駅までの15分の道のりは、新たな発見への旅の始まりです。街の喧騒から少し離れたここで、心を開放し、驚きと感動を求めて歩き出すことができるのです。
また、管理人の存在は、まるで老舗のホテルのコンシェルジュのように、心温まるサービスであなたを迎え入れます。宅配ボックスが整備され、忙しい日常の中でも、荷物を安心して受け取ることができます。都市の便利さを享受しながらも、ここでは穏やかさと静けさが共存しているのです。
さらに、周辺には歴史ある文化も豊かに息づいています。近隣の公園には、季節ごとに移ろいゆく四季の花々が顔を見せ、散歩を楽しむ足元に彩りを添えます。その美しさは、まるで物語から抜け出したような、アートのような存在です。目黒の歴史や文化に触れながら、心に響く美しい瞬間を感じることができる街の魅力は、あなたの生活をより豊かにしてくれるでしょう。
こうして、パシフィック碑文谷 502は、ただの住まいであることを超え、あなたの物語の中に新たなページを刻む場となります。心地よい空間で、あなた自身のライフスタイルを存分に楽しみ、五感を研ぎ澄ませる日々が待っています。この特別な空間で、心の豊かさと共に新しい物語を描き始めてください。あなたの人生を彩るこの場所、パシフィック碑文谷 502は、あなたを温かく迎え入れる準備が整っています。さあ、夢の扉を開けて、新たな生活の一歩を踏み出しましょう。
想像してみてください。ドアを開けると、ひんやりとして澄んだ空気が流れ込み、思わず深呼吸を…パシフィック碑文谷 502。この名を耳にした時、あなたは一瞬、夢の世界への扉が開かれるのを感じることでしょう。東京都目黒区、洗練された街並みが広がる碑文谷に位置するこの物件は、まるで心を癒すためにデザインされた隠れ家のようです。特に502号室は、低層の優雅さが漂うこの建物の中でも、特別な魅力を持っています。
想像してみてください。ドアを開けると、ひんやりとして澄んだ空気が流れ込み、思わず深呼吸をしてしまいます。西の光が柔らかく差し込み、洋室6.5帖の広さは、あなたの感性を刺激します。戻りたくないと思わせるほどの心地よさが、ここにはあります。リビングダイニングキッチン11.1帖は、まるで親友との笑い声が響く空間。朝の光を浴びながら、あなたが作る朝食の香りが漂い、家族や友人との思い出が紡がれていく様子が目に浮かびます。
パシフィック碑文谷 502は、ただの住まいではなく、あなたの人生の舞台となる特別な場所です。テレビモニターホンやオートロックといった安心の設備は、まるであなたを優しく包み込むように設計されています。エレベーターで降りれば、広がる街には洗練されたカフェやショップが並び、生活の舞台が広がります。学芸大学駅までの15分の道のりは、新たな発見への旅の始まりです。街の喧騒から少し離れたここで、心を開放し、驚きと感動を求めて歩き出すことができるのです。
また、管理人の存在は、まるで老舗のホテルのコンシェルジュのように、心温まるサービスであなたを迎え入れます。宅配ボックスが整備され、忙しい日常の中でも、荷物を安心して受け取ることができます。都市の便利さを享受しながらも、ここでは穏やかさと静けさが共存しているのです。
さらに、周辺には歴史ある文化も豊かに息づいています。近隣の公園には、季節ごとに移ろいゆく四季の花々が顔を見せ、散歩を楽しむ足元に彩りを添えます。その美しさは、まるで物語から抜け出したような、アートのような存在です。目黒の歴史や文化に触れながら、心に響く美しい瞬間を感じることができる街の魅力は、あなたの生活をより豊かにしてくれるでしょう。
こうして、パシフィック碑文谷 502は、ただの住まいであることを超え、あなたの物語の中に新たなページを刻む場となります。心地よい空間で、あなた自身のライフスタイルを存分に楽しみ、五感を研ぎ澄ませる日々が待っています。この特別な空間で、心の豊かさと共に新しい物語を描き始めてください。あなたの人生を彩るこの場所、パシフィック碑文谷 502は、あなたを温かく迎え入れる準備が整っています。さあ、夢の扉を開けて、新たな生活の一歩を踏み出しましょう。
バイブルスコア
バイブルスコア: 25.7
平均的なスコアです。
※バイブルスコア詳細はこちら
バイブルスコアとは独自のAI機械学習技術を利用した物件評価システムで、物件のおすすめ度を示します。最高得点は100点で、スコアが高いほど、よりおすすめの物件と評価されています。
写真
現在写真が登録されていません契約条件
| 賃料 | 予想金額:129,000〜149,000円程度 | 管理費 | 予想金額:6,000〜10,000円程度 |
| 礼金 | 非公開(アーカイブ) | 敷金 | 非公開(アーカイブ) |
| フリーレント | なし | 平米数 | 41.59㎡ |
| 間取り | 1LDK | 大型収納 | |
| 契約期間 |
| 方角 | 西 |
| 更新料 | 契約形態 | 普通賃貸借契約 | |
| 取引態様 | 媒介 | 内見状況 | 入居中 |
| 入居時期 | 入居中 | SOHO・事務所 | |
| ペット | 間取り内訳 | 洋:6.5 LDK:11.1 | |
| キャンペーン情報・備考 | 本情報は賃料改定交渉の資料作成、収益物件の利回り試算、周辺エリアや最寄り駅の坪単価分析、次回募集開始時期の予測などにご活用いただけます。 | ||
※「どの不動産に頼めばいいのか分からない」「信頼できる営業マンの話を聞きたい」「一番親切な会社と契約したい」とお悩みの方におすすめなのが「高級賃貸バイブル」です。
高級賃貸バイブルは業界10年以上の熟練スタッフ群がお客様ファーストで対応します。
下記ボタンから、まずは無料でご相談下さい。
※内覧をご希望の際には、どうぞ物件のエントランス前にてお待ち合わせくださいませ。ご内覧後は、同じ場所でお別れとさせていただきます。お客様のご都合に合わせたスムーズなご案内を心がけておりますので、ご質問等がございましたら何なりとお申し付けください。 物件概要
| 物件名 |
| 築年月 |
|
|---|---|---|---|
| 所在地 | |||
| 交通 | |||
| 総戸数 |
| 総階数 |
|
| 構造 |
| ||
地図
物件までの道のりは、「拡大地図を表示」をクリックしてナビ機能をご利用ください。
部屋設備














建物設備

TVモニターホン

エレベーター

オートロック

宅配ボックス

敷地内ゴミ置場

管理人

駐車場平置き

駐輪場
パシフィック碑文谷の現在募集中のお部屋
- No rooms found for this property.
