
| 賃料 | 予想金額:300,000〜320,000円程度 | 管理費 | 予想金額:13,000〜17,000円程度 |
| 礼金/敷金 | 非公開(アーカイブ) | 平米数 | 72.16㎡ |
| 初期費用概算(参考) | 目安:1,459,000〜1,559,000 円 | みなし賃料(月額・参考) | 339,979〜359,979 円 |
| 備考 | 本ページは過去募集のアーカイブです。表示の金額は周辺相場・過去募集を踏まえた参考レンジであり、実際の契約金額・条件ではありません。 | ||
※上記みなし賃料(月額)は仲介手数料割引・無料&キャッシュバックを加味した高級賃貸バイブル限定の金額です。一般的なみなし賃料とは異なります。
【建物ページ】レジデンスヒルズ神山町の詳細・最新空室はこちら▶▶選ばれる理由
仲介手数料無料・キャンペーン情報(毎月15名様限定)
〇仲介手数料割引キャンペーン
レジデンスヒルズ神山町 302の口コミ・レビュー
レジデンスヒルズ神山町 302。この優雅な名前は、まるで都会の喧騒から解き放たれた緑のオアシスのように、住む人々に心の安らぎを提供する住まいを象徴しています。東京都渋谷区神山町38-14という特別な地に位置するこの邸宅は、北に向かって大きな窓から差し込む柔らかな光が、四季折々の表情を見せる美しい街並みを映し出します。
この場所での生活は、まるで映画のワンシーンのようです。朝、目覚めると、カーテン…レジデンスヒルズ神山町 302。この優雅な名前は、まるで都会の喧騒から解き放たれた緑のオアシスのように、住む人々に心の安らぎを提供する住まいを象徴しています。東京都渋谷区神山町38-14という特別な地に位置するこの邸宅は、北に向かって大きな窓から差し込む柔らかな光が、四季折々の表情を見せる美しい街並みを映し出します。
この場所での生活は、まるで映画のワンシーンのようです。朝、目覚めると、カーテン越しに差し込む優しい朝日が、あなたの頬を柔らかく撫で、心を躍らせます。無垢な木のフローリングが足の裏に優しく触れ、さっと身支度を整えた後、9.4帖のリビングの広々とした空間へと足を運ぶと、心地よい風が窓から吹き抜け、あなたの心を包み込みます。
このレジデンスヒルズ神山町 302は、単なる住まいではなく、自らの物語を紡ぐキャンバスです。9.1帖のダイニングキッチンでは、香ばしいパンが焼き上がる音や、スパイスの香りが混じり合い、家族や友人と共に特別な時間を共有する愉快な舞台が展開されます。美味しい料理を囲んで笑い合う声が響き渡る、その瞬間はまさに宝物のようです。
さらに、この住まいには、6.2帖と5帖の快適な寝室が用意されており、静寂の中で深い眠りに誘われることでしょう。心地よいシーツの肌触りが、毎晩の安眠を約束し、夢の世界へとあなたを導いてくれます。目覚めたとき、晴れた日の光が微かに部屋を照らし、心身をリフレッシュさせるあの瞬間は、まるで新しい朝の始まりを意味します。
このレジデンスヒルズ神山町 302は、デザイナーズの美しさを纏い、24時間管理される安心と快適さが共鳴し合っています。オートロックや宅配ボックスといった便利な施設も整い、生活の中にさりげなく溶け込んでいます。住む人の生活をより豊かに、多彩に彩るための工夫が施されています。
また、周辺には代々木公園があり、緑に囲まれた散歩道や、アートギャラリーやカフェも点在しています。街の歴史や文化が息づくこの場所で、あなた自身の生活がより一層華やかに、そして深い意味を持つものとなることでしょう。歴史ある街並みと共に、あなたの物語が新たに始まる瞬間を、レジデンスヒルズ神山町 302は静かに見守っています。
この物件は、あなたの生活に新しい風を吹き込むために存在しています。ここでの生活は、日常の中での非日常を感じさせ、心の豊かさを育んでくれることでしょう。レジデンスヒルズ神山町 302で、新しい自分自身を見つける旅が始まります。
この場所での生活は、まるで映画のワンシーンのようです。朝、目覚めると、カーテン…レジデンスヒルズ神山町 302。この優雅な名前は、まるで都会の喧騒から解き放たれた緑のオアシスのように、住む人々に心の安らぎを提供する住まいを象徴しています。東京都渋谷区神山町38-14という特別な地に位置するこの邸宅は、北に向かって大きな窓から差し込む柔らかな光が、四季折々の表情を見せる美しい街並みを映し出します。
この場所での生活は、まるで映画のワンシーンのようです。朝、目覚めると、カーテン越しに差し込む優しい朝日が、あなたの頬を柔らかく撫で、心を躍らせます。無垢な木のフローリングが足の裏に優しく触れ、さっと身支度を整えた後、9.4帖のリビングの広々とした空間へと足を運ぶと、心地よい風が窓から吹き抜け、あなたの心を包み込みます。
このレジデンスヒルズ神山町 302は、単なる住まいではなく、自らの物語を紡ぐキャンバスです。9.1帖のダイニングキッチンでは、香ばしいパンが焼き上がる音や、スパイスの香りが混じり合い、家族や友人と共に特別な時間を共有する愉快な舞台が展開されます。美味しい料理を囲んで笑い合う声が響き渡る、その瞬間はまさに宝物のようです。
さらに、この住まいには、6.2帖と5帖の快適な寝室が用意されており、静寂の中で深い眠りに誘われることでしょう。心地よいシーツの肌触りが、毎晩の安眠を約束し、夢の世界へとあなたを導いてくれます。目覚めたとき、晴れた日の光が微かに部屋を照らし、心身をリフレッシュさせるあの瞬間は、まるで新しい朝の始まりを意味します。
このレジデンスヒルズ神山町 302は、デザイナーズの美しさを纏い、24時間管理される安心と快適さが共鳴し合っています。オートロックや宅配ボックスといった便利な施設も整い、生活の中にさりげなく溶け込んでいます。住む人の生活をより豊かに、多彩に彩るための工夫が施されています。
また、周辺には代々木公園があり、緑に囲まれた散歩道や、アートギャラリーやカフェも点在しています。街の歴史や文化が息づくこの場所で、あなた自身の生活がより一層華やかに、そして深い意味を持つものとなることでしょう。歴史ある街並みと共に、あなたの物語が新たに始まる瞬間を、レジデンスヒルズ神山町 302は静かに見守っています。
この物件は、あなたの生活に新しい風を吹き込むために存在しています。ここでの生活は、日常の中での非日常を感じさせ、心の豊かさを育んでくれることでしょう。レジデンスヒルズ神山町 302で、新しい自分自身を見つける旅が始まります。
バイブルスコア
バイブルスコア: 35.4
平均的なスコアです。
※バイブルスコア詳細はこちら
バイブルスコアとは独自のAI機械学習技術を利用した物件評価システムで、物件のおすすめ度を示します。最高得点は100点で、スコアが高いほど、よりおすすめの物件と評価されています。
写真
現在写真が登録されていません契約条件
| 賃料 | 予想金額:300,000〜320,000円程度 | 管理費 | 予想金額:13,000〜17,000円程度 |
| 礼金 | 非公開(アーカイブ) | 敷金 | 非公開(アーカイブ) |
| フリーレント | なし | 平米数 | 72.16㎡ |
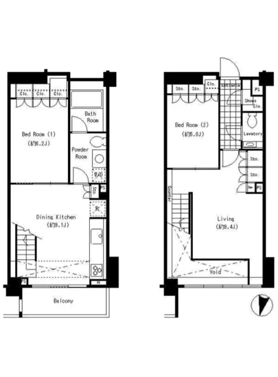
| 間取り | 2LDK | 大型収納 | |
| 契約期間 |
| 方角 | 北 |
| 更新料 | 契約形態 | 普通賃貸借契約 | |
| 取引態様 | 媒介 | 内見状況 | 入居中 |
| 入居時期 | 入居中 | SOHO・事務所 | |
| ペット | 間取り内訳 | L=9.4J / DK=9.1J / BR=6.2J / BR=5J | |
| キャンペーン情報・備考 | 本情報は賃料改定交渉の資料作成、収益物件の利回り試算、周辺エリアや最寄り駅の坪単価分析、次回募集開始時期の予測などにご活用いただけます。 | ||
※「どの不動産に頼めばいいのか分からない」「信頼できる営業マンの話を聞きたい」「一番親切な会社と契約したい」とお悩みの方におすすめなのが「高級賃貸バイブル」です。
高級賃貸バイブルは業界10年以上の熟練スタッフ群がお客様ファーストで対応します。
下記ボタンから、まずは無料でご相談下さい。
※内覧をご希望の際には、どうぞ物件のエントランス前にてお待ち合わせくださいませ。ご内覧後は、同じ場所でお別れとさせていただきます。お客様のご都合に合わせたスムーズなご案内を心がけておりますので、ご質問等がございましたら何なりとお申し付けください。 物件概要
| 物件名 |
| 築年月 |
|
|---|---|---|---|
| 所在地 | |||
| 交通 | |||
| 総戸数 |
| 総階数 |
|
| 構造 |
| ||
地図
物件までの道のりは、「拡大地図を表示」をクリックしてナビ機能をご利用ください。
部屋設備
















建物設備

24時間管理

TVモニターホン

エレベーター

オートロック

宅配ボックス

敷地内ゴミ置場

管理人

駐輪場
レジデンスヒルズ神山町の現在募集中のお部屋
- レジデンスヒルズ神山町 301 - 間取り: 2LDK+WIC - 賃料: 26.5万円
