
| 賃料 | 予想金額:238,000〜258,000円程度 | 管理費 | 予想金額:18,000〜22,000円程度 |
| 礼金/敷金 | 非公開(アーカイブ) | 平米数 | 55.56㎡ |
| 初期費用概算(参考) | 目安:1,187,500〜1,287,500 円 | みなし賃料(月額・参考) | 278,615〜298,615 円 |
| 備考 | 本ページは過去募集のアーカイブです。表示の金額は周辺相場・過去募集を踏まえた参考レンジであり、実際の契約金額・条件ではありません。 | ||
※上記みなし賃料(月額)は仲介手数料割引・無料&キャッシュバックを加味した高級賃貸バイブル限定の金額です。一般的なみなし賃料とは異なります。
【建物ページ】ユニーブル渋谷神南の詳細・最新空室はこちら▶▶選ばれる理由
仲介手数料無料・キャンペーン情報(毎月15名様限定)
〇仲介手数料割引キャンペーン
ユニーブル渋谷神南 3階 55.56㎡の口コミ・レビュー
ユニーブル渋谷神南 3階 55.56㎡、それはまさに都会の中心で織り成される静謐なオアシスです。この高級賃貸物件は、渋谷の賑わいの中にありながら、その窓から見える景色は心を穏やかにしてくれる自然の美しさに包まれています。あなたがこの物件に住むことで、新たな物語が始まることでしょう。さあ、ユニーブル渋谷神南がどのようにあなたの日常を彩るのか、一緒に探検してみましょう。
玄関を開けると、柔らかな光が…ユニーブル渋谷神南 3階 55.56㎡、それはまさに都会の中心で織り成される静謐なオアシスです。この高級賃貸物件は、渋谷の賑わいの中にありながら、その窓から見える景色は心を穏やかにしてくれる自然の美しさに包まれています。あなたがこの物件に住むことで、新たな物語が始まることでしょう。さあ、ユニーブル渋谷神南がどのようにあなたの日常を彩るのか、一緒に探検してみましょう。
玄関を開けると、柔らかな光が優しくあなたを迎え入れ、心地よい空気が広がります。ここはただの住まいではありません。ユニーブル渋谷神南は、あなたの人生の舞台。LLDK13.2帖の大空間が、生活を豊かに演出します。オープンな間取りは、まるで温かい日差しの中で愛する人と笑い合う瞬間を提供してくれるようです。そこに存在するのは、ただの家具や装飾品ではなく、思い出や感情が織りなす温もりです。
キッチンに立つと、調理の音がまるでジャンベのリズムのように心に響き、香ばしい食材が焼ける香りが鼻腔をくすぐります。あなたの手によって、食卓に並ぶ料理が愛のメッセージとなり、家族や友人との絆を深める大切な時間を作り出します。この場所は、あなたの料理の腕前を磨く舞台でもあるのです。
リビングから見える窓の外には、渋谷の象徴であるスクランブル交差点の活気があり、それを背にした街の流れは、まるで映画のワンシーンのようにあなたの心を躍らせることでしょう。そして、夜になると、街の灯りが星々となり、あなたの目の前で織り成される幻想的な景色が広がります。おしゃれなバーやカフェが立ち並ぶこのエリアは、まるで夢の中にいるかのような非日常を演出してくれるのです。
ユニーブル渋谷神南はまた、あなたのプライバシーを大切にした設計がなされています。オートロックや宅配ボックス、管理人がいることで、安心・安全な生活をサポートします。階段を上がって得られる3階の位置は、街の喧騒からほんの少し離れた特別な空間。ここでは、心の安らぎと自分自身を見つめ直す余韻を感じることができるのです。
最後に、この物件の周辺は、渋谷区宇田川町の文化と歴史が息づく場所。アートギャラリーやライブハウスが点在し、どこかしらにあなたの心をときめかせる要素が潜んでいます。ユニーブル渋谷神南に住むことで、あなた自身がこの街のアートの一部となり、新しい生活の詩を紡いでいくことができるでしょう。さあ、その扉を開けて、あなたの新しい物語を始めてみませんか?ユニーブル渋谷神南で、あなたの生活が映画のように素晴らしいものとなりますように。
玄関を開けると、柔らかな光が…ユニーブル渋谷神南 3階 55.56㎡、それはまさに都会の中心で織り成される静謐なオアシスです。この高級賃貸物件は、渋谷の賑わいの中にありながら、その窓から見える景色は心を穏やかにしてくれる自然の美しさに包まれています。あなたがこの物件に住むことで、新たな物語が始まることでしょう。さあ、ユニーブル渋谷神南がどのようにあなたの日常を彩るのか、一緒に探検してみましょう。
玄関を開けると、柔らかな光が優しくあなたを迎え入れ、心地よい空気が広がります。ここはただの住まいではありません。ユニーブル渋谷神南は、あなたの人生の舞台。LLDK13.2帖の大空間が、生活を豊かに演出します。オープンな間取りは、まるで温かい日差しの中で愛する人と笑い合う瞬間を提供してくれるようです。そこに存在するのは、ただの家具や装飾品ではなく、思い出や感情が織りなす温もりです。
キッチンに立つと、調理の音がまるでジャンベのリズムのように心に響き、香ばしい食材が焼ける香りが鼻腔をくすぐります。あなたの手によって、食卓に並ぶ料理が愛のメッセージとなり、家族や友人との絆を深める大切な時間を作り出します。この場所は、あなたの料理の腕前を磨く舞台でもあるのです。
リビングから見える窓の外には、渋谷の象徴であるスクランブル交差点の活気があり、それを背にした街の流れは、まるで映画のワンシーンのようにあなたの心を躍らせることでしょう。そして、夜になると、街の灯りが星々となり、あなたの目の前で織り成される幻想的な景色が広がります。おしゃれなバーやカフェが立ち並ぶこのエリアは、まるで夢の中にいるかのような非日常を演出してくれるのです。
ユニーブル渋谷神南はまた、あなたのプライバシーを大切にした設計がなされています。オートロックや宅配ボックス、管理人がいることで、安心・安全な生活をサポートします。階段を上がって得られる3階の位置は、街の喧騒からほんの少し離れた特別な空間。ここでは、心の安らぎと自分自身を見つめ直す余韻を感じることができるのです。
最後に、この物件の周辺は、渋谷区宇田川町の文化と歴史が息づく場所。アートギャラリーやライブハウスが点在し、どこかしらにあなたの心をときめかせる要素が潜んでいます。ユニーブル渋谷神南に住むことで、あなた自身がこの街のアートの一部となり、新しい生活の詩を紡いでいくことができるでしょう。さあ、その扉を開けて、あなたの新しい物語を始めてみませんか?ユニーブル渋谷神南で、あなたの生活が映画のように素晴らしいものとなりますように。
バイブルスコア
バイブルスコア: 31.9
平均的なスコアです。
※バイブルスコア詳細はこちら
バイブルスコアとは独自のAI機械学習技術を利用した物件評価システムで、物件のおすすめ度を示します。最高得点は100点で、スコアが高いほど、よりおすすめの物件と評価されています。
写真
契約条件
| 賃料 | 予想金額:238,000〜258,000円程度 | 管理費 | 予想金額:18,000〜22,000円程度 |
| 礼金 | 非公開(アーカイブ) | 敷金 | 非公開(アーカイブ) |
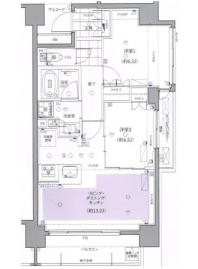
| フリーレント | なし | 平米数 | 55.56㎡ |
| 間取り | 2LDK | 大型収納 | |
| 契約期間 |
| 方角 | 北西 / 南西 |
| 更新料 | 契約形態 | 普通賃貸借契約 | |
| 取引態様 | 媒介 | 内見状況 | 入居中 |
| 入居時期 | 入居中 | SOHO・事務所 | |
| ペット | ペット可 | 間取り内訳 | 洋:6.5 洋:4.5 LDK:13.2 |
| キャンペーン情報・備考 | 本情報は賃料改定交渉の資料作成、収益物件の利回り試算、周辺エリアや最寄り駅の坪単価分析、次回募集開始時期の予測などにご活用いただけます。 | ||
※「どの不動産に頼めばいいのか分からない」「信頼できる営業マンの話を聞きたい」「一番親切な会社と契約したい」とお悩みの方におすすめなのが「高級賃貸バイブル」です。
高級賃貸バイブルは業界10年以上の熟練スタッフ群がお客様ファーストで対応します。
下記ボタンから、まずは無料でご相談下さい。
※内覧をご希望の際には、どうぞ物件のエントランス前にてお待ち合わせくださいませ。ご内覧後は、同じ場所でお別れとさせていただきます。お客様のご都合に合わせたスムーズなご案内を心がけておりますので、ご質問等がございましたら何なりとお申し付けください。 物件概要
| 物件名 |
| 築年月 |
|
|---|---|---|---|
| 所在地 | |||
| 交通 | |||
| 総戸数 |
| 総階数 |
|
| 構造 |
| ||
地図
物件までの道のりは、「拡大地図を表示」をクリックしてナビ機能をご利用ください。
部屋設備

















建物設備

TVモニターホン

エレベーター

オートロック

宅配ボックス

敷地内ゴミ置場

管理人

駐輪場
ユニーブル渋谷神南の現在募集中のお部屋
- No rooms found for this property.

















