
| 賃料 | 予想金額:1,480,000〜1,500,000円程度 | 管理費 | 予想金額:0〜2,000円程度 |
| 礼金/敷金 | 非公開(アーカイブ) | 平米数 | 209.5㎡ |
| 初期費用概算(参考) | 目安:6,746,500〜6,846,500 円 | みなし賃料(月額・参考) | 1,590,552〜1,610,552 円 |
| 備考 | 本ページは過去募集のアーカイブです。表示の金額は周辺相場・過去募集を踏まえた参考レンジであり、実際の契約金額・条件ではありません。 | ||
※上記みなし賃料(月額)は仲介手数料割引・無料&キャッシュバックを加味した高級賃貸バイブル限定の金額です。一般的なみなし賃料とは異なります。
【建物ページ】ラ・トゥール代官山の詳細・最新空室はこちら▶▶選ばれる理由
仲介手数料無料・キャンペーン情報(毎月15名様限定)
〇仲介手数料割引キャンペーン
ラ・トゥール代官山 A402の口コミ・レビュー
ラ・トゥール代官山 A402。ここでの生活は、まるで映画のワンシーンを切り取ったかのような至福の瞬間に満ちています。209.5㎡の広大な空間は、心地よい風を運ぶ西の窓から、柔らかな陽射しを受けながら、豊かな感性を育む場所となっています。代官山の街並みが持つ独特のエレガンスと文化が、あなたを温かく迎え入れ、特別な日常を約束します。
あなたが「ラ・トゥール代官山 A402」に足を踏み入れる瞬間、その…ラ・トゥール代官山 A402。ここでの生活は、まるで映画のワンシーンを切り取ったかのような至福の瞬間に満ちています。209.5㎡の広大な空間は、心地よい風を運ぶ西の窓から、柔らかな陽射しを受けながら、豊かな感性を育む場所となっています。代官山の街並みが持つ独特のエレガンスと文化が、あなたを温かく迎え入れ、特別な日常を約束します。
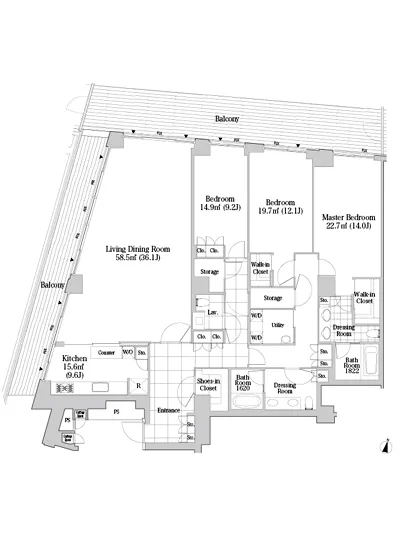
あなたが「ラ・トゥール代官山 A402」に足を踏み入れる瞬間、その広々としたLDKは、まるで心の奥に灯る火をさらに大きく燃え上がらせるかのように感じられます。36.1帖の空間は、心地良い風を受けて、まるで波の音が響くビーチへと誘ってくれるかのよう。友人たちとともに心温まるディナーを楽しむ姿が目に浮かび、食材の香りが食卓を彩るでしょう。洗練されたデザインは、シンプルでありながらも洗練された美しさを持ち、訪れる人々の心を掴んで離しません。
特にキッチン、9.6帖の空間は、まるで魔法のような場所です。一流のシェフが料理を作るように旅するような体験を与えてくれるでしょう。隣接する14帖、12.1帖、9.2帖の各寝室は、心地よい眠りへと導く安らぎの空間であり、夜になると星々がささやきかけるような静けさに包まれます。目覚めたときには、朝の陽光があなたを優しく包み込み、新しい一日の始まりを祝福してくれるでしょう。
ラ・トゥール代官山 A402は、ただの住まいではありません、それはまるで文化の緞帳のように、代官山という特別なエリアの魅力と調和しています。周りにはアートギャラリーやカフェが点在し、街へと繰り出す際には、まるで新たな発見に満ちた冒険に出かけるような気持ちになることでしょう。あなたの足元には、代官山駅がわずか徒歩8分の距離であり、都会の喧騒と静寂を巧みに調和させる立地です。
この物件は、24時間管理された安全な環境と共に、まるで高貴な城のように、エレガントなオートロックやモニターホンがあなたを守ります。フロントサービスやラウンジ、フィットネスルームなど、日々の生活が豊かさを増すための設備が整っています。ゲストルームで特別なゲストを迎え、共に思い出を創造する瞬間は、まるで映画のクライマックスのような感動を与えてくれます。
「ラ・トゥール代官山 A402」では、暮らすことがアートであり、日常こそが特別な体験であることを感じられます。どんな時でも心を躍らせ、あなたの人生のストーリーの舞台となることでしょう。ここには、五感を刺激する魅力が溢れ、あなたの心をとらえて離しません。新たな出発を、この地で共に叶えませんか。
あなたが「ラ・トゥール代官山 A402」に足を踏み入れる瞬間、その…ラ・トゥール代官山 A402。ここでの生活は、まるで映画のワンシーンを切り取ったかのような至福の瞬間に満ちています。209.5㎡の広大な空間は、心地よい風を運ぶ西の窓から、柔らかな陽射しを受けながら、豊かな感性を育む場所となっています。代官山の街並みが持つ独特のエレガンスと文化が、あなたを温かく迎え入れ、特別な日常を約束します。
あなたが「ラ・トゥール代官山 A402」に足を踏み入れる瞬間、その広々としたLDKは、まるで心の奥に灯る火をさらに大きく燃え上がらせるかのように感じられます。36.1帖の空間は、心地良い風を受けて、まるで波の音が響くビーチへと誘ってくれるかのよう。友人たちとともに心温まるディナーを楽しむ姿が目に浮かび、食材の香りが食卓を彩るでしょう。洗練されたデザインは、シンプルでありながらも洗練された美しさを持ち、訪れる人々の心を掴んで離しません。
特にキッチン、9.6帖の空間は、まるで魔法のような場所です。一流のシェフが料理を作るように旅するような体験を与えてくれるでしょう。隣接する14帖、12.1帖、9.2帖の各寝室は、心地よい眠りへと導く安らぎの空間であり、夜になると星々がささやきかけるような静けさに包まれます。目覚めたときには、朝の陽光があなたを優しく包み込み、新しい一日の始まりを祝福してくれるでしょう。
ラ・トゥール代官山 A402は、ただの住まいではありません、それはまるで文化の緞帳のように、代官山という特別なエリアの魅力と調和しています。周りにはアートギャラリーやカフェが点在し、街へと繰り出す際には、まるで新たな発見に満ちた冒険に出かけるような気持ちになることでしょう。あなたの足元には、代官山駅がわずか徒歩8分の距離であり、都会の喧騒と静寂を巧みに調和させる立地です。
この物件は、24時間管理された安全な環境と共に、まるで高貴な城のように、エレガントなオートロックやモニターホンがあなたを守ります。フロントサービスやラウンジ、フィットネスルームなど、日々の生活が豊かさを増すための設備が整っています。ゲストルームで特別なゲストを迎え、共に思い出を創造する瞬間は、まるで映画のクライマックスのような感動を与えてくれます。
「ラ・トゥール代官山 A402」では、暮らすことがアートであり、日常こそが特別な体験であることを感じられます。どんな時でも心を躍らせ、あなたの人生のストーリーの舞台となることでしょう。ここには、五感を刺激する魅力が溢れ、あなたの心をとらえて離しません。新たな出発を、この地で共に叶えませんか。
バイブルスコア
バイブルスコア: 68.6
かなり条件の良い物件です、即仮押さえをおすすめする物件です!
このお部屋は、現在ご入居中のため空室情報はございません。ただし、将来的に募集が開始される際、バイブルスコアにおいて非常に高い評価が期待されます。特にご興味をお持ちの方は、今のうちにブックマークやお気に入りに登録していただくと、募集開始のお知らせをすぐに受け取ることができます。是非ともご検討くださいませ。
※バイブルスコア詳細はこちら
バイブルスコアとは独自のAI機械学習技術を利用した物件評価システムで、物件のおすすめ度を示します。最高得点は100点で、スコアが高いほど、よりおすすめの物件と評価されています。
写真
契約条件
| 賃料 | 予想金額:1,480,000〜1,500,000円程度 | 管理費 | 予想金額:0〜2,000円程度 |
| 礼金 | 非公開(アーカイブ) | 敷金 | 非公開(アーカイブ) |
| フリーレント | なし | 平米数 | 209.5㎡ |
| 間取り | 3LDK | 大型収納 | 2WIC+SIC |
| 契約期間 | 方角 | 西 | |
| 更新料 | 契約形態 | 定期借家契約 | |
| 取引態様 | 媒介 | 内見状況 | 入居中 |
| 入居時期 | 入居中 | SOHO・事務所 | |
| ペット | ペット可 | 間取り内訳 | LD=36.1J / K=9.6J / BR=14J / BR=12.1J / BR=9.2J |
| キャンペーン情報・備考 | 本情報は賃料改定交渉の資料作成、収益物件の利回り試算、周辺エリアや最寄り駅の坪単価分析、次回募集開始時期の予測などにご活用いただけます。 | ||
※「どの不動産に頼めばいいのか分からない」「信頼できる営業マンの話を聞きたい」「一番親切な会社と契約したい」とお悩みの方におすすめなのが「高級賃貸バイブル」です。
高級賃貸バイブルは業界10年以上の熟練スタッフ群がお客様ファーストで対応します。
下記ボタンから、まずは無料でご相談下さい。
※内覧をご希望の際には、どうぞ物件のエントランス前にてお待ち合わせくださいませ。ご内覧後は、同じ場所でお別れとさせていただきます。お客様のご都合に合わせたスムーズなご案内を心がけておりますので、ご質問等がございましたら何なりとお申し付けください。 物件概要
| 物件名 |
| 築年月 |
|
|---|---|---|---|
| 所在地 | |||
| 交通 | |||
| 総戸数 |
| 総階数 |
|
| 構造 |
| ||
地図
物件までの道のりは、「拡大地図を表示」をクリックしてナビ機能をご利用ください。
部屋設備





















建物設備

24時間管理

TVモニターホン

エレベーター

オートロック

ゲストルーム

バイク置場

フィットネス

フロントサービス

ラウンジ

宅配ボックス

敷地内ゴミ置場

駐車場平置き

駐車場機械式

駐輪場
ラ・トゥール代官山の現在募集中のお部屋
- No rooms found for this property.






























