
| 賃料 | 予想金額:1,930,000〜1,950,000円程度 | 管理費 | 予想金額:0〜2,000円程度 |
| 礼金/敷金 | 非公開(アーカイブ) | 平米数 | 265.7㎡ |
| 初期費用概算(参考) | 目安:8,771,500〜8,871,500 円 | みなし賃料(月額・参考) | 2,073,365〜2,093,365 円 |
| 備考 | 本ページは過去募集のアーカイブです。表示の金額は周辺相場・過去募集を踏まえた参考レンジであり、実際の契約金額・条件ではありません。 | ||
※上記みなし賃料(月額)は仲介手数料割引・無料&キャッシュバックを加味した高級賃貸バイブル限定の金額です。一般的なみなし賃料とは異なります。
【建物ページ】ラ・トゥール代官山の詳細・最新空室はこちら▶▶選ばれる理由
仲介手数料無料・キャンペーン情報(毎月15名様限定)
〇仲介手数料割引キャンペーン
ラ・トゥール代官山 H501の口コミ・レビュー
ラ・トゥール代官山 H501。この名前を耳にした瞬間、あなたはまるで特別な物語の一部になったかのような高揚感を覚えることでしょう。東京都渋谷区鶯谷町13-1に位置するこの美しい住まいは、まさに都会のオアシス。ここでの生活は、日常の喧騒を忘れさせてくれる特別な体験となるのです。
ラ・トゥール代官山 H501の扉を開けた瞬間、広がるのは265.7㎡ものゆとりある空間。心が躍る40.6帖のLDKは、洗…ラ・トゥール代官山 H501。この名前を耳にした瞬間、あなたはまるで特別な物語の一部になったかのような高揚感を覚えることでしょう。東京都渋谷区鶯谷町13-1に位置するこの美しい住まいは、まさに都会のオアシス。ここでの生活は、日常の喧騒を忘れさせてくれる特別な体験となるのです。
ラ・トゥール代官山 H501の扉を開けた瞬間、広がるのは265.7㎡ものゆとりある空間。心が躍る40.6帖のLDKは、洗練されたデザインと心地よい光が溢れ、まるで優雅な舞踏会の舞台に立っているかのようです。大きな窓から差し込む朝日が、柔らかく木の温もりを感じさせるフローリングを照らし、部屋中に清々しい香りを運びます。あなたはここで、朝のコーヒーの豊かな香りとともに、静かなひとときを楽しむことができるのです。
さらに、キッチンの8帖のスペースは、料理の楽しさを倍増させる場所。最高の器具に囲まれ、美しい食材を使っての料理が、まるでアートのように感じられます。手先で感じる食材の質感や、鍋とフライパンが奏でる軽快な音楽が、あなたの創造力を刺激し、毎日を特別なものにしてくれることでしょう。
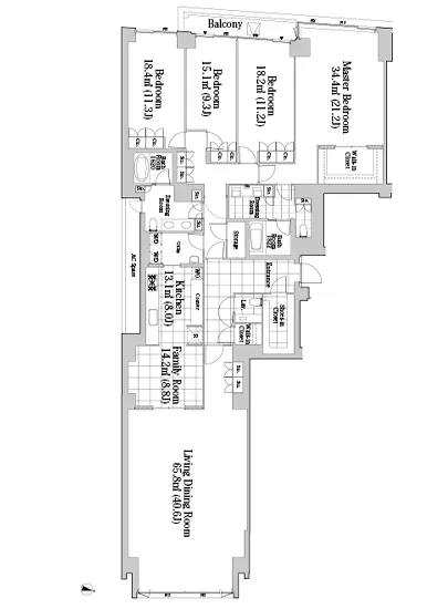
ラ・トゥール代官山 H501には、贅沢なプライベート空間として4つの寝室があります。それぞれの部屋は、訪れるたびに驚きと安らぎを与えてくれます。21.2帖の主寝室はまるで空に浮かぶ夢の中。穏やかな色合いで統一された空間は、心を解きほぐし、深い眠りへと誘います。11.3帖、11.2帖、9.3帖の他の寝室も、あなたの親しい人々を迎え入れるための完璧な場所となります。
ラ・トゥール代官山 H501の魅力は、設備にあらず。24時間管理されたこの住まいは、安心感を持ってあなたを包み込みます。オートロックやTVモニターホンは、まるで守護霊のように、あなたの生活をサポートしてくれる存在です。また、フィットネスやラウンジ、ゲストルームは、友人たちとの楽しい時間を過ごすための特別な舞台を提供します。想い出は、ここで育まれるのです。
周辺には、代官山の独特な文化や歴史が息づいています。近隣のカフェやアートギャラリーは、あなたの日常に彩りを与え、心を豊かにしてくれるでしょう。代官山駅から徒歩8分の距離に位置するラ・トゥール代官山 H501は、都会の喧騒から少し離れた、静かな場所に佇んでいますが、どこへでもアクセスしやすい理想的なロケーションです。
ラ・トゥール代官山 H501は、ただの住まいではなく、あなたの新しい物語の舞台です。毎日が映画の一幕のように、心に残る瞬間を提供してくれることでしょう。この特別な空間で、あなたの人生を彩る新しい章を始めてみませんか。あなたを待っているのは、かけがえのないひとときだけなのです。
ラ・トゥール代官山 H501の扉を開けた瞬間、広がるのは265.7㎡ものゆとりある空間。心が躍る40.6帖のLDKは、洗…ラ・トゥール代官山 H501。この名前を耳にした瞬間、あなたはまるで特別な物語の一部になったかのような高揚感を覚えることでしょう。東京都渋谷区鶯谷町13-1に位置するこの美しい住まいは、まさに都会のオアシス。ここでの生活は、日常の喧騒を忘れさせてくれる特別な体験となるのです。
ラ・トゥール代官山 H501の扉を開けた瞬間、広がるのは265.7㎡ものゆとりある空間。心が躍る40.6帖のLDKは、洗練されたデザインと心地よい光が溢れ、まるで優雅な舞踏会の舞台に立っているかのようです。大きな窓から差し込む朝日が、柔らかく木の温もりを感じさせるフローリングを照らし、部屋中に清々しい香りを運びます。あなたはここで、朝のコーヒーの豊かな香りとともに、静かなひとときを楽しむことができるのです。
さらに、キッチンの8帖のスペースは、料理の楽しさを倍増させる場所。最高の器具に囲まれ、美しい食材を使っての料理が、まるでアートのように感じられます。手先で感じる食材の質感や、鍋とフライパンが奏でる軽快な音楽が、あなたの創造力を刺激し、毎日を特別なものにしてくれることでしょう。
ラ・トゥール代官山 H501には、贅沢なプライベート空間として4つの寝室があります。それぞれの部屋は、訪れるたびに驚きと安らぎを与えてくれます。21.2帖の主寝室はまるで空に浮かぶ夢の中。穏やかな色合いで統一された空間は、心を解きほぐし、深い眠りへと誘います。11.3帖、11.2帖、9.3帖の他の寝室も、あなたの親しい人々を迎え入れるための完璧な場所となります。
ラ・トゥール代官山 H501の魅力は、設備にあらず。24時間管理されたこの住まいは、安心感を持ってあなたを包み込みます。オートロックやTVモニターホンは、まるで守護霊のように、あなたの生活をサポートしてくれる存在です。また、フィットネスやラウンジ、ゲストルームは、友人たちとの楽しい時間を過ごすための特別な舞台を提供します。想い出は、ここで育まれるのです。
周辺には、代官山の独特な文化や歴史が息づいています。近隣のカフェやアートギャラリーは、あなたの日常に彩りを与え、心を豊かにしてくれるでしょう。代官山駅から徒歩8分の距離に位置するラ・トゥール代官山 H501は、都会の喧騒から少し離れた、静かな場所に佇んでいますが、どこへでもアクセスしやすい理想的なロケーションです。
ラ・トゥール代官山 H501は、ただの住まいではなく、あなたの新しい物語の舞台です。毎日が映画の一幕のように、心に残る瞬間を提供してくれることでしょう。この特別な空間で、あなたの人生を彩る新しい章を始めてみませんか。あなたを待っているのは、かけがえのないひとときだけなのです。
バイブルスコア
バイブルスコア: 21.4
平均的なスコアです。
※バイブルスコア詳細はこちら
バイブルスコアとは独自のAI機械学習技術を利用した物件評価システムで、物件のおすすめ度を示します。最高得点は100点で、スコアが高いほど、よりおすすめの物件と評価されています。
写真
契約条件
| 賃料 | 予想金額:1,930,000〜1,950,000円程度 | 管理費 | 予想金額:0〜2,000円程度 |
| 礼金 | 非公開(アーカイブ) | 敷金 | 非公開(アーカイブ) |
| フリーレント | なし | 平米数 | 265.7㎡ |
| 間取り | 4LDK | 大型収納 | WIC+SIC |
| 契約期間 | 方角 | 東 | |
| 更新料 | 契約形態 | 定期借家契約 | |
| 取引態様 | 媒介 | 内見状況 | 入居中 |
| 入居時期 | 入居中 | SOHO・事務所 | |
| ペット | ペット可 | 間取り内訳 | LD=40.6J / K=8J / F=8.8J / BR=21.2J / BR=11.3J / BR=11.2J / BR=9.3J |
| キャンペーン情報・備考 | 本情報は賃料改定交渉の資料作成、収益物件の利回り試算、周辺エリアや最寄り駅の坪単価分析、次回募集開始時期の予測などにご活用いただけます。 | ||
※「どの不動産に頼めばいいのか分からない」「信頼できる営業マンの話を聞きたい」「一番親切な会社と契約したい」とお悩みの方におすすめなのが「高級賃貸バイブル」です。
高級賃貸バイブルは業界10年以上の熟練スタッフ群がお客様ファーストで対応します。
下記ボタンから、まずは無料でご相談下さい。
※内覧をご希望の際には、どうぞ物件のエントランス前にてお待ち合わせくださいませ。ご内覧後は、同じ場所でお別れとさせていただきます。お客様のご都合に合わせたスムーズなご案内を心がけておりますので、ご質問等がございましたら何なりとお申し付けください。 物件概要
| 物件名 |
| 築年月 |
|
|---|---|---|---|
| 所在地 | |||
| 交通 | |||
| 総戸数 |
| 総階数 |
|
| 構造 |
| ||
地図
物件までの道のりは、「拡大地図を表示」をクリックしてナビ機能をご利用ください。
部屋設備



















建物設備

24時間管理

TVモニターホン

エレベーター

オートロック

ゲストルーム

バイク置場

フィットネス

フロントサービス

ラウンジ

宅配ボックス

敷地内ゴミ置場

駐車場平置き

駐車場機械式

駐輪場
ラ・トゥール代官山の現在募集中のお部屋
- No rooms found for this property.






























