
| 賃料 | 予想金額:1,680,000〜1,700,000円程度 | 管理費 | 予想金額:0〜2,000円程度 |
| 礼金/敷金 | 非公開(アーカイブ) | 平米数 | 216.7㎡ |
| 初期費用概算(参考) | 目安:7,646,500〜7,746,500 円 | みなし賃料(月額・参考) | 1,805,135〜1,825,135 円 |
| 備考 | 本ページは過去募集のアーカイブです。表示の金額は周辺相場・過去募集を踏まえた参考レンジであり、実際の契約金額・条件ではありません。 | ||
※上記みなし賃料(月額)は仲介手数料割引・無料&キャッシュバックを加味した高級賃貸バイブル限定の金額です。一般的なみなし賃料とは異なります。
【建物ページ】ラ・トゥール代官山の詳細・最新空室はこちら▶▶選ばれる理由
仲介手数料無料・キャンペーン情報(毎月15名様限定)
〇仲介手数料割引キャンペーン
ラ・トゥール代官山 J501の口コミ・レビュー
ラ・トゥール代官山 J501。この名は、都会の喧騒を背にした安らぎのオアシスのごとき存在であり、東京の心臓部に坐するアートとカルチャーの交差点に佇んでいます。専有面積216.7㎡は、まるで豊穣な大地のように広がり、貴方が新たな生活を始めるための心地よい舞台となることでしょう。大きな窓からは、朝の光が東の空を照らし、優しい日差しがリビングの30.8帖を満たします。ここに流れ込む光は、まるで美術館の照…ラ・トゥール代官山 J501。この名は、都会の喧騒を背にした安らぎのオアシスのごとき存在であり、東京の心臓部に坐するアートとカルチャーの交差点に佇んでいます。専有面積216.7㎡は、まるで豊穣な大地のように広がり、貴方が新たな生活を始めるための心地よい舞台となることでしょう。大きな窓からは、朝の光が東の空を照らし、優しい日差しがリビングの30.8帖を満たします。ここに流れ込む光は、まるで美術館の照明のように、空間を温かく包み込むのです。
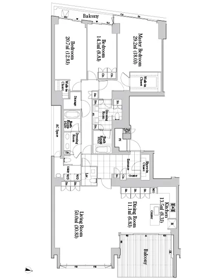
キッチンは8.3帖の広々とした空間で、料理がまるで一つのアート作品のように感じられることでしょう。新鮮な食材の香りがキッチンいっぱいに広がり、料理をする楽しさを倍増させます。ダイニングは6.8帖で、家族や友人と共に充実した時間を過ごすことができ、会話が弾む空間となります。さらに、18帖、12.8帖、8.8帖と、個性豊かな三つの洋室は、静けさとプライバシーを保ちながら、夢のない世界に誘ってくれます。これらの部屋は、まるで絵画が描かれたキャンバスのように、貴方の生活を彩ることでしょう。
館内には24時間管理の安心感があり、TVモニターホンは訪問者を優しく迎え入れ、オートロックがあなたの安全を確保します。フィットネスルームで身体を動かし、ラウンジでのひととき、ゲストルームで友人を招待する贅沢な生活が貴方を待っています。ここでの生活はまるで映画のワンシーンのように、毎日が特別な瞬間として心に刻まれることでしょう。
周囲には代官山の洗練されたショップやカフェが豊富に点在し、歴史と文化の香りが漂います。文化的なイベントやアートギャラリーへのアクセスは、貴方の感性をさらに高め、心を豊かにすることでしょう。代官山駅からは徒歩8分、まるで時間が緩やかに流れ、散歩が日常に溶け込むかのよう。人生の小さな贅沢が、毎日の中に息づいていくのです。
ラ・トゥール代官山 J501は、ただの住まいではなく、貴方の新たな物語が始まる場所です。四季折々の景色や、周囲の音、香りと共に、貴方自身がこの美しい空間の一部となり、日々の営みが織りなす物語を刻んでいくでしょう。新たな生活が、ここで始まることを心から願っています。
キッチンは8.3帖の広々とした空間で、料理がまるで一つのアート作品のように感じられることでしょう。新鮮な食材の香りがキッチンいっぱいに広がり、料理をする楽しさを倍増させます。ダイニングは6.8帖で、家族や友人と共に充実した時間を過ごすことができ、会話が弾む空間となります。さらに、18帖、12.8帖、8.8帖と、個性豊かな三つの洋室は、静けさとプライバシーを保ちながら、夢のない世界に誘ってくれます。これらの部屋は、まるで絵画が描かれたキャンバスのように、貴方の生活を彩ることでしょう。
館内には24時間管理の安心感があり、TVモニターホンは訪問者を優しく迎え入れ、オートロックがあなたの安全を確保します。フィットネスルームで身体を動かし、ラウンジでのひととき、ゲストルームで友人を招待する贅沢な生活が貴方を待っています。ここでの生活はまるで映画のワンシーンのように、毎日が特別な瞬間として心に刻まれることでしょう。
周囲には代官山の洗練されたショップやカフェが豊富に点在し、歴史と文化の香りが漂います。文化的なイベントやアートギャラリーへのアクセスは、貴方の感性をさらに高め、心を豊かにすることでしょう。代官山駅からは徒歩8分、まるで時間が緩やかに流れ、散歩が日常に溶け込むかのよう。人生の小さな贅沢が、毎日の中に息づいていくのです。
ラ・トゥール代官山 J501は、ただの住まいではなく、貴方の新たな物語が始まる場所です。四季折々の景色や、周囲の音、香りと共に、貴方自身がこの美しい空間の一部となり、日々の営みが織りなす物語を刻んでいくでしょう。新たな生活が、ここで始まることを心から願っています。
バイブルスコア
バイブルスコア: 43
条件のいい物件です、引っ越しが2か月以内の場合は仮申し込みを検討すべき物件です。
※バイブルスコア詳細はこちら
バイブルスコアとは独自のAI機械学習技術を利用した物件評価システムで、物件のおすすめ度を示します。最高得点は100点で、スコアが高いほど、よりおすすめの物件と評価されています。
写真
契約条件
| 賃料 | 予想金額:1,680,000〜1,700,000円程度 | 管理費 | 予想金額:0〜2,000円程度 |
| 礼金 | 非公開(アーカイブ) | 敷金 | 非公開(アーカイブ) |
| フリーレント | なし | 平米数 | 216.7㎡ |
| 間取り | 3LDK | 大型収納 | 2WIC+SIC |
| 契約期間 | 方角 | 東 | |
| 更新料 | 契約形態 | 定期借家契約 | |
| 取引態様 | 媒介 | 内見状況 | 入居中 |
| 入居時期 | 入居中 | SOHO・事務所 | |
| ペット | ペット可 | 間取り内訳 | L=30.8J / K=8.3J / D=6.8J / BR=18J / BR=12.8J / BR=8.8J |
| キャンペーン情報・備考 | 本情報は賃料改定交渉の資料作成、収益物件の利回り試算、周辺エリアや最寄り駅の坪単価分析、次回募集開始時期の予測などにご活用いただけます。 | ||
※「どの不動産に頼めばいいのか分からない」「信頼できる営業マンの話を聞きたい」「一番親切な会社と契約したい」とお悩みの方におすすめなのが「高級賃貸バイブル」です。
高級賃貸バイブルは業界10年以上の熟練スタッフ群がお客様ファーストで対応します。
下記ボタンから、まずは無料でご相談下さい。
※内覧をご希望の際には、どうぞ物件のエントランス前にてお待ち合わせくださいませ。ご内覧後は、同じ場所でお別れとさせていただきます。お客様のご都合に合わせたスムーズなご案内を心がけておりますので、ご質問等がございましたら何なりとお申し付けください。 物件概要
| 物件名 |
| 築年月 |
|
|---|---|---|---|
| 所在地 | |||
| 交通 | |||
| 総戸数 |
| 総階数 |
|
| 構造 |
| ||
地図
物件までの道のりは、「拡大地図を表示」をクリックしてナビ機能をご利用ください。
部屋設備




















建物設備

24時間管理

TVモニターホン

エレベーター

オートロック

ゲストルーム

バイク置場

フィットネス

フロントサービス

ラウンジ

宅配ボックス

敷地内ゴミ置場

駐車場平置き

駐車場機械式

駐輪場
ラ・トゥール代官山の現在募集中のお部屋
- No rooms found for this property.






























