
| 賃料 | 予想金額:1,880,000〜1,900,000円程度 | 管理費 | 予想金額:0〜2,000円程度 |
| 礼金/敷金 | 非公開(アーカイブ) | 平米数 | 235.6㎡ |
| 初期費用概算(参考) | 目安:8,546,500〜8,646,500 円 | みなし賃料(月額・参考) | 2,019,719〜2,039,719 円 |
| 備考 | 本ページは過去募集のアーカイブです。表示の金額は周辺相場・過去募集を踏まえた参考レンジであり、実際の契約金額・条件ではありません。 | ||
※上記みなし賃料(月額)は仲介手数料割引・無料&キャッシュバックを加味した高級賃貸バイブル限定の金額です。一般的なみなし賃料とは異なります。
【建物ページ】ラ・トゥール代官山の詳細・最新空室はこちら▶▶選ばれる理由
仲介手数料無料・キャンペーン情報(毎月15名様限定)
〇仲介手数料割引キャンペーン
ラ・トゥール代官山 B502の口コミ・レビュー
ラ・トゥール代官山 B502。この名が響く瞬間、まるで運命に導かれるように高級感が漂います。東京都渋谷区鶯谷町13-1に位置するこの物件は、都会の喧騒を忘れさせる静けさと、あなたの日常に特別な彩りを添える空間なのです。
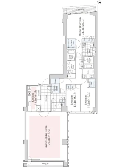
専有面積235.6㎡という広さは、まさに空を包み込むような自由な広がりを持っています。その中で、LDK47.3帖のリビングルームは、まるで家族の笑い声や友人との楽しい会話が響き渡…ラ・トゥール代官山 B502。この名が響く瞬間、まるで運命に導かれるように高級感が漂います。東京都渋谷区鶯谷町13-1に位置するこの物件は、都会の喧騒を忘れさせる静けさと、あなたの日常に特別な彩りを添える空間なのです。
専有面積235.6㎡という広さは、まさに空を包み込むような自由な広がりを持っています。その中で、LDK47.3帖のリビングルームは、まるで家族の笑い声や友人との楽しい会話が響き渡る温かい舞台を提供します。窓から差し込む南の光は、恍惚とした金色の絨毯のように部屋を包み、心を優しく癒してくれることでしょう。
キッチンは8.2帖のスペースが用意されており、料理をする手が自然と踊りだすような楽しさを誘います。新鮮な食材を手にした瞬間、香るバジルやオリーブオイルの芳香が、食卓の会話を彩ります。そして、21帖のスタイリッシュな主寝室では、穏やかな夢の世界への扉が開かれ、10帖と8.1帖の洋室が友人や家族の温もりを呼び込みます。
ラ・トゥール代官山 B502に住むことは、まるで映画の一幕を生きるような特別な体験です。エレベーターで降り立つと、まるで高級ホテルのフロントサービスを受けるように、洗練された空間が広がります。24時間管理の安心感が、あなたの生活に静かな安定をもたらし、オートロックの安心感が、あなたのプライバシーを守ります。
フィットネスルームでのトレーニングは、まるで自分自身を磨く儀式のようで、運動後の心地よい疲労感がさらなる充実した日々を予感させます。また、ラウンジでの一杯のコーヒーは、都会の喧騒を忘れさせ、心に刻まれる瞬間を創り出します。
周囲の歴史と文化も、ラ・トゥール代官山 B502の魅力を引き立てています。代官山駅から徒歩8分の距離には、アートギャラリーや個性的なカフェが点在し、毎日の散策が新たな発見に満ちています。歴史的な街並みを歩けば、あなたの心が未来への夢を育むことでしょう。
この物件は、ただの住まいではなく、生活そのものを愛でるための舞台です。ここでの日常は、ただの一日ではなく、一つ一つの瞬間があなたにとって特別な意味を持つことでしょう。ラ・トゥール代官山 B502での生活は、あなたの人生をまるで名作映画のように彩ります。あなたの心に響くこの空間で、新たな物語を紡ぎ始めてください。
専有面積235.6㎡という広さは、まさに空を包み込むような自由な広がりを持っています。その中で、LDK47.3帖のリビングルームは、まるで家族の笑い声や友人との楽しい会話が響き渡…ラ・トゥール代官山 B502。この名が響く瞬間、まるで運命に導かれるように高級感が漂います。東京都渋谷区鶯谷町13-1に位置するこの物件は、都会の喧騒を忘れさせる静けさと、あなたの日常に特別な彩りを添える空間なのです。
専有面積235.6㎡という広さは、まさに空を包み込むような自由な広がりを持っています。その中で、LDK47.3帖のリビングルームは、まるで家族の笑い声や友人との楽しい会話が響き渡る温かい舞台を提供します。窓から差し込む南の光は、恍惚とした金色の絨毯のように部屋を包み、心を優しく癒してくれることでしょう。
キッチンは8.2帖のスペースが用意されており、料理をする手が自然と踊りだすような楽しさを誘います。新鮮な食材を手にした瞬間、香るバジルやオリーブオイルの芳香が、食卓の会話を彩ります。そして、21帖のスタイリッシュな主寝室では、穏やかな夢の世界への扉が開かれ、10帖と8.1帖の洋室が友人や家族の温もりを呼び込みます。
ラ・トゥール代官山 B502に住むことは、まるで映画の一幕を生きるような特別な体験です。エレベーターで降り立つと、まるで高級ホテルのフロントサービスを受けるように、洗練された空間が広がります。24時間管理の安心感が、あなたの生活に静かな安定をもたらし、オートロックの安心感が、あなたのプライバシーを守ります。
フィットネスルームでのトレーニングは、まるで自分自身を磨く儀式のようで、運動後の心地よい疲労感がさらなる充実した日々を予感させます。また、ラウンジでの一杯のコーヒーは、都会の喧騒を忘れさせ、心に刻まれる瞬間を創り出します。
周囲の歴史と文化も、ラ・トゥール代官山 B502の魅力を引き立てています。代官山駅から徒歩8分の距離には、アートギャラリーや個性的なカフェが点在し、毎日の散策が新たな発見に満ちています。歴史的な街並みを歩けば、あなたの心が未来への夢を育むことでしょう。
この物件は、ただの住まいではなく、生活そのものを愛でるための舞台です。ここでの日常は、ただの一日ではなく、一つ一つの瞬間があなたにとって特別な意味を持つことでしょう。ラ・トゥール代官山 B502での生活は、あなたの人生をまるで名作映画のように彩ります。あなたの心に響くこの空間で、新たな物語を紡ぎ始めてください。
バイブルスコア
バイブルスコア: 24.6
平均的なスコアです。
※バイブルスコア詳細はこちら
バイブルスコアとは独自のAI機械学習技術を利用した物件評価システムで、物件のおすすめ度を示します。最高得点は100点で、スコアが高いほど、よりおすすめの物件と評価されています。
写真
契約条件
| 賃料 | 予想金額:1,880,000〜1,900,000円程度 | 管理費 | 予想金額:0〜2,000円程度 |
| 礼金 | 非公開(アーカイブ) | 敷金 | 非公開(アーカイブ) |
| フリーレント | なし | 平米数 | 235.6㎡ |
| 間取り | 3LDK | 大型収納 | 2WIC+SIC |
| 契約期間 | 方角 | 南 | |
| 更新料 | 契約形態 | 定期借家契約 | |
| 取引態様 | 媒介 | 内見状況 | 入居中 |
| 入居時期 | 入居中 | SOHO・事務所 | |
| ペット | ペット可 | 間取り内訳 | LD=47.3 / K=8.2J / BR=21J / BR=10J / BR=8.1J |
| キャンペーン情報・備考 | 本情報は賃料改定交渉の資料作成、収益物件の利回り試算、周辺エリアや最寄り駅の坪単価分析、次回募集開始時期の予測などにご活用いただけます。 | ||
※「どの不動産に頼めばいいのか分からない」「信頼できる営業マンの話を聞きたい」「一番親切な会社と契約したい」とお悩みの方におすすめなのが「高級賃貸バイブル」です。
高級賃貸バイブルは業界10年以上の熟練スタッフ群がお客様ファーストで対応します。
下記ボタンから、まずは無料でご相談下さい。
※内覧をご希望の際には、どうぞ物件のエントランス前にてお待ち合わせくださいませ。ご内覧後は、同じ場所でお別れとさせていただきます。お客様のご都合に合わせたスムーズなご案内を心がけておりますので、ご質問等がございましたら何なりとお申し付けください。 物件概要
| 物件名 |
| 築年月 |
|
|---|---|---|---|
| 所在地 | |||
| 交通 | |||
| 総戸数 |
| 総階数 |
|
| 構造 |
| ||
地図
物件までの道のりは、「拡大地図を表示」をクリックしてナビ機能をご利用ください。
部屋設備





















建物設備

24時間管理

TVモニターホン

エレベーター

オートロック

ゲストルーム

バイク置場

フィットネス

フロントサービス

ラウンジ

宅配ボックス

敷地内ゴミ置場

駐車場平置き

駐車場機械式

駐輪場
ラ・トゥール代官山の現在募集中のお部屋
- No rooms found for this property.






























