
| 賃料 | 予想金額:1,600,000〜1,620,000円程度 | 管理費 | 予想金額:0〜2,000円程度 |
| 礼金/敷金 | 非公開(アーカイブ) | 平米数 | 187.8㎡ |
| 初期費用概算(参考) | 目安:7,286,500〜7,386,500 円 | みなし賃料(月額・参考) | 1,719,302〜1,739,302 円 |
| 備考 | 本ページは過去募集のアーカイブです。表示の金額は周辺相場・過去募集を踏まえた参考レンジであり、実際の契約金額・条件ではありません。 | ||
※上記みなし賃料(月額)は仲介手数料割引・無料&キャッシュバックを加味した高級賃貸バイブル限定の金額です。一般的なみなし賃料とは異なります。
【建物ページ】ラ・トゥール代官山の詳細・最新空室はこちら▶▶選ばれる理由
仲介手数料無料・キャンペーン情報(毎月15名様限定)
〇仲介手数料割引キャンペーン
ラ・トゥール代官山 C602の口コミ・レビュー
ラ・トゥール代官山 C602。この言葉が耳に届いたその瞬間、あなたとラ・トゥール代官山との運命的な出会いが始まります。高級感に包まれたこの空間は、まさに時の流れを忘れさせる魔法のような場所。専有面積187.8㎡の広がりを持つラ・トゥール代官山は、まるで美しい絵画のように、住む人の心を豊かに染め上げていきます。
ドアを開けた瞬間、目に飛び込んでくるのは、自然光が優雅に舞い込むリビングダイニング28…ラ・トゥール代官山 C602。この言葉が耳に届いたその瞬間、あなたとラ・トゥール代官山との運命的な出会いが始まります。高級感に包まれたこの空間は、まさに時の流れを忘れさせる魔法のような場所。専有面積187.8㎡の広がりを持つラ・トゥール代官山は、まるで美しい絵画のように、住む人の心を豊かに染め上げていきます。
ドアを開けた瞬間、目に飛び込んでくるのは、自然光が優雅に舞い込むリビングダイニング28.7帖の空間。大きな窓からは夕陽が西に沈む様子を楽しむことができ、その美しい景色はまるで心を癒やすための特別な映画のワンシーンのようです。風が通り抜けるたびに、温かみのある光が揺れて、心地よい香りが広がります。その光は、あなたの毎日を少し特別なものに変えてくれるのです。
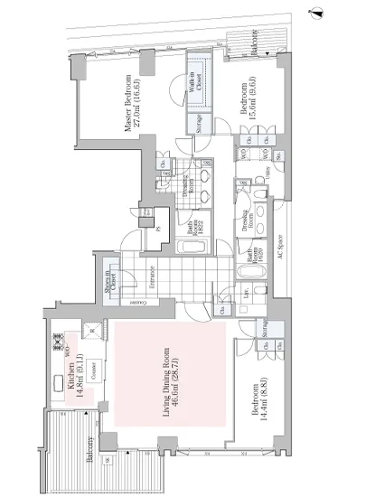
キッチンは9.1帖の広さを誇り、料理の腕前を振るうのに最適な空間。新鮮な食材の香りが立ち込め、あなたの創造力をかき立てます。ここで作る料理は、ただの食事ではなく、一つの芸術作品。家族や友人と囲むダイニングテーブルには、いつも温かい笑顔が溢れ、心が満たされることでしょう。
ラ・トゥール代官山はまた、各居室にそれぞれの個性が宿る9.6帖、8.8帖、16.6帖の寝室も完備。眠りにつく前のひととき、静寂の中に耳を澄ませば、遠くで蝉の声が響き、心地よい風が優しくあなたを包み込みます。ここでは、毎晩夢見る世界へと旅立っていくことができるのです。
そして、暮らしを彩るための特別な設備も充実。24時間管理の安心感、オートロックやTVモニターホンによるセキュリティ、フィットネスジムでの整った心身、ゲストルームでの訪問者を心から迎え入れることができるラウンジも完備しています。まるで高級ホテルに住んでいるかのような贅沢な時間を提供し、毎日が特別なものに感じられるでしょう。
周辺には代官山の洗練された街並みが広がり、文化と歴史が息づいています。美しいカフェやアートギャラリー、洗練されたショップが、あなたの日常をより一層素晴らしいものにしてくれます。ラ・トゥール代官山 C602での生活は、ただの居住空間ではなく、まるで映画の主人公になったかのような、夢溢れる毎日。あなたの新しい物語が、ここから始まるのです。
ドアを開けた瞬間、目に飛び込んでくるのは、自然光が優雅に舞い込むリビングダイニング28…ラ・トゥール代官山 C602。この言葉が耳に届いたその瞬間、あなたとラ・トゥール代官山との運命的な出会いが始まります。高級感に包まれたこの空間は、まさに時の流れを忘れさせる魔法のような場所。専有面積187.8㎡の広がりを持つラ・トゥール代官山は、まるで美しい絵画のように、住む人の心を豊かに染め上げていきます。
ドアを開けた瞬間、目に飛び込んでくるのは、自然光が優雅に舞い込むリビングダイニング28.7帖の空間。大きな窓からは夕陽が西に沈む様子を楽しむことができ、その美しい景色はまるで心を癒やすための特別な映画のワンシーンのようです。風が通り抜けるたびに、温かみのある光が揺れて、心地よい香りが広がります。その光は、あなたの毎日を少し特別なものに変えてくれるのです。
キッチンは9.1帖の広さを誇り、料理の腕前を振るうのに最適な空間。新鮮な食材の香りが立ち込め、あなたの創造力をかき立てます。ここで作る料理は、ただの食事ではなく、一つの芸術作品。家族や友人と囲むダイニングテーブルには、いつも温かい笑顔が溢れ、心が満たされることでしょう。
ラ・トゥール代官山はまた、各居室にそれぞれの個性が宿る9.6帖、8.8帖、16.6帖の寝室も完備。眠りにつく前のひととき、静寂の中に耳を澄ませば、遠くで蝉の声が響き、心地よい風が優しくあなたを包み込みます。ここでは、毎晩夢見る世界へと旅立っていくことができるのです。
そして、暮らしを彩るための特別な設備も充実。24時間管理の安心感、オートロックやTVモニターホンによるセキュリティ、フィットネスジムでの整った心身、ゲストルームでの訪問者を心から迎え入れることができるラウンジも完備しています。まるで高級ホテルに住んでいるかのような贅沢な時間を提供し、毎日が特別なものに感じられるでしょう。
周辺には代官山の洗練された街並みが広がり、文化と歴史が息づいています。美しいカフェやアートギャラリー、洗練されたショップが、あなたの日常をより一層素晴らしいものにしてくれます。ラ・トゥール代官山 C602での生活は、ただの居住空間ではなく、まるで映画の主人公になったかのような、夢溢れる毎日。あなたの新しい物語が、ここから始まるのです。
バイブルスコア
バイブルスコア: 52.5
条件のいい物件です、引っ越しが2か月以内の場合は仮申し込みを検討すべき物件です。
このお部屋は、現在ご入居中のため空室情報はございません。ただし、将来的に募集が開始される際、バイブルスコアにおいて非常に高い評価が期待されます。特にご興味をお持ちの方は、今のうちにブックマークやお気に入りに登録していただくと、募集開始のお知らせをすぐに受け取ることができます。是非ともご検討くださいませ。
※バイブルスコア詳細はこちら
バイブルスコアとは独自のAI機械学習技術を利用した物件評価システムで、物件のおすすめ度を示します。最高得点は100点で、スコアが高いほど、よりおすすめの物件と評価されています。
写真
契約条件
| 賃料 | 予想金額:1,600,000〜1,620,000円程度 | 管理費 | 予想金額:0〜2,000円程度 |
| 礼金 | 非公開(アーカイブ) | 敷金 | 非公開(アーカイブ) |
| フリーレント | なし | 平米数 | 187.8㎡ |
| 間取り | 3LDK | 大型収納 | WIC+SIC |
| 契約期間 | 方角 | 西 | |
| 更新料 | 契約形態 | 定期借家契約 | |
| 取引態様 | 媒介 | 内見状況 | 入居中 |
| 入居時期 | 入居中 | SOHO・事務所 | |
| ペット | ペット可 | 間取り内訳 | LD=28.7J / K=9.1J / BR=16.6J / BR=9.6J / BR=8.8J |
| キャンペーン情報・備考 | 本情報は賃料改定交渉の資料作成、収益物件の利回り試算、周辺エリアや最寄り駅の坪単価分析、次回募集開始時期の予測などにご活用いただけます。 | ||
※「どの不動産に頼めばいいのか分からない」「信頼できる営業マンの話を聞きたい」「一番親切な会社と契約したい」とお悩みの方におすすめなのが「高級賃貸バイブル」です。
高級賃貸バイブルは業界10年以上の熟練スタッフ群がお客様ファーストで対応します。
下記ボタンから、まずは無料でご相談下さい。
※内覧をご希望の際には、どうぞ物件のエントランス前にてお待ち合わせくださいませ。ご内覧後は、同じ場所でお別れとさせていただきます。お客様のご都合に合わせたスムーズなご案内を心がけておりますので、ご質問等がございましたら何なりとお申し付けください。 物件概要
| 物件名 |
| 築年月 |
|
|---|---|---|---|
| 所在地 | |||
| 交通 | |||
| 総戸数 |
| 総階数 |
|
| 構造 |
| ||
地図
物件までの道のりは、「拡大地図を表示」をクリックしてナビ機能をご利用ください。
部屋設備





















建物設備

24時間管理

TVモニターホン

エレベーター

オートロック

ゲストルーム

バイク置場

フィットネス

フロントサービス

ラウンジ

宅配ボックス

敷地内ゴミ置場

駐車場平置き

駐車場機械式

駐輪場
ラ・トゥール代官山の現在募集中のお部屋
- No rooms found for this property.






























