
| 賃料 | 予想金額:1,930,000〜1,950,000円程度 | 管理費 | 予想金額:0〜2,000円程度 |
| 礼金/敷金 | 非公開(アーカイブ) | 平米数 | 285.2㎡ |
| 初期費用概算(参考) | 目安:6,831,500〜6,931,500 円 | みなし賃料(月額・参考) | 2,032,948〜2,052,948 円 |
| 備考 | 本ページは過去募集のアーカイブです。表示の金額は周辺相場・過去募集を踏まえた参考レンジであり、実際の契約金額・条件ではありません。 | ||
※上記みなし賃料(月額)は仲介手数料割引・無料&キャッシュバックを加味した高級賃貸バイブル限定の金額です。一般的なみなし賃料とは異なります。
【建物ページ】ラ・トゥール代官山の詳細・最新空室はこちら▶▶選ばれる理由
仲介手数料無料・キャンペーン情報(毎月15名様限定)
〇仲介手数料割引キャンペーン
ラ・トゥール代官山 E201の口コミ・レビュー
ラ・トゥール代官山 E201。これはただの住所ではなく、都会の喧騒から解き放たれた夢のような空間の名前です。285.2㎡の広大な専有面積を誇るこの物件は、まるで優雅な白鳥が静寂な湖面に浮かぶかのように、穏やかな雰囲気の中であなたを迎え入れます。住む人に対して「ようこそ、私の世界へ」と優しく語りかけるラ・トゥール代官山 E201は、その存在自体が一つの芸術作品であり、あなたの生活を映画のワンシーンの…ラ・トゥール代官山 E201。これはただの住所ではなく、都会の喧騒から解き放たれた夢のような空間の名前です。285.2㎡の広大な専有面積を誇るこの物件は、まるで優雅な白鳥が静寂な湖面に浮かぶかのように、穏やかな雰囲気の中であなたを迎え入れます。住む人に対して「ようこそ、私の世界へ」と優しく語りかけるラ・トゥール代官山 E201は、その存在自体が一つの芸術作品であり、あなたの生活を映画のワンシーンのように彩ります。
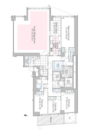
部屋に足を踏み入れると、まず感じられるのは、温かいウッドの香り。自然素材が醸し出す心地良い香りが、あなたの心を優しく包み込みます。LDKは53.7帖の広さがあり、開放的な空間が自ずと笑顔を引き出します。窓から差し込むやわらかな陽射しが床に描く影は、まるで時の流れを優雅に演出するバレエダンサーのようです。キッチンは8帖の広さを持ち、料理をする手が喜びに満ちる瞬間を与えてくれます。家族や友人と共に、心温まるひとときを過ごすのにふさわしい場所と言えるでしょう。
さらに、19.2帖、11.3帖、10.5帖、7.3帖の各寝室は、それぞれがまるで個性豊かな登場人物のように、あなたのストーリーに彩りを添えます。心地よい寝具に包まれ、夜が静かに訪れると、窓から聞こえる風のささやきが、素晴らしい夢の世界へと誘います。
ラ・トゥール代官山 E201の魅力は、内面的な美しさだけではありません。24時間管理された安心感と、オートロックのセキュリティがあなたの日常に寄り添い、心の平和を提供します。フィットネスやラウンジ、ゲストルームなど、共用施設も充実しており、友人を招いての楽しいひとときや、リラックスした時間を提供してくれます。それはまるで、日常の中の非日常、特別な瞬間を生み出すための舞台装置のようです。
周辺の渋谷区鶯谷町は、その歴史と文化が息づく街。東京急行電鉄東急東横線の代官山駅から徒歩8分という立地は、洗練されたカフェやショップ、アートギャラリーが点在するエリアにアクセスしやすく、まさに都会のオアシス。毎日が新しい発見に満ち、心躍るひとときを提供してくれることでしょう。
ラ・トゥール代官山 E201は、ただの住まいではありません。ここには、心が豊かになり、感性を刺激される日常が待っています。あなたの生活が、この特別な場所でどのように輝くのか、想像するだけで心が躍ります。さあ、ラ・トゥール代官山 E201で、あなたの新たな物語を紡ぎ始めましょう。
部屋に足を踏み入れると、まず感じられるのは、温かいウッドの香り。自然素材が醸し出す心地良い香りが、あなたの心を優しく包み込みます。LDKは53.7帖の広さがあり、開放的な空間が自ずと笑顔を引き出します。窓から差し込むやわらかな陽射しが床に描く影は、まるで時の流れを優雅に演出するバレエダンサーのようです。キッチンは8帖の広さを持ち、料理をする手が喜びに満ちる瞬間を与えてくれます。家族や友人と共に、心温まるひとときを過ごすのにふさわしい場所と言えるでしょう。
さらに、19.2帖、11.3帖、10.5帖、7.3帖の各寝室は、それぞれがまるで個性豊かな登場人物のように、あなたのストーリーに彩りを添えます。心地よい寝具に包まれ、夜が静かに訪れると、窓から聞こえる風のささやきが、素晴らしい夢の世界へと誘います。
ラ・トゥール代官山 E201の魅力は、内面的な美しさだけではありません。24時間管理された安心感と、オートロックのセキュリティがあなたの日常に寄り添い、心の平和を提供します。フィットネスやラウンジ、ゲストルームなど、共用施設も充実しており、友人を招いての楽しいひとときや、リラックスした時間を提供してくれます。それはまるで、日常の中の非日常、特別な瞬間を生み出すための舞台装置のようです。
周辺の渋谷区鶯谷町は、その歴史と文化が息づく街。東京急行電鉄東急東横線の代官山駅から徒歩8分という立地は、洗練されたカフェやショップ、アートギャラリーが点在するエリアにアクセスしやすく、まさに都会のオアシス。毎日が新しい発見に満ち、心躍るひとときを提供してくれることでしょう。
ラ・トゥール代官山 E201は、ただの住まいではありません。ここには、心が豊かになり、感性を刺激される日常が待っています。あなたの生活が、この特別な場所でどのように輝くのか、想像するだけで心が躍ります。さあ、ラ・トゥール代官山 E201で、あなたの新たな物語を紡ぎ始めましょう。
バイブルスコア
バイブルスコア: 21.4
平均的なスコアです。
※バイブルスコア詳細はこちら
バイブルスコアとは独自のAI機械学習技術を利用した物件評価システムで、物件のおすすめ度を示します。最高得点は100点で、スコアが高いほど、よりおすすめの物件と評価されています。
写真
契約条件
| 賃料 | 予想金額:1,930,000〜1,950,000円程度 | 管理費 | 予想金額:0〜2,000円程度 |
| 礼金 | 非公開(アーカイブ) | 敷金 | 非公開(アーカイブ) |
| フリーレント | なし | 平米数 | 285.2㎡ |
| 間取り | 4LDK | 大型収納 | 2WIC+SIC+Sto |
| 契約期間 | 方角 | 西 東 | |
| 更新料 | 契約形態 | 定期借家契約 | |
| 取引態様 | 媒介 | 内見状況 | 入居中 |
| 入居時期 | 入居中 | SOHO・事務所 | |
| ペット | ペット可 | 間取り内訳 | LD=53.7J / K=8J / F=7.7J / BR=19.2J / BR=11.3J / BR=10.5J / BR=7.3J |
| キャンペーン情報・備考 | 本情報は賃料改定交渉の資料作成、収益物件の利回り試算、周辺エリアや最寄り駅の坪単価分析、次回募集開始時期の予測などにご活用いただけます。 | ||
※「どの不動産に頼めばいいのか分からない」「信頼できる営業マンの話を聞きたい」「一番親切な会社と契約したい」とお悩みの方におすすめなのが「高級賃貸バイブル」です。
高級賃貸バイブルは業界10年以上の熟練スタッフ群がお客様ファーストで対応します。
下記ボタンから、まずは無料でご相談下さい。
※内覧をご希望の際には、どうぞ物件のエントランス前にてお待ち合わせくださいませ。ご内覧後は、同じ場所でお別れとさせていただきます。お客様のご都合に合わせたスムーズなご案内を心がけておりますので、ご質問等がございましたら何なりとお申し付けください。 物件概要
| 物件名 |
| 築年月 |
|
|---|---|---|---|
| 所在地 | |||
| 交通 | |||
| 総戸数 |
| 総階数 |
|
| 構造 |
| ||
地図
物件までの道のりは、「拡大地図を表示」をクリックしてナビ機能をご利用ください。
部屋設備




















建物設備

24時間管理

TVモニターホン

エレベーター

オートロック

ゲストルーム

バイク置場

フィットネス

フロントサービス

ラウンジ

宅配ボックス

敷地内ゴミ置場

駐車場平置き

駐車場機械式

駐輪場
ラ・トゥール代官山の現在募集中のお部屋
- No rooms found for this property.






























