
| 賃料 | 予想金額:1,800,000〜1,820,000円程度 | 管理費 | 予想金額:0〜2,000円程度 |
| 礼金/敷金 | 非公開(アーカイブ) | 平米数 | 233.1㎡ |
| 初期費用概算(参考) | 目安:6,376,500〜6,476,500 円 | みなし賃料(月額・参考) | 1,896,177〜1,916,177 円 |
| 備考 | 本ページは過去募集のアーカイブです。表示の金額は周辺相場・過去募集を踏まえた参考レンジであり、実際の契約金額・条件ではありません。 | ||
※上記みなし賃料(月額)は仲介手数料割引・無料&キャッシュバックを加味した高級賃貸バイブル限定の金額です。一般的なみなし賃料とは異なります。
【建物ページ】ラ・トゥール代官山の詳細・最新空室はこちら▶▶選ばれる理由
仲介手数料無料・キャンペーン情報(毎月15名様限定)
〇仲介手数料割引キャンペーン
ラ・トゥール代官山 B302の口コミ・レビュー
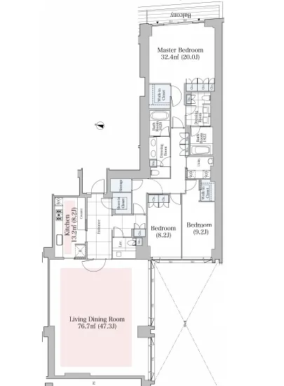
ラ・トゥール代官山 B302。この名は、ただの住まいを超え、まるで美しいオーケストラの一部であるかのように響き渡る物件です。東京都渋谷区鶯谷町に位置し、南東の光がやさしく差し込むこの高級賃貸物件は、233.1㎡という広大な専有面積を誇り、あなたを日常の喧騒から解き放つ静寂の隠れ家へといざないます。
この部屋に足を踏み入れると、まるで時が静止したかのような感覚に包まれます。47.3帖の広いリビング…ラ・トゥール代官山 B302。この名は、ただの住まいを超え、まるで美しいオーケストラの一部であるかのように響き渡る物件です。東京都渋谷区鶯谷町に位置し、南東の光がやさしく差し込むこの高級賃貸物件は、233.1㎡という広大な専有面積を誇り、あなたを日常の喧騒から解き放つ静寂の隠れ家へといざないます。
この部屋に足を踏み入れると、まるで時が静止したかのような感覚に包まれます。47.3帖の広いリビングダイニングは、まるで心を満たすキャンバスのよう。窓からは穏やかな午後の日差しが注ぎ、外の緑が風に揺れる音が耳に心地よく響きます。ここであなたは、家族や友人と共に温かな食事を囲み、笑顔の花が咲く瞬間を楽しむことができるのです。時には、あなた一人で静かに読書を楽しんだり、お気に入りの音楽に耳を傾けたりする時間も、特別なものとなるでしょう。
ラ・トゥール代官山 B302のキッチンは、8.2帖の広さを持ち、料理をする喜びを体感させてくれます。洗練されたデザインは料理をする喜びを引き出し、まるで高級レストランに立つシェフになったかのような気分を味わわせてくれます。新鮮な食材の香りが漂い、カラフルな食材が皿に盛り付けられる様子を思い描いてください。不安のやり場を忘れ、味覚の旅へと誘われるのです。
さらに、20帖の主寝室は、柔らかな光に包まれた至福の寝室です。その広さは、あなたが安らぎの時間を持つために設計されているかのようで、どんな夢もここで叶う気がします。そして、9.2帖と8.2帖の二つの洋室は、それぞれの個性と物語を抱えた空間となり、ゲストや子どもたちの自由な発想を育む場所となるでしょう。
この物件の魅力は、内部だけにとどまりません。ラ・トゥール代官山 B302は、低層ながらも、24時間の管理サービスやオートロックを完備し、安全性が確保されています。ゲストルームやラウンジでは、親しい友人やビジネスパートナーとの交流が生まれ、人生の彩りを豊かにしてくれるでしょう。フィットネスルームでの汗を流した後は、宅配ボックスで届いた新鮮な食材を受け取る喜びを味わうこともできます。
この物件が位置する代官山は、文化と芸術が息づく街。洒落たカフェやギャラリー、洗練されたショップが点在し、あなたの感性を刺激します。東京急行電鉄東急東横線 代官山駅からの8分のアクセスは、都心での生活と静かな隠れ家の両方を手に入れる贅沢を提供してくれます。
ラ・トゥール代官山 B302は、あなたにとって新しい物語の舞台。ここで、五感が満たされる生活が待っています。さあ、あなたの物語をこの場所で紡いでみませんか?
この部屋に足を踏み入れると、まるで時が静止したかのような感覚に包まれます。47.3帖の広いリビング…ラ・トゥール代官山 B302。この名は、ただの住まいを超え、まるで美しいオーケストラの一部であるかのように響き渡る物件です。東京都渋谷区鶯谷町に位置し、南東の光がやさしく差し込むこの高級賃貸物件は、233.1㎡という広大な専有面積を誇り、あなたを日常の喧騒から解き放つ静寂の隠れ家へといざないます。
この部屋に足を踏み入れると、まるで時が静止したかのような感覚に包まれます。47.3帖の広いリビングダイニングは、まるで心を満たすキャンバスのよう。窓からは穏やかな午後の日差しが注ぎ、外の緑が風に揺れる音が耳に心地よく響きます。ここであなたは、家族や友人と共に温かな食事を囲み、笑顔の花が咲く瞬間を楽しむことができるのです。時には、あなた一人で静かに読書を楽しんだり、お気に入りの音楽に耳を傾けたりする時間も、特別なものとなるでしょう。
ラ・トゥール代官山 B302のキッチンは、8.2帖の広さを持ち、料理をする喜びを体感させてくれます。洗練されたデザインは料理をする喜びを引き出し、まるで高級レストランに立つシェフになったかのような気分を味わわせてくれます。新鮮な食材の香りが漂い、カラフルな食材が皿に盛り付けられる様子を思い描いてください。不安のやり場を忘れ、味覚の旅へと誘われるのです。
さらに、20帖の主寝室は、柔らかな光に包まれた至福の寝室です。その広さは、あなたが安らぎの時間を持つために設計されているかのようで、どんな夢もここで叶う気がします。そして、9.2帖と8.2帖の二つの洋室は、それぞれの個性と物語を抱えた空間となり、ゲストや子どもたちの自由な発想を育む場所となるでしょう。
この物件の魅力は、内部だけにとどまりません。ラ・トゥール代官山 B302は、低層ながらも、24時間の管理サービスやオートロックを完備し、安全性が確保されています。ゲストルームやラウンジでは、親しい友人やビジネスパートナーとの交流が生まれ、人生の彩りを豊かにしてくれるでしょう。フィットネスルームでの汗を流した後は、宅配ボックスで届いた新鮮な食材を受け取る喜びを味わうこともできます。
この物件が位置する代官山は、文化と芸術が息づく街。洒落たカフェやギャラリー、洗練されたショップが点在し、あなたの感性を刺激します。東京急行電鉄東急東横線 代官山駅からの8分のアクセスは、都心での生活と静かな隠れ家の両方を手に入れる贅沢を提供してくれます。
ラ・トゥール代官山 B302は、あなたにとって新しい物語の舞台。ここで、五感が満たされる生活が待っています。さあ、あなたの物語をこの場所で紡いでみませんか?
バイブルスコア
バイブルスコア: 30.6
平均的なスコアです。
※バイブルスコア詳細はこちら
バイブルスコアとは独自のAI機械学習技術を利用した物件評価システムで、物件のおすすめ度を示します。最高得点は100点で、スコアが高いほど、よりおすすめの物件と評価されています。
写真
契約条件
| 賃料 | 予想金額:1,800,000〜1,820,000円程度 | 管理費 | 予想金額:0〜2,000円程度 |
| 礼金 | 非公開(アーカイブ) | 敷金 | 非公開(アーカイブ) |
| フリーレント | なし | 平米数 | 233.1㎡ |
| 間取り | 3LDK | 大型収納 | WIC+SIC+Sto |
| 契約期間 | 方角 | 南 東 | |
| 更新料 | 契約形態 | 定期借家契約 | |
| 取引態様 | 媒介 | 内見状況 | 入居中 |
| 入居時期 | 入居中 | SOHO・事務所 | |
| ペット | ペット可 | 間取り内訳 | LD=47.3J / K=8.2J / BR=20J / BR=9.2J / BR=8.2J |
| キャンペーン情報・備考 | 本情報は賃料改定交渉の資料作成、収益物件の利回り試算、周辺エリアや最寄り駅の坪単価分析、次回募集開始時期の予測などにご活用いただけます。 | ||
※「どの不動産に頼めばいいのか分からない」「信頼できる営業マンの話を聞きたい」「一番親切な会社と契約したい」とお悩みの方におすすめなのが「高級賃貸バイブル」です。
高級賃貸バイブルは業界10年以上の熟練スタッフ群がお客様ファーストで対応します。
下記ボタンから、まずは無料でご相談下さい。
※内覧をご希望の際には、どうぞ物件のエントランス前にてお待ち合わせくださいませ。ご内覧後は、同じ場所でお別れとさせていただきます。お客様のご都合に合わせたスムーズなご案内を心がけておりますので、ご質問等がございましたら何なりとお申し付けください。 物件概要
| 物件名 |
| 築年月 |
|
|---|---|---|---|
| 所在地 | |||
| 交通 | |||
| 総戸数 |
| 総階数 |
|
| 構造 |
| ||
地図
物件までの道のりは、「拡大地図を表示」をクリックしてナビ機能をご利用ください。
部屋設備






















建物設備

24時間管理

TVモニターホン

エレベーター

オートロック

ゲストルーム

バイク置場

フィットネス

フロントサービス

ラウンジ

宅配ボックス

敷地内ゴミ置場

駐車場平置き

駐車場機械式

駐輪場
ラ・トゥール代官山の現在募集中のお部屋
- No rooms found for this property.






























