
| 賃料 | 予想金額:1,880,000〜1,900,000円程度 | 管理費 | 予想金額:0〜2,000円程度 |
| 礼金/敷金 | 非公開(アーカイブ) | 平米数 | 250.8㎡ |
| 初期費用概算(参考) | 目安:6,656,500〜6,756,500 円 | みなし賃料(月額・参考) | 1,980,344〜2,000,344 円 |
| 備考 | 本ページは過去募集のアーカイブです。表示の金額は周辺相場・過去募集を踏まえた参考レンジであり、実際の契約金額・条件ではありません。 | ||
※上記みなし賃料(月額)は仲介手数料割引・無料&キャッシュバックを加味した高級賃貸バイブル限定の金額です。一般的なみなし賃料とは異なります。
【建物ページ】ラ・トゥール代官山の詳細・最新空室はこちら▶▶選ばれる理由
仲介手数料無料・キャンペーン情報(毎月15名様限定)
〇仲介手数料割引キャンペーン
ラ・トゥール代官山 H301の口コミ・レビュー
ラ・トゥール代官山 H301。この名は、ただの住所ではなく、心の奥深くに響く響きのようなものです。東京の喧騒を背に、代官山の静寂な一角に佇むこの高級賃貸物件は、あなたの生活を映画のワンシーンのように彩り豊かにしてくれることでしょう。専有面積250.8㎡の広々とした空間に身を置いて、日々の瞬間を贅沢に味わうことができるのです。
ラ・トゥール代官山 H301は、その美しさと機能性を兼ね備えています。…ラ・トゥール代官山 H301。この名は、ただの住所ではなく、心の奥深くに響く響きのようなものです。東京の喧騒を背に、代官山の静寂な一角に佇むこの高級賃貸物件は、あなたの生活を映画のワンシーンのように彩り豊かにしてくれることでしょう。専有面積250.8㎡の広々とした空間に身を置いて、日々の瞬間を贅沢に味わうことができるのです。
ラ・トゥール代官山 H301は、その美しさと機能性を兼ね備えています。高い天井と広がるLDK39.6帖の空間では、朝日が優しく差し込み、焼きたてのパンの香りが漂うキッチンで、目覚めのコーヒーを淹れるひとときも極上のものとなるでしょう。8帖のキッチンでは、愛する人と共に料理を楽しみ、笑い声が交錯する情景が描かれます。そして、これらの瞬間を包み込む壁は、あなたの心の中にあるストーリーを反映するキャンバスとなるのです。
この物件には、まるで賢者のように住む人を見守る存在がいます。24時間管理の下、安心感に包まれた暮らしが待っています。エレベーターでアクセスできる低層階からは、まるで都会の洗練された風景を一望できるような感覚が漂います。オートロックやTVモニターホンの安心感が、まるで貴族の城に帰ってきたかのように心を高揚させることでしょう。
ラ・トゥール代官山 H301の4LDKには、21.1帖の広々とした主寝室があり、夜の静けさに包まれたこの部屋で、優雅に本を手に取っていただきたいと思います。また、6.6帖のフィットネスルームでは、心と体を整え、ルーチンを楽しむことができ、自分自身を見つめ直す時間を持つことができます。
周囲には、歴史ある文化やアートが息づいている代官山の街。散策するだけで、まるでアートギャラリーの中を歩いているかのような気持ちにさせてくれます。カフェの一角からは、コーヒーの香ばしい香りが漂い、心に余裕を持たせてくれることでしょう。時には、友人たちを招いて、ラウンジで穏やかな時間を過ごすのも良いですね。彼らとの楽しい会話が、心を豊かにし、人生の色彩をさらに鮮やかにしてくれます。
ラ・トゥール代官山 H301は、ただの住まいではなく、あなたの人生を豊かにするための舞台です。この空間で過ごすことで、日常の中に素敵な瞬間を紡ぎ出すことができるのです。美しい暮らしを手に入れ、あなた自身もまるで映画の主人公のように、毎日を楽しむことができるはずです。自分自身を再発見する旅が始まるこの場所で、新しい物語を創り上げていきましょう。
ラ・トゥール代官山 H301は、その美しさと機能性を兼ね備えています。…ラ・トゥール代官山 H301。この名は、ただの住所ではなく、心の奥深くに響く響きのようなものです。東京の喧騒を背に、代官山の静寂な一角に佇むこの高級賃貸物件は、あなたの生活を映画のワンシーンのように彩り豊かにしてくれることでしょう。専有面積250.8㎡の広々とした空間に身を置いて、日々の瞬間を贅沢に味わうことができるのです。
ラ・トゥール代官山 H301は、その美しさと機能性を兼ね備えています。高い天井と広がるLDK39.6帖の空間では、朝日が優しく差し込み、焼きたてのパンの香りが漂うキッチンで、目覚めのコーヒーを淹れるひとときも極上のものとなるでしょう。8帖のキッチンでは、愛する人と共に料理を楽しみ、笑い声が交錯する情景が描かれます。そして、これらの瞬間を包み込む壁は、あなたの心の中にあるストーリーを反映するキャンバスとなるのです。
この物件には、まるで賢者のように住む人を見守る存在がいます。24時間管理の下、安心感に包まれた暮らしが待っています。エレベーターでアクセスできる低層階からは、まるで都会の洗練された風景を一望できるような感覚が漂います。オートロックやTVモニターホンの安心感が、まるで貴族の城に帰ってきたかのように心を高揚させることでしょう。
ラ・トゥール代官山 H301の4LDKには、21.1帖の広々とした主寝室があり、夜の静けさに包まれたこの部屋で、優雅に本を手に取っていただきたいと思います。また、6.6帖のフィットネスルームでは、心と体を整え、ルーチンを楽しむことができ、自分自身を見つめ直す時間を持つことができます。
周囲には、歴史ある文化やアートが息づいている代官山の街。散策するだけで、まるでアートギャラリーの中を歩いているかのような気持ちにさせてくれます。カフェの一角からは、コーヒーの香ばしい香りが漂い、心に余裕を持たせてくれることでしょう。時には、友人たちを招いて、ラウンジで穏やかな時間を過ごすのも良いですね。彼らとの楽しい会話が、心を豊かにし、人生の色彩をさらに鮮やかにしてくれます。
ラ・トゥール代官山 H301は、ただの住まいではなく、あなたの人生を豊かにするための舞台です。この空間で過ごすことで、日常の中に素敵な瞬間を紡ぎ出すことができるのです。美しい暮らしを手に入れ、あなた自身もまるで映画の主人公のように、毎日を楽しむことができるはずです。自分自身を再発見する旅が始まるこの場所で、新しい物語を創り上げていきましょう。
バイブルスコア
バイブルスコア: 24.6
平均的なスコアです。
※バイブルスコア詳細はこちら
バイブルスコアとは独自のAI機械学習技術を利用した物件評価システムで、物件のおすすめ度を示します。最高得点は100点で、スコアが高いほど、よりおすすめの物件と評価されています。
写真
契約条件
| 賃料 | 予想金額:1,880,000〜1,900,000円程度 | 管理費 | 予想金額:0〜2,000円程度 |
| 礼金 | 非公開(アーカイブ) | 敷金 | 非公開(アーカイブ) |
| フリーレント | なし | 平米数 | 250.8㎡ |
| 間取り | 4LDK | 大型収納 | 2WIC+SIC+Sto |
| 契約期間 | 方角 | 東 西 | |
| 更新料 | 契約形態 | 定期借家契約 | |
| 取引態様 | 媒介 | 内見状況 | 入居中 |
| 入居時期 | 入居中 | SOHO・事務所 | |
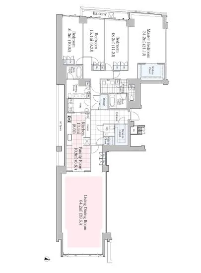
| ペット | ペット可 | 間取り内訳 | LD=39.6J / K=8J / F=6.6J / BR=21.1J / BR=11.2J / BR=10J / BR=9.3J |
| キャンペーン情報・備考 | 本情報は賃料改定交渉の資料作成、収益物件の利回り試算、周辺エリアや最寄り駅の坪単価分析、次回募集開始時期の予測などにご活用いただけます。 | ||
※「どの不動産に頼めばいいのか分からない」「信頼できる営業マンの話を聞きたい」「一番親切な会社と契約したい」とお悩みの方におすすめなのが「高級賃貸バイブル」です。
高級賃貸バイブルは業界10年以上の熟練スタッフ群がお客様ファーストで対応します。
下記ボタンから、まずは無料でご相談下さい。
※内覧をご希望の際には、どうぞ物件のエントランス前にてお待ち合わせくださいませ。ご内覧後は、同じ場所でお別れとさせていただきます。お客様のご都合に合わせたスムーズなご案内を心がけておりますので、ご質問等がございましたら何なりとお申し付けください。 物件概要
| 物件名 |
| 築年月 |
|
|---|---|---|---|
| 所在地 | |||
| 交通 | |||
| 総戸数 |
| 総階数 |
|
| 構造 |
| ||
地図
物件までの道のりは、「拡大地図を表示」をクリックしてナビ機能をご利用ください。
部屋設備





















建物設備

24時間管理

TVモニターホン

エレベーター

オートロック

ゲストルーム

バイク置場

フィットネス

フロントサービス

ラウンジ

宅配ボックス

敷地内ゴミ置場

駐車場平置き

駐車場機械式

駐輪場
ラ・トゥール代官山の現在募集中のお部屋
- No rooms found for this property.






























