
| 賃料 | 予想金額:135,000〜155,000円程度 | 管理費 | 予想金額:8,000〜12,000円程度 |
| 礼金/敷金 | 非公開(アーカイブ) | 平米数 | 30.01㎡ |
| 初期費用概算(参考) | 目安:564,000〜664,000 円 | みなし賃料(月額・参考) | 154,771〜174,771 円 |
| 備考 | 本ページは過去募集のアーカイブです。表示の金額は周辺相場・過去募集を踏まえた参考レンジであり、実際の契約金額・条件ではありません。 | ||
※上記みなし賃料(月額)は仲介手数料割引・無料&キャッシュバックを加味した高級賃貸バイブル限定の金額です。一般的なみなし賃料とは異なります。
【建物ページ】クロスエアタワーの詳細・最新空室はこちら▶▶選ばれる理由
仲介手数料無料・キャンペーン情報(毎月15名様限定)
〇仲介手数料割引キャンペーン
クロスエアタワー 1233の口コミ・レビュー
クロスエアタワー 1233。この名前を耳にした瞬間、まるで都会の喧騒を忘れさせる、柔らかな風が頬を撫でるような雰囲気が漂います。東京都目黒区大橋に佇むこの美しいタワーは、まるで鋭い感性を持つアーティストが描いた一幅の絵画のように、周囲の風景と調和を保ちながらも、独特の存在感を醸し出しています。1233号室は、南西を向いており、日差しが優しく微笑みかける、心地よい空間が広がります。
この住まいは、…クロスエアタワー 1233。この名前を耳にした瞬間、まるで都会の喧騒を忘れさせる、柔らかな風が頬を撫でるような雰囲気が漂います。東京都目黒区大橋に佇むこの美しいタワーは、まるで鋭い感性を持つアーティストが描いた一幅の絵画のように、周囲の風景と調和を保ちながらも、独特の存在感を醸し出しています。1233号室は、南西を向いており、日差しが優しく微笑みかける、心地よい空間が広がります。
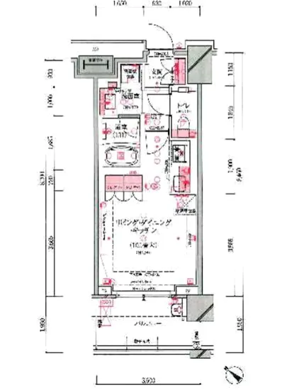
この住まいは、30.01㎡という広がりを持ちながらも、まるで魔法のように空間の奥行きを感じさせてくれる特別なスタジオです。洋室7.5帖とキッチン3帖を持ち、まるであなたの心の中に描く夢を存分に実現できる canvas(キャンバス)のようです。朝の光が差し込む瞬間、カーテン越しの淡い色彩に包まれながら、優雅にコーヒーの香りが漂うリビングで、心穏やかなひとときを楽しむことができるでしょう。
クロスエアタワー 1233の魅力は、ただの居住空間ではなく、まさに生活そのものが一篇の物語として紡がれることです。フロントサービスやゲストルーム、ラウンジといった共用スペースは、あたかもあなたとゲストが特別な交流を持つために設計された舞台のようです。お友達や家族を招待した際、彼らの驚きの声と共に、豪華なラウンジでの会話が華やかに広がります。
また、フィットネスルームでは、心と体を磨く時間が待っています。汗をかくたびに、身体が軽く、自由に飛翔するような感覚を覚えることでしょう。エレベーターでの上昇を感じながら、窓から望む目黒の街並みや、遠くに広がる青空に心奪われ、まるで自らが映画の主人公になったかのように思える瞬間を味わってください。
さらに、周辺には東京急行電鉄東急田園都市線 池尻大橋駅が徒歩5分という好立地。そこから繰り広げられる都市の喧騒も、時にはあなたの日常の一部となり、文化や歴史に触れる体験を与えてくれます。美術館やギャラリー、カフェが点在する目黒区は、まるで色彩豊かな画布のようです。あなたがいる場所が、まるでアートの一部であることを感じさせてくれるでしょう。
クロスエアタワー 1233は、ただの住まいではありません。あなたの新しい生活の一部となり、心に残る瞬間を彩る一場面となるのです。この空間で過ごす日々はまるで映画のワンシーンのように、あなた自身が人生の主役となり、色鮮やかなストーリーが展開されていくことでしょう。さあ、この特別な場所で新たな物語を紡ぎ始めてみませんか。あなたを待っているのは、クロスエアタワー 1233の魅力と、心躍る未来です。
この住まいは、…クロスエアタワー 1233。この名前を耳にした瞬間、まるで都会の喧騒を忘れさせる、柔らかな風が頬を撫でるような雰囲気が漂います。東京都目黒区大橋に佇むこの美しいタワーは、まるで鋭い感性を持つアーティストが描いた一幅の絵画のように、周囲の風景と調和を保ちながらも、独特の存在感を醸し出しています。1233号室は、南西を向いており、日差しが優しく微笑みかける、心地よい空間が広がります。
この住まいは、30.01㎡という広がりを持ちながらも、まるで魔法のように空間の奥行きを感じさせてくれる特別なスタジオです。洋室7.5帖とキッチン3帖を持ち、まるであなたの心の中に描く夢を存分に実現できる canvas(キャンバス)のようです。朝の光が差し込む瞬間、カーテン越しの淡い色彩に包まれながら、優雅にコーヒーの香りが漂うリビングで、心穏やかなひとときを楽しむことができるでしょう。
クロスエアタワー 1233の魅力は、ただの居住空間ではなく、まさに生活そのものが一篇の物語として紡がれることです。フロントサービスやゲストルーム、ラウンジといった共用スペースは、あたかもあなたとゲストが特別な交流を持つために設計された舞台のようです。お友達や家族を招待した際、彼らの驚きの声と共に、豪華なラウンジでの会話が華やかに広がります。
また、フィットネスルームでは、心と体を磨く時間が待っています。汗をかくたびに、身体が軽く、自由に飛翔するような感覚を覚えることでしょう。エレベーターでの上昇を感じながら、窓から望む目黒の街並みや、遠くに広がる青空に心奪われ、まるで自らが映画の主人公になったかのように思える瞬間を味わってください。
さらに、周辺には東京急行電鉄東急田園都市線 池尻大橋駅が徒歩5分という好立地。そこから繰り広げられる都市の喧騒も、時にはあなたの日常の一部となり、文化や歴史に触れる体験を与えてくれます。美術館やギャラリー、カフェが点在する目黒区は、まるで色彩豊かな画布のようです。あなたがいる場所が、まるでアートの一部であることを感じさせてくれるでしょう。
クロスエアタワー 1233は、ただの住まいではありません。あなたの新しい生活の一部となり、心に残る瞬間を彩る一場面となるのです。この空間で過ごす日々はまるで映画のワンシーンのように、あなた自身が人生の主役となり、色鮮やかなストーリーが展開されていくことでしょう。さあ、この特別な場所で新たな物語を紡ぎ始めてみませんか。あなたを待っているのは、クロスエアタワー 1233の魅力と、心躍る未来です。
バイブルスコア
バイブルスコア: 33.2
平均的なスコアです。
※バイブルスコア詳細はこちら
バイブルスコアとは独自のAI機械学習技術を利用した物件評価システムで、物件のおすすめ度を示します。最高得点は100点で、スコアが高いほど、よりおすすめの物件と評価されています。
写真
契約条件
| 賃料 | 予想金額:135,000〜155,000円程度 | 管理費 | 予想金額:8,000〜12,000円程度 |
| 礼金 | 非公開(アーカイブ) | 敷金 | 非公開(アーカイブ) |
| フリーレント | なし | 平米数 | 30.01㎡ |
| 間取り | 1R | 大型収納 | |
| 契約期間 |
| 方角 | 南西 |
| 更新料 | 契約形態 | 普通賃貸借契約 | |
| 取引態様 | 媒介 | 内見状況 | 入居中 |
| 入居時期 | 入居中 | SOHO・事務所 | |
| ペット | 間取り内訳 | 洋:7.5 K:3 | |
| キャンペーン情報・備考 | 本情報は賃料改定交渉の資料作成、収益物件の利回り試算、周辺エリアや最寄り駅の坪単価分析、次回募集開始時期の予測などにご活用いただけます。 | ||
※「どの不動産に頼めばいいのか分からない」「信頼できる営業マンの話を聞きたい」「一番親切な会社と契約したい」とお悩みの方におすすめなのが「高級賃貸バイブル」です。
高級賃貸バイブルは業界10年以上の熟練スタッフ群がお客様ファーストで対応します。
下記ボタンから、まずは無料でご相談下さい。
※内覧をご希望の際には、どうぞ物件のエントランス前にてお待ち合わせくださいませ。ご内覧後は、同じ場所でお別れとさせていただきます。お客様のご都合に合わせたスムーズなご案内を心がけておりますので、ご質問等がございましたら何なりとお申し付けください。 物件概要
| 物件名 |
| 築年月 |
|
|---|---|---|---|
| 所在地 | |||
| 交通 | |||
| 総戸数 |
| 総階数 |
|
| 構造 |
| ||
地図
物件までの道のりは、「拡大地図を表示」をクリックしてナビ機能をご利用ください。
部屋設備
















建物設備

24時間管理

TVモニターホン

エレベーター

オートロック

ゲストルーム

バイク置場

フィットネス

フロントサービス

ラウンジ

宅配ボックス

敷地内ゴミ置場

管理人

駐車場平置き

駐車場機械式

駐輪場
クロスエアタワーの現在募集中のお部屋
- クロスエアタワー 13階 36.72㎡ - 間取り: 1K+WIC - 賃料: 18.5万円
- クロスエアタワー 11階 36.72㎡ - 間取り: 1K+WIC - 賃料: 17.5万円
- クロスエアタワー 25階 54.33㎡ - 間取り: 1LDK+WIC - 賃料: 37万円
- クロスエアタワー 25階 65.96㎡ - 間取り: 1LDK+WIC - 賃料: 37万円






















