
| 賃料 | 予想金額:156,000〜176,000円程度 | 管理費 | 予想金額:7,000〜11,000円程度 |
| 礼金/敷金 | 非公開(アーカイブ) | 平米数 | 34.4㎡ |
| 初期費用概算(参考) | 目安:304,000〜404,000 円 | みなし賃料(月額・参考) | 168,917〜188,917 円 |
| 備考 | 本ページは過去募集のアーカイブです。表示の金額は周辺相場・過去募集を踏まえた参考レンジであり、実際の契約金額・条件ではありません。 | ||
※上記みなし賃料(月額)は仲介手数料割引・無料&キャッシュバックを加味した高級賃貸バイブル限定の金額です。一般的なみなし賃料とは異なります。
【建物ページ】プロト渋谷神泉の詳細・最新空室はこちら▶▶選ばれる理由
仲介手数料無料・キャンペーン情報(毎月15名様限定)
〇仲介手数料割引キャンペーン
プロト渋谷神泉 2-104の口コミ・レビュー
プロト渋谷神泉 2-104。これは単なる住所ではなく、心の拠り所となる空間の扉を開く合言葉です。この特別な場所は、東京都渋谷区神泉町1-13に位置し、どこか懐かしい街角の香りを漂わせています。南西を向いた窓からは、心地よい午後の陽光が差し込み、ゆったりとした時間の流れを生み出します。
このプロト渋谷神泉 2-104は、まるで親しい友人のようにあなたを迎え入れてくれます。専有面積34.4㎡は、心の…プロト渋谷神泉 2-104。これは単なる住所ではなく、心の拠り所となる空間の扉を開く合言葉です。この特別な場所は、東京都渋谷区神泉町1-13に位置し、どこか懐かしい街角の香りを漂わせています。南西を向いた窓からは、心地よい午後の陽光が差し込み、ゆったりとした時間の流れを生み出します。
このプロト渋谷神泉 2-104は、まるで親しい友人のようにあなたを迎え入れてくれます。専有面積34.4㎡は、心の広がりを感じさせる万華鏡のように、あらゆる角度からあなたの個性を映し出します。暖かみのあるデザインの中で、8.5帖の洋室はやさしい日の光を浴びて、あなたが帰る場所として安らぎを提供してくれるでしょう。6帖のダイニングキッチンは、美味しい料理を作り出すための舞台であり、友人たちと語らう幸せなひとときを演出する場所でもあります。食材の香りがほんのりと漂い、心地よいざわめきが耳に届く、そんな情景が目に浮かびます。
ここでの生活は、まるで映画のワンシーンのように、感情が豊かに描かれます。TVモニターホンやオートロックといった設備は、あなたの安全を守りつつも、心温まるもてなしの心を忘れません。宅配ボックスは、忙しい日常の中での小さな贅沢をもたらし、敷地内のゴミ置場は、整理整頓された環境を保つことで、心の余裕を生み出します。
この場所は、渋谷の喧騒からほんの数分の距離にありますが、神泉の静かな街並みがあなたを包み込み、過去と未来をつなぐ特別な魅力を秘めています。神泉エリアには、独自の文化や歴史が息づいており、ふとした瞬間に感じる街の息遣いに、あなたの心も躍動することでしょう。
朝、カーテンを開けると、外から聞こえるちょっとした街のざわめき、そこには新たな一日が待っている期待感が溢れています。香ばしいコーヒーの香りが心を満たし、静かな朝食の時間が始まります。日々の忙しさを忘れさせてくれる空間で、心が穏やかになるのを感じられるでしょう。
プロト渋谷神泉 2-104は、あなたが自分らしく生きるための舞台なのです。ここで交わる感情、ふれあう時間、つながる思いは、あなたの人生を豊かに彩ります。心の中で描く理想の暮らしが、この場所には確かにあるのです。新たな物語がここで紡がれることでしょう。あなたはどんな物語を、プロト渋谷神泉 2-104で始めたいですか?
このプロト渋谷神泉 2-104は、まるで親しい友人のようにあなたを迎え入れてくれます。専有面積34.4㎡は、心の…プロト渋谷神泉 2-104。これは単なる住所ではなく、心の拠り所となる空間の扉を開く合言葉です。この特別な場所は、東京都渋谷区神泉町1-13に位置し、どこか懐かしい街角の香りを漂わせています。南西を向いた窓からは、心地よい午後の陽光が差し込み、ゆったりとした時間の流れを生み出します。
このプロト渋谷神泉 2-104は、まるで親しい友人のようにあなたを迎え入れてくれます。専有面積34.4㎡は、心の広がりを感じさせる万華鏡のように、あらゆる角度からあなたの個性を映し出します。暖かみのあるデザインの中で、8.5帖の洋室はやさしい日の光を浴びて、あなたが帰る場所として安らぎを提供してくれるでしょう。6帖のダイニングキッチンは、美味しい料理を作り出すための舞台であり、友人たちと語らう幸せなひとときを演出する場所でもあります。食材の香りがほんのりと漂い、心地よいざわめきが耳に届く、そんな情景が目に浮かびます。
ここでの生活は、まるで映画のワンシーンのように、感情が豊かに描かれます。TVモニターホンやオートロックといった設備は、あなたの安全を守りつつも、心温まるもてなしの心を忘れません。宅配ボックスは、忙しい日常の中での小さな贅沢をもたらし、敷地内のゴミ置場は、整理整頓された環境を保つことで、心の余裕を生み出します。
この場所は、渋谷の喧騒からほんの数分の距離にありますが、神泉の静かな街並みがあなたを包み込み、過去と未来をつなぐ特別な魅力を秘めています。神泉エリアには、独自の文化や歴史が息づいており、ふとした瞬間に感じる街の息遣いに、あなたの心も躍動することでしょう。
朝、カーテンを開けると、外から聞こえるちょっとした街のざわめき、そこには新たな一日が待っている期待感が溢れています。香ばしいコーヒーの香りが心を満たし、静かな朝食の時間が始まります。日々の忙しさを忘れさせてくれる空間で、心が穏やかになるのを感じられるでしょう。
プロト渋谷神泉 2-104は、あなたが自分らしく生きるための舞台なのです。ここで交わる感情、ふれあう時間、つながる思いは、あなたの人生を豊かに彩ります。心の中で描く理想の暮らしが、この場所には確かにあるのです。新たな物語がここで紡がれることでしょう。あなたはどんな物語を、プロト渋谷神泉 2-104で始めたいですか?
バイブルスコア
バイブルスコア: 75.4
かなり条件の良い物件です、即仮押さえをおすすめする物件です!
このお部屋は、現在ご入居中のため空室情報はございません。ただし、将来的に募集が開始される際、バイブルスコアにおいて非常に高い評価が期待されます。特にご興味をお持ちの方は、今のうちにブックマークやお気に入りに登録していただくと、募集開始のお知らせをすぐに受け取ることができます。是非ともご検討くださいませ。
※バイブルスコア詳細はこちら
バイブルスコアとは独自のAI機械学習技術を利用した物件評価システムで、物件のおすすめ度を示します。最高得点は100点で、スコアが高いほど、よりおすすめの物件と評価されています。
写真
現在写真が登録されていません契約条件
| 賃料 | 予想金額:156,000〜176,000円程度 | 管理費 | 予想金額:7,000〜11,000円程度 |
| 礼金 | 非公開(アーカイブ) | 敷金 | 非公開(アーカイブ) |
| フリーレント | なし | 平米数 | 34.4㎡ |
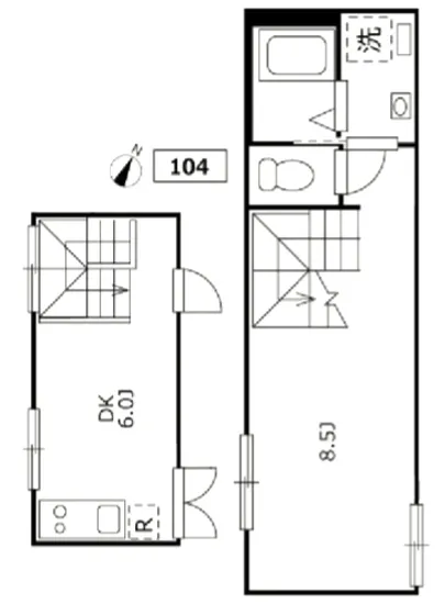
| 間取り | 1DK | 大型収納 | |
| 契約期間 |
| 方角 | 南西 |
| 更新料 | 契約形態 | 普通賃貸借契約 | |
| 取引態様 | 媒介 | 内見状況 | 入居中 |
| 入居時期 | 入居中 | SOHO・事務所 | |
| ペット | 間取り内訳 | 洋:8.5 DK:6 | |
| キャンペーン情報・備考 | 本情報は賃料改定交渉の資料作成、収益物件の利回り試算、周辺エリアや最寄り駅の坪単価分析、次回募集開始時期の予測などにご活用いただけます。 | ||
※「どの不動産に頼めばいいのか分からない」「信頼できる営業マンの話を聞きたい」「一番親切な会社と契約したい」とお悩みの方におすすめなのが「高級賃貸バイブル」です。
高級賃貸バイブルは業界10年以上の熟練スタッフ群がお客様ファーストで対応します。
下記ボタンから、まずは無料でご相談下さい。
※内覧をご希望の際には、どうぞ物件のエントランス前にてお待ち合わせくださいませ。ご内覧後は、同じ場所でお別れとさせていただきます。お客様のご都合に合わせたスムーズなご案内を心がけておりますので、ご質問等がございましたら何なりとお申し付けください。 物件概要
| 物件名 |
| 築年月 |
|
|---|---|---|---|
| 所在地 | |||
| 交通 | |||
| 総戸数 | 総階数 |
| |
| 構造 |
| ||
地図
物件までの道のりは、「拡大地図を表示」をクリックしてナビ機能をご利用ください。
部屋設備










建物設備

TVモニターホン

オートロック

宅配ボックス

敷地内ゴミ置場
プロト渋谷神泉の現在募集中のお部屋
- No rooms found for this property.
