
| 賃料 | 予想金額:137,000〜157,000円程度 | 管理費 | 予想金額:6,000〜10,000円程度 |
| 礼金/敷金 | 非公開(アーカイブ) | 平米数 | 30.31㎡ |
| 初期費用概算(参考) | 目安:421,000〜521,000 円 | みなし賃料(月額・参考) | 151,750〜171,750 円 |
| 備考 | 本ページは過去募集のアーカイブです。表示の金額は周辺相場・過去募集を踏まえた参考レンジであり、実際の契約金額・条件ではありません。 | ||
※上記みなし賃料(月額)は仲介手数料割引・無料&キャッシュバックを加味した高級賃貸バイブル限定の金額です。一般的なみなし賃料とは異なります。
【建物ページ】プライマル渋谷桜丘の詳細・最新空室はこちら▶▶選ばれる理由
仲介手数料無料・キャンペーン情報(毎月15名様限定)
〇仲介手数料割引キャンペーン
プライマル渋谷桜丘 605の口コミ・レビュー
プライマル渋谷桜丘 605。これは訪れる者に対し、その名の美しさを誇示するかのように、静かに佇む魅力的な空間の象徴です。東京都渋谷区桜丘町22-6に位置するこの物件は、まるで都会の喧騒から一歩離れた隠れ家のように、穏やかな東の光を優しく包み込みます。605号室の扉を開けると、心を奪うインテリアがあなたを待っています。
この部屋の広さは30.31㎡、たった一つの大きな窓からは、日々変わる東京の空が…プライマル渋谷桜丘 605。これは訪れる者に対し、その名の美しさを誇示するかのように、静かに佇む魅力的な空間の象徴です。東京都渋谷区桜丘町22-6に位置するこの物件は、まるで都会の喧騒から一歩離れた隠れ家のように、穏やかな東の光を優しく包み込みます。605号室の扉を開けると、心を奪うインテリアがあなたを待っています。
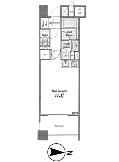
この部屋の広さは30.31㎡、たった一つの大きな窓からは、日々変わる東京の空があなたを見守り、朝日があなたの目覚めを優しく照らします。床は滑らかな質感を持つ素材で、足裏に感じる感触は、まるで自然の一部であるかのような安らぎをもたらします。R=11.1Jの間取りは、自由に自分のスタイルを演出できるゆとりを提供し、あなたのクリエイティブな空間を形成します。
プライマル渋谷桜丘 605では、TVモニターホンの存在が安心感を与え、オートロックがプライバシーを守ります。住む人の安全を第一に考えた設計により、静穏で落ち着いた生活が実現されます。エレベーターを使って、颯爽とした足取りで自分の部屋に戻ると、心地よい静けさに包まれます。外の騒音がかすかに聞こえるものの、それはまるで遠くの音楽のように、心を癒すメロディとして感じられます。
また、バイク置場や駐輪場を完備しているため、アクティブなライフスタイルを楽しむあなたにとって、理想的な生活環境を提供します。宅配ボックスは、忙しい毎日の中でも時間を有効に使える利便性を提供し、あなたのライフスタイルを支えます。部屋にいると、ふわりと香るコーヒーの香りや、風に揺れる緑の香りが混ざり合い、五感が研ぎ澄まされていくのを感じます。
この場所は、芸術や文化が息づく渋谷という街に位置し、古き良き歴史と現代が交錯する独自の雰囲気を醸し出しています。周囲には美術館やギャラリーが点在しており、心が高揚するような出会いを期待させてくれます。渋谷駅から徒歩5分という絶好の立地は、都会の中心にいながらも、ちょっとした隠れ家のように心を休める場所としての特権を与えてくれるのです。
プライマル渋谷桜丘 605は、ただの住まいではなく、あなたの人生に深い色彩を与える舞台となることでしょう。毎日が新たな物語の章を刻み、まるで映画のワンシーンのように感動的な瞬間が待っています。この物件は、あなたの新たなライフスタイルを叶えるための、特別な場所であると心から言えるでしょう。さあ、あなたの物語をここから始めてみませんか。
この部屋の広さは30.31㎡、たった一つの大きな窓からは、日々変わる東京の空が…プライマル渋谷桜丘 605。これは訪れる者に対し、その名の美しさを誇示するかのように、静かに佇む魅力的な空間の象徴です。東京都渋谷区桜丘町22-6に位置するこの物件は、まるで都会の喧騒から一歩離れた隠れ家のように、穏やかな東の光を優しく包み込みます。605号室の扉を開けると、心を奪うインテリアがあなたを待っています。
この部屋の広さは30.31㎡、たった一つの大きな窓からは、日々変わる東京の空があなたを見守り、朝日があなたの目覚めを優しく照らします。床は滑らかな質感を持つ素材で、足裏に感じる感触は、まるで自然の一部であるかのような安らぎをもたらします。R=11.1Jの間取りは、自由に自分のスタイルを演出できるゆとりを提供し、あなたのクリエイティブな空間を形成します。
プライマル渋谷桜丘 605では、TVモニターホンの存在が安心感を与え、オートロックがプライバシーを守ります。住む人の安全を第一に考えた設計により、静穏で落ち着いた生活が実現されます。エレベーターを使って、颯爽とした足取りで自分の部屋に戻ると、心地よい静けさに包まれます。外の騒音がかすかに聞こえるものの、それはまるで遠くの音楽のように、心を癒すメロディとして感じられます。
また、バイク置場や駐輪場を完備しているため、アクティブなライフスタイルを楽しむあなたにとって、理想的な生活環境を提供します。宅配ボックスは、忙しい毎日の中でも時間を有効に使える利便性を提供し、あなたのライフスタイルを支えます。部屋にいると、ふわりと香るコーヒーの香りや、風に揺れる緑の香りが混ざり合い、五感が研ぎ澄まされていくのを感じます。
この場所は、芸術や文化が息づく渋谷という街に位置し、古き良き歴史と現代が交錯する独自の雰囲気を醸し出しています。周囲には美術館やギャラリーが点在しており、心が高揚するような出会いを期待させてくれます。渋谷駅から徒歩5分という絶好の立地は、都会の中心にいながらも、ちょっとした隠れ家のように心を休める場所としての特権を与えてくれるのです。
プライマル渋谷桜丘 605は、ただの住まいではなく、あなたの人生に深い色彩を与える舞台となることでしょう。毎日が新たな物語の章を刻み、まるで映画のワンシーンのように感動的な瞬間が待っています。この物件は、あなたの新たなライフスタイルを叶えるための、特別な場所であると心から言えるでしょう。さあ、あなたの物語をここから始めてみませんか。
バイブルスコア
バイブルスコア: 16.5
高級な物件でない場合は割高な物件です。。
※バイブルスコア詳細はこちら
バイブルスコアとは独自のAI機械学習技術を利用した物件評価システムで、物件のおすすめ度を示します。最高得点は100点で、スコアが高いほど、よりおすすめの物件と評価されています。
写真
契約条件
| 賃料 | 予想金額:137,000〜157,000円程度 | 管理費 | 予想金額:6,000〜10,000円程度 |
| 礼金 | 非公開(アーカイブ) | 敷金 | 非公開(アーカイブ) |
| フリーレント | なし | 平米数 | 30.31㎡ |
| 間取り | 1R | 大型収納 | |
| 契約期間 |
| 方角 | 東 |
| 更新料 | 契約形態 | 普通賃貸借契約 | |
| 取引態様 | 媒介 | 内見状況 | 入居中 |
| 入居時期 | 入居中 | SOHO・事務所 | 事務所(SOHO)可 |
| ペット | ペット可 | 間取り内訳 | R=11.1J |
| キャンペーン情報・備考 | 本情報は賃料改定交渉の資料作成、収益物件の利回り試算、周辺エリアや最寄り駅の坪単価分析、次回募集開始時期の予測などにご活用いただけます。 | ||
※「どの不動産に頼めばいいのか分からない」「信頼できる営業マンの話を聞きたい」「一番親切な会社と契約したい」とお悩みの方におすすめなのが「高級賃貸バイブル」です。
高級賃貸バイブルは業界10年以上の熟練スタッフ群がお客様ファーストで対応します。
下記ボタンから、まずは無料でご相談下さい。
※内覧をご希望の際には、どうぞ物件のエントランス前にてお待ち合わせくださいませ。ご内覧後は、同じ場所でお別れとさせていただきます。お客様のご都合に合わせたスムーズなご案内を心がけておりますので、ご質問等がございましたら何なりとお申し付けください。 物件概要
| 物件名 |
| 築年月 |
|
|---|---|---|---|
| 所在地 | |||
| 交通 | |||
| 総戸数 |
| 総階数 |
|
| 構造 |
| ||
地図
物件までの道のりは、「拡大地図を表示」をクリックしてナビ機能をご利用ください。
部屋設備















建物設備

TVモニターホン

エレベーター

オートロック

バイク置場

宅配ボックス

駐車場機械式

駐輪場
プライマル渋谷桜丘の現在募集中のお部屋
- No rooms found for this property.























