
| 賃料 | 予想金額:818,000〜838,000円程度 | 管理費 | 予想金額:0〜2,000円程度 |
| 礼金/敷金 | 非公開(アーカイブ) | 平米数 | 149.9㎡ |
| 初期費用概算(参考) | 目安:3,767,500〜3,867,500 円 | みなし賃料(月額・参考) | 880,281〜900,281 円 |
| 備考 | 本ページは過去募集のアーカイブです。表示の金額は周辺相場・過去募集を踏まえた参考レンジであり、実際の契約金額・条件ではありません。 | ||
※上記みなし賃料(月額)は仲介手数料割引・無料&キャッシュバックを加味した高級賃貸バイブル限定の金額です。一般的なみなし賃料とは異なります。
【建物ページ】ラ・トゥール千代田富士見の詳細・最新空室はこちら▶▶選ばれる理由
仲介手数料無料・キャンペーン情報(毎月15名様限定)
〇仲介手数料割引キャンペーン
ラ・トゥール千代田富士見 501の口コミ・レビュー
ラ・トゥール千代田富士見 501は、まるで長い歴史を秘めた絵画のように、あなたを特別な物語へと誘います。この魅惑的な住まいは、東京都千代田区富士見1-8-14に位置し、その存在感は周囲の景観に溶け込むかのように、静かなる優雅さを放っています。501の重厚なドアを開けた瞬間、149.9㎡の広がりが迎えてくれるでしょう。ここはただの住居ではありません。人生を豊かにするための舞台、あなたの個性が存分に表…ラ・トゥール千代田富士見 501は、まるで長い歴史を秘めた絵画のように、あなたを特別な物語へと誘います。この魅惑的な住まいは、東京都千代田区富士見1-8-14に位置し、その存在感は周囲の景観に溶け込むかのように、静かなる優雅さを放っています。501の重厚なドアを開けた瞬間、149.9㎡の広がりが迎えてくれるでしょう。ここはただの住居ではありません。人生を豊かにするための舞台、あなたの個性が存分に表現される空間なのです。
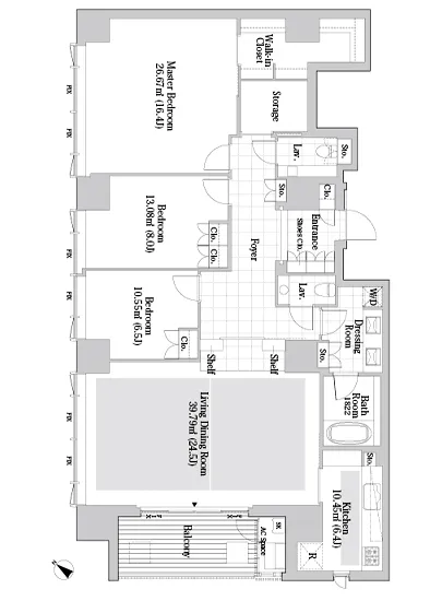
この高級賃貸物件は、まるで詩を紡ぐような美しい間取りを持ち、LDKは24.5帖、キッチンは6.4帖、そしてそれぞれの寝室は、16.4帖、8帖、6.5帖の広さを誇ります。大きな窓から降り注ぐ西日が、ゴールドのような輝きに染まり、まるで太陽の贈り物のようです。朝が来れば、軽やかな風がカーテンを揺らし、心に新たな息吹を与えてくれます。窓の外からは、都会の喧噪ではなく、どこか懐かしい静寂が広がり、あなたの心を癒してくれることでしょう。
ラ・トゥール千代田富士見 501のすべての部屋には、精緻にデザインされたフィニッシュが施されており、リビングダイニングでは友人たちとワインを片手に語らい、キッチンでは料理の香りが漂います。ふんわりとしたパンの焼ける香りや、スパイスの香りが交差するその空間は、まるで五感を刺激する小さな祭典のようです。
特に、フロントサービスや宅配ボックスなどの設備が、日常生活をまるで映画のようなスムーズさで彩ってくれます。24時間管理の安心感の中で、あなたはただ、瞬間を楽しむ余裕を持つことができるのです。オートロックやエレベーターも、まるでセキュリティの守護者のように、あなたを優雅且つ安全にサポートします。
さらに、この物件が位置する千代田区富士見は、歴史的な背景が色濃く残る場所です。周囲に広がるアートや文化は、単なる生活のための背景ではなく、あなた自身にインスピレーションを与えてくれる存在です。近くの飯田橋駅から徒歩3分というアクセスの良さも、まさにこの物件の魅力の一つであり、都心の喧騒から心の安らぎへとスムーズに移行できます。
ラ・トゥール千代田富士見 501での生活は、まるでお気に入りの映画のワンシーンのように、日々の中でさまざまなエピソードが織り成されていくでしょう。豊かな感情をもって新しい章を刻み、あなた自身の物語をこの特別な場所で紡いでください。ここは、あなたの人生を語る大切な舞台なのです。
この高級賃貸物件は、まるで詩を紡ぐような美しい間取りを持ち、LDKは24.5帖、キッチンは6.4帖、そしてそれぞれの寝室は、16.4帖、8帖、6.5帖の広さを誇ります。大きな窓から降り注ぐ西日が、ゴールドのような輝きに染まり、まるで太陽の贈り物のようです。朝が来れば、軽やかな風がカーテンを揺らし、心に新たな息吹を与えてくれます。窓の外からは、都会の喧噪ではなく、どこか懐かしい静寂が広がり、あなたの心を癒してくれることでしょう。
ラ・トゥール千代田富士見 501のすべての部屋には、精緻にデザインされたフィニッシュが施されており、リビングダイニングでは友人たちとワインを片手に語らい、キッチンでは料理の香りが漂います。ふんわりとしたパンの焼ける香りや、スパイスの香りが交差するその空間は、まるで五感を刺激する小さな祭典のようです。
特に、フロントサービスや宅配ボックスなどの設備が、日常生活をまるで映画のようなスムーズさで彩ってくれます。24時間管理の安心感の中で、あなたはただ、瞬間を楽しむ余裕を持つことができるのです。オートロックやエレベーターも、まるでセキュリティの守護者のように、あなたを優雅且つ安全にサポートします。
さらに、この物件が位置する千代田区富士見は、歴史的な背景が色濃く残る場所です。周囲に広がるアートや文化は、単なる生活のための背景ではなく、あなた自身にインスピレーションを与えてくれる存在です。近くの飯田橋駅から徒歩3分というアクセスの良さも、まさにこの物件の魅力の一つであり、都心の喧騒から心の安らぎへとスムーズに移行できます。
ラ・トゥール千代田富士見 501での生活は、まるでお気に入りの映画のワンシーンのように、日々の中でさまざまなエピソードが織り成されていくでしょう。豊かな感情をもって新しい章を刻み、あなた自身の物語をこの特別な場所で紡いでください。ここは、あなたの人生を語る大切な舞台なのです。
バイブルスコア
バイブルスコア: 27.3
平均的なスコアです。
※バイブルスコア詳細はこちら
バイブルスコアとは独自のAI機械学習技術を利用した物件評価システムで、物件のおすすめ度を示します。最高得点は100点で、スコアが高いほど、よりおすすめの物件と評価されています。
写真
現在写真が登録されていません契約条件
| 賃料 | 予想金額:818,000〜838,000円程度 | 管理費 | 予想金額:0〜2,000円程度 |
| 礼金 | 非公開(アーカイブ) | 敷金 | 非公開(アーカイブ) |
| フリーレント | なし | 平米数 | 149.9㎡ |
| 間取り | 3LDK | 大型収納 | WIC+Sto |
| 契約期間 | 方角 | 西 | |
| 更新料 | 契約形態 | 定期借家契約 | |
| 取引態様 | 媒介 | 内見状況 | 入居中 |
| 入居時期 | 入居中 | SOHO・事務所 | |
| ペット | ペット可 | 間取り内訳 | LD=24.5J / K=6.4J / BR=16.4J / BR=8J / BR=6.5J |
| キャンペーン情報・備考 | 本情報は賃料改定交渉の資料作成、収益物件の利回り試算、周辺エリアや最寄り駅の坪単価分析、次回募集開始時期の予測などにご活用いただけます。 | ||
※「どの不動産に頼めばいいのか分からない」「信頼できる営業マンの話を聞きたい」「一番親切な会社と契約したい」とお悩みの方におすすめなのが「高級賃貸バイブル」です。
高級賃貸バイブルは業界10年以上の熟練スタッフ群がお客様ファーストで対応します。
下記ボタンから、まずは無料でご相談下さい。
※内覧をご希望の際には、どうぞ物件のエントランス前にてお待ち合わせくださいませ。ご内覧後は、同じ場所でお別れとさせていただきます。お客様のご都合に合わせたスムーズなご案内を心がけておりますので、ご質問等がございましたら何なりとお申し付けください。 物件概要
| 物件名 |
| 築年月 |
|
|---|---|---|---|
| 所在地 | |||
| 交通 | |||
| 総戸数 |
| 総階数 |
|
| 構造 |
| ||
地図
物件までの道のりは、「拡大地図を表示」をクリックしてナビ機能をご利用ください。
部屋設備




















建物設備

24時間管理

TVモニターホン

エレベーター

オートロック

バイク置場

フィットネス

フロントサービス

宅配ボックス

敷地内ゴミ置場

駐車場機械式

駐輪場
ラ・トゥール千代田富士見の現在募集中のお部屋
- No rooms found for this property.
