
| 賃料 | 予想金額:170,000〜190,000円程度 | 管理費 | 予想金額:3,000〜7,000円程度 |
| 礼金/敷金 | 非公開(アーカイブ) | 平米数 | 43.97㎡ |
| 初期費用概算(参考) | 目安:499,000〜599,000 円 | みなし賃料(月額・参考) | 182,688〜202,688 円 |
| 備考 | 本ページは過去募集のアーカイブです。表示の金額は周辺相場・過去募集を踏まえた参考レンジであり、実際の契約金額・条件ではありません。 | ||
※上記みなし賃料(月額)は仲介手数料割引・無料&キャッシュバックを加味した高級賃貸バイブル限定の金額です。一般的なみなし賃料とは異なります。
【建物ページ】ジェイパーク目黒4の詳細・最新空室はこちら▶▶選ばれる理由
仲介手数料無料・キャンペーン情報(毎月15名様限定)
〇仲介手数料割引キャンペーン
ジェイパーク目黒4 902の口コミ・レビュー
ジェイパーク目黒4 902。ここはただの住まいではなく、あなたの人生の舞台となる場所です。古き良き文化と新しい風が交わる目黒区下目黒に tucked away したこの物件は、まるで独自のストーリーを持つ隠れ家のよう。902号室の扉を開けると、そこにはあなたの心をとらえる特別な空間が広がります。専有面積43.97㎡の中に、贅沢と優雅さが絶妙に共存しています。
南東と北東の方角から降り注ぐ柔らかな…ジェイパーク目黒4 902。ここはただの住まいではなく、あなたの人生の舞台となる場所です。古き良き文化と新しい風が交わる目黒区下目黒に tucked away したこの物件は、まるで独自のストーリーを持つ隠れ家のよう。902号室の扉を開けると、そこにはあなたの心をとらえる特別な空間が広がります。専有面積43.97㎡の中に、贅沢と優雅さが絶妙に共存しています。
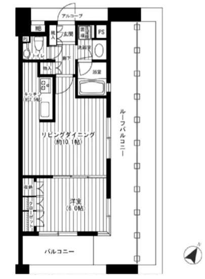
南東と北東の方角から降り注ぐ柔らかな光は、まるで朝露に光を浴びて輝く花々のように心を和ませます。LDK10.1帖の広々とした空間に足を踏み入れると、心地よい風が通り抜け、まるで自然と一体になったかのような感覚を覚えます。寝室には6帖の洋室があり、そこは心地よい眠りへと誘う静寂が漂っています。毎晩、この空間で夢の中へと旅立つ心地は、まるで星空の下に横たわるような自由さを感じさせます。
この物件では、毎日の生活が映画の一シーンのように感じられることでしょう。朝食を作るキッチンでは、香ばしいトーストの香りや新鮮なコーヒーの香りが漂い、あなたの日常を特別なものに変えます。リビングでの家族や友人との語らいは、笑い声と共に心に残る思い出を紡ぎ、共に過ごす時間が愛おしさに変わります。エレガントなインテリアは、あなたの個性を引き立て、心の中のアーティストを目覚めさせてくれるでしょう。
ジェイパーク目黒4 902には、生活の利便性を高めるための設備も充実しています。安心のオートロックや宅配ボックスは、まるであなたの日常を守る武士のように、しっかりとあなたをサポートしてくれます。管理人の優しい微笑みは、まるで故郷の温もりを思い起こさせるような、安らぎの象徴です。
目黒という土地自体が持つ歴史や文化に触れられるのも、この物件の魅力のひとつです。目黒川の潤いと共に生きるこの地区は、文学や芸術に影響を与え、今もなお新たなクリエイションを生み出す源泉として機能しています。住むことで、自ずとその波に乗って、あなたの感性も豊かに育まれることでしょう。
目黒駅から徒歩9分の立地は、忙しい日常の中でもホッと一息つける距離感を与えています。仕事帰りに目黒川を散策し、美しい夕暮れを目に焼き付けると、心の底から満たされる瞬間に出会えることでしょう。
ジェイパーク目黒4 902。新たな人生の物語がここから始まります。住まう人に語りかけ、毎日を特別にするこの空間は、あなたを待っています。さあ、新たな物語の主人公となって、ここでの生活を楽しんでみませんか。あなたの人生が輝くワンシーンの舞台として、ジェイパーク目黒4 902はいつでもあなたを迎え入れます。
南東と北東の方角から降り注ぐ柔らかな…ジェイパーク目黒4 902。ここはただの住まいではなく、あなたの人生の舞台となる場所です。古き良き文化と新しい風が交わる目黒区下目黒に tucked away したこの物件は、まるで独自のストーリーを持つ隠れ家のよう。902号室の扉を開けると、そこにはあなたの心をとらえる特別な空間が広がります。専有面積43.97㎡の中に、贅沢と優雅さが絶妙に共存しています。
南東と北東の方角から降り注ぐ柔らかな光は、まるで朝露に光を浴びて輝く花々のように心を和ませます。LDK10.1帖の広々とした空間に足を踏み入れると、心地よい風が通り抜け、まるで自然と一体になったかのような感覚を覚えます。寝室には6帖の洋室があり、そこは心地よい眠りへと誘う静寂が漂っています。毎晩、この空間で夢の中へと旅立つ心地は、まるで星空の下に横たわるような自由さを感じさせます。
この物件では、毎日の生活が映画の一シーンのように感じられることでしょう。朝食を作るキッチンでは、香ばしいトーストの香りや新鮮なコーヒーの香りが漂い、あなたの日常を特別なものに変えます。リビングでの家族や友人との語らいは、笑い声と共に心に残る思い出を紡ぎ、共に過ごす時間が愛おしさに変わります。エレガントなインテリアは、あなたの個性を引き立て、心の中のアーティストを目覚めさせてくれるでしょう。
ジェイパーク目黒4 902には、生活の利便性を高めるための設備も充実しています。安心のオートロックや宅配ボックスは、まるであなたの日常を守る武士のように、しっかりとあなたをサポートしてくれます。管理人の優しい微笑みは、まるで故郷の温もりを思い起こさせるような、安らぎの象徴です。
目黒という土地自体が持つ歴史や文化に触れられるのも、この物件の魅力のひとつです。目黒川の潤いと共に生きるこの地区は、文学や芸術に影響を与え、今もなお新たなクリエイションを生み出す源泉として機能しています。住むことで、自ずとその波に乗って、あなたの感性も豊かに育まれることでしょう。
目黒駅から徒歩9分の立地は、忙しい日常の中でもホッと一息つける距離感を与えています。仕事帰りに目黒川を散策し、美しい夕暮れを目に焼き付けると、心の底から満たされる瞬間に出会えることでしょう。
ジェイパーク目黒4 902。新たな人生の物語がここから始まります。住まう人に語りかけ、毎日を特別にするこの空間は、あなたを待っています。さあ、新たな物語の主人公となって、ここでの生活を楽しんでみませんか。あなたの人生が輝くワンシーンの舞台として、ジェイパーク目黒4 902はいつでもあなたを迎え入れます。
バイブルスコア
バイブルスコア: 21.8
平均的なスコアです。
※バイブルスコア詳細はこちら
バイブルスコアとは独自のAI機械学習技術を利用した物件評価システムで、物件のおすすめ度を示します。最高得点は100点で、スコアが高いほど、よりおすすめの物件と評価されています。
写真
契約条件
| 賃料 | 予想金額:170,000〜190,000円程度 | 管理費 | 予想金額:3,000〜7,000円程度 |
| 礼金 | 非公開(アーカイブ) | 敷金 | 非公開(アーカイブ) |
| フリーレント | なし | 平米数 | 43.97㎡ |
| 間取り | 1LDK | 大型収納 | |
| 契約期間 |
| 方角 | 南東 / 北東 |
| 更新料 | 契約形態 | 普通賃貸借契約 | |
| 取引態様 | 媒介 | 内見状況 | 入居中 |
| 入居時期 | 入居中 | SOHO・事務所 | |
| ペット | 間取り内訳 | 洋:6 LDK:10.1 | |
| キャンペーン情報・備考 | 本情報は賃料改定交渉の資料作成、収益物件の利回り試算、周辺エリアや最寄り駅の坪単価分析、次回募集開始時期の予測などにご活用いただけます。 | ||
※「どの不動産に頼めばいいのか分からない」「信頼できる営業マンの話を聞きたい」「一番親切な会社と契約したい」とお悩みの方におすすめなのが「高級賃貸バイブル」です。
高級賃貸バイブルは業界10年以上の熟練スタッフ群がお客様ファーストで対応します。
下記ボタンから、まずは無料でご相談下さい。
※内覧をご希望の際には、どうぞ物件のエントランス前にてお待ち合わせくださいませ。ご内覧後は、同じ場所でお別れとさせていただきます。お客様のご都合に合わせたスムーズなご案内を心がけておりますので、ご質問等がございましたら何なりとお申し付けください。 物件概要
| 物件名 |
| 築年月 |
|
|---|---|---|---|
| 所在地 | |||
| 交通 | |||
| 総戸数 |
| 総階数 |
|
| 構造 |
| ||
地図
物件までの道のりは、「拡大地図を表示」をクリックしてナビ機能をご利用ください。
部屋設備


















建物設備

TVモニターホン

エレベーター

オートロック

宅配ボックス

敷地内ゴミ置場

管理人

駐輪場
ジェイパーク目黒4の現在募集中のお部屋
- No rooms found for this property.




















