
| 賃料 | 予想金額:340,000〜360,000円程度 | 管理費 | 予想金額:13,000〜17,000円程度 |
| 礼金/敷金 | 非公開(アーカイブ) | 平米数 | 78.63㎡ |
| 初期費用概算(参考) | 目安:1,272,500〜1,372,500 円 | みなし賃料(月額・参考) | 375,260〜395,260 円 |
| 備考 | 本ページは過去募集のアーカイブです。表示の金額は周辺相場・過去募集を踏まえた参考レンジであり、実際の契約金額・条件ではありません。 | ||
※上記みなし賃料(月額)は仲介手数料割引・無料&キャッシュバックを加味した高級賃貸バイブル限定の金額です。一般的なみなし賃料とは異なります。
【建物ページ】ジェイパーク目黒4の詳細・最新空室はこちら▶▶選ばれる理由
仲介手数料無料・キャンペーン情報(毎月15名様限定)
〇仲介手数料割引キャンペーン
ジェイパーク目黒4 1階 78.63㎡の口コミ・レビュー
ジェイパーク目黒4 1階 78.63㎡。この名前を耳にするたび、まるで新しい物語の扉が開かれるかのような胸躍る感覚に包まれます。目黒区下目黒の静かな通りに佇むこの邸宅は、エレガントな装飾と快適さが織り成す、あなたの日常に煌めきを加える特別な場所です。
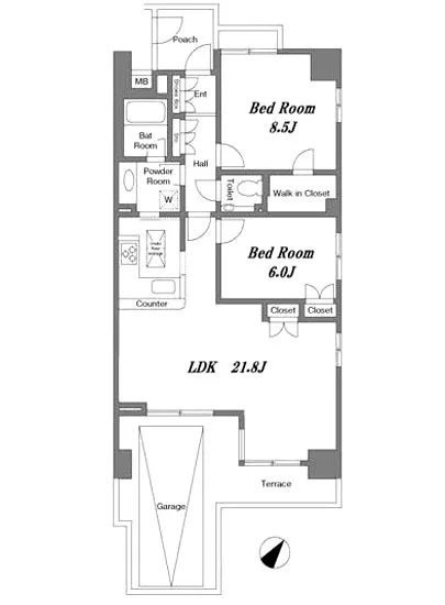
この物件は、南東向きの窓から朝日が柔らかく差し込み、昼間はその光を浴びて輝きを増すお部屋です。LDK21.8帖の広がりは、まるで余裕のある舞台のよ…ジェイパーク目黒4 1階 78.63㎡。この名前を耳にするたび、まるで新しい物語の扉が開かれるかのような胸躍る感覚に包まれます。目黒区下目黒の静かな通りに佇むこの邸宅は、エレガントな装飾と快適さが織り成す、あなたの日常に煌めきを加える特別な場所です。
この物件は、南東向きの窓から朝日が柔らかく差し込み、昼間はその光を浴びて輝きを増すお部屋です。LDK21.8帖の広がりは、まるで余裕のある舞台のように、あなたの生活を豊かに演出します。心地よい空気感の中で、リビングのソファに身を沈めると、外の風とともに運ばれてくる春の香り、夏の爽やかな風、秋の落ち葉の香ばしさ、冬の穏やかな静寂が、まるで季節の物語を語りかけてくるかのようです。
この素晴らしい時間を贅沢に味わうためには、LDKと洋室8.5帖、6帖の配置が見事に調和しています。大切な家族とともに食卓を囲み、笑い声が響く食事の時間や、友人を招いての心温まるパーティーは、まるで映画のワンシーンのよう。料理の香りが漂う中、テーブルを囲んで心地よい会話が続く様子が浮かんできます。そして夜が訪れると、ゆったりとした洋室で夢の世界に誘われ、まどろみの中で心身ともにリフレッシュすることができます。
ジェイパーク目黒4は、ただの住居ではなく、生活を創造する舞台です。視覚的な美しさだけでなく、耳に心地よい音、触れることができる温もり、日々の生活の中にある小さな幸せをすべて受け入れてくれる家。それは、あなた自身がこの場所の一部となり、共に成長していくことを可能にするでしょう。
また、物件周辺は歴史ある目黒の街並みが広がり、文化と芸術が息づいています。近くには美術館や公園も点在し、心豊かな散策が楽しめるのはこの地域ならではの魅力です。特に、目黒川沿いの桜並木は、春になると幻想的な景色を生み出し、心を打つ瞬間を提供してくれます。この地に住むことで、あなたは毎日が新たな発見で満ちた生活を手に入れることができるのです。
ジェイパーク目黒4 1階 78.63㎡は、まさにあなたの物語の舞台。心躍る新生活への第一歩を、この特別な場所で踏み出してみませんか。ここでの生活は、日常がいつも特別に、あなた自身を豊かにしてくれることでしょう。あなたの新しい物語が、ここから始まります。
この物件は、南東向きの窓から朝日が柔らかく差し込み、昼間はその光を浴びて輝きを増すお部屋です。LDK21.8帖の広がりは、まるで余裕のある舞台のよ…ジェイパーク目黒4 1階 78.63㎡。この名前を耳にするたび、まるで新しい物語の扉が開かれるかのような胸躍る感覚に包まれます。目黒区下目黒の静かな通りに佇むこの邸宅は、エレガントな装飾と快適さが織り成す、あなたの日常に煌めきを加える特別な場所です。
この物件は、南東向きの窓から朝日が柔らかく差し込み、昼間はその光を浴びて輝きを増すお部屋です。LDK21.8帖の広がりは、まるで余裕のある舞台のように、あなたの生活を豊かに演出します。心地よい空気感の中で、リビングのソファに身を沈めると、外の風とともに運ばれてくる春の香り、夏の爽やかな風、秋の落ち葉の香ばしさ、冬の穏やかな静寂が、まるで季節の物語を語りかけてくるかのようです。
この素晴らしい時間を贅沢に味わうためには、LDKと洋室8.5帖、6帖の配置が見事に調和しています。大切な家族とともに食卓を囲み、笑い声が響く食事の時間や、友人を招いての心温まるパーティーは、まるで映画のワンシーンのよう。料理の香りが漂う中、テーブルを囲んで心地よい会話が続く様子が浮かんできます。そして夜が訪れると、ゆったりとした洋室で夢の世界に誘われ、まどろみの中で心身ともにリフレッシュすることができます。
ジェイパーク目黒4は、ただの住居ではなく、生活を創造する舞台です。視覚的な美しさだけでなく、耳に心地よい音、触れることができる温もり、日々の生活の中にある小さな幸せをすべて受け入れてくれる家。それは、あなた自身がこの場所の一部となり、共に成長していくことを可能にするでしょう。
また、物件周辺は歴史ある目黒の街並みが広がり、文化と芸術が息づいています。近くには美術館や公園も点在し、心豊かな散策が楽しめるのはこの地域ならではの魅力です。特に、目黒川沿いの桜並木は、春になると幻想的な景色を生み出し、心を打つ瞬間を提供してくれます。この地に住むことで、あなたは毎日が新たな発見で満ちた生活を手に入れることができるのです。
ジェイパーク目黒4 1階 78.63㎡は、まさにあなたの物語の舞台。心躍る新生活への第一歩を、この特別な場所で踏み出してみませんか。ここでの生活は、日常がいつも特別に、あなた自身を豊かにしてくれることでしょう。あなたの新しい物語が、ここから始まります。
バイブルスコア
バイブルスコア: 16.8
高級な物件でない場合は割高な物件です。。
※バイブルスコア詳細はこちら
バイブルスコアとは独自のAI機械学習技術を利用した物件評価システムで、物件のおすすめ度を示します。最高得点は100点で、スコアが高いほど、よりおすすめの物件と評価されています。
写真
契約条件
| 賃料 | 予想金額:340,000〜360,000円程度 | 管理費 | 予想金額:13,000〜17,000円程度 |
| 礼金 | 非公開(アーカイブ) | 敷金 | 非公開(アーカイブ) |
| フリーレント | なし | 平米数 | 78.63㎡ |
| 間取り | 2LDK | 大型収納 | WIC |
| 契約期間 |
| 方角 | 南東 |
| 更新料 | 契約形態 | 普通賃貸借契約 | |
| 取引態様 | 媒介 | 内見状況 | 入居中 |
| 入居時期 | 入居中 | SOHO・事務所 | |
| ペット | 間取り内訳 | 洋:8.5 洋:6 LDK:21.8 | |
| キャンペーン情報・備考 | 本情報は賃料改定交渉の資料作成、収益物件の利回り試算、周辺エリアや最寄り駅の坪単価分析、次回募集開始時期の予測などにご活用いただけます。 | ||
※「どの不動産に頼めばいいのか分からない」「信頼できる営業マンの話を聞きたい」「一番親切な会社と契約したい」とお悩みの方におすすめなのが「高級賃貸バイブル」です。
高級賃貸バイブルは業界10年以上の熟練スタッフ群がお客様ファーストで対応します。
下記ボタンから、まずは無料でご相談下さい。
※内覧をご希望の際には、どうぞ物件のエントランス前にてお待ち合わせくださいませ。ご内覧後は、同じ場所でお別れとさせていただきます。お客様のご都合に合わせたスムーズなご案内を心がけておりますので、ご質問等がございましたら何なりとお申し付けください。 物件概要
| 物件名 |
| 築年月 |
|
|---|---|---|---|
| 所在地 | |||
| 交通 | |||
| 総戸数 |
| 総階数 |
|
| 構造 |
| ||
地図
物件までの道のりは、「拡大地図を表示」をクリックしてナビ機能をご利用ください。
部屋設備




















建物設備

TVモニターホン

エレベーター

オートロック

宅配ボックス

敷地内ゴミ置場

管理人

駐輪場
ジェイパーク目黒4の現在募集中のお部屋
- No rooms found for this property.




















