
| 賃料 | 予想金額:130,000〜150,000円程度 | 管理費 | 予想金額:8,000〜12,000円程度 |
| 礼金/敷金 | 非公開(アーカイブ) | 平米数 | 36.88㎡ |
| 初期費用概算(参考) | 目安:463,500〜563,500 円 | みなし賃料(月額・参考) | 147,781〜167,781 円 |
| 備考 | 本ページは過去募集のアーカイブです。表示の金額は周辺相場・過去募集を踏まえた参考レンジであり、実際の契約金額・条件ではありません。 | ||
※上記みなし賃料(月額)は仲介手数料割引・無料&キャッシュバックを加味した高級賃貸バイブル限定の金額です。一般的なみなし賃料とは異なります。
【建物ページ】パークウェル御茶ノ水の詳細・最新空室はこちら▶▶選ばれる理由
仲介手数料無料・キャンペーン情報(毎月15名様限定)
〇引っ越しお祝い金28000円プレゼント(キャッシュバック)
〇仲介手数料無料キャンペーン
パークウェル御茶ノ水 604の口コミ・レビュー
パークウェル御茶ノ水 604。ここに暮らすことは、まるで一篇の詩を日々の生活に紡ぐような体験を意味します。この洗練された空間は、歴史と現代が交差する街、東京都千代田区神田須田町に位置しており、一歩足を踏み入れれば、瞬時に心を奪われることでしょう。
この物件は、南西および南東に面した窓から柔らかな日差しが流れ込み、昼間は柔らかい光に包まれ、夜には街の灯りが煌めく様子を堪能できます。心地良い風が通り…パークウェル御茶ノ水 604。ここに暮らすことは、まるで一篇の詩を日々の生活に紡ぐような体験を意味します。この洗練された空間は、歴史と現代が交差する街、東京都千代田区神田須田町に位置しており、一歩足を踏み入れれば、瞬時に心を奪われることでしょう。
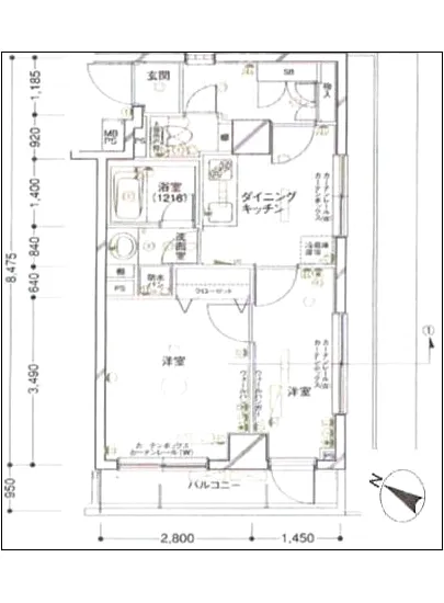
この物件は、南西および南東に面した窓から柔らかな日差しが流れ込み、昼間は柔らかい光に包まれ、夜には街の灯りが煌めく様子を堪能できます。心地良い風が通り抜ける廊下を抜け、あなたの新しい生活が始まるのです。パークウェル御茶ノ水 604の36.88㎡のスペースは、2DKという巧妙な間取りで構成されており、洋室のゆったりとした空間は、リラックスしたひとときや大切な人との共演を許してくれます。洋室は、あなたの想い描くシーンにぴったりな背景となることでしょう。
イメージを膨らませてみてください。朝、陽が昇ると共に心地良い光が差し込み、コーヒーの香りが漂うキッチンで、軽やかな朝食を楽しむ。頭上を流れる鳥のさえずりが、まるであなたの一日の始まりを祝福しているかのように聞こえてきます。リビングの窓からは、街の喧騒を少し離れたところから眺めることができ、人生の豊かさを感じる瞬間が訪れることでしょう。
そして、夜が訪れると、近くの飲食店から漂う美味なる料理の香りが、ドアを開けた瞬間に広がります。友人を招いては、ワインを片手に素敵なひとときを過ごす。笑い声や会話がこだまする中で、素晴らしい思い出が積み重なっていくのです。
パークウェル御茶ノ水 604は、訪れる人々に最高のもてなしをするための準備が整っています。エレベーターやオートロック、宅配ボックスなどの充実した設備が、快適な暮らしを演出してくれます。その上で、管理人の存在があなたの安心を支えており、敷地内にはゴミ置場や駐輪場も完備されているため、心を自由にし、暮らしに集中できる環境が整っています。
この物件がある神田須田町は、歴史が息づく街であり、多くの文化的な要素に触れることができる場所でもあります。周囲には古き良き伝統と現代の交錯があり、アートギャラリーや古本屋があなたの感性を刺激します。まるで映画のワンシーンのように、日常生活が美しいストーリーへと変わっていくのが感じられるでしょう。
パークウェル御茶ノ水 604は、ただの住まいではありません。あなたのライフスタイルを豊かにするための新たな舞台なのです。この地に足を踏み入れることで、あなたの人生がどのように彩られていくのか、一緒に歩んでいくことを心から楽しみにしています。あなたの新たな生活が、ここで展開されることを願ってやみません。
この物件は、南西および南東に面した窓から柔らかな日差しが流れ込み、昼間は柔らかい光に包まれ、夜には街の灯りが煌めく様子を堪能できます。心地良い風が通り…パークウェル御茶ノ水 604。ここに暮らすことは、まるで一篇の詩を日々の生活に紡ぐような体験を意味します。この洗練された空間は、歴史と現代が交差する街、東京都千代田区神田須田町に位置しており、一歩足を踏み入れれば、瞬時に心を奪われることでしょう。
この物件は、南西および南東に面した窓から柔らかな日差しが流れ込み、昼間は柔らかい光に包まれ、夜には街の灯りが煌めく様子を堪能できます。心地良い風が通り抜ける廊下を抜け、あなたの新しい生活が始まるのです。パークウェル御茶ノ水 604の36.88㎡のスペースは、2DKという巧妙な間取りで構成されており、洋室のゆったりとした空間は、リラックスしたひとときや大切な人との共演を許してくれます。洋室は、あなたの想い描くシーンにぴったりな背景となることでしょう。
イメージを膨らませてみてください。朝、陽が昇ると共に心地良い光が差し込み、コーヒーの香りが漂うキッチンで、軽やかな朝食を楽しむ。頭上を流れる鳥のさえずりが、まるであなたの一日の始まりを祝福しているかのように聞こえてきます。リビングの窓からは、街の喧騒を少し離れたところから眺めることができ、人生の豊かさを感じる瞬間が訪れることでしょう。
そして、夜が訪れると、近くの飲食店から漂う美味なる料理の香りが、ドアを開けた瞬間に広がります。友人を招いては、ワインを片手に素敵なひとときを過ごす。笑い声や会話がこだまする中で、素晴らしい思い出が積み重なっていくのです。
パークウェル御茶ノ水 604は、訪れる人々に最高のもてなしをするための準備が整っています。エレベーターやオートロック、宅配ボックスなどの充実した設備が、快適な暮らしを演出してくれます。その上で、管理人の存在があなたの安心を支えており、敷地内にはゴミ置場や駐輪場も完備されているため、心を自由にし、暮らしに集中できる環境が整っています。
この物件がある神田須田町は、歴史が息づく街であり、多くの文化的な要素に触れることができる場所でもあります。周囲には古き良き伝統と現代の交錯があり、アートギャラリーや古本屋があなたの感性を刺激します。まるで映画のワンシーンのように、日常生活が美しいストーリーへと変わっていくのが感じられるでしょう。
パークウェル御茶ノ水 604は、ただの住まいではありません。あなたのライフスタイルを豊かにするための新たな舞台なのです。この地に足を踏み入れることで、あなたの人生がどのように彩られていくのか、一緒に歩んでいくことを心から楽しみにしています。あなたの新たな生活が、ここで展開されることを願ってやみません。
バイブルスコア
バイブルスコア: 70.3
かなり条件の良い物件です、即仮押さえをおすすめする物件です!
このお部屋は、現在ご入居中のため空室情報はございません。ただし、将来的に募集が開始される際、バイブルスコアにおいて非常に高い評価が期待されます。特にご興味をお持ちの方は、今のうちにブックマークやお気に入りに登録していただくと、募集開始のお知らせをすぐに受け取ることができます。是非ともご検討くださいませ。
※バイブルスコア詳細はこちら
バイブルスコアとは独自のAI機械学習技術を利用した物件評価システムで、物件のおすすめ度を示します。最高得点は100点で、スコアが高いほど、よりおすすめの物件と評価されています。
写真
契約条件
| 賃料 | 予想金額:130,000〜150,000円程度 | 管理費 | 予想金額:8,000〜12,000円程度 |
| 礼金 | 非公開(アーカイブ) | 敷金 | 非公開(アーカイブ) |
| フリーレント | なし | 平米数 | 36.88㎡ |
| 間取り | 2DK | 大型収納 | |
| 契約期間 | 2年 | 方角 | 南西 / 南東 |
| 更新料 | 1ヶ月 | 契約形態 | 普通賃貸借契約 |
| 取引態様 | 媒介 | 内見状況 | 入居中 |
| 入居時期 | 入居中 | SOHO・事務所 | |
| ペット | 間取り内訳 | 洋: 洋: DK: | |
| キャンペーン情報・備考 | 本情報は賃料改定交渉の資料作成、収益物件の利回り試算、周辺エリアや最寄り駅の坪単価分析、次回募集開始時期の予測などにご活用いただけます。 | ||
※「どの不動産に頼めばいいのか分からない」「信頼できる営業マンの話を聞きたい」「一番親切な会社と契約したい」とお悩みの方におすすめなのが「高級賃貸バイブル」です。
高級賃貸バイブルは業界10年以上の熟練スタッフ群がお客様ファーストで対応します。
下記ボタンから、まずは無料でご相談下さい。
※内覧をご希望の際には、どうぞ物件のエントランス前にてお待ち合わせくださいませ。ご内覧後は、同じ場所でお別れとさせていただきます。お客様のご都合に合わせたスムーズなご案内を心がけておりますので、ご質問等がございましたら何なりとお申し付けください。 物件概要
| 物件名 |
| 築年月 |
|
|---|---|---|---|
| 所在地 | |||
| 交通 | |||
| 総戸数 |
| 総階数 |
|
| 構造 |
| ||
地図
物件までの道のりは、「拡大地図を表示」をクリックしてナビ機能をご利用ください。
部屋設備














建物設備

TVモニターホン

エレベーター

オートロック

宅配ボックス

敷地内ゴミ置場

管理人

駐輪場
パークウェル御茶ノ水の現在募集中のお部屋
- No rooms found for this property.




























