
| 賃料 | 予想金額:147,000〜167,000円程度 | 管理費 | 予想金額:10,000〜14,000円程度 |
| 礼金/敷金 | 非公開(アーカイブ) | 平米数 | 47.44㎡ |
| 初期費用概算(参考) | 目安:452,000〜552,000 円 | みなし賃料(月額・参考) | 166,188〜186,188 円 |
| 備考 | 本ページは過去募集のアーカイブです。表示の金額は周辺相場・過去募集を踏まえた参考レンジであり、実際の契約金額・条件ではありません。 | ||
※上記みなし賃料(月額)は仲介手数料割引・無料&キャッシュバックを加味した高級賃貸バイブル限定の金額です。一般的なみなし賃料とは異なります。
【建物ページ】エスティメゾン高円寺の詳細・最新空室はこちら▶▶選ばれる理由
仲介手数料無料・キャンペーン情報(毎月15名様限定)
〇仲介手数料割引キャンペーン
エスティメゾン高円寺 201の口コミ・レビュー
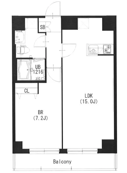
エスティメゾン高円寺 201、その名を持つこの素晴らしいお住まいは、まるで時を超えた美術品のように、あなたの人生に新たな色を添えてくれる存在です。東京都杉並区高円寺南5-25-26に位置し、西の陽射しを浴びるこの物件は、周囲の景観と調和しつつも、一際目を引く独特の魅力を放っています。エスティメゾン高円寺 201は、47.44㎡の広さを持つ1LDKの間取りで、洋室7.2帖と15帖のリビングダイニング…エスティメゾン高円寺 201、その名を持つこの素晴らしいお住まいは、まるで時を超えた美術品のように、あなたの人生に新たな色を添えてくれる存在です。東京都杉並区高円寺南5-25-26に位置し、西の陽射しを浴びるこの物件は、周囲の景観と調和しつつも、一際目を引く独特の魅力を放っています。エスティメゾン高円寺 201は、47.44㎡の広さを持つ1LDKの間取りで、洋室7.2帖と15帖のリビングダイニングキッチンがやさしい調和を描き出しています。
この住まいがあなたに語りかけてくるのは、その背後にある数々の歴史と文化の物語です。高円寺の街は、ビンテージショップやカフェ、アートギャラリーが点在し、まるで住民たちが思い思いのストーリーを紡ぐ舞台のようです。毎朝目覚めたとき、窓から差し込む柔らかな陽光は、まるで自然からの優しい祝福のようにあなたを包み込みます。そして、生活音は穏やかなメロディーになり、あなたの心を安らげるでしょう。
エスティメゾン高円寺 201の中に一歩足を踏み入れれば、触覚を刺激する素敵な素材感があなたを迎え入れます。デザイナーズ空間には、洗練されたデザインと高級感が溢れ、四季折々の感覚が見事に調和しているのが感じられます。エレガントなキッチンで料理をするその瞬間、香ばしい食材の香りが漂い、まるで料理長になったかのような興奮を覚えます。友人を招いての食事会では、リビングの広々とした空間が大きなシアターのように、祝福の場を演出することでしょう。
また、24時間管理された安心感は、まるであなたの身を守ってくれる忠実な番人のようです。オートロックやテレビモニターホンは、まるで現代の城壁を築くかのように、あなたのプライバシーをしっかりと守ります。さらに、宅配ボックスや駐輪場、駐車場なども完備されており、生活の利便性が高まることでしょう。
夕暮れ時、エスティメゾン高円寺 201の西向きの窓からは、夕焼けが広がり、街が黄金色に染まる瞬間を見ることができます。その美しさには息を飲むことでしょう。まるで映画の一場面にいるかのような特別な体験が、あなたの日常に溶け込んでいます。
高円寺の文化に浸ることができるこのエスティメゾン高円寺 201は、単なる住まいではありません。あなた自身の物語を育むキャンバスであり、夢を描く場所なのです。日々の生活がアートで満ち溢れるこの空間に、ぜひとも足を踏み入れてみてください。あなたの新たな生活が、ここ高円寺で待っています。
この住まいがあなたに語りかけてくるのは、その背後にある数々の歴史と文化の物語です。高円寺の街は、ビンテージショップやカフェ、アートギャラリーが点在し、まるで住民たちが思い思いのストーリーを紡ぐ舞台のようです。毎朝目覚めたとき、窓から差し込む柔らかな陽光は、まるで自然からの優しい祝福のようにあなたを包み込みます。そして、生活音は穏やかなメロディーになり、あなたの心を安らげるでしょう。
エスティメゾン高円寺 201の中に一歩足を踏み入れれば、触覚を刺激する素敵な素材感があなたを迎え入れます。デザイナーズ空間には、洗練されたデザインと高級感が溢れ、四季折々の感覚が見事に調和しているのが感じられます。エレガントなキッチンで料理をするその瞬間、香ばしい食材の香りが漂い、まるで料理長になったかのような興奮を覚えます。友人を招いての食事会では、リビングの広々とした空間が大きなシアターのように、祝福の場を演出することでしょう。
また、24時間管理された安心感は、まるであなたの身を守ってくれる忠実な番人のようです。オートロックやテレビモニターホンは、まるで現代の城壁を築くかのように、あなたのプライバシーをしっかりと守ります。さらに、宅配ボックスや駐輪場、駐車場なども完備されており、生活の利便性が高まることでしょう。
夕暮れ時、エスティメゾン高円寺 201の西向きの窓からは、夕焼けが広がり、街が黄金色に染まる瞬間を見ることができます。その美しさには息を飲むことでしょう。まるで映画の一場面にいるかのような特別な体験が、あなたの日常に溶け込んでいます。
高円寺の文化に浸ることができるこのエスティメゾン高円寺 201は、単なる住まいではありません。あなた自身の物語を育むキャンバスであり、夢を描く場所なのです。日々の生活がアートで満ち溢れるこの空間に、ぜひとも足を踏み入れてみてください。あなたの新たな生活が、ここ高円寺で待っています。
バイブルスコア
バイブルスコア: 35.9
平均的なスコアです。
※バイブルスコア詳細はこちら
バイブルスコアとは独自のAI機械学習技術を利用した物件評価システムで、物件のおすすめ度を示します。最高得点は100点で、スコアが高いほど、よりおすすめの物件と評価されています。
写真
現在写真が登録されていません契約条件
| 賃料 | 予想金額:147,000〜167,000円程度 | 管理費 | 予想金額:10,000〜14,000円程度 |
| 礼金 | 非公開(アーカイブ) | 敷金 | 非公開(アーカイブ) |
| フリーレント | なし | 平米数 | 47.44㎡ |
| 間取り | 1LDK | 大型収納 | |
| 契約期間 |
| 方角 | 西 |
| 更新料 | 契約形態 | 普通賃貸借契約 | |
| 取引態様 | 媒介 | 内見状況 | 入居中 |
| 入居時期 | 入居中 | SOHO・事務所 | |
| ペット | ペット可 | 間取り内訳 | 洋:7.2 LDK:15 |
| キャンペーン情報・備考 | 本情報は賃料改定交渉の資料作成、収益物件の利回り試算、周辺エリアや最寄り駅の坪単価分析、次回募集開始時期の予測などにご活用いただけます。 | ||
※「どの不動産に頼めばいいのか分からない」「信頼できる営業マンの話を聞きたい」「一番親切な会社と契約したい」とお悩みの方におすすめなのが「高級賃貸バイブル」です。
高級賃貸バイブルは業界10年以上の熟練スタッフ群がお客様ファーストで対応します。
下記ボタンから、まずは無料でご相談下さい。
※内覧をご希望の際には、どうぞ物件のエントランス前にてお待ち合わせくださいませ。ご内覧後は、同じ場所でお別れとさせていただきます。お客様のご都合に合わせたスムーズなご案内を心がけておりますので、ご質問等がございましたら何なりとお申し付けください。 物件概要
| 物件名 |
| 築年月 |
|
|---|---|---|---|
| 所在地 | |||
| 交通 | |||
| 総戸数 |
| 総階数 |
|
| 構造 |
| ||
地図
物件までの道のりは、「拡大地図を表示」をクリックしてナビ機能をご利用ください。
部屋設備















建物設備

24時間管理

TVモニターホン

エレベーター

オートロック

宅配ボックス

敷地内ゴミ置場

管理人

駐車場平置き

駐車場機械式

駐輪場
エスティメゾン高円寺の現在募集中のお部屋
- エスティメゾン高円寺 301 - 間取り: 1LDK - 賃料: 19.5万円
