
| 賃料 | 予想金額:122,000〜142,000円程度 | 管理費 | 予想金額:8,000〜12,000円程度 |
| 礼金/敷金 | 非公開(アーカイブ) | 平米数 | 35.8㎡ |
| 初期費用概算(参考) | 目安:148,800〜248,800 円 | みなし賃料(月額・参考) | 133,392〜153,392 円 |
| 備考 | 本ページは過去募集のアーカイブです。表示の金額は周辺相場・過去募集を踏まえた参考レンジであり、実際の契約金額・条件ではありません。 | ||
※上記みなし賃料(月額)は仲介手数料割引・無料&キャッシュバックを加味した高級賃貸バイブル限定の金額です。一般的なみなし賃料とは異なります。
【建物ページ】FLEG自由が丘の詳細・最新空室はこちら▶▶選ばれる理由
仲介手数料無料・キャンペーン情報(毎月15名様限定)
〇仲介手数料無料キャンペーン
FLEG自由が丘 201の口コミ・レビュー
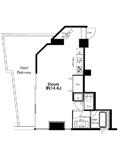
FLEG自由が丘 201。東京都目黒区自由が丘1-17-17に輝き、まるで夢の中に存在するかのような高級賃貸物件です。あなたがこの空間に足を踏み入れる瞬間、その特別なエネルギーを感じ取ることでしょう。専有面積35.8㎡のこのスタイリッシュな1Rは、自由が丘の豊かな文化と歴史が息づく場所に位置しています。この物件は単なる住まいではなく、貴方の新たな人生の舞台となるのです。
部屋に入ると、14.4帖…FLEG自由が丘 201。東京都目黒区自由が丘1-17-17に輝き、まるで夢の中に存在するかのような高級賃貸物件です。あなたがこの空間に足を踏み入れる瞬間、その特別なエネルギーを感じ取ることでしょう。専有面積35.8㎡のこのスタイリッシュな1Rは、自由が丘の豊かな文化と歴史が息づく場所に位置しています。この物件は単なる住まいではなく、貴方の新たな人生の舞台となるのです。
部屋に入ると、14.4帖の広々とした洋室が、あなたを包み込むように優雅に広がります。白を基調とした壁に映り込む柔らかな光が、日々の暮らしを温かく彩ります。天井高のデザインは、まるで空を感じさせる開放感をもたらしてくれます。まさに、あなたの心が求める静寂と安らぎの空間。それは、自然の息吹を感じるかのような心地よい風が、窓から流れ込む瞬間に訪れます。
周辺には、数々のカフェやブティックが立ち並び、自由が丘の洗練された魅力が満ち溢れています。歩き疲れて立ち寄ったカフェで感じるコーヒーの香り、甘く優しいデザートの味わい。それは、まるで映画のワンシーンのように、あなたの日常に特別なスパイスを加えてくれることでしょう。友人と笑い合いながら過ごしたり、静かな時間を一人で過ごしたり、様々なシーンが繰り広げられることでしょう。
FLEG自由が丘 201の魅力は、設備にも表れています。オートロックやTVモニターホン、宅配ボックスといった先進的なセキュリティシステムが、安心をもたらしてくれます。管理人の存在は、まるで親しい友人のように心強いサポートを提供してくれることでしょう。そして、敷地内にはゴミ置場や駐輪場が完備されており、日常生活の便利さも抜群です。
この物件はただの空間ではなく、あなたの人生を豊かにする『家』です。自由が丘という文化の核に包まれ、芸術と洗練が交錯する場所で、FLEG自由が丘 201は、貴方の物語の新章を切り開いてくれることでしょう。感覚を刺激する洗練されたデザインの中で、貴方だけの特別な時間を創造してください。あなたの人生の舞台が、ここから始まります。
部屋に入ると、14.4帖…FLEG自由が丘 201。東京都目黒区自由が丘1-17-17に輝き、まるで夢の中に存在するかのような高級賃貸物件です。あなたがこの空間に足を踏み入れる瞬間、その特別なエネルギーを感じ取ることでしょう。専有面積35.8㎡のこのスタイリッシュな1Rは、自由が丘の豊かな文化と歴史が息づく場所に位置しています。この物件は単なる住まいではなく、貴方の新たな人生の舞台となるのです。
部屋に入ると、14.4帖の広々とした洋室が、あなたを包み込むように優雅に広がります。白を基調とした壁に映り込む柔らかな光が、日々の暮らしを温かく彩ります。天井高のデザインは、まるで空を感じさせる開放感をもたらしてくれます。まさに、あなたの心が求める静寂と安らぎの空間。それは、自然の息吹を感じるかのような心地よい風が、窓から流れ込む瞬間に訪れます。
周辺には、数々のカフェやブティックが立ち並び、自由が丘の洗練された魅力が満ち溢れています。歩き疲れて立ち寄ったカフェで感じるコーヒーの香り、甘く優しいデザートの味わい。それは、まるで映画のワンシーンのように、あなたの日常に特別なスパイスを加えてくれることでしょう。友人と笑い合いながら過ごしたり、静かな時間を一人で過ごしたり、様々なシーンが繰り広げられることでしょう。
FLEG自由が丘 201の魅力は、設備にも表れています。オートロックやTVモニターホン、宅配ボックスといった先進的なセキュリティシステムが、安心をもたらしてくれます。管理人の存在は、まるで親しい友人のように心強いサポートを提供してくれることでしょう。そして、敷地内にはゴミ置場や駐輪場が完備されており、日常生活の便利さも抜群です。
この物件はただの空間ではなく、あなたの人生を豊かにする『家』です。自由が丘という文化の核に包まれ、芸術と洗練が交錯する場所で、FLEG自由が丘 201は、貴方の物語の新章を切り開いてくれることでしょう。感覚を刺激する洗練されたデザインの中で、貴方だけの特別な時間を創造してください。あなたの人生の舞台が、ここから始まります。
写真
現在写真が登録されていません契約条件
| 賃料 | 予想金額:122,000〜142,000円程度 | 管理費 | 予想金額:8,000〜12,000円程度 |
| 礼金 | 非公開(アーカイブ) | 敷金 | 非公開(アーカイブ) |
| フリーレント | なし | 平米数 | 35.8㎡ |
| 間取り | 1R | 大型収納 | |
| 契約期間 |
| 方角 | |
| 更新料 | 契約形態 | 普通賃貸借契約 | |
| 取引態様 | 媒介 | 内見状況 | 入居中 |
| 入居時期 | 入居中 | SOHO・事務所 | 事務所(SOHO)可 |
| ペット | ペット可 | 間取り内訳 | 洋:14.4 |
| キャンペーン情報・備考 | 本情報は賃料改定交渉の資料作成、収益物件の利回り試算、周辺エリアや最寄り駅の坪単価分析、次回募集開始時期の予測などにご活用いただけます。 | ||
※「どの不動産に頼めばいいのか分からない」「信頼できる営業マンの話を聞きたい」「一番親切な会社と契約したい」とお悩みの方におすすめなのが「高級賃貸バイブル」です。
高級賃貸バイブルは業界10年以上の熟練スタッフ群がお客様ファーストで対応します。
下記ボタンから、まずは無料でご相談下さい。
※内覧をご希望の際には、どうぞ物件のエントランス前にてお待ち合わせくださいませ。ご内覧後は、同じ場所でお別れとさせていただきます。お客様のご都合に合わせたスムーズなご案内を心がけておりますので、ご質問等がございましたら何なりとお申し付けください。 物件概要
| 物件名 |
| 築年月 |
|
|---|---|---|---|
| 所在地 | |||
| 交通 | |||
| 総戸数 |
| 総階数 |
|
| 構造 |
| ||
地図
物件までの道のりは、「拡大地図を表示」をクリックしてナビ機能をご利用ください。
部屋設備
















建物設備

TVモニターホン

エレベーター

オートロック

宅配ボックス

敷地内ゴミ置場

管理人

駐輪場
FLEG自由が丘の現在募集中のお部屋
- No rooms found for this property.
