
| 賃料 | 予想金額:155,000〜175,000円程度 | 管理費 | 予想金額:8,000〜12,000円程度 |
| 礼金/敷金 | 非公開(アーカイブ) | 平米数 | 44.92㎡ |
| 初期費用概算(参考) | 目安:634,000〜734,000 円 | みなし賃料(月額・参考) | 175,813〜195,813 円 |
| 備考 | 本ページは過去募集のアーカイブです。表示の金額は周辺相場・過去募集を踏まえた参考レンジであり、実際の契約金額・条件ではありません。 | ||
※上記みなし賃料(月額)は仲介手数料割引・無料&キャッシュバックを加味した高級賃貸バイブル限定の金額です。一般的なみなし賃料とは異なります。
【建物ページ】アルス中目黒ヴィルトレーテの詳細・最新空室はこちら▶▶選ばれる理由
仲介手数料無料・キャンペーン情報(毎月15名様限定)
〇仲介手数料割引キャンペーン
アルス中目黒ヴィルトレーテ 201の口コミ・レビュー
アルス中目黒ヴィルトレーテ 201は、都市の喧騒から少し離れた静けさの中に佇み、あなたを待ち望んでいる特別な住まいです。この1LDKという名の小宇宙は、44.92㎡の広さに、暮らしの豊かさと心の豊かさを詰め込んだ宝石のような空間です。東京メトロ日比谷線の中目黒駅から徒歩7分、その道のりはまるで小道を散策するかのように穏やかで、日常のストレスを忘れさせてくれます。
北東の方角に位置しているこのお部…アルス中目黒ヴィルトレーテ 201は、都市の喧騒から少し離れた静けさの中に佇み、あなたを待ち望んでいる特別な住まいです。この1LDKという名の小宇宙は、44.92㎡の広さに、暮らしの豊かさと心の豊かさを詰め込んだ宝石のような空間です。東京メトロ日比谷線の中目黒駅から徒歩7分、その道のりはまるで小道を散策するかのように穏やかで、日常のストレスを忘れさせてくれます。
北東の方角に位置しているこのお部屋は、朝日を優しく受け止め、柔らかな光に包まれます。起きたてのあなたを迎えるのは、リビングダイニング10.5帖の広々としたスペース。その大きな窓から差し込む光は、まるで無垢な天使の手が触れるかのように柔らかく、さらさらと心地よいそよ風が新鮮な香りを運んできます。朝のコーヒーの香りが漂い、あなたの好きな曲が流れる中、心地よい時間が静かに流れていきます。
洋室5.9帖は、あなたのインスピレーションを喚起する隠れ家的な空間。ちょっとした静寂の中で本を読む時間や、大切な誰かと心を通わせるひとときが、まるで映画のワンシーンのように映し出されるのです。あなたの心が求める全ての要素がこの部屋には詰まっています。
アルス中目黒ヴィルトレーテ 201は、ただの賃貸物件ではありません。ここには、あなたが思い描く理想的な生活が待っています。エレベーターでの優雅な上昇は、まるで日常から非日常へとエスコートされているかのようで、その先に広がる空間は心安らぐ故郷のような存在感を持っています。オートロックの安心感は、あなたを守る堅牢な盾であり、宅配ボックスは忙しい日常に寄り添う親友のようです。
周辺には、中目黒の魅力が散りばめられています。緑豊かな公園やおしゃれなカフェ、洗練されたショップが点在し、まるでアートの展覧会の中にいるかのような感覚に浸ることができます。時折、耳にする街の音は、まるで楽団が奏でる調べのようで、心に響くことでしょう。目黒川のほとりを歩けば、季節ごとの美しい風景が広がり、四季折々の色彩があなたの心を満たします。
アルス中目黒ヴィルトレーテ 201は、その存在自体が文化と芸術の交差点であり、あなたの新しい物語の幕開けを告げています。この場所での日々は、まさにあなた自身の人生を彩る華やかなステージとなるでしょう。さあ、この特別な空間に足を踏み入れ、新たな生活を共に築いていく準備を始めてみてはいかがでしょうか。あなたの心が求める全てが、ここには揃っています。
北東の方角に位置しているこのお部…アルス中目黒ヴィルトレーテ 201は、都市の喧騒から少し離れた静けさの中に佇み、あなたを待ち望んでいる特別な住まいです。この1LDKという名の小宇宙は、44.92㎡の広さに、暮らしの豊かさと心の豊かさを詰め込んだ宝石のような空間です。東京メトロ日比谷線の中目黒駅から徒歩7分、その道のりはまるで小道を散策するかのように穏やかで、日常のストレスを忘れさせてくれます。
北東の方角に位置しているこのお部屋は、朝日を優しく受け止め、柔らかな光に包まれます。起きたてのあなたを迎えるのは、リビングダイニング10.5帖の広々としたスペース。その大きな窓から差し込む光は、まるで無垢な天使の手が触れるかのように柔らかく、さらさらと心地よいそよ風が新鮮な香りを運んできます。朝のコーヒーの香りが漂い、あなたの好きな曲が流れる中、心地よい時間が静かに流れていきます。
洋室5.9帖は、あなたのインスピレーションを喚起する隠れ家的な空間。ちょっとした静寂の中で本を読む時間や、大切な誰かと心を通わせるひとときが、まるで映画のワンシーンのように映し出されるのです。あなたの心が求める全ての要素がこの部屋には詰まっています。
アルス中目黒ヴィルトレーテ 201は、ただの賃貸物件ではありません。ここには、あなたが思い描く理想的な生活が待っています。エレベーターでの優雅な上昇は、まるで日常から非日常へとエスコートされているかのようで、その先に広がる空間は心安らぐ故郷のような存在感を持っています。オートロックの安心感は、あなたを守る堅牢な盾であり、宅配ボックスは忙しい日常に寄り添う親友のようです。
周辺には、中目黒の魅力が散りばめられています。緑豊かな公園やおしゃれなカフェ、洗練されたショップが点在し、まるでアートの展覧会の中にいるかのような感覚に浸ることができます。時折、耳にする街の音は、まるで楽団が奏でる調べのようで、心に響くことでしょう。目黒川のほとりを歩けば、季節ごとの美しい風景が広がり、四季折々の色彩があなたの心を満たします。
アルス中目黒ヴィルトレーテ 201は、その存在自体が文化と芸術の交差点であり、あなたの新しい物語の幕開けを告げています。この場所での日々は、まさにあなた自身の人生を彩る華やかなステージとなるでしょう。さあ、この特別な空間に足を踏み入れ、新たな生活を共に築いていく準備を始めてみてはいかがでしょうか。あなたの心が求める全てが、ここには揃っています。
バイブルスコア
バイブルスコア: 32.7
平均的なスコアです。
※バイブルスコア詳細はこちら
バイブルスコアとは独自のAI機械学習技術を利用した物件評価システムで、物件のおすすめ度を示します。最高得点は100点で、スコアが高いほど、よりおすすめの物件と評価されています。
写真
契約条件
| 賃料 | 予想金額:155,000〜175,000円程度 | 管理費 | 予想金額:8,000〜12,000円程度 |
| 礼金 | 非公開(アーカイブ) | 敷金 | 非公開(アーカイブ) |
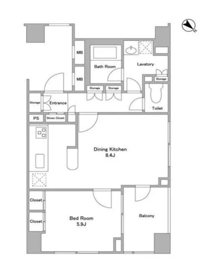
| フリーレント | なし | 平米数 | 44.92㎡ |
| 間取り | 1LDK | 大型収納 | |
| 契約期間 |
| 方角 | 北東 |
| 更新料 | 契約形態 | 普通賃貸借契約 | |
| 取引態様 | 媒介 | 内見状況 | 入居中 |
| 入居時期 | 入居中 | SOHO・事務所 | |
| ペット | 間取り内訳 | 洋:5.9 LDK:10.5 | |
| キャンペーン情報・備考 | 本情報は賃料改定交渉の資料作成、収益物件の利回り試算、周辺エリアや最寄り駅の坪単価分析、次回募集開始時期の予測などにご活用いただけます。 | ||
※「どの不動産に頼めばいいのか分からない」「信頼できる営業マンの話を聞きたい」「一番親切な会社と契約したい」とお悩みの方におすすめなのが「高級賃貸バイブル」です。
高級賃貸バイブルは業界10年以上の熟練スタッフ群がお客様ファーストで対応します。
下記ボタンから、まずは無料でご相談下さい。
※内覧をご希望の際には、どうぞ物件のエントランス前にてお待ち合わせくださいませ。ご内覧後は、同じ場所でお別れとさせていただきます。お客様のご都合に合わせたスムーズなご案内を心がけておりますので、ご質問等がございましたら何なりとお申し付けください。 物件概要
| 物件名 |
| 築年月 |
|
|---|---|---|---|
| 所在地 | |||
| 交通 | |||
| 総戸数 |
| 総階数 |
|
| 構造 |
| ||
地図
物件までの道のりは、「拡大地図を表示」をクリックしてナビ機能をご利用ください。
部屋設備













建物設備

TVモニターホン

エレベーター

オートロック

宅配ボックス

敷地内ゴミ置場

管理人

駐輪場
アルス中目黒ヴィルトレーテの現在募集中のお部屋
- No rooms found for this property.




















