
| 賃料 | 予想金額:96,000〜116,000円程度 | 管理費 | 予想金額:8,000〜12,000円程度 |
| 礼金/敷金 | 非公開(アーカイブ) | 平米数 | 19.77㎡ |
| 初期費用概算(参考) | 目安:321,500〜421,500 円 | みなし賃料(月額・参考) | 111,531〜131,531 円 |
| 備考 | 本ページは過去募集のアーカイブです。表示の金額は周辺相場・過去募集を踏まえた参考レンジであり、実際の契約金額・条件ではありません。 | ||
※上記みなし賃料(月額)は仲介手数料割引・無料&キャッシュバックを加味した高級賃貸バイブル限定の金額です。一般的なみなし賃料とは異なります。
【建物ページ】カスタリア中目黒の詳細・最新空室はこちら▶▶選ばれる理由
仲介手数料無料・キャンペーン情報(毎月15名様限定)
〇仲介手数料割引キャンペーン
カスタリア中目黒 514の口コミ・レビュー
カスタリア中目黒 514。あなたの新しい住まいが、ここにあります。その名は、ただの物件ではなく、心を奪う物語の舞台となる場所。19.77㎡の広がりを持つ小宇宙、ここでは日々、感動が息づいています。エレベーターで昇っていくと、南東の窓からは、朝陽が優しくあなたを包み込み、あたかも大切な友人のように迎え入れてくれます。
カスタリア中目黒 514は、洗練されたデザインの中に、優雅さと機能性を絶妙に融合…カスタリア中目黒 514。あなたの新しい住まいが、ここにあります。その名は、ただの物件ではなく、心を奪う物語の舞台となる場所。19.77㎡の広がりを持つ小宇宙、ここでは日々、感動が息づいています。エレベーターで昇っていくと、南東の窓からは、朝陽が優しくあなたを包み込み、あたかも大切な友人のように迎え入れてくれます。
カスタリア中目黒 514は、洗練されたデザインの中に、優雅さと機能性を絶妙に融合させています。TVモニターホンの前で、あなたの生活はより安全に、また、オートロックの扉があなたを守ることで安心感も増します。まるで、現代の騎士のように。しかし、この場所はただの居住空間ではなく、あなたのためにデザインされた真の隠れ家です。
ここでは、朝の静けさの中で一杯の香り高いコーヒーを啜りながら、窓の外の木々が奏でる風のハーモニーに耳を傾けることができます。青葉台の緑に囲まれたこの場所は、自然と共に暮らす喜びを教えてくれます。あなたの感性を刺激するのは、周囲の歴史的な街並みや文化に触れることでしょう。中目黒は、古き良き日本と洗練された現代が交差する場所。おしゃれなカフェやブティックが立ち並ぶ通り、懐かしさを感じる昔ながらの食堂、どこを歩いても、新しい発見が待っています。
カスタリア中目黒 514での暮らしは、どの瞬間も映画の一シーンのように美しいものです。あなたが心地よいソファに身を委ねた時、夕焼けが窓を照らし、ありふれた日常が特別な瞬間に変わるのです。夜空に瞬く星々が、あなたの夢を運ぶのでしょう。小さな窓から漏れる灯りは、まるで自分の物語を紡ぐように、柔らかく周囲を照らしています。
そして、カスタリア中目黒 514のもう一つの魅力は、その利便性にあります。東京メトロ日比谷線中目黒駅からわずか徒歩5分という立地は、都会の喧騒から少し距離を置きつつ、必要な時にはいつでもアクセスできる快適さを提供します。街の中心で繰り広げられる喧騒と、ここでの静寂。二つの顔を持つこの場所で、あなたは心の安らぎと生活の楽しさ、両方を手に入れることができます。
カスタリア中目黒 514は、ただの住まいではなく、自分自身を見つけるための舞台なのです。一歩踏み入れた瞬間から、あなたの生活は新たな彩りを帯び、心に残る体験が始まることでしょう。ぜひ、あなたの物語をこの場所で紡いでみてはいかがでしょうか。
カスタリア中目黒 514は、洗練されたデザインの中に、優雅さと機能性を絶妙に融合…カスタリア中目黒 514。あなたの新しい住まいが、ここにあります。その名は、ただの物件ではなく、心を奪う物語の舞台となる場所。19.77㎡の広がりを持つ小宇宙、ここでは日々、感動が息づいています。エレベーターで昇っていくと、南東の窓からは、朝陽が優しくあなたを包み込み、あたかも大切な友人のように迎え入れてくれます。
カスタリア中目黒 514は、洗練されたデザインの中に、優雅さと機能性を絶妙に融合させています。TVモニターホンの前で、あなたの生活はより安全に、また、オートロックの扉があなたを守ることで安心感も増します。まるで、現代の騎士のように。しかし、この場所はただの居住空間ではなく、あなたのためにデザインされた真の隠れ家です。
ここでは、朝の静けさの中で一杯の香り高いコーヒーを啜りながら、窓の外の木々が奏でる風のハーモニーに耳を傾けることができます。青葉台の緑に囲まれたこの場所は、自然と共に暮らす喜びを教えてくれます。あなたの感性を刺激するのは、周囲の歴史的な街並みや文化に触れることでしょう。中目黒は、古き良き日本と洗練された現代が交差する場所。おしゃれなカフェやブティックが立ち並ぶ通り、懐かしさを感じる昔ながらの食堂、どこを歩いても、新しい発見が待っています。
カスタリア中目黒 514での暮らしは、どの瞬間も映画の一シーンのように美しいものです。あなたが心地よいソファに身を委ねた時、夕焼けが窓を照らし、ありふれた日常が特別な瞬間に変わるのです。夜空に瞬く星々が、あなたの夢を運ぶのでしょう。小さな窓から漏れる灯りは、まるで自分の物語を紡ぐように、柔らかく周囲を照らしています。
そして、カスタリア中目黒 514のもう一つの魅力は、その利便性にあります。東京メトロ日比谷線中目黒駅からわずか徒歩5分という立地は、都会の喧騒から少し距離を置きつつ、必要な時にはいつでもアクセスできる快適さを提供します。街の中心で繰り広げられる喧騒と、ここでの静寂。二つの顔を持つこの場所で、あなたは心の安らぎと生活の楽しさ、両方を手に入れることができます。
カスタリア中目黒 514は、ただの住まいではなく、自分自身を見つけるための舞台なのです。一歩踏み入れた瞬間から、あなたの生活は新たな彩りを帯び、心に残る体験が始まることでしょう。ぜひ、あなたの物語をこの場所で紡いでみてはいかがでしょうか。
バイブルスコア
バイブルスコア: 33.6
平均的なスコアです。
※バイブルスコア詳細はこちら
バイブルスコアとは独自のAI機械学習技術を利用した物件評価システムで、物件のおすすめ度を示します。最高得点は100点で、スコアが高いほど、よりおすすめの物件と評価されています。
写真
契約条件
| 賃料 | 予想金額:96,000〜116,000円程度 | 管理費 | 予想金額:8,000〜12,000円程度 |
| 礼金 | 非公開(アーカイブ) | 敷金 | 非公開(アーカイブ) |
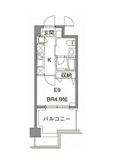
| フリーレント | なし | 平米数 | 19.77㎡ |
| 間取り | 1K | 大型収納 | |
| 契約期間 |
| 方角 | 南東 |
| 更新料 | 契約形態 | 普通賃貸借契約 | |
| 取引態様 | 媒介 | 内見状況 | 入居中 |
| 入居時期 | 入居中 | SOHO・事務所 | |
| ペット | ペット可 | 間取り内訳 | R=4.8 |
| キャンペーン情報・備考 | 本情報は賃料改定交渉の資料作成、収益物件の利回り試算、周辺エリアや最寄り駅の坪単価分析、次回募集開始時期の予測などにご活用いただけます。 | ||
※「どの不動産に頼めばいいのか分からない」「信頼できる営業マンの話を聞きたい」「一番親切な会社と契約したい」とお悩みの方におすすめなのが「高級賃貸バイブル」です。
高級賃貸バイブルは業界10年以上の熟練スタッフ群がお客様ファーストで対応します。
下記ボタンから、まずは無料でご相談下さい。
※内覧をご希望の際には、どうぞ物件のエントランス前にてお待ち合わせくださいませ。ご内覧後は、同じ場所でお別れとさせていただきます。お客様のご都合に合わせたスムーズなご案内を心がけておりますので、ご質問等がございましたら何なりとお申し付けください。 物件概要
| 物件名 |
| 築年月 |
|
|---|---|---|---|
| 所在地 | |||
| 交通 | |||
| 総戸数 |
| 総階数 |
|
| 構造 |
| ||
地図
物件までの道のりは、「拡大地図を表示」をクリックしてナビ機能をご利用ください。
部屋設備















建物設備

TVモニターホン

エレベーター

オートロック

バイク置場

宅配ボックス

敷地内ゴミ置場

駐車場平置き

駐輪場
カスタリア中目黒の現在募集中のお部屋
- カスタリア中目黒 604 - 間取り: 1LDK - 賃料: 28.8万円
- カスタリア中目黒 407 - 間取り: 1K - 賃料: 18.7万円
- カスタリア中目黒 414 - 間取り: 1K - 賃料: 14万円
- カスタリア中目黒 603 - 間取り: 1LDK - 賃料: 29.8万円











