
| 賃料 | 予想金額:315,000〜335,000円程度 | 管理費 | 予想金額:13,000〜17,000円程度 |
| 礼金/敷金 | 非公開(アーカイブ) | 平米数 | 84.58㎡ |
| 初期費用概算(参考) | 目安:1,075,000〜1,175,000 円 | みなし賃料(月額・参考) | 346,667〜366,667 円 |
| 備考 | 本ページは過去募集のアーカイブです。表示の金額は周辺相場・過去募集を踏まえた参考レンジであり、実際の契約金額・条件ではありません。 | ||
※上記みなし賃料(月額)は仲介手数料割引・無料&キャッシュバックを加味した高級賃貸バイブル限定の金額です。一般的なみなし賃料とは異なります。
【建物ページ】コンフォリア碑文谷の詳細・最新空室はこちら▶▶選ばれる理由
仲介手数料無料・キャンペーン情報(毎月15名様限定)
〇引っ越しお祝い金71500円プレゼント(キャッシュバック)
〇仲介手数料無料キャンペーン
コンフォリア碑文谷 404の口コミ・レビュー
コンフォリア碑文谷 404。あなたが新たに迎えるこの住まいは、ただの空間ではなく、心と感性を刺激するスピリットを抱えた存在です。東京都目黒区碑文谷2-3-3という歴史を感じる地に、この美しいマンションは静かに佇んでいます。エレベーターで4階へ上がるその瞬間、まるで別世界に足を踏み入れるような感覚に包まれることでしょう。
このコンフォリア碑文谷 404は、84.58㎡の広さを誇り、穏やかで洗練され…コンフォリア碑文谷 404。あなたが新たに迎えるこの住まいは、ただの空間ではなく、心と感性を刺激するスピリットを抱えた存在です。東京都目黒区碑文谷2-3-3という歴史を感じる地に、この美しいマンションは静かに佇んでいます。エレベーターで4階へ上がるその瞬間、まるで別世界に足を踏み入れるような感覚に包まれることでしょう。
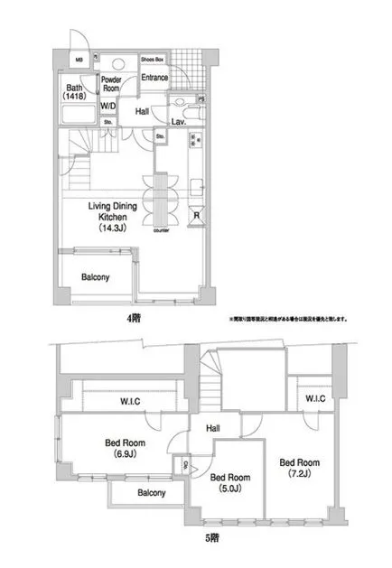
このコンフォリア碑文谷 404は、84.58㎡の広さを誇り、穏やかで洗練されたデザインが魅力的な3LDKという間取りを持ちます。あなたは、15.5帖のLDKで、心地よい風を感じながら、優雅な時間を過ごすことができます。大きな窓から差し込む自然光が、瞬時にこの空間を明るく照らし出し、居心地の良さを倍増させます。あなたは朝のコーヒーを楽しみながら、窓の外に広がる緑豊かな景色に、自然と心を委ねることでしょう。
さらに、9.2帖の洋室、6帖の和室、5帖のもう一つの洋室は、訪れる人々を優しく包み込み、彼らがここにいることを許してくれます。それぞれの部屋が物語を持ち、あなたの生活の一部となることでしょう。和室に座り、手にしたお茶の香りを楽しみながら、静かな時間が流れる様子は、まるで映画のワンシーンのようです。
このマンションは、単なる住まいとしてだけでなく、あなたの人生の舞台となることを約束します。低層の美しいデザインは、周囲の自然と調和し、訪れる人々を魅了します。オートロックや宅配ボックス、駐輪場といった設備も整っており、現代の便利さと伝統の温もりが共存する空間を演出しています。
周辺には学芸大学駅もあり、徒歩12分の距離でストレスなくアクセスできるため、あなたの生活スタイルがより豊かに広がります。昭和の面影を残した街並みや、こだわりの飲食店が立ち並び、まるで美術館のような風景の中で、日常的に文化やアートを楽しむことができるのです。
コンフォリア碑文谷 404は、ただの住まいに留まらず、あなたの心を豊かにする人生の舞台です。心地よい空間に囲まれながら、映画のような美しい日々を実現するための第一歩を、ぜひここで踏み出してください。あなたの新しい生活が始まるその瞬間、コンフォリア碑文谷 404は静かに語りかけるでしょう。「ここから、あなたの物語が始まるのです。」
このコンフォリア碑文谷 404は、84.58㎡の広さを誇り、穏やかで洗練され…コンフォリア碑文谷 404。あなたが新たに迎えるこの住まいは、ただの空間ではなく、心と感性を刺激するスピリットを抱えた存在です。東京都目黒区碑文谷2-3-3という歴史を感じる地に、この美しいマンションは静かに佇んでいます。エレベーターで4階へ上がるその瞬間、まるで別世界に足を踏み入れるような感覚に包まれることでしょう。
このコンフォリア碑文谷 404は、84.58㎡の広さを誇り、穏やかで洗練されたデザインが魅力的な3LDKという間取りを持ちます。あなたは、15.5帖のLDKで、心地よい風を感じながら、優雅な時間を過ごすことができます。大きな窓から差し込む自然光が、瞬時にこの空間を明るく照らし出し、居心地の良さを倍増させます。あなたは朝のコーヒーを楽しみながら、窓の外に広がる緑豊かな景色に、自然と心を委ねることでしょう。
さらに、9.2帖の洋室、6帖の和室、5帖のもう一つの洋室は、訪れる人々を優しく包み込み、彼らがここにいることを許してくれます。それぞれの部屋が物語を持ち、あなたの生活の一部となることでしょう。和室に座り、手にしたお茶の香りを楽しみながら、静かな時間が流れる様子は、まるで映画のワンシーンのようです。
このマンションは、単なる住まいとしてだけでなく、あなたの人生の舞台となることを約束します。低層の美しいデザインは、周囲の自然と調和し、訪れる人々を魅了します。オートロックや宅配ボックス、駐輪場といった設備も整っており、現代の便利さと伝統の温もりが共存する空間を演出しています。
周辺には学芸大学駅もあり、徒歩12分の距離でストレスなくアクセスできるため、あなたの生活スタイルがより豊かに広がります。昭和の面影を残した街並みや、こだわりの飲食店が立ち並び、まるで美術館のような風景の中で、日常的に文化やアートを楽しむことができるのです。
コンフォリア碑文谷 404は、ただの住まいに留まらず、あなたの心を豊かにする人生の舞台です。心地よい空間に囲まれながら、映画のような美しい日々を実現するための第一歩を、ぜひここで踏み出してください。あなたの新しい生活が始まるその瞬間、コンフォリア碑文谷 404は静かに語りかけるでしょう。「ここから、あなたの物語が始まるのです。」
バイブルスコア
バイブルスコア: 14.4
高級な物件でない場合は割高な物件です。。
※バイブルスコア詳細はこちら
バイブルスコアとは独自のAI機械学習技術を利用した物件評価システムで、物件のおすすめ度を示します。最高得点は100点で、スコアが高いほど、よりおすすめの物件と評価されています。
写真
契約条件
| 賃料 | 予想金額:315,000〜335,000円程度 | 管理費 | 予想金額:13,000〜17,000円程度 |
| 礼金 | 非公開(アーカイブ) | 敷金 | 非公開(アーカイブ) |
| フリーレント | なし | 平米数 | 84.58㎡ |
| 間取り | 3LDK | 大型収納 | WIC+SIC+2DEN |
| 契約期間 |
| 方角 | |
| 更新料 | 契約形態 | 普通賃貸借契約 | |
| 取引態様 | 媒介 | 内見状況 | 入居中 |
| 入居時期 | 入居中 | SOHO・事務所 | |
| ペット | ペット可 | 間取り内訳 | 洋:9.2 和:6 洋:5 LDK:15.5 DEN:2 DEN:1.7 |
| キャンペーン情報・備考 | 本情報は賃料改定交渉の資料作成、収益物件の利回り試算、周辺エリアや最寄り駅の坪単価分析、次回募集開始時期の予測などにご活用いただけます。 | ||
※「どの不動産に頼めばいいのか分からない」「信頼できる営業マンの話を聞きたい」「一番親切な会社と契約したい」とお悩みの方におすすめなのが「高級賃貸バイブル」です。
高級賃貸バイブルは業界10年以上の熟練スタッフ群がお客様ファーストで対応します。
下記ボタンから、まずは無料でご相談下さい。
※内覧をご希望の際には、どうぞ物件のエントランス前にてお待ち合わせくださいませ。ご内覧後は、同じ場所でお別れとさせていただきます。お客様のご都合に合わせたスムーズなご案内を心がけておりますので、ご質問等がございましたら何なりとお申し付けください。 物件概要
地図
物件までの道のりは、「拡大地図を表示」をクリックしてナビ機能をご利用ください。
部屋設備


















建物設備

TVモニターホン

エレベーター

オートロック

宅配ボックス

敷地内ゴミ置場

管理人

駐車場平置き

駐車場機械式

駐輪場
コンフォリア碑文谷の現在募集中のお部屋
- No rooms found for this property.
















