
| 賃料 | 予想金額:162,000〜182,000円程度 | 管理費 | 予想金額:6,000〜10,000円程度 |
| 礼金/敷金 | 非公開(アーカイブ) | 平米数 | 34.16㎡ |
| 初期費用概算(参考) | 目安:655,500〜755,500 円 | みなし賃料(月額・参考) | 181,115〜201,115 円 |
| 備考 | 本ページは過去募集のアーカイブです。表示の金額は周辺相場・過去募集を踏まえた参考レンジであり、実際の契約金額・条件ではありません。 | ||
※上記みなし賃料(月額)は仲介手数料割引・無料&キャッシュバックを加味した高級賃貸バイブル限定の金額です。一般的なみなし賃料とは異なります。
【建物ページ】ズーム中目黒の詳細・最新空室はこちら▶▶選ばれる理由
仲介手数料無料・キャンペーン情報(毎月15名様限定)
〇仲介手数料割引キャンペーン
ズーム中目黒 705の口コミ・レビュー
ズーム中目黒 705、ここはただの住まいではなく、都会の喧騒を忘れさせ、心地よい安らぎを提供する特別な空間です。目黒区中目黒に佇むこの物件は、北東の朝日が優しく包み込む、まるで新たな日常の幕開けを告げる舞台のようです。34.16㎡の広がりは、あなたにとってのプライベートなオアシス。その中で息づく人々の物語が、毎日新たに紡がれるのです。
この705号室は、ゆったりとした3.5帖の洋室があなたの心を…ズーム中目黒 705、ここはただの住まいではなく、都会の喧騒を忘れさせ、心地よい安らぎを提供する特別な空間です。目黒区中目黒に佇むこの物件は、北東の朝日が優しく包み込む、まるで新たな日常の幕開けを告げる舞台のようです。34.16㎡の広がりは、あなたにとってのプライベートなオアシス。その中で息づく人々の物語が、毎日新たに紡がれるのです。
この705号室は、ゆったりとした3.5帖の洋室があなたの心を癒し、8.8帖のLDKが生活のエネルギーを育んでくれます。夕暮れ時、窓から柔らかな光が室内に舞い込むと、まるで映画のワンシーンのように美しい光景が広がります。カフェの香りが漂い、コーヒーの湯気が立ち上る中、くつろぎのひとときを楽しむ幸せを感じてください。洗練されたインテリアが、あなたのセンスを引き立て、友人を招いて語らう時間が、色鮮やかに心に刻まれることでしょう。
ズーム中目黒 705は、ただの住まいではなく、あなたのライフスタイルを実現するためのキャンバス。オートロックシステムやエレベーター、バイク置場に宅配ボックス、さらには駐車場が敷地内に整備されていることで、あらゆるシーンでの利便性が確保されています。これらは、あなたの生活をより豊かにするための隠れたパートナーなのです。静かに、しかし力強くあなたを支えてくれる存在として、どの瞬間も安心感を与えてくれます。
また、周囲には歴史的な文化と現代のアートが共存する空間が広がっています。中目黒は、その独自の魅力を持つ街。徒歩圏内には、隠れ家的なカフェやおしゃれなショップが点在しており、毎日の買い物がまるで宝探しのように楽しいものへと変わります。そして、春には桜の美しさに心を奪われ、秋には紅葉の色彩に感動することでしょう。この街の季節の移り変わりを感じながら、毎日の生活が豊かに彩られていくのです。
ズーム中目黒 705は、まるで一編の詩のように、あなたの暮らしを豊かにするために存在します。そこに住むあなたの未来は、静かに語りかけるように、希望に満ちているのです。ここでの新しい生活は、まるで美しい旋律を奏でるかのように、心の中に深く響き渡ります。どうか、この特別な空間での生活を一緒に築いていきませんか。
この705号室は、ゆったりとした3.5帖の洋室があなたの心を…ズーム中目黒 705、ここはただの住まいではなく、都会の喧騒を忘れさせ、心地よい安らぎを提供する特別な空間です。目黒区中目黒に佇むこの物件は、北東の朝日が優しく包み込む、まるで新たな日常の幕開けを告げる舞台のようです。34.16㎡の広がりは、あなたにとってのプライベートなオアシス。その中で息づく人々の物語が、毎日新たに紡がれるのです。
この705号室は、ゆったりとした3.5帖の洋室があなたの心を癒し、8.8帖のLDKが生活のエネルギーを育んでくれます。夕暮れ時、窓から柔らかな光が室内に舞い込むと、まるで映画のワンシーンのように美しい光景が広がります。カフェの香りが漂い、コーヒーの湯気が立ち上る中、くつろぎのひとときを楽しむ幸せを感じてください。洗練されたインテリアが、あなたのセンスを引き立て、友人を招いて語らう時間が、色鮮やかに心に刻まれることでしょう。
ズーム中目黒 705は、ただの住まいではなく、あなたのライフスタイルを実現するためのキャンバス。オートロックシステムやエレベーター、バイク置場に宅配ボックス、さらには駐車場が敷地内に整備されていることで、あらゆるシーンでの利便性が確保されています。これらは、あなたの生活をより豊かにするための隠れたパートナーなのです。静かに、しかし力強くあなたを支えてくれる存在として、どの瞬間も安心感を与えてくれます。
また、周囲には歴史的な文化と現代のアートが共存する空間が広がっています。中目黒は、その独自の魅力を持つ街。徒歩圏内には、隠れ家的なカフェやおしゃれなショップが点在しており、毎日の買い物がまるで宝探しのように楽しいものへと変わります。そして、春には桜の美しさに心を奪われ、秋には紅葉の色彩に感動することでしょう。この街の季節の移り変わりを感じながら、毎日の生活が豊かに彩られていくのです。
ズーム中目黒 705は、まるで一編の詩のように、あなたの暮らしを豊かにするために存在します。そこに住むあなたの未来は、静かに語りかけるように、希望に満ちているのです。ここでの新しい生活は、まるで美しい旋律を奏でるかのように、心の中に深く響き渡ります。どうか、この特別な空間での生活を一緒に築いていきませんか。
バイブルスコア
バイブルスコア: 27.3
平均的なスコアです。
※バイブルスコア詳細はこちら
バイブルスコアとは独自のAI機械学習技術を利用した物件評価システムで、物件のおすすめ度を示します。最高得点は100点で、スコアが高いほど、よりおすすめの物件と評価されています。
写真
現在写真が登録されていません契約条件
| 賃料 | 予想金額:162,000〜182,000円程度 | 管理費 | 予想金額:6,000〜10,000円程度 |
| 礼金 | 非公開(アーカイブ) | 敷金 | 非公開(アーカイブ) |
| フリーレント | なし | 平米数 | 34.16㎡ |
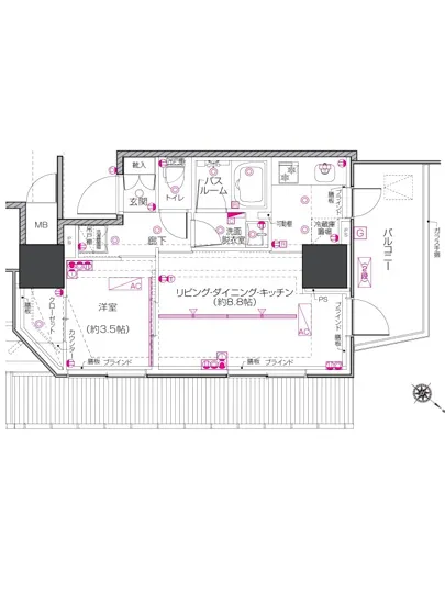
| 間取り | 1LDK | 大型収納 | |
| 契約期間 |
| 方角 | 北東 |
| 更新料 | 契約形態 | 普通賃貸借契約 | |
| 取引態様 | 媒介 | 内見状況 | 入居中 |
| 入居時期 | 入居中 | SOHO・事務所 | |
| ペット | ペット可 | 間取り内訳 | 洋:3.5 LDK:8.8 |
| キャンペーン情報・備考 | 本情報は賃料改定交渉の資料作成、収益物件の利回り試算、周辺エリアや最寄り駅の坪単価分析、次回募集開始時期の予測などにご活用いただけます。 | ||
※「どの不動産に頼めばいいのか分からない」「信頼できる営業マンの話を聞きたい」「一番親切な会社と契約したい」とお悩みの方におすすめなのが「高級賃貸バイブル」です。
高級賃貸バイブルは業界10年以上の熟練スタッフ群がお客様ファーストで対応します。
下記ボタンから、まずは無料でご相談下さい。
※内覧をご希望の際には、どうぞ物件のエントランス前にてお待ち合わせくださいませ。ご内覧後は、同じ場所でお別れとさせていただきます。お客様のご都合に合わせたスムーズなご案内を心がけておりますので、ご質問等がございましたら何なりとお申し付けください。 物件概要
| 物件名 |
| 築年月 |
|
|---|---|---|---|
| 所在地 | |||
| 交通 | |||
| 総戸数 |
| 総階数 |
|
| 構造 |
| ||
地図
物件までの道のりは、「拡大地図を表示」をクリックしてナビ機能をご利用ください。
部屋設備














建物設備

TVモニターホン

エレベーター

オートロック

バイク置場

宅配ボックス

敷地内ゴミ置場

管理人

駐車場平置き

駐車場機械式

駐輪場
ズーム中目黒の現在募集中のお部屋
- ZOOM中目黒 7階 33.98㎡ - 間取り: 1LDK - 賃料: 17.2万円
