
| 賃料 | 予想金額:253,000〜273,000円程度 | 管理費 | 予想金額:8,000〜12,000円程度 |
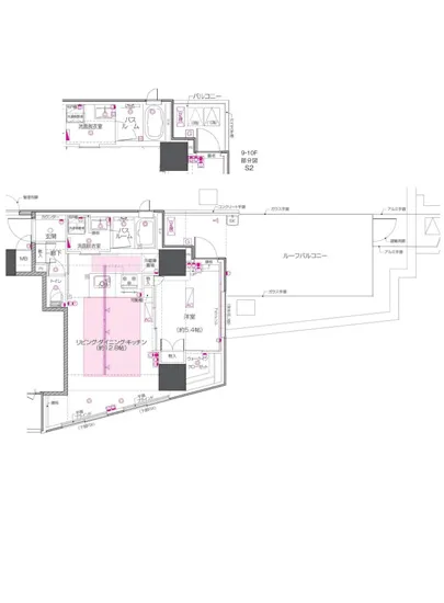
| 礼金/敷金 | 非公開(アーカイブ) | 平米数 | 47.56㎡ |
| 初期費用概算(参考) | 目安:864,140〜964,140 円 | みなし賃料(月額・参考) | 276,565〜296,565 円 |
| 備考 | 本ページは過去募集のアーカイブです。表示の金額は周辺相場・過去募集を踏まえた参考レンジであり、実際の契約金額・条件ではありません。 | ||
※上記みなし賃料(月額)は仲介手数料割引・無料&キャッシュバックを加味した高級賃貸バイブル限定の金額です。一般的なみなし賃料とは異なります。
【建物ページ】ズーム中目黒の詳細・最新空室はこちら▶▶選ばれる理由
仲介手数料無料・キャンペーン情報(毎月15名様限定)
〇引っ越しお祝い金57860円プレゼント(キャッシュバック)
〇仲介手数料無料キャンペーン
ズーム中目黒 902の口コミ・レビュー
ズーム中目黒 902。この名を耳にした瞬間、心は期待に胸を膨らませ、貴方を迎える場所の壮大な物語の扉が開かれます。東京都目黒区中目黒2-8-9に佇むこの美しい住宅は、まるで貴族の館のように、洗練された雰囲気と優雅さを漂わせています。902という番号は、まるで高層の空に浮かぶ星の一つのように、その場所に特別な輝きを与えています。
南東を向いた窓から流れ込む光は、朝の柔らかな日差しと共に、心地よい温…ズーム中目黒 902。この名を耳にした瞬間、心は期待に胸を膨らませ、貴方を迎える場所の壮大な物語の扉が開かれます。東京都目黒区中目黒2-8-9に佇むこの美しい住宅は、まるで貴族の館のように、洗練された雰囲気と優雅さを漂わせています。902という番号は、まるで高層の空に浮かぶ星の一つのように、その場所に特別な輝きを与えています。
南東を向いた窓から流れ込む光は、朝の柔らかな日差しと共に、心地よい温もりを感じさせてくれます。この光は、日々の忙しさから解放される瞬間を演出し、貴方の生活がまるで映画のワンシーンのような美しい描写に彩られます。約47.56㎡の空間には、LDKが12.8帖、洋室が5.4帖という絶妙なバランスが保たれ、落ち着きの中にも創造的なインスピレーションが広がります。
ズーム中目黒 902は、ただの住処ではありません。ここに住むということは、日々の生活を特別なものに変えることなのです。朝、目を覚ますと、窓からの光が貴方の頬を優しく撫で、まるで長年の友達が目覚めを促しているかのようです。新鮮な空気が優雅に漂い、カーテンを揺らす様子は、まるで風が貴方に語りかけているように思えます。
リビングに足を踏み入れると、広々とした空間が広がり、心地よい声で貴方を包み込みます。そこにある家具やアートは、それぞれが独自の物語を語り、集まる人々の交流を楽しむ舞台を提供してくれるのです。大切な人と共に過ごすひととき、LDK12.8帖の広さは、笑い声や会話が響き渡る絶好の場となり、心の温もりを感じることでしょう。
周囲には、歴史と文化が息づいています。近くには中目黒の洗練されたカフェやギャラリーが点在し、芸術と生活が見事に交錯しています。アートの香りが漂い、貴方の感性が刺激されるこの地域は、それ自体が一つの芸術作品のようです。歴史ある街並みの中で、貴方が歩む道は、まるで映画の中に迷い込んだかのように、心が躍る瞬間が待ち受けています。
ズーム中目黒 902は、ただの高級賃貸物件ではなく、生活の美しさと豊かさを体現する場所なのです。日々の暮らしを豊かにするための設備も充実しています。エレベーター、オートロック、宅配ボックス、駐車場など、現代の暮らしに欠かせない要素が揃い、貴方の生活をさらに便利で快適にしてくれるでしょう。
この特別な空間、ズーム中目黒 902での生活は、貴方自身の人生の新しい章の始まりを告げるものです。五感を刺激する経験が、貴方を待っています。是非、この場所に訪れ、貴方自身のストーリーを描いてみてください。
南東を向いた窓から流れ込む光は、朝の柔らかな日差しと共に、心地よい温…ズーム中目黒 902。この名を耳にした瞬間、心は期待に胸を膨らませ、貴方を迎える場所の壮大な物語の扉が開かれます。東京都目黒区中目黒2-8-9に佇むこの美しい住宅は、まるで貴族の館のように、洗練された雰囲気と優雅さを漂わせています。902という番号は、まるで高層の空に浮かぶ星の一つのように、その場所に特別な輝きを与えています。
南東を向いた窓から流れ込む光は、朝の柔らかな日差しと共に、心地よい温もりを感じさせてくれます。この光は、日々の忙しさから解放される瞬間を演出し、貴方の生活がまるで映画のワンシーンのような美しい描写に彩られます。約47.56㎡の空間には、LDKが12.8帖、洋室が5.4帖という絶妙なバランスが保たれ、落ち着きの中にも創造的なインスピレーションが広がります。
ズーム中目黒 902は、ただの住処ではありません。ここに住むということは、日々の生活を特別なものに変えることなのです。朝、目を覚ますと、窓からの光が貴方の頬を優しく撫で、まるで長年の友達が目覚めを促しているかのようです。新鮮な空気が優雅に漂い、カーテンを揺らす様子は、まるで風が貴方に語りかけているように思えます。
リビングに足を踏み入れると、広々とした空間が広がり、心地よい声で貴方を包み込みます。そこにある家具やアートは、それぞれが独自の物語を語り、集まる人々の交流を楽しむ舞台を提供してくれるのです。大切な人と共に過ごすひととき、LDK12.8帖の広さは、笑い声や会話が響き渡る絶好の場となり、心の温もりを感じることでしょう。
周囲には、歴史と文化が息づいています。近くには中目黒の洗練されたカフェやギャラリーが点在し、芸術と生活が見事に交錯しています。アートの香りが漂い、貴方の感性が刺激されるこの地域は、それ自体が一つの芸術作品のようです。歴史ある街並みの中で、貴方が歩む道は、まるで映画の中に迷い込んだかのように、心が躍る瞬間が待ち受けています。
ズーム中目黒 902は、ただの高級賃貸物件ではなく、生活の美しさと豊かさを体現する場所なのです。日々の暮らしを豊かにするための設備も充実しています。エレベーター、オートロック、宅配ボックス、駐車場など、現代の暮らしに欠かせない要素が揃い、貴方の生活をさらに便利で快適にしてくれるでしょう。
この特別な空間、ズーム中目黒 902での生活は、貴方自身の人生の新しい章の始まりを告げるものです。五感を刺激する経験が、貴方を待っています。是非、この場所に訪れ、貴方自身のストーリーを描いてみてください。
バイブルスコア
バイブルスコア: 17.1
高級な物件でない場合は割高な物件です。。
※バイブルスコア詳細はこちら
バイブルスコアとは独自のAI機械学習技術を利用した物件評価システムで、物件のおすすめ度を示します。最高得点は100点で、スコアが高いほど、よりおすすめの物件と評価されています。
写真
現在写真が登録されていません契約条件
| 賃料 | 予想金額:253,000〜273,000円程度 | 管理費 | 予想金額:8,000〜12,000円程度 |
| 礼金 | 非公開(アーカイブ) | 敷金 | 非公開(アーカイブ) |
| フリーレント | なし | 平米数 | 47.56㎡ |
| 間取り | 1LDK | 大型収納 | WIC |
| 契約期間 |
| 方角 | 南東 |
| 更新料 | 契約形態 | 普通賃貸借契約 | |
| 取引態様 | 媒介 | 内見状況 | 入居中 |
| 入居時期 | 入居中 | SOHO・事務所 | |
| ペット | ペット可 | 間取り内訳 | 洋:5.4 LDK:12.8 |
| キャンペーン情報・備考 | 本情報は賃料改定交渉の資料作成、収益物件の利回り試算、周辺エリアや最寄り駅の坪単価分析、次回募集開始時期の予測などにご活用いただけます。 | ||
※「どの不動産に頼めばいいのか分からない」「信頼できる営業マンの話を聞きたい」「一番親切な会社と契約したい」とお悩みの方におすすめなのが「高級賃貸バイブル」です。
高級賃貸バイブルは業界10年以上の熟練スタッフ群がお客様ファーストで対応します。
下記ボタンから、まずは無料でご相談下さい。
※内覧をご希望の際には、どうぞ物件のエントランス前にてお待ち合わせくださいませ。ご内覧後は、同じ場所でお別れとさせていただきます。お客様のご都合に合わせたスムーズなご案内を心がけておりますので、ご質問等がございましたら何なりとお申し付けください。 物件概要
| 物件名 |
| 築年月 |
|
|---|---|---|---|
| 所在地 | |||
| 交通 | |||
| 総戸数 |
| 総階数 |
|
| 構造 |
| ||
地図
物件までの道のりは、「拡大地図を表示」をクリックしてナビ機能をご利用ください。
部屋設備


















建物設備

TVモニターホン

エレベーター

オートロック

バイク置場

宅配ボックス

敷地内ゴミ置場

管理人

駐車場平置き

駐車場機械式

駐輪場
ズーム中目黒の現在募集中のお部屋
- ZOOM中目黒 7階 33.98㎡ - 間取り: 1LDK - 賃料: 17.2万円
