
| 賃料 | 予想金額:289,000〜309,000円程度 | 管理費 | 予想金額:0〜2,000円程度 |
| 礼金/敷金 | 非公開(アーカイブ) | 平米数 | 84.92㎡ |
| 初期費用概算(参考) | 目安:1,088,000〜1,188,000 円 | みなし賃料(月額・参考) | 306,479〜326,479 円 |
| 備考 | 本ページは過去募集のアーカイブです。表示の金額は周辺相場・過去募集を踏まえた参考レンジであり、実際の契約金額・条件ではありません。 | ||
※上記みなし賃料(月額)は仲介手数料割引・無料&キャッシュバックを加味した高級賃貸バイブル限定の金額です。一般的なみなし賃料とは異なります。
【建物ページ】アパートメンツ東山の詳細・最新空室はこちら▶▶選ばれる理由
仲介手数料無料・キャンペーン情報(毎月15名様限定)
〇仲介手数料割引キャンペーン
アパートメンツ東山 310の口コミ・レビュー
アパートメンツ東山 310。これは、都会の喧騒から逃れ、洗練された生活を求めるあなたに捧げる、隠れ家のような物件でございます。この美しい住まいは、東京都目黒区東山2-5-12に、堂々と佇んでいます。高級感溢れるデザインと機能性を兼ね備えたこの住まいは、そのすべてにおいて一級品。まるで、どこかの映画のワンシーンから抜け出したような空間が広がっています。
アパートメンツ東山 310の専有面積は84.…アパートメンツ東山 310。これは、都会の喧騒から逃れ、洗練された生活を求めるあなたに捧げる、隠れ家のような物件でございます。この美しい住まいは、東京都目黒区東山2-5-12に、堂々と佇んでいます。高級感溢れるデザインと機能性を兼ね備えたこの住まいは、そのすべてにおいて一級品。まるで、どこかの映画のワンシーンから抜け出したような空間が広がっています。
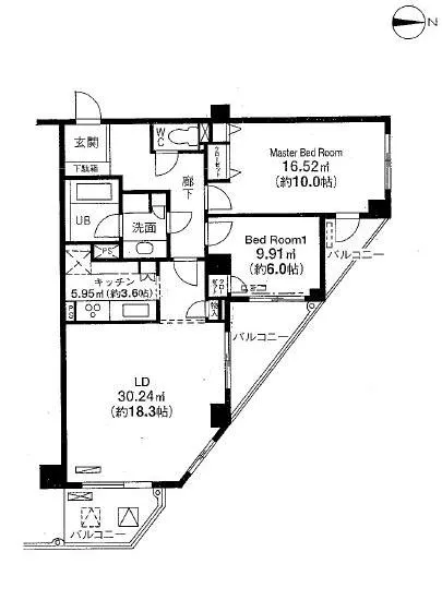
アパートメンツ東山 310の専有面積は84.92㎡。この広さがもたらすのは、ただの物理的な空間ではありません。15帖のリビングダイニングは、あなたの人生の舞台。大きな窓からは、朝の光が優しく差し込み、カーテンを揺らす清々しい風が心を解きほぐします。リビングの一角には、特別な時間を共有するためのソファがあり、あなたが友人と心温まる会話を楽しむ様子が目に浮かびます。その横には、3.9帖のキッチンがあり、料理の香ばしい匂いが漂い、あなたを料理の魔法使いに変えてくれます。8.1帖の主寝室と6帖の洋室は、静寂に包まれた夢の世界。ゆったりとした空間が、あなたの心のバランスを保つ手助けをしてくれることでしょう。
アパートメンツ東山 310は、ただの住まいではありません。オートロックやエレベーター、最新のTVモニターホンを完備し、安心と快適さをあなたにお届けします。賢い選択をするあなたにとって、この住まいはまさに理想そのもの。バイク置場や駐輪場まで完備されており、一歩外に出れば、都会の冒険が待ち受けています。
周辺には芸術的な文化が息づく目黒区。毎日の生活が、まるでアートのように溢れ出します。このエリアでは、歴史と現代が絶妙に交差し、多彩なギャラリーやカフェが点在しています。あなたがここで過ごす時間は、古き良き日本文化と新しいトレンドが織り成す、心躍る地図のようです。
東京急行電鉄東急田園都市線 池尻大橋駅から徒歩7分という立地は、まるで豊かな大地への道を示す道標。毎朝、駅へ向かう際、あなたは音楽のように流れる街のリズムを感じ、その一歩一歩が新たな発見へと導いてくれることでしょう。
アパートメンツ東山 310は、あなたにとっての新たな物語の舞台です。暮らしとは、心の中の情景を具現化するための美しい旅なのです。ここで、あなたの人生を彩る数々の瞬間が、静かに息づくことでしょう。この場所で、贅沢な時間をお楽しみください。あなたを待つこの空間は、まさに夢のような居場所なのです。
アパートメンツ東山 310の専有面積は84.…アパートメンツ東山 310。これは、都会の喧騒から逃れ、洗練された生活を求めるあなたに捧げる、隠れ家のような物件でございます。この美しい住まいは、東京都目黒区東山2-5-12に、堂々と佇んでいます。高級感溢れるデザインと機能性を兼ね備えたこの住まいは、そのすべてにおいて一級品。まるで、どこかの映画のワンシーンから抜け出したような空間が広がっています。
アパートメンツ東山 310の専有面積は84.92㎡。この広さがもたらすのは、ただの物理的な空間ではありません。15帖のリビングダイニングは、あなたの人生の舞台。大きな窓からは、朝の光が優しく差し込み、カーテンを揺らす清々しい風が心を解きほぐします。リビングの一角には、特別な時間を共有するためのソファがあり、あなたが友人と心温まる会話を楽しむ様子が目に浮かびます。その横には、3.9帖のキッチンがあり、料理の香ばしい匂いが漂い、あなたを料理の魔法使いに変えてくれます。8.1帖の主寝室と6帖の洋室は、静寂に包まれた夢の世界。ゆったりとした空間が、あなたの心のバランスを保つ手助けをしてくれることでしょう。
アパートメンツ東山 310は、ただの住まいではありません。オートロックやエレベーター、最新のTVモニターホンを完備し、安心と快適さをあなたにお届けします。賢い選択をするあなたにとって、この住まいはまさに理想そのもの。バイク置場や駐輪場まで完備されており、一歩外に出れば、都会の冒険が待ち受けています。
周辺には芸術的な文化が息づく目黒区。毎日の生活が、まるでアートのように溢れ出します。このエリアでは、歴史と現代が絶妙に交差し、多彩なギャラリーやカフェが点在しています。あなたがここで過ごす時間は、古き良き日本文化と新しいトレンドが織り成す、心躍る地図のようです。
東京急行電鉄東急田園都市線 池尻大橋駅から徒歩7分という立地は、まるで豊かな大地への道を示す道標。毎朝、駅へ向かう際、あなたは音楽のように流れる街のリズムを感じ、その一歩一歩が新たな発見へと導いてくれることでしょう。
アパートメンツ東山 310は、あなたにとっての新たな物語の舞台です。暮らしとは、心の中の情景を具現化するための美しい旅なのです。ここで、あなたの人生を彩る数々の瞬間が、静かに息づくことでしょう。この場所で、贅沢な時間をお楽しみください。あなたを待つこの空間は、まさに夢のような居場所なのです。
バイブルスコア
バイブルスコア: 35.9
平均的なスコアです。
※バイブルスコア詳細はこちら
バイブルスコアとは独自のAI機械学習技術を利用した物件評価システムで、物件のおすすめ度を示します。最高得点は100点で、スコアが高いほど、よりおすすめの物件と評価されています。
写真
契約条件
| 賃料 | 予想金額:289,000〜309,000円程度 | 管理費 | 予想金額:0〜2,000円程度 |
| 礼金 | 非公開(アーカイブ) | 敷金 | 非公開(アーカイブ) |
| フリーレント | なし | 平米数 | 84.92㎡ |
| 間取り | 2LDK | 大型収納 | 18.3 |
| 契約期間 | 方角 | 東 | |
| 更新料 | 契約形態 | 定期借家契約 | |
| 取引態様 | 媒介 | 内見状況 | 入居中 |
| 入居時期 | 入居中 | SOHO・事務所 | |
| ペット | 間取り内訳 | LD=15J / K=3.9J / BR=8.1J / BR=6J | |
| キャンペーン情報・備考 | 本情報は賃料改定交渉の資料作成、収益物件の利回り試算、周辺エリアや最寄り駅の坪単価分析、次回募集開始時期の予測などにご活用いただけます。 | ||
※「どの不動産に頼めばいいのか分からない」「信頼できる営業マンの話を聞きたい」「一番親切な会社と契約したい」とお悩みの方におすすめなのが「高級賃貸バイブル」です。
高級賃貸バイブルは業界10年以上の熟練スタッフ群がお客様ファーストで対応します。
下記ボタンから、まずは無料でご相談下さい。
※内覧をご希望の際には、どうぞ物件のエントランス前にてお待ち合わせくださいませ。ご内覧後は、同じ場所でお別れとさせていただきます。お客様のご都合に合わせたスムーズなご案内を心がけておりますので、ご質問等がございましたら何なりとお申し付けください。 物件概要
| 物件名 |
| 築年月 |
|
|---|---|---|---|
| 所在地 | |||
| 交通 | |||
| 総戸数 |
| 総階数 |
|
| 構造 |
| ||
地図
物件までの道のりは、「拡大地図を表示」をクリックしてナビ機能をご利用ください。
部屋設備















建物設備

TVモニターホン

エレベーター

オートロック

バイク置場

宅配ボックス

敷地内ゴミ置場

駐車場平置き

駐車場機械式

駐輪場
アパートメンツ東山の現在募集中のお部屋
- No rooms found for this property.



























