
| 賃料 | 予想金額:164,000〜184,000円程度 | 管理費 | 予想金額:10,000〜14,000円程度 |
| 礼金/敷金 | 非公開(アーカイブ) | 平米数 | 34.96㎡ |
| 初期費用概算(参考) | 目安:397,392〜497,392 円 | みなし賃料(月額・参考) | 181,696〜201,696 円 |
| 備考 | 本ページは過去募集のアーカイブです。表示の金額は周辺相場・過去募集を踏まえた参考レンジであり、実際の契約金額・条件ではありません。 | ||
※上記みなし賃料(月額)は仲介手数料割引・無料&キャッシュバックを加味した高級賃貸バイブル限定の金額です。一般的なみなし賃料とは異なります。
【建物ページ】プライムレジデンス渋谷の詳細・最新空室はこちら▶▶選ばれる理由
仲介手数料無料・キャンペーン情報(毎月15名様限定)
〇引っ越しお祝い金42108円プレゼント(キャッシュバック)
〇仲介手数料無料キャンペーン
プライムレジデンス渋谷 804の口コミ・レビュー
プライムレジデンス渋谷 804。この名は、ただの住まいを超え、あなたの新しい生活の舞台となる場所です。南西や南東の陽射しが柔らかく舞い込み、日々の暮らしに温かな光を添えるその空間は、まるで優雅な絵画の一部のようです。34.96㎡の専有面積の中には、そんな穏やかな日常が息づいています。804号室の扉を開けた瞬間、あなたはどこか懐かしさを感じることでしょう。ひとつの時代を超えたアートのような存在が、目…プライムレジデンス渋谷 804。この名は、ただの住まいを超え、あなたの新しい生活の舞台となる場所です。南西や南東の陽射しが柔らかく舞い込み、日々の暮らしに温かな光を添えるその空間は、まるで優雅な絵画の一部のようです。34.96㎡の専有面積の中には、そんな穏やかな日常が息づいています。804号室の扉を開けた瞬間、あなたはどこか懐かしさを感じることでしょう。ひとつの時代を超えたアートのような存在が、目の前に広がっています。
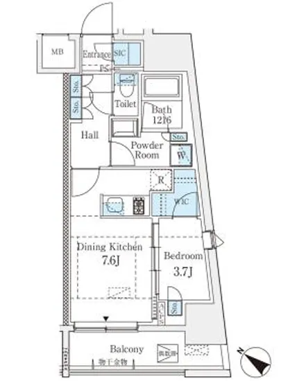
この部屋はまるで、洗練されたストーリーテラーがあなたを迎え入れるかのように、気品あふれる佇まいを見せています。壁に映る影は、あなたの生活の一部として生きることを期待しているかのようです。洋室は3.7帖、DKは7.6帖の広々とした空間が、心のゆとりをもたらします。窓を開けると、都会の喧騒が遠くなる一方で、時折聞こえてくる鳥のさえずりや、風のそよぎが心を和ませてくれます。
プライムレジデンス渋谷 804には、現代的な設備が整い、あなたの生活をより豊かにしてくれることでしょう。TVモニターホンが、安心感を持たせてくれるお守りのように存在し、エレベーターを使えば、朝の忙しい時間でも優雅に上階へと向かうことができます。オートロックの安心感とともに、宅配ボックスも完備されていますので、大切な荷物があなたの不在中でも安全に守られています。ここには、まさに現代の贅沢が詰まっているのです。
周囲を取り囲む渋谷の街には、独特な歴史的背景と現代のエネルギーが共存しています。プライムレジデンス渋谷 804に住むことで、あなたはこの街の文化やトレンドの真っ只中で生活を楽しむことができます。徒歩8分という立地は、渋谷駅で多様な表情を持つ都市生活を実感できることを意味します。お洒落なカフェやアートギャラリーが点在する中、あなたの感性は日々刺激され、クリエイティブな発想が溢れ出すことでしょう。
ここでの生活は、まるで映画のワンシーンのように、色彩豊かな瞬間が広がっています。自宅に戻れば、心地よい香りが漂うキッチンで、愛情こもった料理を振る舞うことができ、家族や友人との語らいに花を添えてくれることでしょう。触れるものすべてがあなたに寄り添い、心の中に温かな感情を芽生えさせてくれます。
プライムレジデンス渋谷 804は、ただの住まいではありません。ここでの生活は、あなた自身の物語を紡ぎ出す舞台です。心が求めるすべてが、ここに詰まっています。あなたの新たな生活を始める、その一歩を踏み出すのは、そう、この場所から。
この部屋はまるで、洗練されたストーリーテラーがあなたを迎え入れるかのように、気品あふれる佇まいを見せています。壁に映る影は、あなたの生活の一部として生きることを期待しているかのようです。洋室は3.7帖、DKは7.6帖の広々とした空間が、心のゆとりをもたらします。窓を開けると、都会の喧騒が遠くなる一方で、時折聞こえてくる鳥のさえずりや、風のそよぎが心を和ませてくれます。
プライムレジデンス渋谷 804には、現代的な設備が整い、あなたの生活をより豊かにしてくれることでしょう。TVモニターホンが、安心感を持たせてくれるお守りのように存在し、エレベーターを使えば、朝の忙しい時間でも優雅に上階へと向かうことができます。オートロックの安心感とともに、宅配ボックスも完備されていますので、大切な荷物があなたの不在中でも安全に守られています。ここには、まさに現代の贅沢が詰まっているのです。
周囲を取り囲む渋谷の街には、独特な歴史的背景と現代のエネルギーが共存しています。プライムレジデンス渋谷 804に住むことで、あなたはこの街の文化やトレンドの真っ只中で生活を楽しむことができます。徒歩8分という立地は、渋谷駅で多様な表情を持つ都市生活を実感できることを意味します。お洒落なカフェやアートギャラリーが点在する中、あなたの感性は日々刺激され、クリエイティブな発想が溢れ出すことでしょう。
ここでの生活は、まるで映画のワンシーンのように、色彩豊かな瞬間が広がっています。自宅に戻れば、心地よい香りが漂うキッチンで、愛情こもった料理を振る舞うことができ、家族や友人との語らいに花を添えてくれることでしょう。触れるものすべてがあなたに寄り添い、心の中に温かな感情を芽生えさせてくれます。
プライムレジデンス渋谷 804は、ただの住まいではありません。ここでの生活は、あなた自身の物語を紡ぎ出す舞台です。心が求めるすべてが、ここに詰まっています。あなたの新たな生活を始める、その一歩を踏み出すのは、そう、この場所から。
バイブルスコア
バイブルスコア: 37.8
平均的なスコアです。
※バイブルスコア詳細はこちら
バイブルスコアとは独自のAI機械学習技術を利用した物件評価システムで、物件のおすすめ度を示します。最高得点は100点で、スコアが高いほど、よりおすすめの物件と評価されています。
写真
契約条件
| 賃料 | 予想金額:164,000〜184,000円程度 | 管理費 | 予想金額:10,000〜14,000円程度 |
| 礼金 | 非公開(アーカイブ) | 敷金 | 非公開(アーカイブ) |
| フリーレント | なし | 平米数 | 34.96㎡ |
| 間取り | 1DK | 大型収納 | WIC |
| 契約期間 |
| 方角 | 南西 / 南東 |
| 更新料 | 契約形態 | 普通賃貸借契約 | |
| 取引態様 | 媒介 | 内見状況 | 入居中 |
| 入居時期 | 入居中 | SOHO・事務所 | |
| ペット | 間取り内訳 | 洋:3.7 DK:7.6 | |
| キャンペーン情報・備考 | 本情報は賃料改定交渉の資料作成、収益物件の利回り試算、周辺エリアや最寄り駅の坪単価分析、次回募集開始時期の予測などにご活用いただけます。 | ||
※「どの不動産に頼めばいいのか分からない」「信頼できる営業マンの話を聞きたい」「一番親切な会社と契約したい」とお悩みの方におすすめなのが「高級賃貸バイブル」です。
高級賃貸バイブルは業界10年以上の熟練スタッフ群がお客様ファーストで対応します。
下記ボタンから、まずは無料でご相談下さい。
※内覧をご希望の際には、どうぞ物件のエントランス前にてお待ち合わせくださいませ。ご内覧後は、同じ場所でお別れとさせていただきます。お客様のご都合に合わせたスムーズなご案内を心がけておりますので、ご質問等がございましたら何なりとお申し付けください。 物件概要
| 物件名 |
| 築年月 |
|
|---|---|---|---|
| 所在地 | |||
| 交通 | |||
| 総戸数 |
| 総階数 |
|
| 構造 |
| ||
地図
物件までの道のりは、「拡大地図を表示」をクリックしてナビ機能をご利用ください。
部屋設備

















建物設備

TVモニターホン

エレベーター

オートロック

バイク置場

宅配ボックス

敷地内ゴミ置場

管理人

駐車場平置き

駐車場機械式

駐輪場
プライムレジデンス渋谷の現在募集中のお部屋
- No rooms found for this property.
















