
| 賃料 | 予想金額:144,000〜164,000円程度 | 管理費 | 予想金額:18,000〜22,000円程度 |
| 礼金/敷金 | 非公開(アーカイブ) | 平米数 | 26.97㎡ |
| 初期費用概算(参考) | 目安:213,620〜313,620 円 | みなし賃料(月額・参考) | 169,492〜189,492 円 |
| 備考 | 本ページは過去募集のアーカイブです。表示の金額は周辺相場・過去募集を踏まえた参考レンジであり、実際の契約金額・条件ではありません。 | ||
※上記みなし賃料(月額)は仲介手数料割引・無料&キャッシュバックを加味した高級賃貸バイブル限定の金額です。一般的なみなし賃料とは異なります。
【建物ページ】ザ・パークハビオSOHO祐天寺の詳細・最新空室はこちら▶▶選ばれる理由
仲介手数料無料・キャンペーン情報(毎月15名様限定)
〇引っ越しお祝い金33880円プレゼント(キャッシュバック)
〇フリーレント1か月キャンペーン
〇仲介手数料無料キャンペーン
ザ・パークハビオSOHO祐天寺 507の口コミ・レビュー
ザ・パークハビオSOHO祐天寺 507。あなたの新たな生活を迎える舞台が、ここに用意されています。この美しい物件は、まるで優雅に咲く花のように、穏やかな目黒区祐天寺に佇んでいます。507号室は、どこか秘めやかな魅力を持ち、私たちに語りかけるようです。「さあ、私とともに新しい物語を刻みましょう」と。
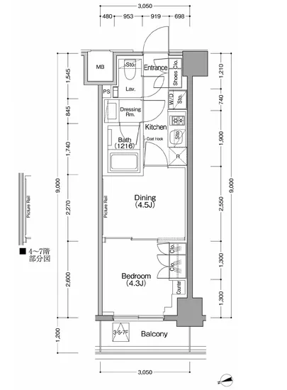
この特別な空間は、26.97㎡の広さをもって、あなたの日常に華やかさを添えます。洋室は4.3帖、ダ…ザ・パークハビオSOHO祐天寺 507。あなたの新たな生活を迎える舞台が、ここに用意されています。この美しい物件は、まるで優雅に咲く花のように、穏やかな目黒区祐天寺に佇んでいます。507号室は、どこか秘めやかな魅力を持ち、私たちに語りかけるようです。「さあ、私とともに新しい物語を刻みましょう」と。
この特別な空間は、26.97㎡の広さをもって、あなたの日常に華やかさを添えます。洋室は4.3帖、ダイニングは4.5帖の配分で、心地よい風が通り抜けるように配置されています。窓から差し込む陽光が、部屋を温かく包み込み、あなたを迎え入れます。その瞬間、味わうのは、白昼の静けさと美しい光のハーモニー。日が沈むころには、柔らかな西の光が、まるでシャンデリアのように室内を彩り、心を和ませます。
ザ・パークハビオSOHO祐天寺 507には、あなたの生活をより豊かにするためのさまざまな設備が揃っています。TVモニターホンは、あなたの生活に安心感をもたらし、エレベーターは日常の移動を優雅に演出します。オートロックの扉は、まるであなたを大切に守る騎士のように、この空間に入ることを許可してくれます。また、ラウンジで静かに読書を楽しむもよし、宅配ボックスを利用して、日々の忙しさを軽減するのも良いでしょう。私の周りには常に管理人の温かい視線が感じられ、敷地内のゴミ置場や駐車場も整然と整えられ、日々の暮らしをサポートしてくれます。
この場所、ザ・パークハビオSOHO祐天寺 507は、東京急行電鉄東急東横線の祐天寺駅からわずか徒歩2分。街の喧騒からわずかに離れたこの特等席からは、都会の裏通りを感じつつも、どこかロマンを伴った生活が約束されています。あなたの目の前には、歴史と文化が交差する街並みが広がり、街角には小さなアートや隠れたカフェが待っています。散策するたび、心が高鳴り、洗練された街の独特な香りが漂い、五感に刺激を与えてくれることでしょう。
ザ・パークハビオSOHO祐天寺 507との出会いは、まさに映画の一場面のような瞬間です。室内で愛する人と交わす笑い声、窓の外に広がる星空を眺めながらの夜のひととき、香ばしいコーヒーの香りに包まれた朝の静けさ。そのすべてが、この空間での新たな生活の一部です。ここで紡がれる物語は、まるで優れた文学作品のように、あなたの心を深く打つことでしょう。
さあ、ザ・パークハビオSOHO祐天寺 507が、あなたにとって特別な場所となることを、心より願っています。新たな生活の幕が、今ここから上がります。
この特別な空間は、26.97㎡の広さをもって、あなたの日常に華やかさを添えます。洋室は4.3帖、ダ…ザ・パークハビオSOHO祐天寺 507。あなたの新たな生活を迎える舞台が、ここに用意されています。この美しい物件は、まるで優雅に咲く花のように、穏やかな目黒区祐天寺に佇んでいます。507号室は、どこか秘めやかな魅力を持ち、私たちに語りかけるようです。「さあ、私とともに新しい物語を刻みましょう」と。
この特別な空間は、26.97㎡の広さをもって、あなたの日常に華やかさを添えます。洋室は4.3帖、ダイニングは4.5帖の配分で、心地よい風が通り抜けるように配置されています。窓から差し込む陽光が、部屋を温かく包み込み、あなたを迎え入れます。その瞬間、味わうのは、白昼の静けさと美しい光のハーモニー。日が沈むころには、柔らかな西の光が、まるでシャンデリアのように室内を彩り、心を和ませます。
ザ・パークハビオSOHO祐天寺 507には、あなたの生活をより豊かにするためのさまざまな設備が揃っています。TVモニターホンは、あなたの生活に安心感をもたらし、エレベーターは日常の移動を優雅に演出します。オートロックの扉は、まるであなたを大切に守る騎士のように、この空間に入ることを許可してくれます。また、ラウンジで静かに読書を楽しむもよし、宅配ボックスを利用して、日々の忙しさを軽減するのも良いでしょう。私の周りには常に管理人の温かい視線が感じられ、敷地内のゴミ置場や駐車場も整然と整えられ、日々の暮らしをサポートしてくれます。
この場所、ザ・パークハビオSOHO祐天寺 507は、東京急行電鉄東急東横線の祐天寺駅からわずか徒歩2分。街の喧騒からわずかに離れたこの特等席からは、都会の裏通りを感じつつも、どこかロマンを伴った生活が約束されています。あなたの目の前には、歴史と文化が交差する街並みが広がり、街角には小さなアートや隠れたカフェが待っています。散策するたび、心が高鳴り、洗練された街の独特な香りが漂い、五感に刺激を与えてくれることでしょう。
ザ・パークハビオSOHO祐天寺 507との出会いは、まさに映画の一場面のような瞬間です。室内で愛する人と交わす笑い声、窓の外に広がる星空を眺めながらの夜のひととき、香ばしいコーヒーの香りに包まれた朝の静けさ。そのすべてが、この空間での新たな生活の一部です。ここで紡がれる物語は、まるで優れた文学作品のように、あなたの心を深く打つことでしょう。
さあ、ザ・パークハビオSOHO祐天寺 507が、あなたにとって特別な場所となることを、心より願っています。新たな生活の幕が、今ここから上がります。
バイブルスコア
バイブルスコア: 37.8
平均的なスコアです。
※バイブルスコア詳細はこちら
バイブルスコアとは独自のAI機械学習技術を利用した物件評価システムで、物件のおすすめ度を示します。最高得点は100点で、スコアが高いほど、よりおすすめの物件と評価されています。
写真
現在写真が登録されていません契約条件
| 賃料 | 予想金額:144,000〜164,000円程度 | 管理費 | 予想金額:18,000〜22,000円程度 |
| 礼金 | 非公開(アーカイブ) | 敷金 | 非公開(アーカイブ) |
| フリーレント | 1.0ヶ月 | 平米数 | 26.97㎡ |
| 間取り | 1DK | 大型収納 | |
| 契約期間 |
| 方角 | 西 |
| 更新料 | 契約形態 | 普通賃貸借契約 | |
| 取引態様 | 媒介 | 内見状況 | 入居中 |
| 入居時期 | 入居中 | SOHO・事務所 | 事務所(SOHO)可 |
| ペット | ペット可 | 間取り内訳 | 洋:4.3 D:4.5 |
| キャンペーン情報・備考 | 本情報は賃料改定交渉の資料作成、収益物件の利回り試算、周辺エリアや最寄り駅の坪単価分析、次回募集開始時期の予測などにご活用いただけます。 | ||
※「どの不動産に頼めばいいのか分からない」「信頼できる営業マンの話を聞きたい」「一番親切な会社と契約したい」とお悩みの方におすすめなのが「高級賃貸バイブル」です。
高級賃貸バイブルは業界10年以上の熟練スタッフ群がお客様ファーストで対応します。
下記ボタンから、まずは無料でご相談下さい。
※内覧をご希望の際には、どうぞ物件のエントランス前にてお待ち合わせくださいませ。ご内覧後は、同じ場所でお別れとさせていただきます。お客様のご都合に合わせたスムーズなご案内を心がけておりますので、ご質問等がございましたら何なりとお申し付けください。 物件概要
| 物件名 |
| 築年月 |
|
|---|---|---|---|
| 所在地 | |||
| 交通 | |||
| 総戸数 |
| 総階数 |
|
| 構造 |
| ||
地図
物件までの道のりは、「拡大地図を表示」をクリックしてナビ機能をご利用ください。
部屋設備













建物設備

TVモニターホン

エレベーター

オートロック

ラウンジ

宅配ボックス

敷地内ゴミ置場

管理人

駐車場平置き

駐車場機械式

駐輪場
ザ・パークハビオSOHO祐天寺の現在募集中のお部屋
- ザ・パークハビオSOHO祐天寺 201 - 間取り: 1K - 賃料: 16.3万円
- ザ・パークハビオSOHO祐天寺 607 - 間取り: 3LDK+WIC+SIC - 賃料: 46.8万円
- ザ・パークハビオSOHO祐天寺 706 - 間取り: 3LDK+WIC+SIC - 賃料: 51万円
- ザ・パークハビオSOHO祐天寺 301 - 間取り: 1K - 賃料: 16.5万円
- ザ・パークハビオSOHO祐天寺 410 - 間取り: 1LDK+WIC - 賃料: 26.5万円
