
| 賃料 | 予想金額:275,000〜295,000円程度 | 管理費 | 予想金額:23,000〜27,000円程度 |
| 礼金/敷金 | 非公開(アーカイブ) | 平米数 | 39.9㎡ |
| 初期費用概算(参考) | 目安:388,800〜488,800 円 | みなし賃料(月額・参考) | 309,142〜329,142 円 |
| 備考 | 本ページは過去募集のアーカイブです。表示の金額は周辺相場・過去募集を踏まえた参考レンジであり、実際の契約金額・条件ではありません。 | ||
※上記みなし賃料(月額)は仲介手数料割引・無料&キャッシュバックを加味した高級賃貸バイブル限定の金額です。一般的なみなし賃料とは異なります。
【建物ページ】ザ・パークハビオSOHO祐天寺の詳細・最新空室はこちら▶▶選ばれる理由
仲介手数料無料・キャンペーン情報(毎月15名様限定)
〇引っ越しお祝い金62700円プレゼント(キャッシュバック)
〇フリーレント1か月キャンペーン
〇仲介手数料無料キャンペーン
ザ・パークハビオSOHO祐天寺 410の口コミ・レビュー
ザ・パークハビオSOHO祐天寺 410。この名は、あなたの新しい生活の幕開けを告げる、まるで神秘的な森林の中に佇む一軒家のような佇まいを持つ空間です。目黒区の心臓部とも言える祐天寺に位置するこの物件は、閑静な環境の中で洗練された日常をお届けします。410号室に足を踏み入れる瞬間、39.9㎡の空間があなたを迎え入れ、まるで親友が温かく抱きしめてくれるような安心感を醸し出します。
この物件は、「北」…ザ・パークハビオSOHO祐天寺 410。この名は、あなたの新しい生活の幕開けを告げる、まるで神秘的な森林の中に佇む一軒家のような佇まいを持つ空間です。目黒区の心臓部とも言える祐天寺に位置するこの物件は、閑静な環境の中で洗練された日常をお届けします。410号室に足を踏み入れる瞬間、39.9㎡の空間があなたを迎え入れ、まるで親友が温かく抱きしめてくれるような安心感を醸し出します。
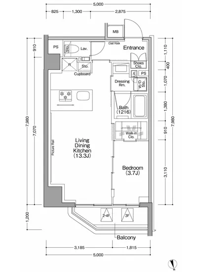
この物件は、「北」の方角を向いていますが、決して孤独ではありません。柔らかな陽光が早朝の静けさを破り、窓から優しい光が差し込む度に、心は自然と穏やかになり、思わず微笑んでしまいます。リビングダイニングキッチン(LDK)には、13.3㎡の広がりがあり、あたかもあなたが映画のワンシーンの中にいるかのように、料理の香ばしい匂いや、友人との楽しい会話が響き渡ります。こだわりのインテリアと合わせて、あなた自身の感性が反映される空間がここには存在します。
さらに、隣接する洋室の3.7㎡は、まさに秘密の隠れ家。そこで静かに読書にふけるあなたの姿を想像するだけで、心が躍ります。静謐な時の流れを感じられるこの場所は、アートに囲まれた生活を求める方にも最適です。近隣には隠れたギャラリーや、歴史を感じるカフェが点在し、ふと立ち寄ることで日常に色彩を加えてくれることでしょう。
ザ・パークハビオSOHO祐天寺 410の魅力は、設備にも表れています。オートロックやTVモニターホンによって、安心感が守られる一方、ラウンジスペースや宅配ボックスは、現代のライフスタイルに欠かせない利便性を提供します。これらは、まるであなたのビジネスシーンやプライベートな時間をサポートする伴侶のようです。駐車場や駐輪場も完備され、アクティブなライフスタイルをサポートします。
祐天寺駅までは徒歩僅か2分と、その距離も魅力の一つです。都会的な生活と自然な安らぎが共存するこのエリアは、まるでプライベートな楽園のような雰囲気です。周囲の歴史や文化、アートの宝庫があなたを囲み、日々新たな発見をもたらすでしょう。歩くごとに歴史の香りが漂う街並みは、あなたを待っているかのように、何か特別な瞬間を提供してくれます。
さあ、ザ・パークハビオSOHO祐天寺 410で、あなた自身の物語を紡ぎ始めましょう。日々の生活が映画のワンシーンのように輝き、あなた自身が主役となるその瞬間を、心から楽しんでいただけますように。ここでの生活は、単なる居住空間ではなく、あなたの人生を豊かに彩るアートなのです。あなたの新しい生活が、この物件で始まることを心よりお待ちしております。
この物件は、「北」…ザ・パークハビオSOHO祐天寺 410。この名は、あなたの新しい生活の幕開けを告げる、まるで神秘的な森林の中に佇む一軒家のような佇まいを持つ空間です。目黒区の心臓部とも言える祐天寺に位置するこの物件は、閑静な環境の中で洗練された日常をお届けします。410号室に足を踏み入れる瞬間、39.9㎡の空間があなたを迎え入れ、まるで親友が温かく抱きしめてくれるような安心感を醸し出します。
この物件は、「北」の方角を向いていますが、決して孤独ではありません。柔らかな陽光が早朝の静けさを破り、窓から優しい光が差し込む度に、心は自然と穏やかになり、思わず微笑んでしまいます。リビングダイニングキッチン(LDK)には、13.3㎡の広がりがあり、あたかもあなたが映画のワンシーンの中にいるかのように、料理の香ばしい匂いや、友人との楽しい会話が響き渡ります。こだわりのインテリアと合わせて、あなた自身の感性が反映される空間がここには存在します。
さらに、隣接する洋室の3.7㎡は、まさに秘密の隠れ家。そこで静かに読書にふけるあなたの姿を想像するだけで、心が躍ります。静謐な時の流れを感じられるこの場所は、アートに囲まれた生活を求める方にも最適です。近隣には隠れたギャラリーや、歴史を感じるカフェが点在し、ふと立ち寄ることで日常に色彩を加えてくれることでしょう。
ザ・パークハビオSOHO祐天寺 410の魅力は、設備にも表れています。オートロックやTVモニターホンによって、安心感が守られる一方、ラウンジスペースや宅配ボックスは、現代のライフスタイルに欠かせない利便性を提供します。これらは、まるであなたのビジネスシーンやプライベートな時間をサポートする伴侶のようです。駐車場や駐輪場も完備され、アクティブなライフスタイルをサポートします。
祐天寺駅までは徒歩僅か2分と、その距離も魅力の一つです。都会的な生活と自然な安らぎが共存するこのエリアは、まるでプライベートな楽園のような雰囲気です。周囲の歴史や文化、アートの宝庫があなたを囲み、日々新たな発見をもたらすでしょう。歩くごとに歴史の香りが漂う街並みは、あなたを待っているかのように、何か特別な瞬間を提供してくれます。
さあ、ザ・パークハビオSOHO祐天寺 410で、あなた自身の物語を紡ぎ始めましょう。日々の生活が映画のワンシーンのように輝き、あなた自身が主役となるその瞬間を、心から楽しんでいただけますように。ここでの生活は、単なる居住空間ではなく、あなたの人生を豊かに彩るアートなのです。あなたの新しい生活が、この物件で始まることを心よりお待ちしております。
バイブルスコア
バイブルスコア: 11.7
高級な物件でない場合は割高な物件です。。
※バイブルスコア詳細はこちら
バイブルスコアとは独自のAI機械学習技術を利用した物件評価システムで、物件のおすすめ度を示します。最高得点は100点で、スコアが高いほど、よりおすすめの物件と評価されています。
写真
現在写真が登録されていません契約条件
| 賃料 | 予想金額:275,000〜295,000円程度 | 管理費 | 予想金額:23,000〜27,000円程度 |
| 礼金 | 非公開(アーカイブ) | 敷金 | 非公開(アーカイブ) |
| フリーレント | 1.0ヶ月 | 平米数 | 39.9㎡ |
| 間取り | 1LDK | 大型収納 | WIC |
| 契約期間 |
| 方角 | 北 |
| 更新料 | 契約形態 | 普通賃貸借契約 | |
| 取引態様 | 媒介 | 内見状況 | 入居中 |
| 入居時期 | 入居中 | SOHO・事務所 | 事務所(SOHO)可 |
| ペット | ペット可 | 間取り内訳 | 洋:3.7 LDK:13.3 |
| キャンペーン情報・備考 | 本情報は賃料改定交渉の資料作成、収益物件の利回り試算、周辺エリアや最寄り駅の坪単価分析、次回募集開始時期の予測などにご活用いただけます。 | ||
※「どの不動産に頼めばいいのか分からない」「信頼できる営業マンの話を聞きたい」「一番親切な会社と契約したい」とお悩みの方におすすめなのが「高級賃貸バイブル」です。
高級賃貸バイブルは業界10年以上の熟練スタッフ群がお客様ファーストで対応します。
下記ボタンから、まずは無料でご相談下さい。
※内覧をご希望の際には、どうぞ物件のエントランス前にてお待ち合わせくださいませ。ご内覧後は、同じ場所でお別れとさせていただきます。お客様のご都合に合わせたスムーズなご案内を心がけておりますので、ご質問等がございましたら何なりとお申し付けください。 物件概要
| 物件名 |
| 築年月 |
|
|---|---|---|---|
| 所在地 | |||
| 交通 | |||
| 総戸数 |
| 総階数 |
|
| 構造 |
| ||
地図
物件までの道のりは、「拡大地図を表示」をクリックしてナビ機能をご利用ください。
部屋設備
















建物設備

TVモニターホン

エレベーター

オートロック

ラウンジ

宅配ボックス

敷地内ゴミ置場

管理人

駐車場平置き

駐車場機械式

駐輪場
ザ・パークハビオSOHO祐天寺の現在募集中のお部屋
- ザ・パークハビオSOHO祐天寺 201 - 間取り: 1K - 賃料: 16.3万円
- ザ・パークハビオSOHO祐天寺 607 - 間取り: 3LDK+WIC+SIC - 賃料: 46.8万円
- ザ・パークハビオSOHO祐天寺 706 - 間取り: 3LDK+WIC+SIC - 賃料: 51万円
- ザ・パークハビオSOHO祐天寺 301 - 間取り: 1K - 賃料: 16.5万円
- ザ・パークハビオSOHO祐天寺 410 - 間取り: 1LDK+WIC - 賃料: 26.5万円
