
| 賃料 | 予想金額:123,000〜143,000円程度 | 管理費 | 予想金額:6,000〜10,000円程度 |
| 礼金/敷金 | 非公開(アーカイブ) | 平米数 | 34.68㎡ |
| 初期費用概算(参考) | 目安:280,400〜380,400 円 | みなし賃料(月額・参考) | 135,113〜155,113 円 |
| 備考 | 本ページは過去募集のアーカイブです。表示の金額は周辺相場・過去募集を踏まえた参考レンジであり、実際の契約金額・条件ではありません。 | ||
※上記みなし賃料(月額)は仲介手数料割引・無料&キャッシュバックを加味した高級賃貸バイブル限定の金額です。一般的なみなし賃料とは異なります。
【建物ページ】プライムアーバン日本橋浜町の詳細・最新空室はこちら▶▶選ばれる理由
仲介手数料無料・キャンペーン情報(毎月15名様限定)
〇仲介手数料無料キャンペーン
プライムアーバン日本橋浜町 1202の口コミ・レビュー
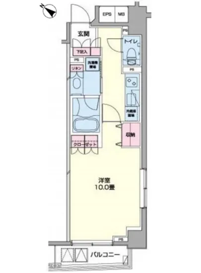
プライムアーバン日本橋浜町 1202。この高級賃貸物件は、まるで都会のオアシスのような存在感を放ち、訪れる人々に特別な物語を語りかけます。1202という数字は、ただの部屋番号ではなく、ここに住まう人々の生きざまや夢の象徴であるかのようです。34.68㎡という空間には、洗練されたデザインと心地よい機能が織り交ぜられ、まるでアート作品のようにあなたを迎え入れます。
まず、南西と南東から差し込む光は、…プライムアーバン日本橋浜町 1202。この高級賃貸物件は、まるで都会のオアシスのような存在感を放ち、訪れる人々に特別な物語を語りかけます。1202という数字は、ただの部屋番号ではなく、ここに住まう人々の生きざまや夢の象徴であるかのようです。34.68㎡という空間には、洗練されたデザインと心地よい機能が織り交ぜられ、まるでアート作品のようにあなたを迎え入れます。
まず、南西と南東から差し込む光は、ゆらゆらと揺れる影を作り出し、朝日の柔らかさと夕日の温もりを贈ります。まるで、あたかも陽光が優しい手であなたを包み込んでいるかのようです。この家に入ると、洋室10帖は静かに微笑み、あなたの帰りを待ちわびています。心地よい風が窓から吹き込むたび、時折感じる春の花々の香りが、心に安らぎを与えてくれます。
プライムアーバン日本橋浜町 1202の特筆すべき点は、その充実した設備です。オートロックの玄関を開けると、まるで特別なゲートを潜り抜けたかのように、心が躍ります。TVモニターホンが安心感をもたらし、宅配ボックスは、あなたの大切な荷物をいつでも受け取る準備を整えてくれています。これらの機能美は、あなたの日常をより豊かに彩る、優れたパートナーです。
さらに、プライムアーバン日本橋浜町 1202の周辺には、歴史と文化が息づく街があります。東京都中央区のこの地は、古き良き日本の面影を残しつつ、現代的な洗練を兼ね備えています。あなたが散歩を楽しむたびに、耳に心地よい街の喧騒、そして足元に感じる石畳の感触は、まるで小説の一節に引き込まれる瞬間のようです。近隣のカフェでは挽きたてのコーヒーの香ばしい香りが漂い、あなたの心をほっとさせるスイーツと共に素敵なひと時を提供してくれるでしょう。
この物件に住むことで、一日の終わりに心地よい疲れを感じつつ、食卓を囲む楽しさや、友人との語らい、一人の静かな読書の時間が、まるで映画のワンシーンのように流れていきます。プライムアーバン日本橋浜町 1202は、あなたの生活がかけがえのない瞬間で満たされることを約束しています。ここでのライフスタイルは単に生活の場ではなく、心の豊かさを紡ぐ場所なのです。あなたもこの物件に、思い描く幸せな日々を宿してみませんか。きっと、生活が一層輝きを増すことでしょう。
まず、南西と南東から差し込む光は、…プライムアーバン日本橋浜町 1202。この高級賃貸物件は、まるで都会のオアシスのような存在感を放ち、訪れる人々に特別な物語を語りかけます。1202という数字は、ただの部屋番号ではなく、ここに住まう人々の生きざまや夢の象徴であるかのようです。34.68㎡という空間には、洗練されたデザインと心地よい機能が織り交ぜられ、まるでアート作品のようにあなたを迎え入れます。
まず、南西と南東から差し込む光は、ゆらゆらと揺れる影を作り出し、朝日の柔らかさと夕日の温もりを贈ります。まるで、あたかも陽光が優しい手であなたを包み込んでいるかのようです。この家に入ると、洋室10帖は静かに微笑み、あなたの帰りを待ちわびています。心地よい風が窓から吹き込むたび、時折感じる春の花々の香りが、心に安らぎを与えてくれます。
プライムアーバン日本橋浜町 1202の特筆すべき点は、その充実した設備です。オートロックの玄関を開けると、まるで特別なゲートを潜り抜けたかのように、心が躍ります。TVモニターホンが安心感をもたらし、宅配ボックスは、あなたの大切な荷物をいつでも受け取る準備を整えてくれています。これらの機能美は、あなたの日常をより豊かに彩る、優れたパートナーです。
さらに、プライムアーバン日本橋浜町 1202の周辺には、歴史と文化が息づく街があります。東京都中央区のこの地は、古き良き日本の面影を残しつつ、現代的な洗練を兼ね備えています。あなたが散歩を楽しむたびに、耳に心地よい街の喧騒、そして足元に感じる石畳の感触は、まるで小説の一節に引き込まれる瞬間のようです。近隣のカフェでは挽きたてのコーヒーの香ばしい香りが漂い、あなたの心をほっとさせるスイーツと共に素敵なひと時を提供してくれるでしょう。
この物件に住むことで、一日の終わりに心地よい疲れを感じつつ、食卓を囲む楽しさや、友人との語らい、一人の静かな読書の時間が、まるで映画のワンシーンのように流れていきます。プライムアーバン日本橋浜町 1202は、あなたの生活がかけがえのない瞬間で満たされることを約束しています。ここでのライフスタイルは単に生活の場ではなく、心の豊かさを紡ぐ場所なのです。あなたもこの物件に、思い描く幸せな日々を宿してみませんか。きっと、生活が一層輝きを増すことでしょう。
写真
契約条件
| 賃料 | 予想金額:123,000〜143,000円程度 | 管理費 | 予想金額:6,000〜10,000円程度 |
| 礼金 | 非公開(アーカイブ) | 敷金 | 非公開(アーカイブ) |
| フリーレント | なし | 平米数 | 34.68㎡ |
| 間取り | 1K | 大型収納 | |
| 契約期間 |
| 方角 | 南西 / 南東 |
| 更新料 | 契約形態 | 普通賃貸借契約 | |
| 取引態様 | 媒介 | 内見状況 | 入居中 |
| 入居時期 | 入居中 | SOHO・事務所 | |
| ペット | ペット可 | 間取り内訳 | 洋:10 |
| キャンペーン情報・備考 | 本情報は賃料改定交渉の資料作成、収益物件の利回り試算、周辺エリアや最寄り駅の坪単価分析、次回募集開始時期の予測などにご活用いただけます。 | ||
※「どの不動産に頼めばいいのか分からない」「信頼できる営業マンの話を聞きたい」「一番親切な会社と契約したい」とお悩みの方におすすめなのが「高級賃貸バイブル」です。
高級賃貸バイブルは業界10年以上の熟練スタッフ群がお客様ファーストで対応します。
下記ボタンから、まずは無料でご相談下さい。
※内覧をご希望の際には、どうぞ物件のエントランス前にてお待ち合わせくださいませ。ご内覧後は、同じ場所でお別れとさせていただきます。お客様のご都合に合わせたスムーズなご案内を心がけておりますので、ご質問等がございましたら何なりとお申し付けください。 物件概要
| 物件名 |
| 築年月 |
|
|---|---|---|---|
| 所在地 | |||
| 交通 | |||
| 総戸数 |
| 総階数 |
|
| 構造 |
| ||
地図
物件までの道のりは、「拡大地図を表示」をクリックしてナビ機能をご利用ください。
部屋設備















建物設備

TVモニターホン

エレベーター

オートロック

宅配ボックス

敷地内ゴミ置場

管理人

駐車場平置き

駐車場機械式

駐輪場
プライムアーバン日本橋浜町の現在募集中のお部屋
- No rooms found for this property.






























