
| 賃料 | 予想金額:108,000〜128,000円程度 | 管理費 | 予想金額:8,000〜12,000円程度 |
| 礼金/敷金 | 非公開(アーカイブ) | 平米数 | 25.2㎡ |
| 初期費用概算(参考) | 目安:152,540〜252,540 円 | みなし賃料(月額・参考) | 119,761〜139,761 円 |
| 備考 | 本ページは過去募集のアーカイブです。表示の金額は周辺相場・過去募集を踏まえた参考レンジであり、実際の契約金額・条件ではありません。 | ||
※上記みなし賃料(月額)は仲介手数料割引・無料&キャッシュバックを加味した高級賃貸バイブル限定の金額です。一般的なみなし賃料とは異なります。
【建物ページ】コンフォリア・リヴ碑文谷二丁目の詳細・最新空室はこちら▶▶選ばれる理由
仲介手数料無料・キャンペーン情報(毎月15名様限定)
〇引っ越しお祝い金143960円プレゼント(キャッシュバック)
〇仲介手数料無料キャンペーン
コンフォリア・リヴ碑文谷二丁目 501の口コミ・レビュー
レジディア碑文谷 501へようこそ。この特別な空間は、貴方の生活を劇的に彩る舞台です。501という数字は、ただの階数ではありません。それは、貴方が新たに迎える生活の始まりを告げるシンボル。25.2㎡の広さは、たった一人の生活を包み込む温もりと、ひと時の安らぎを提供します。東京急行電鉄東急東横線の学芸大学駅からわずか8分、少しの距離が貴方に特別な日常を引き寄せます。
この空間はただの賃貸物件ではな…レジディア碑文谷 501へようこそ。この特別な空間は、貴方の生活を劇的に彩る舞台です。501という数字は、ただの階数ではありません。それは、貴方が新たに迎える生活の始まりを告げるシンボル。25.2㎡の広さは、たった一人の生活を包み込む温もりと、ひと時の安らぎを提供します。東京急行電鉄東急東横線の学芸大学駅からわずか8分、少しの距離が貴方に特別な日常を引き寄せます。
この空間はただの賃貸物件ではなく、まるで一編の詩のように、貴方の心に響くようデザインされています。北西と南西から差し込む柔らかな光が、7.8帖の洋室をやさしく包み込む様は、まるで太陽が温かく見守る母の腕のよう。日々の忙しさから解放され、ここで過ごす一瞬一瞬が、心の栄養となることでしょう。
入居後、貴方はこのスペースを自分の思いのままに彩ることができます。カラフルなクッションを並べ、お気に入りのアートを壁に飾れば、まるで自分だけのギャラリーのようです。TVモニターホンが静かに見守る中、心地よいブランケットに包まれて、カフェオレの香りを感じながら、読書に耽るひととき。家具に触れた時の温かさ、その感触さえも愛おしくなることでしょう。
エレベーターを利用して、静かに地上へ降りれば、周りのキャンバスには豊かな自然と洗練された都市文化が広がります。目黒区の歴史ある石畳の道を歩きながら、耳にするのは人々の笑い声や、風に揺れる木々のささやき。少し足を伸ばせば、アートと文化が息づく街並みが貴方を待っています。ここは、ただの居住空間ではなく、感性を養うための舞台なのです。
入居してからの日々は、まるで映画のワンシーンのように鮮やかに広がっていきます。ソファに座って、窓から見える四季の移ろいに心を寄せ、ドアを開けた先には新たな発見が待ち受けています。敷地内のゴミ置場や宅配ボックス、オートロックで守られた安心感は、まるで貴方を包む高級な羽毛布団のように心を安定させます。
レジディア碑文谷 501での生活は、まるで自分自身の物語を紡ぐような贅沢な時間です。ここは、ただの生活の場ではなく、貴方の人生に深い色彩を加えるためのキャンバスなのです。どうかこの空間が、貴方の心の栄養となりますように。楽しい日々の中で、ここが貴方に愛される場所となることを願ってやみません。
この空間はただの賃貸物件ではな…レジディア碑文谷 501へようこそ。この特別な空間は、貴方の生活を劇的に彩る舞台です。501という数字は、ただの階数ではありません。それは、貴方が新たに迎える生活の始まりを告げるシンボル。25.2㎡の広さは、たった一人の生活を包み込む温もりと、ひと時の安らぎを提供します。東京急行電鉄東急東横線の学芸大学駅からわずか8分、少しの距離が貴方に特別な日常を引き寄せます。
この空間はただの賃貸物件ではなく、まるで一編の詩のように、貴方の心に響くようデザインされています。北西と南西から差し込む柔らかな光が、7.8帖の洋室をやさしく包み込む様は、まるで太陽が温かく見守る母の腕のよう。日々の忙しさから解放され、ここで過ごす一瞬一瞬が、心の栄養となることでしょう。
入居後、貴方はこのスペースを自分の思いのままに彩ることができます。カラフルなクッションを並べ、お気に入りのアートを壁に飾れば、まるで自分だけのギャラリーのようです。TVモニターホンが静かに見守る中、心地よいブランケットに包まれて、カフェオレの香りを感じながら、読書に耽るひととき。家具に触れた時の温かさ、その感触さえも愛おしくなることでしょう。
エレベーターを利用して、静かに地上へ降りれば、周りのキャンバスには豊かな自然と洗練された都市文化が広がります。目黒区の歴史ある石畳の道を歩きながら、耳にするのは人々の笑い声や、風に揺れる木々のささやき。少し足を伸ばせば、アートと文化が息づく街並みが貴方を待っています。ここは、ただの居住空間ではなく、感性を養うための舞台なのです。
入居してからの日々は、まるで映画のワンシーンのように鮮やかに広がっていきます。ソファに座って、窓から見える四季の移ろいに心を寄せ、ドアを開けた先には新たな発見が待ち受けています。敷地内のゴミ置場や宅配ボックス、オートロックで守られた安心感は、まるで貴方を包む高級な羽毛布団のように心を安定させます。
レジディア碑文谷 501での生活は、まるで自分自身の物語を紡ぐような贅沢な時間です。ここは、ただの生活の場ではなく、貴方の人生に深い色彩を加えるためのキャンバスなのです。どうかこの空間が、貴方の心の栄養となりますように。楽しい日々の中で、ここが貴方に愛される場所となることを願ってやみません。
バイブルスコア
バイブルスコア: 31
平均的なスコアです。
※バイブルスコア詳細はこちら
バイブルスコアとは独自のAI機械学習技術を利用した物件評価システムで、物件のおすすめ度を示します。最高得点は100点で、スコアが高いほど、よりおすすめの物件と評価されています。
写真
現在写真が登録されていません契約条件
| 賃料 | 予想金額:108,000〜128,000円程度 | 管理費 | 予想金額:8,000〜12,000円程度 |
| 礼金 | 非公開(アーカイブ) | 敷金 | 非公開(アーカイブ) |
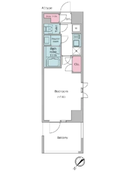
| フリーレント | なし | 平米数 | 25.2㎡ |
| 間取り | 1K | 大型収納 | SIC |
| 契約期間 |
| 方角 | 北西 / 南西 |
| 更新料 | 契約形態 | 普通賃貸借契約 | |
| 取引態様 | 媒介 | 内見状況 | 入居中 |
| 入居時期 | 入居中 | SOHO・事務所 | |
| ペット | 間取り内訳 | 洋:7.8 | |
| キャンペーン情報・備考 | 本情報は賃料改定交渉の資料作成、収益物件の利回り試算、周辺エリアや最寄り駅の坪単価分析、次回募集開始時期の予測などにご活用いただけます。 | ||
※「どの不動産に頼めばいいのか分からない」「信頼できる営業マンの話を聞きたい」「一番親切な会社と契約したい」とお悩みの方におすすめなのが「高級賃貸バイブル」です。
高級賃貸バイブルは業界10年以上の熟練スタッフ群がお客様ファーストで対応します。
下記ボタンから、まずは無料でご相談下さい。
※内覧をご希望の際には、どうぞ物件のエントランス前にてお待ち合わせくださいませ。ご内覧後は、同じ場所でお別れとさせていただきます。お客様のご都合に合わせたスムーズなご案内を心がけておりますので、ご質問等がございましたら何なりとお申し付けください。 物件概要
地図
物件までの道のりは、「拡大地図を表示」をクリックしてナビ機能をご利用ください。
部屋設備













建物設備

TVモニターホン

エレベーター

オートロック

宅配ボックス

敷地内ゴミ置場

管理人

駐輪場
コンフォリア・リヴ碑文谷二丁目の現在募集中のお部屋
- No rooms found for this property.
