
| 賃料 | 予想金額:190,000〜210,000円程度 | 管理費 | 予想金額:13,000〜17,000円程度 |
| 礼金/敷金 | 非公開(アーカイブ) | 平米数 | 44.68㎡ |
| 初期費用概算(参考) | 目安:764,000〜864,000 円 | みなし賃料(月額・参考) | 217,792〜237,792 円 |
| 備考 | 本ページは過去募集のアーカイブです。表示の金額は周辺相場・過去募集を踏まえた参考レンジであり、実際の契約金額・条件ではありません。 | ||
※上記みなし賃料(月額)は仲介手数料割引・無料&キャッシュバックを加味した高級賃貸バイブル限定の金額です。一般的なみなし賃料とは異なります。
【建物ページ】レジディア祐天寺の詳細・最新空室はこちら▶▶選ばれる理由
仲介手数料無料・キャンペーン情報(毎月15名様限定)
〇仲介手数料割引キャンペーン
レジディア祐天寺 220の口コミ・レビュー
レジディア祐天寺 220。これはただの住所ではありません。まるで夢の中の隠れ家が現実のものになったかのような、特別な物件です。南東に向いた窓からは、陽の光が優しく差し込み、朝の目覚めを祝福するかのように、空気を温かく包み込みます。ここに住むことは、まるで一冊の絵本をめくる感覚。その一ページ一ページが、豊かな生活を織りなす物語を持っています。
この高雅な住まいは、1LDKの間取りで構成され、LD(…レジディア祐天寺 220。これはただの住所ではありません。まるで夢の中の隠れ家が現実のものになったかのような、特別な物件です。南東に向いた窓からは、陽の光が優しく差し込み、朝の目覚めを祝福するかのように、空気を温かく包み込みます。ここに住むことは、まるで一冊の絵本をめくる感覚。その一ページ一ページが、豊かな生活を織りなす物語を持っています。
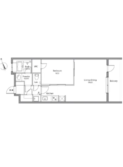
この高雅な住まいは、1LDKの間取りで構成され、LD(リビングダイニング)は14帖、BR(ベッドルーム)は6帖の広さを誇ります。開放感あふれる空間に身を委ねれば、ゆったりとした時間が流れ、あなたの日常が一変することを約束します。44.68㎡のこの空間は、あなたの思い描く理想のライフスタイルを実現するためのキャンバス。まるで芸術家がその筆を動かすように、自分の個性を映し出すことができるのです。
レジディア祐天寺 220には、心地よい生活を支えるためのさまざまな設備があります。TVモニターホンやオートロックは、安心感をもたらし、あなたの生活を守ります。エレベーターでスムーズに移動できる利便性も、忙しい日常を優雅なものにしてくれます。また、バイク置き場や駐輪場も完備されており、あなたのアウトドアライフを一層楽しむ手助けをしてくれるでしょう。
この物件は、ただの住まいではありません。それはまるで、あなたを待っているかのように、ラウンジや宅配ボックス、敷地内のゴミ置き場まで細やかに配慮された、理想の生活空間です。管理人が見守る安心感の中で、日々の生活が豊かになる瞬間を感じてみてください。
さて、このレジディア祐天寺 220が位置する中目黒は、ただの街ではなく、歴史と文化が織りなす魅力に満ちた場所です。目黒川沿いの桜並木は、春の訪れを告げる風物詩。季節ごとに変わる風景は、まるで優雅な映画のワンシーンのよう。あなたが窓の外を眺めるたびに、心が弾むことでしょう。また、周辺にはおしゃれなカフェやアートギャラリーが点在しており、創造性が息づく街そのもの。この空間に住むことで、あなたもその一部となり、日常が特別なものへと変貌するのです。
想像してみてください。朝陽の中、レジディア祐天寺 220のリビングにて、一杯のコーヒーを手に取りながら、ゆったりとした時間を過ごす自分を。外からは静かに流れる目黒川の音が耳に心地よく響き、あなたの心は自然と落ち着いていきます。夜には、星が瞬く空の下、この住まいで特別な人と共に過ごすロマンティックなディナー。まるで映画のワンシーンを切り取ったかのような瞬間が、日常の中で繰り広げられます。
レジディア祐天寺 220は、ただの住まいではなく、あなたの人生を彩る舞台です。さぁ、この独特な物件で、あなた自身のストーリーを描いてみませんか。新たな生活が、あなたを待っています。
この高雅な住まいは、1LDKの間取りで構成され、LD(…レジディア祐天寺 220。これはただの住所ではありません。まるで夢の中の隠れ家が現実のものになったかのような、特別な物件です。南東に向いた窓からは、陽の光が優しく差し込み、朝の目覚めを祝福するかのように、空気を温かく包み込みます。ここに住むことは、まるで一冊の絵本をめくる感覚。その一ページ一ページが、豊かな生活を織りなす物語を持っています。
この高雅な住まいは、1LDKの間取りで構成され、LD(リビングダイニング)は14帖、BR(ベッドルーム)は6帖の広さを誇ります。開放感あふれる空間に身を委ねれば、ゆったりとした時間が流れ、あなたの日常が一変することを約束します。44.68㎡のこの空間は、あなたの思い描く理想のライフスタイルを実現するためのキャンバス。まるで芸術家がその筆を動かすように、自分の個性を映し出すことができるのです。
レジディア祐天寺 220には、心地よい生活を支えるためのさまざまな設備があります。TVモニターホンやオートロックは、安心感をもたらし、あなたの生活を守ります。エレベーターでスムーズに移動できる利便性も、忙しい日常を優雅なものにしてくれます。また、バイク置き場や駐輪場も完備されており、あなたのアウトドアライフを一層楽しむ手助けをしてくれるでしょう。
この物件は、ただの住まいではありません。それはまるで、あなたを待っているかのように、ラウンジや宅配ボックス、敷地内のゴミ置き場まで細やかに配慮された、理想の生活空間です。管理人が見守る安心感の中で、日々の生活が豊かになる瞬間を感じてみてください。
さて、このレジディア祐天寺 220が位置する中目黒は、ただの街ではなく、歴史と文化が織りなす魅力に満ちた場所です。目黒川沿いの桜並木は、春の訪れを告げる風物詩。季節ごとに変わる風景は、まるで優雅な映画のワンシーンのよう。あなたが窓の外を眺めるたびに、心が弾むことでしょう。また、周辺にはおしゃれなカフェやアートギャラリーが点在しており、創造性が息づく街そのもの。この空間に住むことで、あなたもその一部となり、日常が特別なものへと変貌するのです。
想像してみてください。朝陽の中、レジディア祐天寺 220のリビングにて、一杯のコーヒーを手に取りながら、ゆったりとした時間を過ごす自分を。外からは静かに流れる目黒川の音が耳に心地よく響き、あなたの心は自然と落ち着いていきます。夜には、星が瞬く空の下、この住まいで特別な人と共に過ごすロマンティックなディナー。まるで映画のワンシーンを切り取ったかのような瞬間が、日常の中で繰り広げられます。
レジディア祐天寺 220は、ただの住まいではなく、あなたの人生を彩る舞台です。さぁ、この独特な物件で、あなた自身のストーリーを描いてみませんか。新たな生活が、あなたを待っています。
バイブルスコア
バイブルスコア: 23.1
平均的なスコアです。
※バイブルスコア詳細はこちら
バイブルスコアとは独自のAI機械学習技術を利用した物件評価システムで、物件のおすすめ度を示します。最高得点は100点で、スコアが高いほど、よりおすすめの物件と評価されています。
写真
契約条件
| 賃料 | 予想金額:190,000〜210,000円程度 | 管理費 | 予想金額:13,000〜17,000円程度 |
| 礼金 | 非公開(アーカイブ) | 敷金 | 非公開(アーカイブ) |
| フリーレント | なし | 平米数 | 44.68㎡ |
| 間取り | 1LDK | 大型収納 | WIC+SIC |
| 契約期間 |
| 方角 | 南東 |
| 更新料 | 契約形態 | 普通賃貸借契約 | |
| 取引態様 | 媒介 | 内見状況 | 入居中 |
| 入居時期 | 入居中 | SOHO・事務所 | |
| ペット | ペット可 | 間取り内訳 | LD=14J / K / BR=6J |
| キャンペーン情報・備考 | 本情報は賃料改定交渉の資料作成、収益物件の利回り試算、周辺エリアや最寄り駅の坪単価分析、次回募集開始時期の予測などにご活用いただけます。 | ||
※「どの不動産に頼めばいいのか分からない」「信頼できる営業マンの話を聞きたい」「一番親切な会社と契約したい」とお悩みの方におすすめなのが「高級賃貸バイブル」です。
高級賃貸バイブルは業界10年以上の熟練スタッフ群がお客様ファーストで対応します。
下記ボタンから、まずは無料でご相談下さい。
※内覧をご希望の際には、どうぞ物件のエントランス前にてお待ち合わせくださいませ。ご内覧後は、同じ場所でお別れとさせていただきます。お客様のご都合に合わせたスムーズなご案内を心がけておりますので、ご質問等がございましたら何なりとお申し付けください。 物件概要
| 物件名 |
| 築年月 |
|
|---|---|---|---|
| 所在地 | |||
| 交通 | |||
| 総戸数 |
| 総階数 |
|
| 構造 |
| ||
地図
物件までの道のりは、「拡大地図を表示」をクリックしてナビ機能をご利用ください。
部屋設備

















建物設備

TVモニターホン

エレベーター

オートロック

バイク置場

ラウンジ

宅配ボックス

敷地内ゴミ置場

管理人

駐車場平置き

駐車場機械式

駐輪場
レジディア祐天寺の現在募集中のお部屋
- レジディア祐天寺 611 - 間取り: 2LDK+WIC - 賃料: 36万円
- レジディア祐天寺 319 - 間取り: 2LDK+WIC - 賃料: 34.9万円




















