
| 賃料 | 予想金額:120,000〜140,000円程度 | 管理費 | 予想金額:10,000〜14,000円程度 |
| 礼金/敷金 | 非公開(アーカイブ) | 平米数 | 35.67㎡ |
| 初期費用概算(参考) | 目安:278,800〜378,800 円 | みなし賃料(月額・参考) | 136,142〜156,142 円 |
| 備考 | 本ページは過去募集のアーカイブです。表示の金額は周辺相場・過去募集を踏まえた参考レンジであり、実際の契約金額・条件ではありません。 | ||
※上記みなし賃料(月額)は仲介手数料割引・無料&キャッシュバックを加味した高級賃貸バイブル限定の金額です。一般的なみなし賃料とは異なります。
【建物ページ】BPRレジデンス祐天寺の詳細・最新空室はこちら▶▶選ばれる理由
仲介手数料無料・キャンペーン情報(毎月15名様限定)
〇仲介手数料無料キャンペーン
BPRレジデンス祐天寺 4の口コミ・レビュー
BPRレジデンス祐天寺 4は、あなたの生活の舞台を華やかに彩る、新たな物語の始まりを告げる場所です。東京都目黒区五本木の心地よい南向きに位置し、光のシャワーが降り注ぐこの特別な空間は、まるでアートのように一つ一つのディテールが丁寧に仕上げられています。あなたがこの空間に足を踏み入れた瞬間、まるで感性を刺激するギャラリーのような雰囲気に包まれることでしょう。
この物件の魅力は、まずその間取りにあり…BPRレジデンス祐天寺 4は、あなたの生活の舞台を華やかに彩る、新たな物語の始まりを告げる場所です。東京都目黒区五本木の心地よい南向きに位置し、光のシャワーが降り注ぐこの特別な空間は、まるでアートのように一つ一つのディテールが丁寧に仕上げられています。あなたがこの空間に足を踏み入れた瞬間、まるで感性を刺激するギャラリーのような雰囲気に包まれることでしょう。
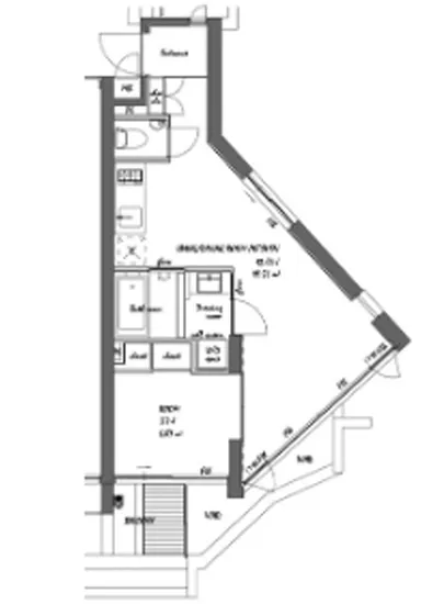
この物件の魅力は、まずその間取りにあります。洗練されたデザインの1LDK、洋室は3.7帖、リビングダイニングキッチンは12.04帖。ゆったりとした空間が生み出す余白に、あなた自身のライフスタイルを自由に描くことができます。陽の光が優しく照らすリビングで、朝のコーヒーの香りを楽しみながら、好きな本を広げる。心地よい風がカーテンを揺らし、あなたの耳には、都会の喧騒を忘れさせてくれる静かな音色が響くのです。
BPRレジデンス祐天寺 4は、その名が示す通り、デザイナーズ物件としての特別な存在感を持っています。オートロックやTVモニターホンなどの最新の設備が整い、安心・安全な暮らしを提供しつつ、落ち着いた色調のインテリアが、非日常を日常に昇華させます。駐輪場や敷地内ゴミ置場の便利さが、また、生活をより快適にしてくれることでしょう。
四分の道を挟んで、祐天寺駅があなたを待っています。その距離わずか徒歩4分、街の喧騒と静寂が交錯する理想的な立地は、まさに時代の先端を行く感性を持ったあなたにふさわしいもの。周辺には歴史と文化が根付いており、都会の中にあっても、その温かみを感じられます。アートや食文化、地元の魅力を存分に楽しむことができる場所が、まるで宝物のように散りばめられています。
この場所は、ただの住まいではなく、あなたの人生の舞台であり、感動の瞬間を凝縮した宝石のような空間です。毎日が映画の一場面のように、日常の一コマ一コマが特別なものに変わります。BPRレジデンス祐天寺 4での生活は、まさに感覚を刺激し、心を彩る贅沢な時間をお約束します。今こそ、あなた自身の物語を書き始める瞬間です。この場所で、あなたの未来が花開くことを心より願っております。
この物件の魅力は、まずその間取りにあり…BPRレジデンス祐天寺 4は、あなたの生活の舞台を華やかに彩る、新たな物語の始まりを告げる場所です。東京都目黒区五本木の心地よい南向きに位置し、光のシャワーが降り注ぐこの特別な空間は、まるでアートのように一つ一つのディテールが丁寧に仕上げられています。あなたがこの空間に足を踏み入れた瞬間、まるで感性を刺激するギャラリーのような雰囲気に包まれることでしょう。
この物件の魅力は、まずその間取りにあります。洗練されたデザインの1LDK、洋室は3.7帖、リビングダイニングキッチンは12.04帖。ゆったりとした空間が生み出す余白に、あなた自身のライフスタイルを自由に描くことができます。陽の光が優しく照らすリビングで、朝のコーヒーの香りを楽しみながら、好きな本を広げる。心地よい風がカーテンを揺らし、あなたの耳には、都会の喧騒を忘れさせてくれる静かな音色が響くのです。
BPRレジデンス祐天寺 4は、その名が示す通り、デザイナーズ物件としての特別な存在感を持っています。オートロックやTVモニターホンなどの最新の設備が整い、安心・安全な暮らしを提供しつつ、落ち着いた色調のインテリアが、非日常を日常に昇華させます。駐輪場や敷地内ゴミ置場の便利さが、また、生活をより快適にしてくれることでしょう。
四分の道を挟んで、祐天寺駅があなたを待っています。その距離わずか徒歩4分、街の喧騒と静寂が交錯する理想的な立地は、まさに時代の先端を行く感性を持ったあなたにふさわしいもの。周辺には歴史と文化が根付いており、都会の中にあっても、その温かみを感じられます。アートや食文化、地元の魅力を存分に楽しむことができる場所が、まるで宝物のように散りばめられています。
この場所は、ただの住まいではなく、あなたの人生の舞台であり、感動の瞬間を凝縮した宝石のような空間です。毎日が映画の一場面のように、日常の一コマ一コマが特別なものに変わります。BPRレジデンス祐天寺 4での生活は、まさに感覚を刺激し、心を彩る贅沢な時間をお約束します。今こそ、あなた自身の物語を書き始める瞬間です。この場所で、あなたの未来が花開くことを心より願っております。
写真
契約条件
| 賃料 | 予想金額:120,000〜140,000円程度 | 管理費 | 予想金額:10,000〜14,000円程度 |
| 礼金 | 非公開(アーカイブ) | 敷金 | 非公開(アーカイブ) |
| フリーレント | なし | 平米数 | 35.67㎡ |
| 間取り | 1LDK | 大型収納 | |
| 契約期間 |
| 方角 | 南 |
| 更新料 | 契約形態 | 普通賃貸借契約 | |
| 取引態様 | 媒介 | 内見状況 | 入居中 |
| 入居時期 | 入居中 | SOHO・事務所 | |
| ペット | 間取り内訳 | 洋:3.7 LDK:12.04 | |
| キャンペーン情報・備考 | 本情報は賃料改定交渉の資料作成、収益物件の利回り試算、周辺エリアや最寄り駅の坪単価分析、次回募集開始時期の予測などにご活用いただけます。 | ||
※「どの不動産に頼めばいいのか分からない」「信頼できる営業マンの話を聞きたい」「一番親切な会社と契約したい」とお悩みの方におすすめなのが「高級賃貸バイブル」です。
高級賃貸バイブルは業界10年以上の熟練スタッフ群がお客様ファーストで対応します。
下記ボタンから、まずは無料でご相談下さい。
※内覧をご希望の際には、どうぞ物件のエントランス前にてお待ち合わせくださいませ。ご内覧後は、同じ場所でお別れとさせていただきます。お客様のご都合に合わせたスムーズなご案内を心がけておりますので、ご質問等がございましたら何なりとお申し付けください。 物件概要
| 物件名 |
| 築年月 |
|
|---|---|---|---|
| 所在地 | |||
| 交通 | |||
| 総戸数 |
| 総階数 |
|
| 構造 |
| ||
地図
物件までの道のりは、「拡大地図を表示」をクリックしてナビ機能をご利用ください。
部屋設備













建物設備

TVモニターホン

オートロック

宅配ボックス

敷地内ゴミ置場

管理人

駐輪場
BPRレジデンス祐天寺の現在募集中のお部屋
- No rooms found for this property.


















