
| 賃料 | 予想金額:357,000〜377,000円程度 | 管理費 | 予想金額:0〜2,000円程度 |
| 礼金/敷金 | 非公開(アーカイブ) | 平米数 | 60.44㎡ |
| 初期費用概算(参考) | 目安:625,000〜725,000 円 | みなし賃料(月額・参考) | 363,417〜383,417 円 |
| 備考 | 本ページは過去募集のアーカイブです。表示の金額は周辺相場・過去募集を踏まえた参考レンジであり、実際の契約金額・条件ではありません。 | ||
※上記みなし賃料(月額)は仲介手数料割引・無料&キャッシュバックを加味した高級賃貸バイブル限定の金額です。一般的なみなし賃料とは異なります。
【建物ページ】アルヴェール松濤の詳細・最新空室はこちら▶▶選ばれる理由
仲介手数料無料・キャンペーン情報(毎月15名様限定)
〇仲介手数料割引キャンペーン
アルヴェール松濤 306の口コミ・レビュー
アルヴェール松濤 306。この名前を口にする瞬間、まるで静かな風が両手を広げてあなたを迎え入れるようです。東京都目黒区駒場3-3-22に佇むこの物件は、生活の舞台を華やかに彩り、あなたの心に安らぎを与える特別な空間です。306号室の扉を開けると、目の前に広がるのは、まるで映画のワンシーンから飛び出してきたかのような美しいLDK15.27帖。ナチュラルな光が溢れ、優しい木の温もりが心地よく響きます。…アルヴェール松濤 306。この名前を口にする瞬間、まるで静かな風が両手を広げてあなたを迎え入れるようです。東京都目黒区駒場3-3-22に佇むこの物件は、生活の舞台を華やかに彩り、あなたの心に安らぎを与える特別な空間です。306号室の扉を開けると、目の前に広がるのは、まるで映画のワンシーンから飛び出してきたかのような美しいLDK15.27帖。ナチュラルな光が溢れ、優しい木の温もりが心地よく響きます。
この空間は、ただの居住地ではなく、あなたの夢と日常が交差する場所。ソファに腰を下ろせば、窓の外から聴こえる小鳥のさえずりが、あなたを包み込み、思わず微笑みを誘います。香ばしいコーヒーの香りが、朝の静けさの中で優しく漂い、ありふれた時間を特別な瞬間に変えてくれることでしょう。心を癒すアートな時間が、ここには待っています。
さらに、洋室6.75帖は、心の贅沢を叶えてくれる隠れ家。日々の喧騒から解き放たれ、あなた自身と向き合うための空間です。木製の家具が温もりをもたらし、柔らかな絨毯に足を踏み入れると、まるで優しい母の抱擁のように身を包んでくれます。その感触は、快適さと共に心安らぐ瞬間をもたらしてくれます。
アルヴェール松濤 306は、単なる住処ではなく、人生の舞台に色を加えるパートナーです。宅配ボックスやオートロックなどの設備は、日常生活をスムーズにし、あなたにゆとりを与えてくれます。エレベーターに乗り、心躍る冒険へと出かける準備が整ったその瞬間、あなたの物語が新たに始まります。
この物件は、文化に満ちた恵まれた環境に囲まれています。最寄りの神泉駅からはわずか5分、都会の喧騒を忘れ、周囲の美術館やカフェで心を豊かにする時間を楽しむことができるのです。耳に心地よい音楽が流れるカフェで、友人と笑顔を交わすひととき、目黒川沿いを散策しながら、季節の移ろいを感じることができる毎日は、まるで宝石のように輝くことでしょう。
このアルヴェール松濤 306で、あなたの日常がどれほど特別なものになるかを想像してみてください。自分だけの物語が息づくこの空間で、心の赴くままに、あなたらしい生活を描いていくことができるのです。さあ、この素晴らしい舞台で、あなたの新しい生活の第一幕を始めてみませんか。人生の贅沢は、あなたの手の中にあるのです。
この空間は、ただの居住地ではなく、あなたの夢と日常が交差する場所。ソファに腰を下ろせば、窓の外から聴こえる小鳥のさえずりが、あなたを包み込み、思わず微笑みを誘います。香ばしいコーヒーの香りが、朝の静けさの中で優しく漂い、ありふれた時間を特別な瞬間に変えてくれることでしょう。心を癒すアートな時間が、ここには待っています。
さらに、洋室6.75帖は、心の贅沢を叶えてくれる隠れ家。日々の喧騒から解き放たれ、あなた自身と向き合うための空間です。木製の家具が温もりをもたらし、柔らかな絨毯に足を踏み入れると、まるで優しい母の抱擁のように身を包んでくれます。その感触は、快適さと共に心安らぐ瞬間をもたらしてくれます。
アルヴェール松濤 306は、単なる住処ではなく、人生の舞台に色を加えるパートナーです。宅配ボックスやオートロックなどの設備は、日常生活をスムーズにし、あなたにゆとりを与えてくれます。エレベーターに乗り、心躍る冒険へと出かける準備が整ったその瞬間、あなたの物語が新たに始まります。
この物件は、文化に満ちた恵まれた環境に囲まれています。最寄りの神泉駅からはわずか5分、都会の喧騒を忘れ、周囲の美術館やカフェで心を豊かにする時間を楽しむことができるのです。耳に心地よい音楽が流れるカフェで、友人と笑顔を交わすひととき、目黒川沿いを散策しながら、季節の移ろいを感じることができる毎日は、まるで宝石のように輝くことでしょう。
このアルヴェール松濤 306で、あなたの日常がどれほど特別なものになるかを想像してみてください。自分だけの物語が息づくこの空間で、心の赴くままに、あなたらしい生活を描いていくことができるのです。さあ、この素晴らしい舞台で、あなたの新しい生活の第一幕を始めてみませんか。人生の贅沢は、あなたの手の中にあるのです。
バイブルスコア
バイブルスコア: 60
条件のいい物件です、引っ越しが2か月以内の場合は仮申し込みを検討すべき物件です。
このお部屋は、現在ご入居中のため空室情報はございません。ただし、将来的に募集が開始される際、バイブルスコアにおいて非常に高い評価が期待されます。特にご興味をお持ちの方は、今のうちにブックマークやお気に入りに登録していただくと、募集開始のお知らせをすぐに受け取ることができます。是非ともご検討くださいませ。
※バイブルスコア詳細はこちら
バイブルスコアとは独自のAI機械学習技術を利用した物件評価システムで、物件のおすすめ度を示します。最高得点は100点で、スコアが高いほど、よりおすすめの物件と評価されています。
写真
現在写真が登録されていません契約条件
| 賃料 | 予想金額:357,000〜377,000円程度 | 管理費 | 予想金額:0〜2,000円程度 |
| 礼金 | 非公開(アーカイブ) | 敷金 | 非公開(アーカイブ) |
| フリーレント | なし | 平米数 | 60.44㎡ |
| 間取り | 1LDK | 大型収納 | なし |
| 契約期間 | 2年間 | 方角 | 北西 |
| 更新料 | 契約期間を参照 | 契約形態 | 定期借家契約 2年間 |
| 取引態様 | 媒介 | 内見状況 | 入居中 |
| 入居時期 | 入居中 | SOHO・事務所 | 不可 |
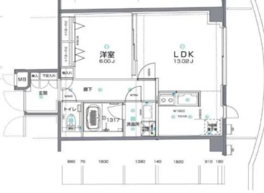
| ペット | 可 | 間取り内訳 | LDK15.27帖 洋室6.75帖 |
| キャンペーン情報・備考 | 本情報は賃料改定交渉の資料作成、収益物件の利回り試算、周辺エリアや最寄り駅の坪単価分析、次回募集開始時期の予測などにご活用いただけます。 | ||
※「どの不動産に頼めばいいのか分からない」「信頼できる営業マンの話を聞きたい」「一番親切な会社と契約したい」とお悩みの方におすすめなのが「高級賃貸バイブル」です。
高級賃貸バイブルは業界10年以上の熟練スタッフ群がお客様ファーストで対応します。
下記ボタンから、まずは無料でご相談下さい。
※内覧をご希望の際には、どうぞ物件のエントランス前にてお待ち合わせくださいませ。ご内覧後は、同じ場所でお別れとさせていただきます。お客様のご都合に合わせたスムーズなご案内を心がけておりますので、ご質問等がございましたら何なりとお申し付けください。 物件概要
地図
物件までの道のりは、「拡大地図を表示」をクリックしてナビ機能をご利用ください。
部屋設備










建物設備

TVモニターホン

エレベーター

オートロック

宅配ボックス

敷地内ゴミ置場

駐車場機械式

駐輪場
アルヴェール松濤の現在募集中のお部屋
- No rooms found for this property.
