
| 賃料 | 予想金額:282,000〜302,000円程度 | 管理費 | 予想金額:0〜2,000円程度 |
| 礼金/敷金 | 非公開(アーカイブ) | 平米数 | 47.96㎡ |
| 初期費用概算(参考) | 目安:512,500〜612,500 円 | みなし賃料(月額・参考) | 287,635〜307,635 円 |
| 備考 | 本ページは過去募集のアーカイブです。表示の金額は周辺相場・過去募集を踏まえた参考レンジであり、実際の契約金額・条件ではありません。 | ||
※上記みなし賃料(月額)は仲介手数料割引・無料&キャッシュバックを加味した高級賃貸バイブル限定の金額です。一般的なみなし賃料とは異なります。
【建物ページ】アルヴェール松濤の詳細・最新空室はこちら▶▶選ばれる理由
仲介手数料無料・キャンペーン情報(毎月15名様限定)
〇仲介手数料割引キャンペーン
アルヴェール松濤 305の口コミ・レビュー
アルヴェール松濤 305。この名前を耳にした瞬間、都会の喧騒から一歩離れた、静けさと贅沢が溢れる空間が心に浮かぶことでしょう。東京の目黒区駒場、ここは歴史と文化が息づく場所。アルヴェール松濤 305は、まるで一つの芸術作品のように、あなたの生活に新たなストーリーを織りなす舞台なのです。
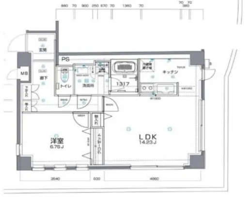
305号室の扉を開けると、優雅さと洗練が同居する空間が広がります。LDKは13.02帖、洋室は6帖と、さまざま…アルヴェール松濤 305。この名前を耳にした瞬間、都会の喧騒から一歩離れた、静けさと贅沢が溢れる空間が心に浮かぶことでしょう。東京の目黒区駒場、ここは歴史と文化が息づく場所。アルヴェール松濤 305は、まるで一つの芸術作品のように、あなたの生活に新たなストーリーを織りなす舞台なのです。
305号室の扉を開けると、優雅さと洗練が同居する空間が広がります。LDKは13.02帖、洋室は6帖と、さまざまなシーンを演出できるゆとりのある間取り。大きな窓から差し込む柔らかな光が、室内を優しく包み込み、時には爽やかな風があなたの肌を撫でます。その瞬間、まるで自然の一部となったような心地よさが広がり、日常の疲れが洗い流される感覚を覚えます。
アルヴェール松濤 305には、まるで貴族の館のような風格があります。オートロックで守られた階段を上がると、プライベートがしっかりと確保された空間が待っています。エレベーターも完備されており、荷物が多い日でもストレスを感じることはありません。宅配ボックスがあることで、買い物帰りのあなたも、いつでも新鮮な食材を手に入れることができます。そして、敷地内にはゴミ置場があり、環境への配慮も忘れません。
この物件に住まうことは、まるで映画の主人公になったかのような心の高揚感をもたらします。朝焼けの中で目を覚まし、コーヒーの香りが漂うキッチンで用意した朝食を楽しむ。窓を開けると、近隣の公園から聞こえてくる子供たちの笑い声に、思わず微笑んでしまう。夕方には、優雅な洋室でお気に入りの本を手に取り、ゆったりとした時間を過ごす。アルヴェール松濤 305は、そんな至福の瞬間を与えてくれる特別な存在なのです。
周辺には神泉駅があり、徒歩5分の距離でアクセスも良好。高級なカフェやレストラン、そしてアートギャラリーも点在し、文化の香りが漂っています。目黒区は、歴史ある街並みと現代のアートが融和する場所。アルヴェール松濤 305に住むことで、贅沢な日常と文化的な刺激を同時に享受できるのです。
アルヴェール松濤 305での生活は、詩的かつ感情的な体験を提供してくれるでしょう。五感を刺激し、心を豊かにするこの空間で、あなた自身の物語を紡いでみませんか?ここには、日常の中にある非日常、そして小さな奇跡が待っているのです。あなたという主人公が、この物件の魅力を引き立てつつ、素敵な日々を描き出すことを心より願っております。
305号室の扉を開けると、優雅さと洗練が同居する空間が広がります。LDKは13.02帖、洋室は6帖と、さまざま…アルヴェール松濤 305。この名前を耳にした瞬間、都会の喧騒から一歩離れた、静けさと贅沢が溢れる空間が心に浮かぶことでしょう。東京の目黒区駒場、ここは歴史と文化が息づく場所。アルヴェール松濤 305は、まるで一つの芸術作品のように、あなたの生活に新たなストーリーを織りなす舞台なのです。
305号室の扉を開けると、優雅さと洗練が同居する空間が広がります。LDKは13.02帖、洋室は6帖と、さまざまなシーンを演出できるゆとりのある間取り。大きな窓から差し込む柔らかな光が、室内を優しく包み込み、時には爽やかな風があなたの肌を撫でます。その瞬間、まるで自然の一部となったような心地よさが広がり、日常の疲れが洗い流される感覚を覚えます。
アルヴェール松濤 305には、まるで貴族の館のような風格があります。オートロックで守られた階段を上がると、プライベートがしっかりと確保された空間が待っています。エレベーターも完備されており、荷物が多い日でもストレスを感じることはありません。宅配ボックスがあることで、買い物帰りのあなたも、いつでも新鮮な食材を手に入れることができます。そして、敷地内にはゴミ置場があり、環境への配慮も忘れません。
この物件に住まうことは、まるで映画の主人公になったかのような心の高揚感をもたらします。朝焼けの中で目を覚まし、コーヒーの香りが漂うキッチンで用意した朝食を楽しむ。窓を開けると、近隣の公園から聞こえてくる子供たちの笑い声に、思わず微笑んでしまう。夕方には、優雅な洋室でお気に入りの本を手に取り、ゆったりとした時間を過ごす。アルヴェール松濤 305は、そんな至福の瞬間を与えてくれる特別な存在なのです。
周辺には神泉駅があり、徒歩5分の距離でアクセスも良好。高級なカフェやレストラン、そしてアートギャラリーも点在し、文化の香りが漂っています。目黒区は、歴史ある街並みと現代のアートが融和する場所。アルヴェール松濤 305に住むことで、贅沢な日常と文化的な刺激を同時に享受できるのです。
アルヴェール松濤 305での生活は、詩的かつ感情的な体験を提供してくれるでしょう。五感を刺激し、心を豊かにするこの空間で、あなた自身の物語を紡いでみませんか?ここには、日常の中にある非日常、そして小さな奇跡が待っているのです。あなたという主人公が、この物件の魅力を引き立てつつ、素敵な日々を描き出すことを心より願っております。
バイブルスコア
バイブルスコア: 50.6
条件のいい物件です、引っ越しが2か月以内の場合は仮申し込みを検討すべき物件です。
このお部屋は、現在ご入居中のため空室情報はございません。ただし、将来的に募集が開始される際、バイブルスコアにおいて非常に高い評価が期待されます。特にご興味をお持ちの方は、今のうちにブックマークやお気に入りに登録していただくと、募集開始のお知らせをすぐに受け取ることができます。是非ともご検討くださいませ。
※バイブルスコア詳細はこちら
バイブルスコアとは独自のAI機械学習技術を利用した物件評価システムで、物件のおすすめ度を示します。最高得点は100点で、スコアが高いほど、よりおすすめの物件と評価されています。
写真
現在写真が登録されていません契約条件
| 賃料 | 予想金額:282,000〜302,000円程度 | 管理費 | 予想金額:0〜2,000円程度 |
| 礼金 | 非公開(アーカイブ) | 敷金 | 非公開(アーカイブ) |
| フリーレント | なし | 平米数 | 47.96㎡ |
| 間取り | 1LDK | 大型収納 | なし |
| 契約期間 | 2年間 | 方角 | 北西 |
| 更新料 | 契約期間を参照 | 契約形態 | 定期借家契約 2年間 |
| 取引態様 | 媒介 | 内見状況 | 入居中 |
| 入居時期 | 入居中 | SOHO・事務所 | 不可 |
| ペット | 可 | 間取り内訳 | LDK13.02帖 洋室6帖 |
| キャンペーン情報・備考 | 本情報は賃料改定交渉の資料作成、収益物件の利回り試算、周辺エリアや最寄り駅の坪単価分析、次回募集開始時期の予測などにご活用いただけます。 | ||
※「どの不動産に頼めばいいのか分からない」「信頼できる営業マンの話を聞きたい」「一番親切な会社と契約したい」とお悩みの方におすすめなのが「高級賃貸バイブル」です。
高級賃貸バイブルは業界10年以上の熟練スタッフ群がお客様ファーストで対応します。
下記ボタンから、まずは無料でご相談下さい。
※内覧をご希望の際には、どうぞ物件のエントランス前にてお待ち合わせくださいませ。ご内覧後は、同じ場所でお別れとさせていただきます。お客様のご都合に合わせたスムーズなご案内を心がけておりますので、ご質問等がございましたら何なりとお申し付けください。 物件概要
地図
物件までの道のりは、「拡大地図を表示」をクリックしてナビ機能をご利用ください。
部屋設備










建物設備

TVモニターホン

エレベーター

オートロック

宅配ボックス

敷地内ゴミ置場

駐車場機械式

駐輪場
アルヴェール松濤の現在募集中のお部屋
- No rooms found for this property.
