
| 賃料 | 予想金額:244,000〜264,000円程度 | 管理費 | 予想金額:0〜2,000円程度 |
| 礼金/敷金 | 非公開(アーカイブ) | 平米数 | 41.7㎡ |
| 初期費用概算(参考) | 目安:0〜69,500 円 | みなし賃料(月額・参考) | 244,406〜264,406 円 |
| 備考 | 本ページは過去募集のアーカイブです。表示の金額は周辺相場・過去募集を踏まえた参考レンジであり、実際の契約金額・条件ではありません。 | ||
※上記みなし賃料(月額)は仲介手数料割引・無料&キャッシュバックを加味した高級賃貸バイブル限定の金額です。一般的なみなし賃料とは異なります。
【建物ページ】アルヴェール松濤の詳細・最新空室はこちら▶▶選ばれる理由
仲介手数料無料・キャンペーン情報(毎月15名様限定)
〇引っ越しお祝い金144000円プレゼント(キャッシュバック)
〇フリーレント1か月キャンペーン
〇仲介手数料無料キャンペーン
アルヴェール松濤 302の口コミ・レビュー
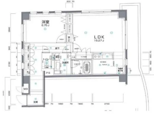
この特別な一室は、1LDKという間取りで、LDKは9.34帖、洋室は6.37帖。広々とした空間は、あなたの毎日を彩るために設計されて…アルヴェール松濤 302。この美しい名前を持つ物件が、あなたの新たな生活の舞台にふさわしいことを、私が物語ることを許してください。303号室に足を踏み入れた瞬間、あなたはまるで映画の主人公になったかのように、人生の新しいチャプターが始まる予感を感じることでしょう。
この特別な一室は、1LDKという間取りで、LDKは9.34帖、洋室は6.37帖。広々とした空間は、あなたの毎日を彩るために設計されています。朝日が光を受けて踊るリビングで、まだ温かいコーヒーを一口、点滴のように味わうと、まるでほのかな香りが心をゆったりと包み込むのを感じます。天空からの光が柔らかく差し込むこの場所で、あなたの一日は静かに始まります。
アルヴェール松濤 302の窓からは、歴史と文化が息づく目黒区の美しい風景が広がります。静寂の中に響くのは、まるで音楽のように街の生活音。そして、外の風が運んでくる桜の香りや、四季折々の花々の芳香が、あなたの感覚をくすぐります。この場所は単なる居住空間ではなく、人生を愉しむための舞台装置なのです。
契約形態は定期借家契約。このアルヴェール松濤 302の中には、生活を支える充実した設備がそろっています。TVモニターホンやオートロック、宅配ボックスなど、安心と便利さが調和した環境が、あなたを包み込みます。エレベーターでの移動はまるで空中散歩のように軽やかで、毎日に小さな喜びをもたらしてくれることでしょう。
駐車場や駐輪場も完備されており、あなたのライフスタイルに合わせた自由な移動をサポートします。アルヴェール松濤 302は、ただの居住空間にとどまらず、あなたの物語を紡ぐための舞台なのです。近くには京王井の頭線 神泉駅があり、ひとたびその扉を開けば、都会の喧騒から少し離れた隠れ家のような感覚で、静かな時間を享受できます。
そして、いつかふと振り返った時、このアルヴェール松濤 302が、あなたの人生にどれほどの色彩を与えたのか、そのことを実感する日が来ることでしょう。毎日の暮らしが、まるで一枚の美しい絵画のように感じられるような、そんな特別な場所。あなたも新たな物語を、この空間で始めてみませんか?この住まいが、あなたにとっての「特別」を創り出す舞台として、あなたを優しく迎え入れることを、心から願っています。
バイブルスコア
バイブルスコア: 54.1
条件のいい物件です、引っ越しが2か月以内の場合は仮申し込みを検討すべき物件です。
このお部屋は、現在ご入居中のため空室情報はございません。ただし、将来的に募集が開始される際、バイブルスコアにおいて非常に高い評価が期待されます。特にご興味をお持ちの方は、今のうちにブックマークやお気に入りに登録していただくと、募集開始のお知らせをすぐに受け取ることができます。是非ともご検討くださいませ。
※バイブルスコア詳細はこちら
バイブルスコアとは独自のAI機械学習技術を利用した物件評価システムで、物件のおすすめ度を示します。最高得点は100点で、スコアが高いほど、よりおすすめの物件と評価されています。
写真
現在写真が登録されていません契約条件
| 賃料 | 予想金額:244,000〜264,000円程度 | 管理費 | 予想金額:0〜2,000円程度 |
| 礼金 | 非公開(アーカイブ) | 敷金 | 非公開(アーカイブ) |
| フリーレント | 1ヶ月 | 平米数 | 41.7㎡ |
| 間取り | 1LDK | 大型収納 | なし |
| 契約期間 | 相談 | 方角 | |
| 更新料 | 契約期間を参照 | 契約形態 | 定期借家契約 |
| 取引態様 | 媒介 | 内見状況 | 入居中 |
| 入居時期 | 入居中 | SOHO・事務所 | 不可 |
| ペット | 相談 | 間取り内訳 | LDK9.34帖 洋室6.37帖 |
| キャンペーン情報・備考 | 本情報は賃料改定交渉の資料作成、収益物件の利回り試算、周辺エリアや最寄り駅の坪単価分析、次回募集開始時期の予測などにご活用いただけます。 | ||
※「どの不動産に頼めばいいのか分からない」「信頼できる営業マンの話を聞きたい」「一番親切な会社と契約したい」とお悩みの方におすすめなのが「高級賃貸バイブル」です。
高級賃貸バイブルは業界10年以上の熟練スタッフ群がお客様ファーストで対応します。
下記ボタンから、まずは無料でご相談下さい。
※内覧をご希望の際には、どうぞ物件のエントランス前にてお待ち合わせくださいませ。ご内覧後は、同じ場所でお別れとさせていただきます。お客様のご都合に合わせたスムーズなご案内を心がけておりますので、ご質問等がございましたら何なりとお申し付けください。 物件概要
地図
物件までの道のりは、「拡大地図を表示」をクリックしてナビ機能をご利用ください。
部屋設備











建物設備

TVモニターホン

エレベーター

オートロック

宅配ボックス

敷地内ゴミ置場

駐車場機械式

駐輪場
アルヴェール松濤の現在募集中のお部屋
- No rooms found for this property.
