
| 賃料 | 予想金額:275,000〜295,000円程度 | 管理費 | 予想金額:13,000〜17,000円程度 |
| 礼金/敷金 | 非公開(アーカイブ) | 平米数 | 55.18㎡ |
| 初期費用概算(参考) | 目安:1,536,030〜1,636,030 円 | みなし賃料(月額・参考) | 317,105〜337,105 円 |
| 備考 | 本ページは過去募集のアーカイブです。表示の金額は周辺相場・過去募集を踏まえた参考レンジであり、実際の契約金額・条件ではありません。 | ||
※上記みなし賃料(月額)は仲介手数料割引・無料&キャッシュバックを加味した高級賃貸バイブル限定の金額です。一般的なみなし賃料とは異なります。
【建物ページ】The MEGUROの詳細・最新空室はこちら▶▶選ばれる理由
仲介手数料無料・キャンペーン情報(毎月15名様限定)
〇仲介手数料割引キャンペーン
The MEGURO 203の口コミ・レビュー
The MEGURO 203、ここはただの住まいではなく、人生の舞台が広がる、まるで映画のひとコマのような空間です。東京都目黒区目黒3-12-17という洗練されたロケーションで、あなたを待つこの物件は、静寂の中にひっそりと佇む美しい芸術品のようです。西を向いた窓からは、夕日が柔らかく差し込み、まるで金色のカーテンが空間を包み込むかのような光景が広がります。
専有面積55.18㎡、その空間にはLD…The MEGURO 203、ここはただの住まいではなく、人生の舞台が広がる、まるで映画のひとコマのような空間です。東京都目黒区目黒3-12-17という洗練されたロケーションで、あなたを待つこの物件は、静寂の中にひっそりと佇む美しい芸術品のようです。西を向いた窓からは、夕日が柔らかく差し込み、まるで金色のカーテンが空間を包み込むかのような光景が広がります。
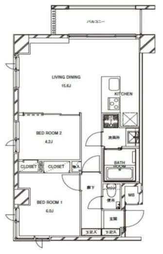
専有面積55.18㎡、その空間にはLDK15.6帖、洋室6帖、そして洋室4.2帖が組み合わさり、あなたの生活を心豊かに彩る背景となります。リビングダイニングキッチンは、現代的なデザインと機能性が見事に調和しており、朝の光が差し込む時間には、温かいコーヒーの香りが漂い、心をリラックスさせます。また、家族や友人が集うその空間では、笑い声や会話が響き渡り、至福のひとときを演出します。
The MEGURO 203は、ただの物件ではなく、あなたをそっと迎え入れ、生活のストーリーを紡ぐ存在です。エレベーターを降りると、オートロックがあなたのプライバシーをしっかりと守り、安心感を与えてくれます。そこには、トランクルームや宅配ボックス、駐輪場など、暮らしを便利にするための配慮が施されており、まるで大切にされているかのように感じさせてくれます。
周囲には豊かな歴史と文化が息づいています。目黒川の桜並木は、春になると花びらが舞い踊り、四季折々の美しさを感じさせてくれます。地元の芸術家たちが繰り広げる展覧会や、カフェでのひとときが、あなたの生活に色を添えることでしょう。目黒の魅力はまさに、あなたの感性を刺激し、新たなインスピレーションを与えてくれるのです。
この場所に住むということは、美しい生活を手に入れることを意味します。夕暮れ時、バルコニーに立ち、目黒の街並みを眺めると、心が安らぎ、日常の喧騒から解放される瞬間が訪れます。そんな特別なひとときを、The MEGURO 203があなたに提供してくれるのです。
思わず足を運びたくなるこの場所、The MEGURO 203は、まるで一篇の詩のように心に響くでしょう。あなたのライフスタイルを豊かに彩る、高級感あふれるこの物件で、ぜひ新しい物語を始めてください。美しさと快適さが調和した空間が、きっとあなたを、そしてあなたの家族を虜にするはずです。
専有面積55.18㎡、その空間にはLD…The MEGURO 203、ここはただの住まいではなく、人生の舞台が広がる、まるで映画のひとコマのような空間です。東京都目黒区目黒3-12-17という洗練されたロケーションで、あなたを待つこの物件は、静寂の中にひっそりと佇む美しい芸術品のようです。西を向いた窓からは、夕日が柔らかく差し込み、まるで金色のカーテンが空間を包み込むかのような光景が広がります。
専有面積55.18㎡、その空間にはLDK15.6帖、洋室6帖、そして洋室4.2帖が組み合わさり、あなたの生活を心豊かに彩る背景となります。リビングダイニングキッチンは、現代的なデザインと機能性が見事に調和しており、朝の光が差し込む時間には、温かいコーヒーの香りが漂い、心をリラックスさせます。また、家族や友人が集うその空間では、笑い声や会話が響き渡り、至福のひとときを演出します。
The MEGURO 203は、ただの物件ではなく、あなたをそっと迎え入れ、生活のストーリーを紡ぐ存在です。エレベーターを降りると、オートロックがあなたのプライバシーをしっかりと守り、安心感を与えてくれます。そこには、トランクルームや宅配ボックス、駐輪場など、暮らしを便利にするための配慮が施されており、まるで大切にされているかのように感じさせてくれます。
周囲には豊かな歴史と文化が息づいています。目黒川の桜並木は、春になると花びらが舞い踊り、四季折々の美しさを感じさせてくれます。地元の芸術家たちが繰り広げる展覧会や、カフェでのひとときが、あなたの生活に色を添えることでしょう。目黒の魅力はまさに、あなたの感性を刺激し、新たなインスピレーションを与えてくれるのです。
この場所に住むということは、美しい生活を手に入れることを意味します。夕暮れ時、バルコニーに立ち、目黒の街並みを眺めると、心が安らぎ、日常の喧騒から解放される瞬間が訪れます。そんな特別なひとときを、The MEGURO 203があなたに提供してくれるのです。
思わず足を運びたくなるこの場所、The MEGURO 203は、まるで一篇の詩のように心に響くでしょう。あなたのライフスタイルを豊かに彩る、高級感あふれるこの物件で、ぜひ新しい物語を始めてください。美しさと快適さが調和した空間が、きっとあなたを、そしてあなたの家族を虜にするはずです。
写真
現在写真が登録されていません契約条件
| 賃料 | 予想金額:275,000〜295,000円程度 | 管理費 | 予想金額:13,000〜17,000円程度 |
| 礼金 | 非公開(アーカイブ) | 敷金 | 非公開(アーカイブ) |
| フリーレント | なし | 平米数 | 55.18㎡ |
| 間取り | 2LDK | 大型収納 | なし |
| 契約期間 | 相談 | 方角 | 西 |
| 更新料 | 契約期間を参照 | 契約形態 | 定期借家契約 |
| 取引態様 | 媒介 | 内見状況 | 入居中 |
| 入居時期 | 入居中 | SOHO・事務所 | 不可 |
| ペット | 不可 | 間取り内訳 | LDK15.6帖 洋室6帖 洋室4.2帖 |
| キャンペーン情報・備考 | 本情報は賃料改定交渉の資料作成、収益物件の利回り試算、周辺エリアや最寄り駅の坪単価分析、次回募集開始時期の予測などにご活用いただけます。 | ||
※「どの不動産に頼めばいいのか分からない」「信頼できる営業マンの話を聞きたい」「一番親切な会社と契約したい」とお悩みの方におすすめなのが「高級賃貸バイブル」です。
高級賃貸バイブルは業界10年以上の熟練スタッフ群がお客様ファーストで対応します。
下記ボタンから、まずは無料でご相談下さい。
※内覧をご希望の際には、どうぞ物件のエントランス前にてお待ち合わせくださいませ。ご内覧後は、同じ場所でお別れとさせていただきます。お客様のご都合に合わせたスムーズなご案内を心がけておりますので、ご質問等がございましたら何なりとお申し付けください。 物件概要
地図
物件までの道のりは、「拡大地図を表示」をクリックしてナビ機能をご利用ください。
部屋設備











建物設備

TVモニターホン

エレベーター

オートロック

バイク置場

宅配ボックス

敷地内ゴミ置場

駐輪場
The MEGUROの現在募集中のお部屋
- No rooms found for this property.
