
| 賃料 | 予想金額:255,000〜275,000円程度 | 管理費 | 予想金額:18,000〜22,000円程度 |
| 礼金/敷金 | 非公開(アーカイブ) | 平米数 | 62.68㎡ |
| 初期費用概算(参考) | 目安:74,200〜174,200 円 | みなし賃料(月額・参考) | 272,067〜292,067 円 |
| 備考 | 本ページは過去募集のアーカイブです。表示の金額は周辺相場・過去募集を踏まえた参考レンジであり、実際の契約金額・条件ではありません。 | ||
※上記みなし賃料(月額)は仲介手数料割引・無料&キャッシュバックを加味した高級賃貸バイブル限定の金額です。一般的なみなし賃料とは異なります。
【建物ページ】343レジデンス目黒2の詳細・最新空室はこちら▶▶選ばれる理由
仲介手数料無料・キャンペーン情報(毎月15名様限定)
〇引っ越しお祝い金323300円プレゼント(キャッシュバック)
〇仲介手数料無料キャンペーン
343レジデンス目黒2 701の口コミ・レビュー
343レジデンス目黒2 701は、優雅さと品格が交差する場所に位置する、まるで静かな湖のほとりに佇む一軒家のような特別な住まいです。この701号室は、北と西の両方から陽光が優しく注ぎ込み、日々の生活に豊かな光をもたらします。まるで朝の光がカーテン越しに柔らかく舞い込み、心地よい空気が漂う中で目覚める瞬間、誰もが特別な一日を予感することでしょう。
この物件は、62.68㎡という広さを持ちながらも、…343レジデンス目黒2 701は、優雅さと品格が交差する場所に位置する、まるで静かな湖のほとりに佇む一軒家のような特別な住まいです。この701号室は、北と西の両方から陽光が優しく注ぎ込み、日々の生活に豊かな光をもたらします。まるで朝の光がカーテン越しに柔らかく舞い込み、心地よい空気が漂う中で目覚める瞬間、誰もが特別な一日を予感することでしょう。
この物件は、62.68㎡という広さを持ちながらも、ただの数字ではありません。そこには、あなたの思い描く生活の場が広がっています。開放感あふれるLDK15.6帖は、まるで広がる青空のように、思考を自由にし、創造を促す空間です。友人との語らいや家族との夕食、それらすべてが映画のワンシーンとして息づくことでしょう。私の素敵なキッチンで、香ばしい料理が焼かれる音、そして、豊かな食卓に笑い声が溢れる瞬間を想像してみてください。
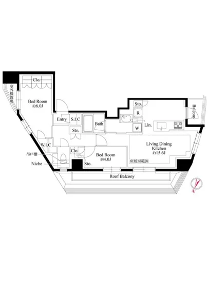
一方、洋室はそれぞれ異なる魅力を持っています。6帖の洋室は、あなたの夢のまどろみの場所となり、静かで穏やかな時間が流れます。スタイリッシュな家具を配して、心と体をリセットできる場所に。4帖の洋室は、書斎や趣味の部屋として、あなたの情熱を形にするための舞台です。サンキャッチャーが窓辺で柔らかな光を反射し、毎日のインスピレーションを与えてくれることでしょう。
343レジデンス目黒2 701の魅力は、設備にも現れています。オートロックやエレベーターなど、現代的な利便性が完璧なバランスで施されており、安全で快適な生活をサポートします。宅配ボックスがあるため、あなたのライフスタイルに合わせた荷物の受け取りが可能です。さらに、バイク置場や駐輪場が整っているため、都心ならではのスピーディな移動も実現します。
そして、この地域、目黒には歴史と文化が息づいています。洗足駅から徒歩6分の位置にあり、周囲には洗足池や緑豊かな公園が点在し、散策すると懐かしさを覚える古き良き日本の面影を肌で感じることができます。静かな住宅街の中にある343レジデンス目黒2 701からは、都会の喧騒を忘れ、時折耳を澄ませると、落ち着いた時間が流れる音に心癒されることでしょう。
この物件は、ただの住まいではなく、あなた自身の物語を紡ぐための舞台装置です。343レジデンス目黒2 701に住むことで、日々の生活が映画の美しいワンシーンとなり、あなたの人生の新たな章が始まるのです。ここでの生活は、五感を刺激し、色彩豊かな毎日をもたらします。あなたの新たな冒険が待っています。どうぞ、この特別な場所で、あなた自身の物語を始めてみてください。
この物件は、62.68㎡という広さを持ちながらも、…343レジデンス目黒2 701は、優雅さと品格が交差する場所に位置する、まるで静かな湖のほとりに佇む一軒家のような特別な住まいです。この701号室は、北と西の両方から陽光が優しく注ぎ込み、日々の生活に豊かな光をもたらします。まるで朝の光がカーテン越しに柔らかく舞い込み、心地よい空気が漂う中で目覚める瞬間、誰もが特別な一日を予感することでしょう。
この物件は、62.68㎡という広さを持ちながらも、ただの数字ではありません。そこには、あなたの思い描く生活の場が広がっています。開放感あふれるLDK15.6帖は、まるで広がる青空のように、思考を自由にし、創造を促す空間です。友人との語らいや家族との夕食、それらすべてが映画のワンシーンとして息づくことでしょう。私の素敵なキッチンで、香ばしい料理が焼かれる音、そして、豊かな食卓に笑い声が溢れる瞬間を想像してみてください。
一方、洋室はそれぞれ異なる魅力を持っています。6帖の洋室は、あなたの夢のまどろみの場所となり、静かで穏やかな時間が流れます。スタイリッシュな家具を配して、心と体をリセットできる場所に。4帖の洋室は、書斎や趣味の部屋として、あなたの情熱を形にするための舞台です。サンキャッチャーが窓辺で柔らかな光を反射し、毎日のインスピレーションを与えてくれることでしょう。
343レジデンス目黒2 701の魅力は、設備にも現れています。オートロックやエレベーターなど、現代的な利便性が完璧なバランスで施されており、安全で快適な生活をサポートします。宅配ボックスがあるため、あなたのライフスタイルに合わせた荷物の受け取りが可能です。さらに、バイク置場や駐輪場が整っているため、都心ならではのスピーディな移動も実現します。
そして、この地域、目黒には歴史と文化が息づいています。洗足駅から徒歩6分の位置にあり、周囲には洗足池や緑豊かな公園が点在し、散策すると懐かしさを覚える古き良き日本の面影を肌で感じることができます。静かな住宅街の中にある343レジデンス目黒2 701からは、都会の喧騒を忘れ、時折耳を澄ませると、落ち着いた時間が流れる音に心癒されることでしょう。
この物件は、ただの住まいではなく、あなた自身の物語を紡ぐための舞台装置です。343レジデンス目黒2 701に住むことで、日々の生活が映画の美しいワンシーンとなり、あなたの人生の新たな章が始まるのです。ここでの生活は、五感を刺激し、色彩豊かな毎日をもたらします。あなたの新たな冒険が待っています。どうぞ、この特別な場所で、あなた自身の物語を始めてみてください。
バイブルスコア
バイブルスコア: 31.5
平均的なスコアです。
※バイブルスコア詳細はこちら
バイブルスコアとは独自のAI機械学習技術を利用した物件評価システムで、物件のおすすめ度を示します。最高得点は100点で、スコアが高いほど、よりおすすめの物件と評価されています。
写真
現在写真が登録されていません契約条件
| 賃料 | 予想金額:255,000〜275,000円程度 | 管理費 | 予想金額:18,000〜22,000円程度 |
| 礼金 | 非公開(アーカイブ) | 敷金 | 非公開(アーカイブ) |
| フリーレント | なし | 平米数 | 62.68㎡ |
| 間取り | 2LDK | 大型収納 | WIC+SIC |
| 契約期間 | 2年 | 方角 | 北 / 西 |
| 更新料 | 1ヶ月 | 契約形態 | 普通賃貸借契約 |
| 取引態様 | 媒介 | 内見状況 | 入居中 |
| 入居時期 | 入居中 | SOHO・事務所 | 不可 |
| ペット | ペット可 | 間取り内訳 | 洋:6 洋:4 LDK:15.6 |
| キャンペーン情報・備考 | 本情報は賃料改定交渉の資料作成、収益物件の利回り試算、周辺エリアや最寄り駅の坪単価分析、次回募集開始時期の予測などにご活用いただけます。 | ||
※「どの不動産に頼めばいいのか分からない」「信頼できる営業マンの話を聞きたい」「一番親切な会社と契約したい」とお悩みの方におすすめなのが「高級賃貸バイブル」です。
高級賃貸バイブルは業界10年以上の熟練スタッフ群がお客様ファーストで対応します。
下記ボタンから、まずは無料でご相談下さい。
※内覧をご希望の際には、どうぞ物件のエントランス前にてお待ち合わせくださいませ。ご内覧後は、同じ場所でお別れとさせていただきます。お客様のご都合に合わせたスムーズなご案内を心がけておりますので、ご質問等がございましたら何なりとお申し付けください。 物件概要
| 物件名 |
| 築年月 |
|
|---|---|---|---|
| 所在地 | |||
| 交通 | |||
| 総戸数 |
| 総階数 |
|
| 構造 |
| ||
地図
物件までの道のりは、「拡大地図を表示」をクリックしてナビ機能をご利用ください。
部屋設備




















建物設備

TVモニターホン

エレベーター

オートロック

バイク置場

宅配ボックス

敷地内ゴミ置場

管理人

駐車場平置き

駐車場機械式

駐輪場
343レジデンス目黒2の現在募集中のお部屋
- 343レジデンス目黒Ⅱ(オープンレジデンシア) 601 - 間取り: 3LDK+WIC+SIC - 賃料: 37万円
- 343レジデンス目黒Ⅱ(オープンレジデンシア) 401 - 間取り: 3LDK+WIC+SIC - 賃料: 33.8万円
- 343レジデンス目黒Ⅱ(オープンレジデンシア) 303 - 間取り: 2LDK - 賃料: 25.5万円
