
| 賃料 | 予想金額:232,000〜252,000円程度 | 管理費 | 予想金額:18,000〜22,000円程度 |
| 礼金/敷金 | 非公開(アーカイブ) | 平米数 | 50.44㎡ |
| 初期費用概算(参考) | 目安:331,100〜431,100 円 | みなし賃料(月額・参考) | 254,898〜274,898 円 |
| 備考 | 本ページは過去募集のアーカイブです。表示の金額は周辺相場・過去募集を踏まえた参考レンジであり、実際の契約金額・条件ではありません。 | ||
※上記みなし賃料(月額)は仲介手数料割引・無料&キャッシュバックを加味した高級賃貸バイブル限定の金額です。一般的なみなし賃料とは異なります。
【建物ページ】ルネサンスコート学芸大学の詳細・最新空室はこちら▶▶選ばれる理由
仲介手数料無料・キャンペーン情報(毎月15名様限定)
〇引っ越しお祝い金48400円プレゼント(キャッシュバック)
〇仲介手数料無料キャンペーン
ルネサンスコート学芸大学 303の口コミ・レビュー
ルネサンスコート学芸大学 303。あなたの新しい物語の舞台が、ここに広がります。南向きの窓からは、燦々と降り注ぐ陽射しが優しく室内を包み込み、まるで夏の日の午後に焚き火の前でコーヒーを飲むように、温かい時間を紡いでいきます。この特別な303号室では、LDK12.1帖の広々とした空間が、家族や友人との語らいの場、または自分だけの静かな読書の時間を提供してくれます。
さあ、あなたはこの美しい空間に足…ルネサンスコート学芸大学 303。あなたの新しい物語の舞台が、ここに広がります。南向きの窓からは、燦々と降り注ぐ陽射しが優しく室内を包み込み、まるで夏の日の午後に焚き火の前でコーヒーを飲むように、温かい時間を紡いでいきます。この特別な303号室では、LDK12.1帖の広々とした空間が、家族や友人との語らいの場、または自分だけの静かな読書の時間を提供してくれます。
さあ、あなたはこの美しい空間に足を踏み入れた瞬間、心の奥で何かが目覚めるのを感じるでしょう。廊下を歩くたびに、足元のフローリングが柔らかくあなたを迎え入れ、心地よい感触が優雅な生活を予感させます。洋室5.5帖、洋室3.2帖の空間は、未来の寝室や趣味の部屋として、自由に使えるキャンバスのようです。それぞれの部屋がどのようにあなたの個性を映し出すか、無限の可能性が広がっています。
この「ルネサンスコート学芸大学 303」は、一見シンプルな外観に思えるかもしれませんが、その中には多くの秘密が隠されています。TVモニターホンにオートロック、宅配ボックスといった現代の利便性を備え、忙しい日常をしっかりとサポートしてくれます。まるであなたの貴族的な生活を守る騎士のように、全ての設備があなたの安心を優先させてくれるのです。
その周囲には、歴史が息づく目黒区目黒本町の文化が広がり、まるで映画の一幕の中にいるかのよう。静かな街並みを散策しながら、過去と未来が交差する瞬間を感じられるでしょう。地元の美味しいカフェでふんわりとしたスイーツを味わい、贅沢なひとときを過ごすこともできます。
毎日の生活がまるでアートのように彩られている「ルネサンスコート学芸大学 303」は、ただの住まいではなく、人生の舞台なのです。あなたがこの場所に住むことで、周囲の景色すら理解し、愛することになるでしょう。目黒区は、あなたの心を豊かにし、あなた自身を映し出す鏡となるでしょう。
日暮れに響く静かな街の音、夜空に広がる星々、それらがいかに「ルネサンスコート学芸大学 303」の生活を特別なものにしてくれるのか。ここでの生活は、まるで自分だけの映画の主人公になったような、そんな感覚を与えてくれるでしょう。この特別な空間で、ぜひとも新しい物語を始めてみてください。それは、必ずや心に残る大切な思い出となるはずです。
さあ、あなたはこの美しい空間に足…ルネサンスコート学芸大学 303。あなたの新しい物語の舞台が、ここに広がります。南向きの窓からは、燦々と降り注ぐ陽射しが優しく室内を包み込み、まるで夏の日の午後に焚き火の前でコーヒーを飲むように、温かい時間を紡いでいきます。この特別な303号室では、LDK12.1帖の広々とした空間が、家族や友人との語らいの場、または自分だけの静かな読書の時間を提供してくれます。
さあ、あなたはこの美しい空間に足を踏み入れた瞬間、心の奥で何かが目覚めるのを感じるでしょう。廊下を歩くたびに、足元のフローリングが柔らかくあなたを迎え入れ、心地よい感触が優雅な生活を予感させます。洋室5.5帖、洋室3.2帖の空間は、未来の寝室や趣味の部屋として、自由に使えるキャンバスのようです。それぞれの部屋がどのようにあなたの個性を映し出すか、無限の可能性が広がっています。
この「ルネサンスコート学芸大学 303」は、一見シンプルな外観に思えるかもしれませんが、その中には多くの秘密が隠されています。TVモニターホンにオートロック、宅配ボックスといった現代の利便性を備え、忙しい日常をしっかりとサポートしてくれます。まるであなたの貴族的な生活を守る騎士のように、全ての設備があなたの安心を優先させてくれるのです。
その周囲には、歴史が息づく目黒区目黒本町の文化が広がり、まるで映画の一幕の中にいるかのよう。静かな街並みを散策しながら、過去と未来が交差する瞬間を感じられるでしょう。地元の美味しいカフェでふんわりとしたスイーツを味わい、贅沢なひとときを過ごすこともできます。
毎日の生活がまるでアートのように彩られている「ルネサンスコート学芸大学 303」は、ただの住まいではなく、人生の舞台なのです。あなたがこの場所に住むことで、周囲の景色すら理解し、愛することになるでしょう。目黒区は、あなたの心を豊かにし、あなた自身を映し出す鏡となるでしょう。
日暮れに響く静かな街の音、夜空に広がる星々、それらがいかに「ルネサンスコート学芸大学 303」の生活を特別なものにしてくれるのか。ここでの生活は、まるで自分だけの映画の主人公になったような、そんな感覚を与えてくれるでしょう。この特別な空間で、ぜひとも新しい物語を始めてみてください。それは、必ずや心に残る大切な思い出となるはずです。
バイブルスコア
バイブルスコア: 44.5
条件のいい物件です、引っ越しが2か月以内の場合は仮申し込みを検討すべき物件です。
※バイブルスコア詳細はこちら
バイブルスコアとは独自のAI機械学習技術を利用した物件評価システムで、物件のおすすめ度を示します。最高得点は100点で、スコアが高いほど、よりおすすめの物件と評価されています。
写真
契約条件
| 賃料 | 予想金額:232,000〜252,000円程度 | 管理費 | 予想金額:18,000〜22,000円程度 |
| 礼金 | 非公開(アーカイブ) | 敷金 | 非公開(アーカイブ) |
| フリーレント | なし | 平米数 | 50.44㎡ |
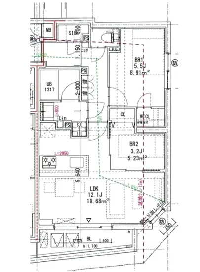
| 間取り | 2LDK+WIC+SIC | 大型収納 | SIC・WIC |
| 契約期間 | 2年 | 方角 | 南 |
| 更新料 | 1ヶ月 | 契約形態 | 普通賃貸借契約 |
| 取引態様 | 媒介 | 内見状況 | 入居中 |
| 入居時期 | 入居中 | SOHO・事務所 | 不可 |
| ペット | 不可 | 間取り内訳 | LDK12.1帖 洋室5.5帖 洋室3.2帖 |
| キャンペーン情報・備考 | 本情報は賃料改定交渉の資料作成、収益物件の利回り試算、周辺エリアや最寄り駅の坪単価分析、次回募集開始時期の予測などにご活用いただけます。 | ||
※「どの不動産に頼めばいいのか分からない」「信頼できる営業マンの話を聞きたい」「一番親切な会社と契約したい」とお悩みの方におすすめなのが「高級賃貸バイブル」です。
高級賃貸バイブルは業界10年以上の熟練スタッフ群がお客様ファーストで対応します。
下記ボタンから、まずは無料でご相談下さい。
※内覧をご希望の際には、どうぞ物件のエントランス前にてお待ち合わせくださいませ。ご内覧後は、同じ場所でお別れとさせていただきます。お客様のご都合に合わせたスムーズなご案内を心がけておりますので、ご質問等がございましたら何なりとお申し付けください。 物件概要
| 物件名 |
| 築年月 |
|
|---|---|---|---|
| 所在地 | |||
| 交通 | |||
| 総戸数 |
| 総階数 |
|
| 構造 |
| ||
地図
物件までの道のりは、「拡大地図を表示」をクリックしてナビ機能をご利用ください。
部屋設備













建物設備

TVモニターホン

エレベーター

オートロック

宅配ボックス

敷地内ゴミ置場

管理人

駐輪場
ルネサンスコート学芸大学の現在募集中のお部屋
- No rooms found for this property.
















