
| 賃料 | 予想金額:260,000〜280,000円程度 | 管理費 | 予想金額:0〜2,000円程度 |
| 礼金/敷金 | 非公開(アーカイブ) | 平米数 | 54.93㎡ |
| 初期費用概算(参考) | 目安:1,003,000〜1,103,000 円 | みなし賃料(月額・参考) | 276,313〜296,313 円 |
| 備考 | 本ページは過去募集のアーカイブです。表示の金額は周辺相場・過去募集を踏まえた参考レンジであり、実際の契約金額・条件ではありません。 | ||
※上記みなし賃料(月額)は仲介手数料割引・無料&キャッシュバックを加味した高級賃貸バイブル限定の金額です。一般的なみなし賃料とは異なります。
【建物ページ】ディアナコート祐天寺レジデンスの詳細・最新空室はこちら▶▶選ばれる理由
仲介手数料無料・キャンペーン情報(毎月15名様限定)
〇仲介手数料割引キャンペーン
ディアナコート祐天寺レジデンス 303の口コミ・レビュー
ディアナコート祐天寺レジデンス 303。それは、あなたの心に寄り添うような温もりを持った住まいです。目黒区の静けさの中で、まるで人生のひとコマが映画のワンシーンであるかのように、あなたを迎え入れてくれます。この303号室は、息を呑むような優雅さを秘めており、54.93㎡という広がりを持ちながらも、心地よい包容力を感じさせる空間です。
南向きの窓からは、柔らかな日差しが舞い込み、毎日を優しく照らし…ディアナコート祐天寺レジデンス 303。それは、あなたの心に寄り添うような温もりを持った住まいです。目黒区の静けさの中で、まるで人生のひとコマが映画のワンシーンであるかのように、あなたを迎え入れてくれます。この303号室は、息を呑むような優雅さを秘めており、54.93㎡という広がりを持ちながらも、心地よい包容力を感じさせる空間です。
南向きの窓からは、柔らかな日差しが舞い込み、毎日を優しく照らします。朝のコーヒーの香りが漂うキッチンには、12.7帖のLDKが広がり、ここで描く料理の数々が、まるでアート作品のように色鮮やかにディスプレイされることでしょう。手作りの料理を囲む夜のディナーは、友人や家族との温かい時間を創出し、笑い声がエコーすることでしょう。このLDKは、あなたの生活のハーモニーを育む場所です。
洋室5帖とS6帖のそれぞれのスペースも、あなたの夢を形にするためのキャンバスです。静かなひとときを求めるあなたにとって、この空間があなたの思考や想像を豊かにするインスピレーションの源となることでしょう。ひとりで過ごす時間も、心地よい安らぎをもたらし、まるで自分だけの静かな図書館のように、知識の探求を楽しむことができます。
ディアナコート祐天寺レジデンス 303には日常生活を支える数々の設備も整っています。エレベーターでアクセスもスムーズ、オートロックの安心感は、あなたに特別な安全な空間を提供します。ラウンジでのひとときは、あなたの交友関係を広げ、宅配ボックスがあることで、忙しい日常の中でもストレスを軽減してくれるでしょう。
周辺の歴史や豊かな文化は、この場所にさらなる魅力を与えています。祐天寺駅まで徒歩5分というアクセスの良さは、まるで忙しい都会の中でも静謐さを楽しむための贈り物。近隣の道には歴史的な建物や、美しい公園も点在し、あなたの散歩の道を彩ります。それは、まるで絵画の中の風景のように心を打つことでしょう。
この物件は、単なる居住空間ではなく、あなたの人生の物語を紡ぐ場所です。友人と笑い合い、家族と過ごし、時には一人で静かに考え事をする。ディアナコート祐天寺レジデンス 303は、まるであなた自身がこの空間の主人公であるかのように、温かくその日常を見守ってくれる存在なのです。あなたの新しい生活が、ここから幕を開けることを心より願っています。
南向きの窓からは、柔らかな日差しが舞い込み、毎日を優しく照らし…ディアナコート祐天寺レジデンス 303。それは、あなたの心に寄り添うような温もりを持った住まいです。目黒区の静けさの中で、まるで人生のひとコマが映画のワンシーンであるかのように、あなたを迎え入れてくれます。この303号室は、息を呑むような優雅さを秘めており、54.93㎡という広がりを持ちながらも、心地よい包容力を感じさせる空間です。
南向きの窓からは、柔らかな日差しが舞い込み、毎日を優しく照らします。朝のコーヒーの香りが漂うキッチンには、12.7帖のLDKが広がり、ここで描く料理の数々が、まるでアート作品のように色鮮やかにディスプレイされることでしょう。手作りの料理を囲む夜のディナーは、友人や家族との温かい時間を創出し、笑い声がエコーすることでしょう。このLDKは、あなたの生活のハーモニーを育む場所です。
洋室5帖とS6帖のそれぞれのスペースも、あなたの夢を形にするためのキャンバスです。静かなひとときを求めるあなたにとって、この空間があなたの思考や想像を豊かにするインスピレーションの源となることでしょう。ひとりで過ごす時間も、心地よい安らぎをもたらし、まるで自分だけの静かな図書館のように、知識の探求を楽しむことができます。
ディアナコート祐天寺レジデンス 303には日常生活を支える数々の設備も整っています。エレベーターでアクセスもスムーズ、オートロックの安心感は、あなたに特別な安全な空間を提供します。ラウンジでのひとときは、あなたの交友関係を広げ、宅配ボックスがあることで、忙しい日常の中でもストレスを軽減してくれるでしょう。
周辺の歴史や豊かな文化は、この場所にさらなる魅力を与えています。祐天寺駅まで徒歩5分というアクセスの良さは、まるで忙しい都会の中でも静謐さを楽しむための贈り物。近隣の道には歴史的な建物や、美しい公園も点在し、あなたの散歩の道を彩ります。それは、まるで絵画の中の風景のように心を打つことでしょう。
この物件は、単なる居住空間ではなく、あなたの人生の物語を紡ぐ場所です。友人と笑い合い、家族と過ごし、時には一人で静かに考え事をする。ディアナコート祐天寺レジデンス 303は、まるであなた自身がこの空間の主人公であるかのように、温かくその日常を見守ってくれる存在なのです。あなたの新しい生活が、ここから幕を開けることを心より願っています。
バイブルスコア
バイブルスコア: 50.6
条件のいい物件です、引っ越しが2か月以内の場合は仮申し込みを検討すべき物件です。
このお部屋は、現在ご入居中のため空室情報はございません。ただし、将来的に募集が開始される際、バイブルスコアにおいて非常に高い評価が期待されます。特にご興味をお持ちの方は、今のうちにブックマークやお気に入りに登録していただくと、募集開始のお知らせをすぐに受け取ることができます。是非ともご検討くださいませ。
※バイブルスコア詳細はこちら
バイブルスコアとは独自のAI機械学習技術を利用した物件評価システムで、物件のおすすめ度を示します。最高得点は100点で、スコアが高いほど、よりおすすめの物件と評価されています。
写真
契約条件
| 賃料 | 予想金額:260,000〜280,000円程度 | 管理費 | 予想金額:0〜2,000円程度 |
| 礼金 | 非公開(アーカイブ) | 敷金 | 非公開(アーカイブ) |
| フリーレント | なし | 平米数 | 54.93㎡ |
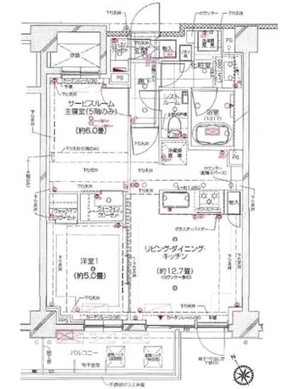
| 間取り | 1LDK | 大型収納 | 2WIC+SIC |
| 契約期間 | 2年 | 方角 | 南 |
| 更新料 | 1ヶ月 | 契約形態 | 普通賃貸借契約 |
| 取引態様 | 媒介 | 内見状況 | 入居中 |
| 入居時期 | 入居中 | SOHO・事務所 | 不可 |
| ペット | 不可 | 間取り内訳 | 洋:5 S:6 LDK:12.7 |
| キャンペーン情報・備考 | 本情報は賃料改定交渉の資料作成、収益物件の利回り試算、周辺エリアや最寄り駅の坪単価分析、次回募集開始時期の予測などにご活用いただけます。 | ||
※「どの不動産に頼めばいいのか分からない」「信頼できる営業マンの話を聞きたい」「一番親切な会社と契約したい」とお悩みの方におすすめなのが「高級賃貸バイブル」です。
高級賃貸バイブルは業界10年以上の熟練スタッフ群がお客様ファーストで対応します。
下記ボタンから、まずは無料でご相談下さい。
※内覧をご希望の際には、どうぞ物件のエントランス前にてお待ち合わせくださいませ。ご内覧後は、同じ場所でお別れとさせていただきます。お客様のご都合に合わせたスムーズなご案内を心がけておりますので、ご質問等がございましたら何なりとお申し付けください。 物件概要
| 物件名 |
| 築年月 |
|
|---|---|---|---|
| 所在地 | |||
| 交通 | |||
| 総戸数 |
| 総階数 |
|
| 構造 |
| ||
地図
物件までの道のりは、「拡大地図を表示」をクリックしてナビ機能をご利用ください。
部屋設備
















建物設備

TVモニターホン

エレベーター

オートロック

バイク置場

ラウンジ

宅配ボックス

敷地内ゴミ置場

管理人

駐車場平置き

駐車場機械式

駐輪場
ディアナコート祐天寺レジデンスの現在募集中のお部屋
- No rooms found for this property.















