Log三田駅前
- 2025年8月1日
- 2025年12月4日
コメント
駅から徒歩約1分の好立地、都会のオアシスとも言える「Log三田駅前(ログ三田駅前)」は、喧騒から一歩引いた優雅な住環境を提供するマンションで... もっと読む
| 所在地: | 東京都港区芝4-3-10 |
|---|---|
| 交通 | 都営地下鉄三田線 三田駅 徒歩1分 都営地下鉄浅草線 三田駅 徒歩1分 JR山手線 田町駅 徒歩6分 JR京浜東北線 田町駅 徒歩6分 都営地下鉄三田線 芝公園駅 徒歩7分 |
| 築年月: | 2023年1月 |
| 家賃帯: | 募集住戸なし |
|---|---|
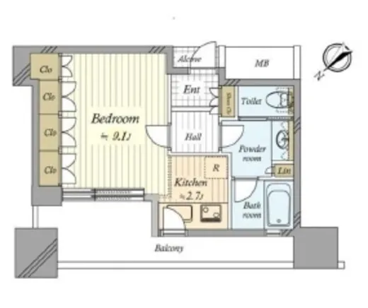
| 間取り: | 募集住戸なし |
| 平米数: | 募集住戸なし |
検索条件に合う部屋、もしくは現在募集中の部屋情報はありません。












