メインステージ九段下
- 2024年5月27日
- 2025年12月4日
コメント
メインステージ九段下は、まるで都市の真ん中に佇む一つの宝石のようです。2011年7月に誕生したこの壮麗な14階建てのマンション、東京都千代田... もっと読む
| 所在地: | 東京都千代田区神田神保町3-9-2 |
|---|---|
| 交通 | 東京メトロ半蔵門線 九段下駅 徒歩3分 東京メトロ東西線 九段下駅 徒歩3分 都営地下鉄新宿線 九段下駅 徒歩3分 東京メトロ半蔵門線 神保町駅 徒歩3分 都営地下鉄新宿線 神保町駅 徒歩3分 |
| 築年月: | 2011年7月 |
| 家賃帯: | 157,000円 〜 250,000円 |
|---|---|
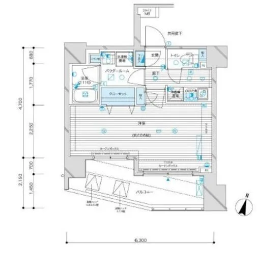
| 間取り: | 1K 〜 1LDK |
| 平米数: | 32.36㎡ 〜 42.11㎡ |
部屋情報
仲介手数料無料
礼金ゼロ
初期費用キャッシュバック
仲介手数料無料
礼金ゼロ
初期費用キャッシュバック










