ARCHIVE
東十条10分以内
パークホームズ十条
プルス上十条
シーズンフラッツ東十条
- 2025年1月6日
- 2025年12月4日
コメント
北区東十条に佇む「シーズンフラッツ東十条」は、まるで都会のオアシスのように、快適さと便利さを見事に融合させた賃貸マンションです。JR京浜東北... もっと読む
| 家賃帯: | 192,000円 〜 192,000円 |
|---|---|
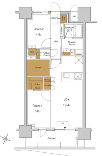
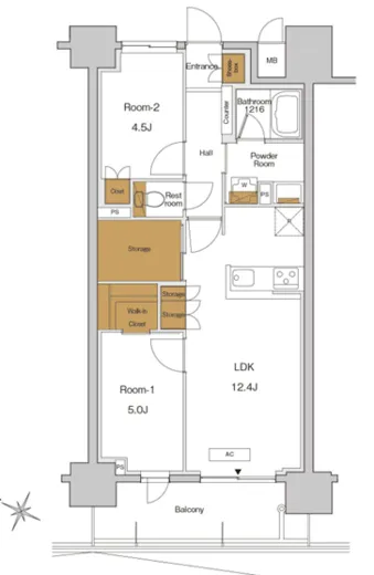
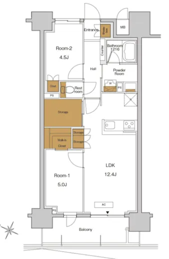
| 間取り: | 1LDK 〜 1LDK |
| 平米数: | 43.55㎡ 〜 43.55㎡ |
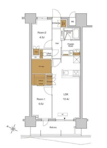
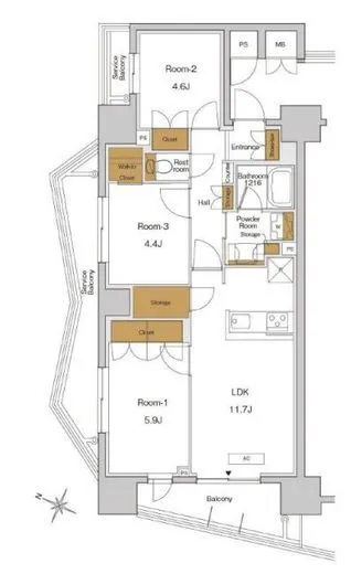
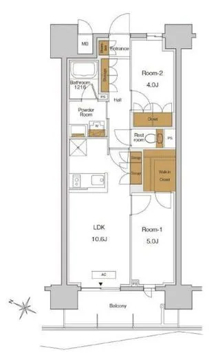
部屋情報
仲介手数料無料
フリーレント 2 ヶ月
礼金ゼロ
初期費用キャッシュバック
仲介手数料無料
フリーレント 2 ヶ月
礼金ゼロ
初期費用キャッシュバック
RJRプレシア東十条ガーデン
- 2024年11月4日
- 2025年12月4日
コメント
「RJRプレシア東十条ガーデン」は、東京都北区東十条という活気あふれるエリアに佇む優美な賃貸マンションです。この特別な物件は、まるで時空を超... もっと読む
| 家賃帯: | 219,000円 〜 315,000円 |
|---|---|
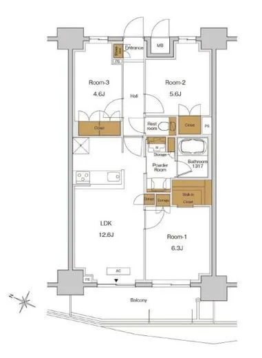
| 間取り: | 2LDK 〜 3LDK |
| 平米数: | 49.77㎡ 〜 70.53㎡ |
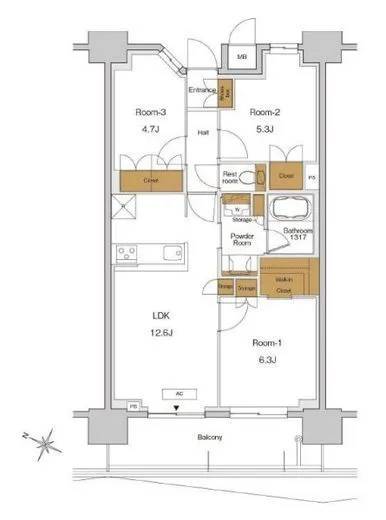
部屋情報
仲介手数料無料
礼金ゼロ
初期費用キャッシュバック
仲介手数料無料
礼金ゼロ
初期費用キャッシュバック




































