パークアクシス神保町
- 2024年5月28日
- 2025年12月4日
コメント
東京都千代田区神田神保町に位置する「パークアクシス神保町」は、三井不動産が贈る極上の賃貸マンションで、新しいライフスタイルの幕あけを予感させ... もっと読む
| 所在地: | 東京都千代田区神田神保町1-56-2 |
|---|---|
| 交通 | 東京メトロ半蔵門線 神保町駅徒歩4分 都営地下鉄新宿線 神保町駅徒歩4分 都営地下鉄三田線 神保町駅徒歩4分 都営地下鉄三田線 水道橋駅徒歩7分 JR中央線 水道橋駅徒歩7分 |
| 築年月: | 2024年4月 |
| 家賃帯: | 180,000円 〜 237,000円 |
|---|---|
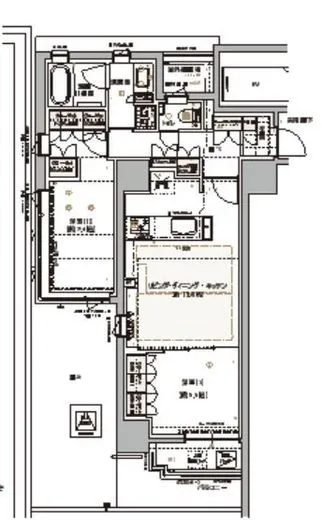
| 間取り: | 1DK 〜 1LDK |
| 平米数: | 27.31㎡ 〜 41.03㎡ |
部屋情報
仲介手数料無料
初期費用キャッシュバック
仲介手数料無料
初期費用キャッシュバック


















