ズーム南麻布
- 2024年5月27日
- 2025年12月4日
コメント
皆さま、心に響く新しい住まいをお探しではありませんか。「ズーム南麻布」は、東京の喧騒から少し離れた静かな空間で、上質な暮らしを求めるあなたに... もっと読む
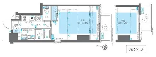
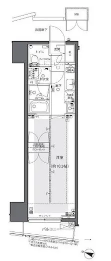
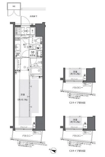
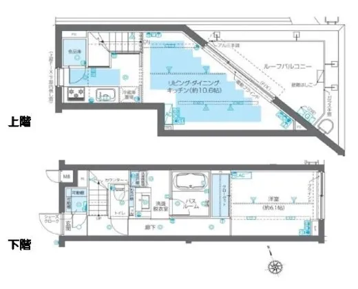
| 所在地: | 東京都港区南麻布1-6-32 |
|---|---|
| 交通 | 東京メトロ南北線 麻布十番駅 徒歩4分 都営地下鉄大江戸線 麻布十番駅 徒歩4分 東京メトロ南北線 白金高輪駅 徒歩12分 都営地下鉄三田線 白金高輪駅 徒歩12分 |
| 築年月: | 2016年5月 |
| 家賃帯: | 募集住戸なし |
|---|---|
| 間取り: | 募集住戸なし |
| 平米数: | 募集住戸なし |
検索条件に合う部屋、もしくは現在募集中の部屋情報はありません。














