中延2
中延2、それは東京の南部に位置し、その街並みは静かながらも日常に溶け込む活気を持つ地域です。この地を訪れる者には、特別な体験が約束されています。そこは、都会の喧騒から少し離れた場所に位置しながら、アクセスの利便性を兼ね備えているからです。この地域情報の魅力を余すところなくお伝えします。
中延2の地には、伝統とモダニティが融合しています。その土地固有の文化や風習が残る一方で、新しいライフスタイルを提案するショップやカフェが点在しており、地元の人々の心地好い日常がここには存在しています。街のどこか懐かしい雰囲気と、新鮮な驚きが同居する独特な空気感は、訪れる者を魅了します。
しかし、一方でこの地域情報を深く掘り下げることには、一定の課題も存在します。都心部に比べると、一見地味に感じられるかもしれないその魅力は、表面的な見かけだけでは捉えきれません。そのため、初めて訪れる人々には、その真価を見出すのに時間がかかることがあります。しかし、じっくりとその地を歩き、地元の人たちとの交流を深める中で、中延2しか持たない豊かな魅力に気づくことでしょう。
また、交通の利便性は、都心部への比較的良好なアクセスを提供していますが、交通ピーク時には混雑が予想されることもあります。それでも、この地域を訪れば、その少しの不便ささえも、その場所特有の魅力として受け入れられるはずです。
中延2における最大の利点は、その静寂ながらも育んでいるコミュニティの強さにあります。地元の人々は、新しく訪れる人たちを温かく迎え入れ、快適な滞在ができるように心を配っています。その中には、地元の歴史を知る者や、特別な料理を提供するお店の経営者など、多彩な人々がいます。彼らとの出会いが、この地域の真の価値を引き出してくれます。
この地域情報を全ての人にお伝えすることは、ただ単に地域の魅力を紹介すること以上の意味を持っています。それは、中延2という地が持つ無限の可能性と、そこでの生活がもたらす豊かさを伝えることです。この地での時間は、訪れるすべての人にとって忘れがたい思い出となり、心の中に深く刻まれることでしょう。
最後に、中延2は、単なる地名以上の存在です。それは、過去と現在が交差し、新旧の文化が融合する場所として、独自の価値を提供します。その
パークホームズ品川中延
レジデンシャル品川中延グランクラス
アトラス品川中延
- 2024年5月27日
- 2025年12月4日
コメント
| 家賃帯: | 300,000円 〜 300,000円 |
|---|---|
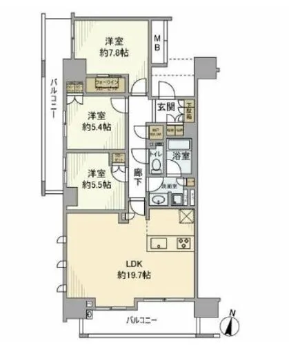
| 間取り: | 3LDK 〜 3LDK |
| 平米数: | 86.92㎡ 〜 86.92㎡ |
ルース中延
- 2024年5月27日
- 2025年12月4日
コメント
| 所在地: | 東京都品川区中延2-16-8 |
|---|---|
| 交通 | 都営地下鉄浅草線 中延駅 徒歩2分 東京急行電鉄東急大井町線 中延駅 徒歩2分 東京急行電鉄東急池上線 荏原中延駅 徒歩2分 東京急行電鉄東急大井町線 戸越公園駅 徒歩8分 東京急行電鉄東急大井町線 荏原町駅 徒歩8分 |
| 築年月: | 2005年3月 |
| 家賃帯: | 募集住戸なし |
|---|---|
| 間取り: | 募集住戸なし |
| 平米数: | 募集住戸なし |
検索条件に合う部屋、もしくは現在募集中の部屋情報はありません。





